Your email has been sent.
Join the Downtown Revival | 1,892 SF Office 565 Harrison Ave 1,892 SF of Office/Medical Space Available in Panama City, FL 32401



Highlights
- 1,892 SF freestanding office building
- Flexible layout for professional or retail use
- Easy access to major roadways and surrounding amenities
- Standalone structure with strong tenant identity
- Convenient Panama City Beach location
All Available Space(1)
Display Rental Rate as
- Space
- Size
- Term
- Rental Rate
- Space Use
- Build-Out
- Available
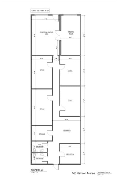
Available: Early 2026 Size: 1,892 SF Base Rent: $22.00/SF Estimated NNN: $6.14/SF Zoning: Downtown District (DTD) – ideal for office, retail, or service use 565 Harrison Ave | Downtown Panama City, FL Be part of the momentum in Historic Downtown Panama City at 565 Harrison Avenue. Available early 2026, this completely rebuilt professional office suite offers 1,891.66 square feet of brand-new interior space, ideal setting for personal or professional service businesses that value walkability, visibility, and a sense of place. The property is undergoing a full interior renovation, allowing incoming occupiers the rare opportunity to lease like-new space in a well-maintained, updated building. The layout includes a welcoming reception area, private offices, open workspaces, and dedicated restrooms, thoughtfully designed to support day-to-day operations for a variety of service-oriented users. Located in the heart of the Harrison Avenue recently completed streetscape improvement, this address offers both character and convenience, surrounded by shops, restaurants, government offices, and other established businesses.
- Lease rate does not include utilities, property expenses or building services
- Fits 5 - 16 People
- Located in-line with other retail
- Standalone structure with strong tenant identity
- Convenient Panama City Beach location
- Office intensive layout
- Central Air Conditioning
- 1,892 SF freestanding office building
- Flexible layout for professional or medical use
- Easy access to major roadways and surrounding amen
| Space | Size | Term | Rental Rate | Space Use | Build-Out | Available |
| 1st Floor | 1,892 SF | 3-5 Years | $30.09 CAD/SF/YR $2.51 CAD/SF/MO $56,928 CAD/YR $4,744 CAD/MO | Office/Medical | - | Now |
1st Floor
| Size |
| 1,892 SF |
| Term |
| 3-5 Years |
| Rental Rate |
| $30.09 CAD/SF/YR $2.51 CAD/SF/MO $56,928 CAD/YR $4,744 CAD/MO |
| Space Use |
| Office/Medical |
| Build-Out |
| - |
| Available |
| Now |
1st Floor
| Size | 1,892 SF |
| Term | 3-5 Years |
| Rental Rate | $30.09 CAD/SF/YR |
| Space Use | Office/Medical |
| Build-Out | - |
| Available | Now |
Available: Early 2026 Size: 1,892 SF Base Rent: $22.00/SF Estimated NNN: $6.14/SF Zoning: Downtown District (DTD) – ideal for office, retail, or service use 565 Harrison Ave | Downtown Panama City, FL Be part of the momentum in Historic Downtown Panama City at 565 Harrison Avenue. Available early 2026, this completely rebuilt professional office suite offers 1,891.66 square feet of brand-new interior space, ideal setting for personal or professional service businesses that value walkability, visibility, and a sense of place. The property is undergoing a full interior renovation, allowing incoming occupiers the rare opportunity to lease like-new space in a well-maintained, updated building. The layout includes a welcoming reception area, private offices, open workspaces, and dedicated restrooms, thoughtfully designed to support day-to-day operations for a variety of service-oriented users. Located in the heart of the Harrison Avenue recently completed streetscape improvement, this address offers both character and convenience, surrounded by shops, restaurants, government offices, and other established businesses.
- Lease rate does not include utilities, property expenses or building services
- Office intensive layout
- Fits 5 - 16 People
- Central Air Conditioning
- Located in-line with other retail
- 1,892 SF freestanding office building
- Standalone structure with strong tenant identity
- Flexible layout for professional or medical use
- Convenient Panama City Beach location
- Easy access to major roadways and surrounding amen
Property Overview
Introducing 565 Harrison Ave, a prime commercial property located in Panama City, FL, available for lease. This spacious property offers a versatile floor plan suitable for various business needs, making it ideal for retail, office, or restaurant use. With its prominent location and high visibility, this property provides an excellent opportunity to establish a thriving business. The modern architecture, ample parking, and proximity to major amenities make it an attractive choice for prospective tenants. Don't miss the chance to secure this sought-after space for your business. Inquire today and make 565 Harrison Ave the future home of your successful enterprise. Size: 1,892 SF Base Rent: $22.00/SF Estimated NNN: $6.14/SF Zoning: Downtown District (DTD) – ideal for office, retail, or service use
Property Facts
Presented by
Join the Downtown Revival | 1,892 SF Office | 565 Harrison Ave
Hmm, there seems to have been an error sending your message. Please try again.
Thanks! Your message was sent.



