Log In/Sign Up
Your email has been sent.
5741 Arapahoe Ave - Burning Tree 6,916 SF Industrial Condo Unit Offered at $2,032,610 CAD in Boulder, CO 80303



Investment Highlights
- Conference Room
- Flexible Zoning
- Loading Dock
- Electrical/3-Phase
- Kitchen
Executive Summary
Excellent owner-user industrial, flex and office condo located off of Arapahoe with easy access to central Boulder. Two stories with office space on the second floor. Dock high loading door 16’ ceiling heights and plenty of parking for work trucks/vans or other vehicles.
1 Unit Available
Unit A & B
| Unit Size | 6,916 SF | Condo Use | Industrial |
| Price | $2,032,610 CAD | Sale Type | Owner User |
| Price Per SF | $293.90 CAD |
| Unit Size | 6,916 SF |
| Price | $2,032,610 CAD |
| Price Per SF | $293.90 CAD |
| Condo Use | Industrial |
| Sale Type | Owner User |
Description
Excellent owner-user industrial, flex and office condo located off of Arapahoe with easy access to central Boulder. Two stories with office space on the second floor. Dock high loading door 16’ ceiling heights and plenty
of parking for work trucks/vans or other vehicles.
Sale Notes
HOA fees-$2,369 quarter
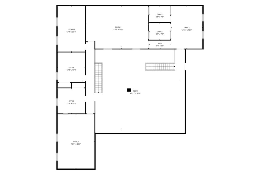
5741-Arapahoe-Avenue_1st-Floor
5741-Arapahoe-Avenue_2nd-Floor
1 of 2
Videos
Matterport 3D Exterior
Matterport 3D Tour
Photos
Street View
Street
Map
Property Facts
The following property facts apply to the entire building. Details for individual condo units may vary and are listed in the unit information above.
| Total Building Size | 11,789 SF | Typical Floor Size | 5,895 SF |
| Property Type | Industrial (Condo) | Year Built | 1980 |
| Property Subtype | Food Processing | Lot Size | 1.00 AC |
| Building Class | B | Parking Ratio | 4.24/1,000 SF |
| Floors | 2 | ||
| Zoning | ID, Boulder | ||
| Total Building Size | 11,789 SF |
| Property Type | Industrial (Condo) |
| Property Subtype | Food Processing |
| Building Class | B |
| Floors | 2 |
| Typical Floor Size | 5,895 SF |
| Year Built | 1980 |
| Lot Size | 1.00 AC |
| Parking Ratio | 4.24/1,000 SF |
| Zoning | ID, Boulder |
Fairly walkable
50/100
Very drivable
80/100
Limited public transit
20/100
Moderately bikeable
70/100
1 of 8
Videos
Matterport 3D Exterior
Matterport 3D Tour
Photos
Street View
Street
Map
Presented by
5741 Arapahoe Ave - Burning Tree
Already a member? Log In
Hmm, there seems to have been an error sending your message. Please try again.
Thanks! Your message was sent.


