Log In/Sign Up
Your email has been sent.
Investment Highlights
- Single-story office building with ±4,832 SF of professional space.
- Convenient access to I-10 and CA-71 freeways for regional connectivity.
- Approximately 14 minutes from Ontario International Airport.
- Fenced private parking lot with 14 dedicated spaces.
- Minutes from Downtown Pomona and nearby retail and dining amenities.
- Street frontage along North Park Avenue for visibility and accessibility.
Executive Summary
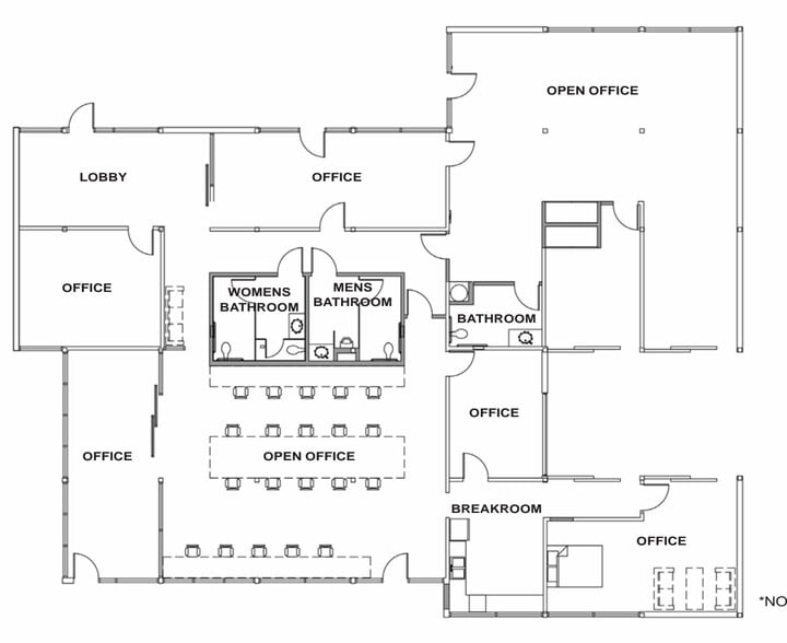
This unique single-story office property offers ±4,832 square feet of professional space in the heart of Pomona, California. The building features a functional layout with multiple private offices, open work areas, a breakroom, and dedicated restrooms, providing flexibility for a variety of business operations. A fenced private parking lot with 14 spaces ensures convenience and security for employees and visitors.
Located just minutes from Downtown Pomona, the property benefits from excellent accessibility to major transportation routes, including the I-10 and CA-71 freeways. The surrounding area offers a mix of retail, dining, and service amenities, creating a convenient environment for both staff and clients. Ontario International Airport is approximately 14 minutes away, enhancing regional and national connectivity.
This property represents an opportunity for an owner-user or investor seeking a well-located office asset with strong accessibility and functional design.
Located just minutes from Downtown Pomona, the property benefits from excellent accessibility to major transportation routes, including the I-10 and CA-71 freeways. The surrounding area offers a mix of retail, dining, and service amenities, creating a convenient environment for both staff and clients. Ontario International Airport is approximately 14 minutes away, enhancing regional and national connectivity.
This property represents an opportunity for an owner-user or investor seeking a well-located office asset with strong accessibility and functional design.
Property Facts
Sale Type
Investment or Owner User
Property Type
Office
Building Size
4,832 SF
Building Class
C
Year Built
1953
Tenancy
Single
Building Height
1 Story
Typical Floor Size
4,832 SF
Building FAR
0.34
Lot Size
0.33 AC
Zoning
AP - commercial
Parking
14 Spaces (2.9 Spaces per 1,000 SF Leased)
Amenities
- 24 Hour Access
- Air Conditioning
1 1
Moderately walkable
60/100
Exceptionally drivable
90/100
Some public transit
50/100
Fairly bikeable
50/100
Property Taxes
| Parcel Number | 8336-013-008 | Improvements Assessment | $554,073 CAD |
| Land Assessment | $932,644 CAD | Total Assessment | $1,486,718 CAD |
Property Taxes
Parcel Number
8336-013-008
Land Assessment
$932,644 CAD
Improvements Assessment
$554,073 CAD
Total Assessment
$1,486,718 CAD
1 of 7
Videos
Matterport 3D Exterior
Matterport 3D Tour
Photos
Street View
Street
Map
1 of 1
Presented by
580-600 N Park Ave
Already a member? Log In
Hmm, there seems to have been an error sending your message. Please try again.
Thanks! Your message was sent.



