Your email has been sent.
Park Highlights
- Beltway 8 Business Park, 5829 W Sam Houston Parkway N, is an established flex-industrial campus comprising high-quality brick buildings.
- Well-maintained suites with private entrances, oversized grade-level doors, insulated warehouses, 18' to 20' clear heights, and office/showroom space.
- Strategically located along Beltway 8, offering immediate access to major arterial routes, and 2 miles to Highway 290 and 5 miles to Interstate 10.
- Offering select frontage spaces with windowed storefronts and visibility to Beltway 8 with over 133,000 daily drivers.
- Prime address within a 10-minute drive of CITYCENTRE, The Home Depot, H-E-B, Walmart Supercenter, multiple hotels, and over 50 restaurants.
- Tapped into Northwest Houston's best industrial workforce, as approximately 57% of laborers within a 5-mile radius are in the blue-collar sector.
Park Facts
Features and Amenities
- 24 Hour Access
- Air Conditioning
- Freeway Visibility
- Property Manager on Site
- Signage
- Skylights
- Tenant Controlled HVAC
- Drive Thru
All Available Spaces(27)
Display Rental Rate as
- Space
- Size
- Term
- Rental Rate
- Space Use
- Build-Out
- Available
The suite features an open warehouse area, private offices, restrooms, and a mezzanine.
Featuring 1,424 square feet of warehouse space, 977 square feet of first-floor offices, a 977-square-foot mezzanine, and an overhead door.
- Includes 977 SF of dedicated office space
- 1 Drive Bay
Featuring an overhead door, 1,560 square feet of warehouse space, an 840-square-foot first-floor office, a 200-square-foot second-floor office, and a 640-square foot mezzanine.
- Includes 1,040 SF of dedicated office space
- 1 Drive Bay
Open warehouse with an overhead door.
- Includes 575 SF of dedicated office space
- 1 Drive Bay
Comprises 1,560 square feet of warehouse space, 840 square feet of office space, an 840-square-foot mezzanine, and an overhead door.
- Includes 840 SF of dedicated office space
- Raised Floor
- 1 Drive Bay
| Space | Size | Term | Rental Rate | Space Use | Build-Out | Available |
| 1st Floor - 1003 | 4,800 SF | Negotiable | Upon Request Upon Request Upon Request Upon Request | Flex | - | Now |
| 1st Floor - 1005 | 3,586 SF | Negotiable | Upon Request Upon Request Upon Request Upon Request | Flex | Full Build-Out | Now |
| 1st Floor - 1006 | 3,240 SF | Negotiable | Upon Request Upon Request Upon Request Upon Request | Flex | Partial Build-Out | Now |
| 1st Floor - 1007 | 5,525 SF | Negotiable | Upon Request Upon Request Upon Request Upon Request | Flex | Full Build-Out | Now |
| 1st Floor - 1009 | 3,240 SF | Negotiable | Upon Request Upon Request Upon Request Upon Request | Flex | - | Now |
5829 W Sam Houston Pky N - 1st Floor - 1003
5829 W Sam Houston Pky N - 1st Floor - 1005
5829 W Sam Houston Pky N - 1st Floor - 1006
5829 W Sam Houston Pky N - 1st Floor - 1007
5829 W Sam Houston Pky N - 1st Floor - 1009
- Space
- Size
- Term
- Rental Rate
- Space Use
- Build-Out
- Available
The space totals approximately 3,680 square feet, including a 1,280-square-foot first-floor office, a 1,208-square-foot second-floor mezzanine, an overhead door, and a 1,120-square-foot warehouse.
- Includes 1,280 SF of dedicated office space
- 1 Drive Bay
The space totals approximately 3,240 square feet and features an 18-foot clear height, one 12-by-14-foot grade-level door, and three-phase power with 480 volts and 200 amps.
- Includes 1,582 SF of dedicated office space
The space totals approximately 3,240 square feet, including a 1,680-square-foot office. It features an 18-foot clear height, one 12-by-14-foot grade-level door, and three-phase power with 480 volts and 200 amps.
- Includes 1,680 SF of dedicated office space
- 1 Drive Bay
| Space | Size | Term | Rental Rate | Space Use | Build-Out | Available |
| 1st Floor - 1102 | 3,680 SF | Negotiable | Upon Request Upon Request Upon Request Upon Request | Flex | Full Build-Out | Now |
| 1st Floor - 1104 | 3,240 SF | Negotiable | Upon Request Upon Request Upon Request Upon Request | Flex | Partial Build-Out | Now |
| 1st Floor - 1105 | 3,240 SF | Negotiable | Upon Request Upon Request Upon Request Upon Request | Flex | - | Now |
5829 W Sam Houston Pky N - 1st Floor - 1102
5829 W Sam Houston Pky N - 1st Floor - 1104
5829 W Sam Houston Pky N - 1st Floor - 1105
- Space
- Size
- Term
- Rental Rate
- Space Use
- Build-Out
- Available
The space totals approximately 5,113 square feet, including a 753-square-foot first-floor office, a 613-square-foot second-floor mezzanine, and a 3,747-square-foot warehouse. It is equipped with two overhead doors and three-phase power.
- Includes 753 SF of dedicated office space
- 2 Drive Ins
The space totals approximately 8,662 square feet, including a 2,220-square-foot first-floor office and a 1,162-square-foot second-floor office. It is equipped with three-phase power.
- Includes 3,382 SF of dedicated office space
The space totals approximately 4,080 square feet, including a 1,320-square-foot office. It features an 18-foot clear height, one overhead door, and three-phase power with 480 volts and 200 amps.
- Includes 1,320 SF of dedicated office space
- 1 Drive Bay
| Space | Size | Term | Rental Rate | Space Use | Build-Out | Available |
| 1st Floor - 1201 | 5,113 SF | Negotiable | Upon Request Upon Request Upon Request Upon Request | Flex | - | Now |
| 1st Floor - 1202 | 8,662 SF | Negotiable | Upon Request Upon Request Upon Request Upon Request | Flex | - | Now |
| 1st Floor - 1206 | 4,080 SF | Negotiable | Upon Request Upon Request Upon Request Upon Request | Flex | Partial Build-Out | Now |
5829 W Sam Houston Pky N - 1st Floor - 1201
5829 W Sam Houston Pky N - 1st Floor - 1202
5829 W Sam Houston Pky N - 1st Floor - 1206
- Space
- Size
- Term
- Rental Rate
- Space Use
- Build-Out
- Available
- Lease rate does not include utilities, property expenses or building services
The space totals approximately 3,240 square feet, including an 840-square-foot first-floor office and a 1,560-square-foot warehouse. It features an 18-foot clear height, one 12-by-14-foot grade-level door, and three-phase power.
- Includes 840 SF of dedicated office space
- 1 Drive Bay
The space totals approximately 3,480 square feet, including a 1,080-square-foot first-floor office and a 1,320-square-foot warehouse. It features an 18-foot clear height, one 12-by-14-foot grade-level door, and three-phase power.
- Includes 1,080 SF of dedicated office space
- 1 Drive Bay
- 1 Drive Bay
The space totals approximately 3,100 square feet, including a 1,000-square-foot first-floor office, a 1,000-square-foot second-floor mezzanine, and a 1,100-square-foot warehouse. It features an 18-foot clear height, one 12-by-14-foot grade-level door, and three-phase power.
- Includes 1,000 SF of dedicated office space
- 1 Drive Bay
| Space | Size | Term | Rental Rate | Space Use | Build-Out | Available |
| 1st Floor - 401 | 3,150 SF | Negotiable | Upon Request Upon Request Upon Request Upon Request | Flex | - | Now |
| 1st Floor - 404 | 3,240 SF | Negotiable | Upon Request Upon Request Upon Request Upon Request | Flex | Partial Build-Out | Now |
| 1st Floor - 405 | 3,990 SF | 1-7 Years | Upon Request Upon Request Upon Request Upon Request | Flex | - | Now |
| 1st Floor - 406 | 3,480 SF | Negotiable | Upon Request Upon Request Upon Request Upon Request | Flex | Partial Build-Out | Now |
| 1st Floor - 407 | 3,240 SF | Negotiable | Upon Request Upon Request Upon Request Upon Request | Flex | Partial Build-Out | Now |
| 1st Floor - 409 | 3,100 SF | Negotiable | Upon Request Upon Request Upon Request Upon Request | Flex | Partial Build-Out | Now |
5829 W Sam Houston Pky N - 1st Floor - 401
5829 W Sam Houston Pky N - 1st Floor - 404
5829 W Sam Houston Pky N - 1st Floor - 405
5829 W Sam Houston Pky N - 1st Floor - 406
5829 W Sam Houston Pky N - 1st Floor - 407
5829 W Sam Houston Pky N - 1st Floor - 409
- Space
- Size
- Term
- Rental Rate
- Space Use
- Build-Out
- Available
| Space | Size | Term | Rental Rate | Space Use | Build-Out | Available |
| 1st Floor - 607 | 2,700 SF | 1-7 Years | Upon Request Upon Request Upon Request Upon Request | Flex | - | Now |
5829 W Sam Houston Pky N - 1st Floor - 607
- Space
- Size
- Term
- Rental Rate
- Space Use
- Build-Out
- Available
The space totals approximately 3,043 square feet across two levels, including a 1,190-square-foot first-floor office, a 1,190-square-foot second-floor mezzanine, and a 1,194-square-foot warehouse with an overhead door.
- Includes 1,190 SF of dedicated office space
- 1 Drive Bay
- Lease rate does not include utilities, property expenses or building services
- Lease rate does not include utilities, property expenses or building services
| Space | Size | Term | Rental Rate | Space Use | Build-Out | Available |
| 1st Floor - 702 | 2,696 SF | Negotiable | Upon Request Upon Request Upon Request Upon Request | Flex | - | Now |
| 1st Floor - 704 | 3,043 SF | Negotiable | Upon Request Upon Request Upon Request Upon Request | Flex | Full Build-Out | Now |
| 1st Floor - 708 | 2,473 SF | Negotiable | Upon Request Upon Request Upon Request Upon Request | Flex | - | Now |
| 1st Floor - 710 | 3,644 SF | Negotiable | Upon Request Upon Request Upon Request Upon Request | Flex | - | Now |
| 1st Floor - 710 | 3,644 SF | Negotiable | Upon Request Upon Request Upon Request Upon Request | Flex | - | Now |
5829 W Sam Houston Pky N - 1st Floor - 702
5829 W Sam Houston Pky N - 1st Floor - 704
5829 W Sam Houston Pky N - 1st Floor - 708
5829 W Sam Houston Pky N - 1st Floor - 710
5829 W Sam Houston Pky N - 1st Floor - 710
- Space
- Size
- Term
- Rental Rate
- Space Use
- Build-Out
- Available
- 1 Drive Bay
The space totals approximately 3,000 square feet, with a first-floor office of about 1,500 square feet and a second-floor mezzanine of roughly 1,500 square feet. It features an 18-foot clear height and is equipped with three-phase power, 480 volts, and 200 amps.
- Includes 1,500 SF of dedicated office space
- 1 Drive Bay
| Space | Size | Term | Rental Rate | Space Use | Build-Out | Available |
| 1st Floor - 801 | 6,500 SF | Negotiable | Upon Request Upon Request Upon Request Upon Request | Flex | Full Build-Out | Now |
| 1st Floor - 803 | 3,000 SF | Negotiable | Upon Request Upon Request Upon Request Upon Request | Flex | Full Build-Out | Now |
| 1st Floor - 808 | 3,000 SF | 1-7 Years | Upon Request Upon Request Upon Request Upon Request | Industrial | - | Now |
5829 W Sam Houston Pky N - 1st Floor - 801
5829 W Sam Houston Pky N - 1st Floor - 803
5829 W Sam Houston Pky N - 1st Floor - 808
- Space
- Size
- Term
- Rental Rate
- Space Use
- Build-Out
- Available
Mainly office space with a 990-square-foot first-floor office, a 613-square-foot second-floor office, and private restrooms.
- Includes 1,603 SF of dedicated office space
| Space | Size | Term | Rental Rate | Space Use | Build-Out | Available |
| 1st Floor - 910 | 1,836 SF | Negotiable | Upon Request Upon Request Upon Request Upon Request | Flex | Partial Build-Out | Now |
5829 W Sam Houston Pky N - 1st Floor - 910
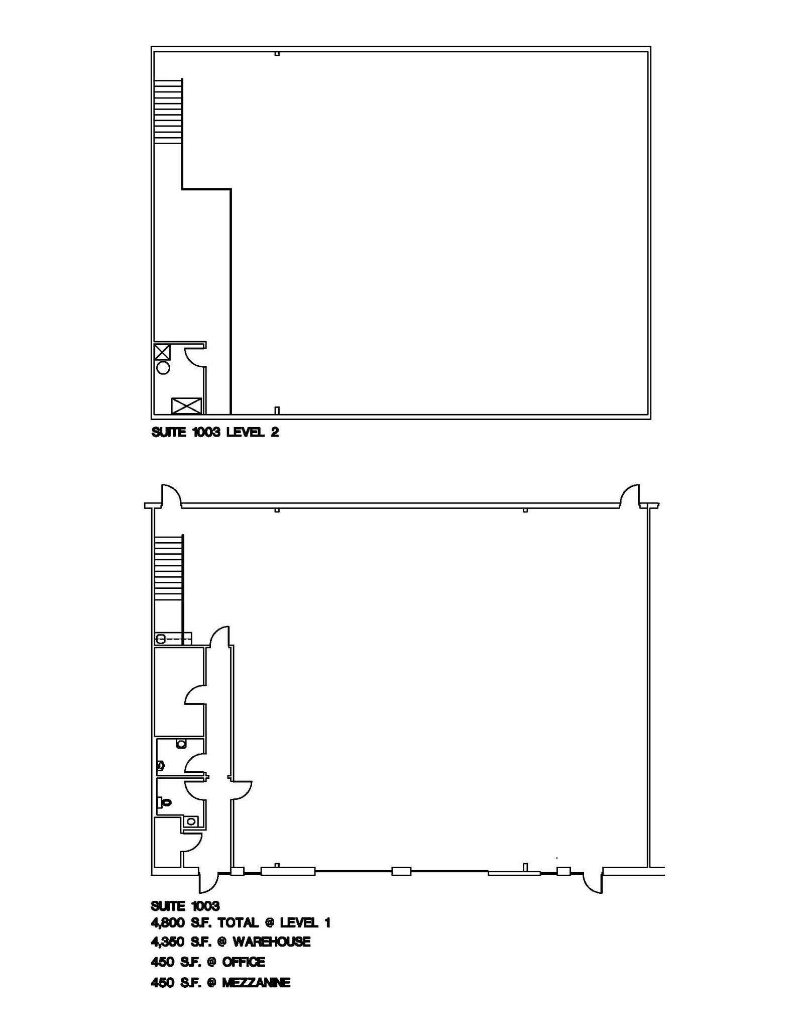
5829 W Sam Houston Pky N - 1st Floor - 1003
| Size | 4,800 SF |
| Term | Negotiable |
| Rental Rate | Upon Request |
| Space Use | Flex |
| Build-Out | - |
| Available | Now |
The suite features an open warehouse area, private offices, restrooms, and a mezzanine.
5829 W Sam Houston Pky N - 1st Floor - 1005
| Size | 3,586 SF |
| Term | Negotiable |
| Rental Rate | Upon Request |
| Space Use | Flex |
| Build-Out | Full Build-Out |
| Available | Now |
Featuring 1,424 square feet of warehouse space, 977 square feet of first-floor offices, a 977-square-foot mezzanine, and an overhead door.
- Includes 977 SF of dedicated office space
- 1 Drive Bay
5829 W Sam Houston Pky N - 1st Floor - 1006
| Size | 3,240 SF |
| Term | Negotiable |
| Rental Rate | Upon Request |
| Space Use | Flex |
| Build-Out | Partial Build-Out |
| Available | Now |
Featuring an overhead door, 1,560 square feet of warehouse space, an 840-square-foot first-floor office, a 200-square-foot second-floor office, and a 640-square foot mezzanine.
- Includes 1,040 SF of dedicated office space
- 1 Drive Bay
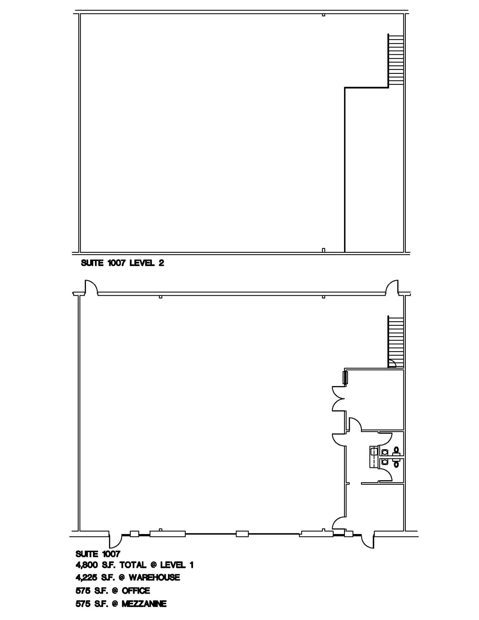
5829 W Sam Houston Pky N - 1st Floor - 1007
| Size | 5,525 SF |
| Term | Negotiable |
| Rental Rate | Upon Request |
| Space Use | Flex |
| Build-Out | Full Build-Out |
| Available | Now |
Open warehouse with an overhead door.
- Includes 575 SF of dedicated office space
- 1 Drive Bay
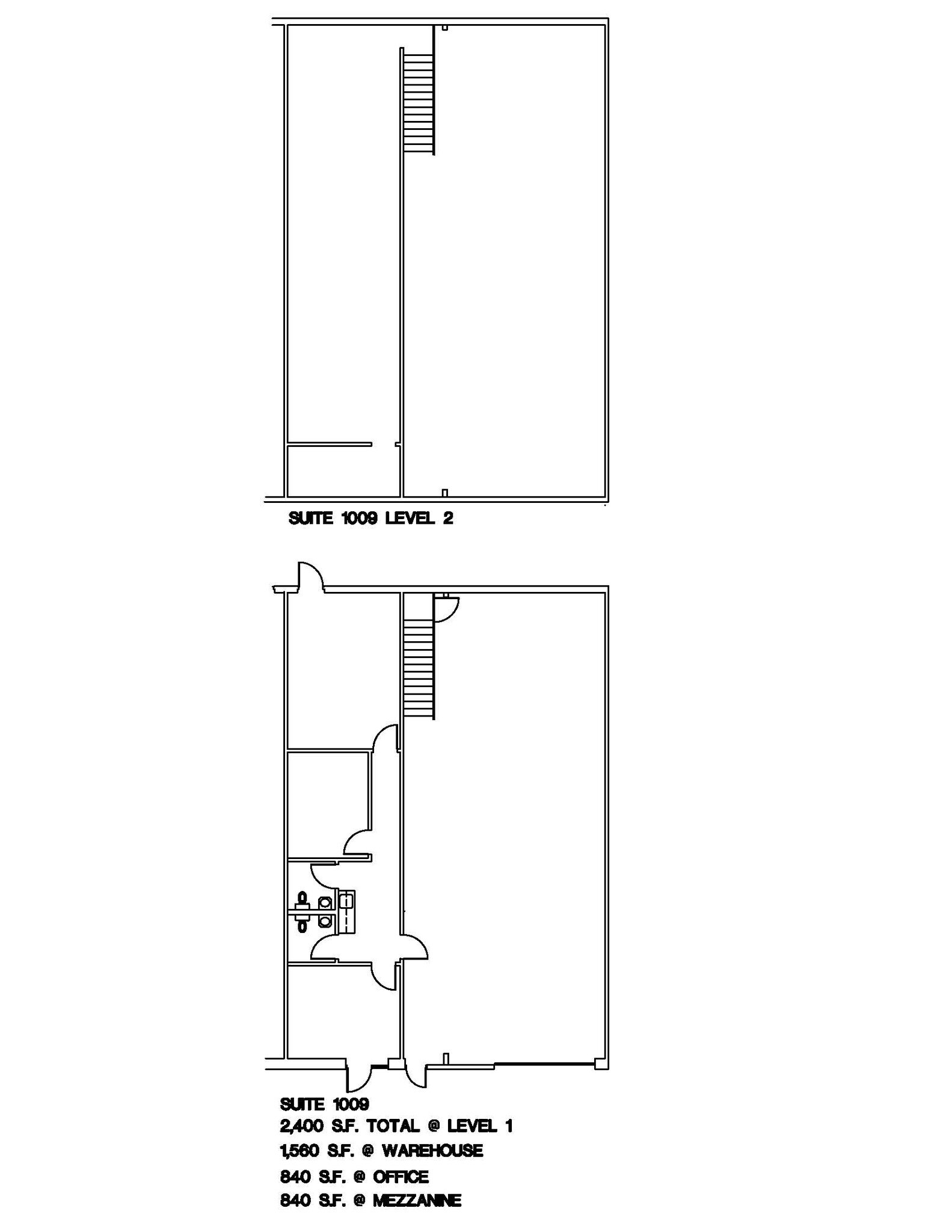
5829 W Sam Houston Pky N - 1st Floor - 1009
| Size | 3,240 SF |
| Term | Negotiable |
| Rental Rate | Upon Request |
| Space Use | Flex |
| Build-Out | - |
| Available | Now |
Comprises 1,560 square feet of warehouse space, 840 square feet of office space, an 840-square-foot mezzanine, and an overhead door.
- Includes 840 SF of dedicated office space
- 1 Drive Bay
- Raised Floor
5829 W Sam Houston Pky N - 1st Floor - 1102
| Size | 3,680 SF |
| Term | Negotiable |
| Rental Rate | Upon Request |
| Space Use | Flex |
| Build-Out | Full Build-Out |
| Available | Now |
The space totals approximately 3,680 square feet, including a 1,280-square-foot first-floor office, a 1,208-square-foot second-floor mezzanine, an overhead door, and a 1,120-square-foot warehouse.
- Includes 1,280 SF of dedicated office space
- 1 Drive Bay
5829 W Sam Houston Pky N - 1st Floor - 1104
| Size | 3,240 SF |
| Term | Negotiable |
| Rental Rate | Upon Request |
| Space Use | Flex |
| Build-Out | Partial Build-Out |
| Available | Now |
The space totals approximately 3,240 square feet and features an 18-foot clear height, one 12-by-14-foot grade-level door, and three-phase power with 480 volts and 200 amps.
- Includes 1,582 SF of dedicated office space
5829 W Sam Houston Pky N - 1st Floor - 1105
| Size | 3,240 SF |
| Term | Negotiable |
| Rental Rate | Upon Request |
| Space Use | Flex |
| Build-Out | - |
| Available | Now |
The space totals approximately 3,240 square feet, including a 1,680-square-foot office. It features an 18-foot clear height, one 12-by-14-foot grade-level door, and three-phase power with 480 volts and 200 amps.
- Includes 1,680 SF of dedicated office space
- 1 Drive Bay
5829 W Sam Houston Pky N - 1st Floor - 1201
| Size | 5,113 SF |
| Term | Negotiable |
| Rental Rate | Upon Request |
| Space Use | Flex |
| Build-Out | - |
| Available | Now |
The space totals approximately 5,113 square feet, including a 753-square-foot first-floor office, a 613-square-foot second-floor mezzanine, and a 3,747-square-foot warehouse. It is equipped with two overhead doors and three-phase power.
- Includes 753 SF of dedicated office space
- 2 Drive Ins
5829 W Sam Houston Pky N - 1st Floor - 1202
| Size | 8,662 SF |
| Term | Negotiable |
| Rental Rate | Upon Request |
| Space Use | Flex |
| Build-Out | - |
| Available | Now |
The space totals approximately 8,662 square feet, including a 2,220-square-foot first-floor office and a 1,162-square-foot second-floor office. It is equipped with three-phase power.
- Includes 3,382 SF of dedicated office space
5829 W Sam Houston Pky N - 1st Floor - 1206
| Size | 4,080 SF |
| Term | Negotiable |
| Rental Rate | Upon Request |
| Space Use | Flex |
| Build-Out | Partial Build-Out |
| Available | Now |
The space totals approximately 4,080 square feet, including a 1,320-square-foot office. It features an 18-foot clear height, one overhead door, and three-phase power with 480 volts and 200 amps.
- Includes 1,320 SF of dedicated office space
- 1 Drive Bay
5829 W Sam Houston Pky N - 1st Floor - 401
| Size | 3,150 SF |
| Term | Negotiable |
| Rental Rate | Upon Request |
| Space Use | Flex |
| Build-Out | - |
| Available | Now |
- Lease rate does not include utilities, property expenses or building services
5829 W Sam Houston Pky N - 1st Floor - 404
| Size | 3,240 SF |
| Term | Negotiable |
| Rental Rate | Upon Request |
| Space Use | Flex |
| Build-Out | Partial Build-Out |
| Available | Now |
The space totals approximately 3,240 square feet, including an 840-square-foot first-floor office and a 1,560-square-foot warehouse. It features an 18-foot clear height, one 12-by-14-foot grade-level door, and three-phase power.
- Includes 840 SF of dedicated office space
- 1 Drive Bay
5829 W Sam Houston Pky N - 1st Floor - 405
| Size | 3,990 SF |
| Term | 1-7 Years |
| Rental Rate | Upon Request |
| Space Use | Flex |
| Build-Out | - |
| Available | Now |
5829 W Sam Houston Pky N - 1st Floor - 406
| Size | 3,480 SF |
| Term | Negotiable |
| Rental Rate | Upon Request |
| Space Use | Flex |
| Build-Out | Partial Build-Out |
| Available | Now |
The space totals approximately 3,480 square feet, including a 1,080-square-foot first-floor office and a 1,320-square-foot warehouse. It features an 18-foot clear height, one 12-by-14-foot grade-level door, and three-phase power.
- Includes 1,080 SF of dedicated office space
- 1 Drive Bay
5829 W Sam Houston Pky N - 1st Floor - 407
| Size | 3,240 SF |
| Term | Negotiable |
| Rental Rate | Upon Request |
| Space Use | Flex |
| Build-Out | Partial Build-Out |
| Available | Now |
- 1 Drive Bay
5829 W Sam Houston Pky N - 1st Floor - 409
| Size | 3,100 SF |
| Term | Negotiable |
| Rental Rate | Upon Request |
| Space Use | Flex |
| Build-Out | Partial Build-Out |
| Available | Now |
The space totals approximately 3,100 square feet, including a 1,000-square-foot first-floor office, a 1,000-square-foot second-floor mezzanine, and a 1,100-square-foot warehouse. It features an 18-foot clear height, one 12-by-14-foot grade-level door, and three-phase power.
- Includes 1,000 SF of dedicated office space
- 1 Drive Bay
5829 W Sam Houston Pky N - 1st Floor - 607
| Size | 2,700 SF |
| Term | 1-7 Years |
| Rental Rate | Upon Request |
| Space Use | Flex |
| Build-Out | - |
| Available | Now |
5829 W Sam Houston Pky N - 1st Floor - 702
| Size | 2,696 SF |
| Term | Negotiable |
| Rental Rate | Upon Request |
| Space Use | Flex |
| Build-Out | - |
| Available | Now |
5829 W Sam Houston Pky N - 1st Floor - 704
| Size | 3,043 SF |
| Term | Negotiable |
| Rental Rate | Upon Request |
| Space Use | Flex |
| Build-Out | Full Build-Out |
| Available | Now |
The space totals approximately 3,043 square feet across two levels, including a 1,190-square-foot first-floor office, a 1,190-square-foot second-floor mezzanine, and a 1,194-square-foot warehouse with an overhead door.
- Includes 1,190 SF of dedicated office space
- 1 Drive Bay
5829 W Sam Houston Pky N - 1st Floor - 708
| Size | 2,473 SF |
| Term | Negotiable |
| Rental Rate | Upon Request |
| Space Use | Flex |
| Build-Out | - |
| Available | Now |
5829 W Sam Houston Pky N - 1st Floor - 710
| Size | 3,644 SF |
| Term | Negotiable |
| Rental Rate | Upon Request |
| Space Use | Flex |
| Build-Out | - |
| Available | Now |
- Lease rate does not include utilities, property expenses or building services
5829 W Sam Houston Pky N - 1st Floor - 710
| Size | 3,644 SF |
| Term | Negotiable |
| Rental Rate | Upon Request |
| Space Use | Flex |
| Build-Out | - |
| Available | Now |
- Lease rate does not include utilities, property expenses or building services
5829 W Sam Houston Pky N - 1st Floor - 801
| Size | 6,500 SF |
| Term | Negotiable |
| Rental Rate | Upon Request |
| Space Use | Flex |
| Build-Out | Full Build-Out |
| Available | Now |
- 1 Drive Bay
5829 W Sam Houston Pky N - 1st Floor - 803
| Size | 3,000 SF |
| Term | Negotiable |
| Rental Rate | Upon Request |
| Space Use | Flex |
| Build-Out | Full Build-Out |
| Available | Now |
The space totals approximately 3,000 square feet, with a first-floor office of about 1,500 square feet and a second-floor mezzanine of roughly 1,500 square feet. It features an 18-foot clear height and is equipped with three-phase power, 480 volts, and 200 amps.
- Includes 1,500 SF of dedicated office space
- 1 Drive Bay
5829 W Sam Houston Pky N - 1st Floor - 808
| Size | 3,000 SF |
| Term | 1-7 Years |
| Rental Rate | Upon Request |
| Space Use | Industrial |
| Build-Out | - |
| Available | Now |
5829 W Sam Houston Pky N - 1st Floor - 910
| Size | 1,836 SF |
| Term | Negotiable |
| Rental Rate | Upon Request |
| Space Use | Flex |
| Build-Out | Partial Build-Out |
| Available | Now |
Mainly office space with a 990-square-foot first-floor office, a 613-square-foot second-floor office, and private restrooms.
- Includes 1,603 SF of dedicated office space
Select Tenants at This Property
- Floor
- Tenant Name
- Industry
- 1st
- AXYS Industrial Solutions
- Wholesaler
- 1st
- Texas Safety & Industrial
- Wholesaler
- 1st
- VIP Systems
- Professional, Scientific, and Technical Services
- 1st
- Wholesale Patio Design Store
- Wholesaler
Park Overview
Situated in Northwest Houston, Beltway 8 Business Park is an established flex-industrial campus at 5829 W Sam Houston Parkway N. The well-maintained brick buildings feature private suite entrances, office/showroom space, oversized front-loading roll-up doors, and insulated warehouses with generous clear heights. Perfectly positioned with frontage on W Sam Houston Parkway N/Beltway 8, businesses can take advantage of exceptional exposure with building signage visible to 133,596 vehicles each day. Beltway 8 Business Park is ideally located 1 mile from Brittmoore and W Little York Roads, home to local eateries, and 2 miles to Clay Road, with popular chain restaurants and multiple hotels. The amenity-rich area is highly convenient for employees, and a targeted industrial labor pool surrounds 5829 W Sam Houston Parkway N. The campus offers unmatched connectivity, with immediate access to Beltway 8, a point of ingress/egress at each building, and ample parking. Beltway 8 Business Park's strategic location affords easy access to air transportation: 23 miles to George Bush Intercontinental Airport and 32 miles to William P. Hobby Airport.
Park Brochure
About Northwest Inner Loop
The Northwest Inner Loop area is strategically located close to the 610 Loop urban core. It is also easily accessible by major highways such as I-10, U.S. 290, and Beltway 8, enhancing its appeal to companies seeking efficient distribution. Parts of Spring Branch inside the Northwest Inner Loop area, especially the southern and eastern portions, are also gentrifying quickly - bringing industrial tenants close to a diversified residential base with strengthening demographics.
The area is home to a wide range of manufacturing tenants serving industries including oil and gas, aerospace, consumer goods, grocers, food suppliers, heavy machinery and equipment manufacturers and distributors, and construction. Some of the largest industrial tenants in the area include H-E-B, Polytex Fibers, Euro-Mid, GeoSpace Technologies Corporation, and Quietflex. Because of the favorable location, there is also a significant logistics presence—especially for last-mile distribution.
Blue-collar talent is also abundant in and around the area, and technical colleges, like the School of Automotive Machinists & Technology, provide talent development opportunities.
Demographics
Regional Accessibility
Nearby Amenities
Hotels |
|
|---|---|
| Comfort Suites |
69 rooms
4 min drive
|
| Four Points by Sheraton |
157 rooms
5 min drive
|
| Residence Inn |
133 rooms
6 min drive
|
| Spark by Hilton |
59 rooms
5 min drive
|
| Holiday Inn |
113 rooms
5 min drive
|
Leasing Team
Robert LaCoure, Senior Director
Jill Nesloney, Director
Jill has helped companies achieve their real estate goals since 2009. Prior to joining Cushman & Wakefield, Jill was a Principal at Lee & Associates, and previously with the Project Leasing group at Griffin Partners (2012 – 2015), Leasing Associate with NAI Houston (2010 – 2012), and Retail Marketing and Leasing Associate with Yancy Hausman (2009 – 2010). She has experience in all submarkets of Houston and has handled transactions for a variety of business industries. Her primary objective for helping companies is to get them into a space that works well for their business layout as well as their bottom line. She does this while understanding how this transaction can benefit the Landlord’s financial objectives.
Jill has a proven track record of working diligently with owners, tenants, and asset managers to help them achieve their short and long-term leasing goals.
Bryce Adams, Senior Associate
Bryce Adams joined the Office Agency Leasing team at Cushman & Wakefield in 2023, where he specializes in Landlord Leasing. Previously he was at Lee & Associates – Houston, where he trained under the Landlord team to learn the ins and outs of the business. He grew up around commercial real estate, and prides himself on the financial aspect of CRE, and client service.
About the Owner
Other Properties in the GUPTA PARTNERS Portfolio
Presented by
Beltway 8 Business Park | Houston, TX 77041
Hmm, there seems to have been an error sending your message. Please try again.
Thanks! Your message was sent.


























































