Your email has been sent.
Centerpoint Plaza 5901 Priestly Dr 1,532 - 19,035 SF of 4-Star Office Space Available in Carlsbad, CA 92008



Highlights
- Located in the prestigious Carlsbad Research Center in the heart of Carlsbad
- Excellent access to Faraday Avenue, El Camino Real, College Avenue, and Palomar Airport Road
- State-of-the-art fitness center for tenant use
- Exquisite lobby and common area with high-end finishes and building materials imported from around the world
- Panoramic views of Carlsbad with third floor ocean views
- Outdoor lunch area, complete with lush landscaping and shaded tables for tenant use
All Available Spaces(4)
Display Rental Rate as
- Space
- Size
- Term
- Rental Rate
- Space Use
- Build-Out
- Available
Reception area, 14 private offices, open office area, multiple conference and workrooms, production room, storage/IT room and break area.
- Listed lease rate plus proportional share of electrical cost
- 14 Private Offices
- Reception Area
- Fully Built-Out as Standard Office
- 2 Conference Rooms
- Kitchen
- Listed lease rate plus proportional share of electrical cost
- 2 Private Offices
- Reception Area
- Fully Built-Out as Standard Office
- 1 Conference Room
- Kitchen
Reception area, 2 private offices, open office area, conference room and kitchen.
- Listed lease rate plus proportional share of electrical cost
- 2 Private Offices
- Reception Area
- Fully Built-Out as Standard Office
- 1 Conference Room
- Kitchen
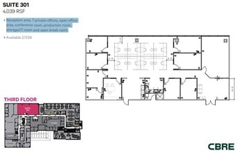
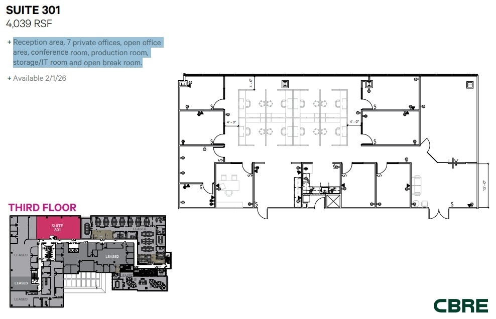
Reception area, 7 private offices, open office area, conference room, production room, storage/IT room and open break room.
- Listed lease rate plus proportional share of electrical cost
- Mostly Open Floor Plan Layout
- 1 Conference Room
- Space is in Excellent Condition
- Fully Built-Out as Standard Office
- 7 Private Offices
- 8 Workstations
- Reception Area
| Space | Size | Term | Rental Rate | Space Use | Build-Out | Available |
| 1st Floor, Ste 100 | 9,114 SF | Negotiable | $46.78 CAD/SF/YR $3.90 CAD/SF/MO $426,354 CAD/YR $35,530 CAD/MO | Office | Full Build-Out | 2026-08-01 |
| 1st Floor, Ste 130 | 4,350 SF | Negotiable | $46.78 CAD/SF/YR $3.90 CAD/SF/MO $203,494 CAD/YR $16,958 CAD/MO | Office | Full Build-Out | Now |
| 1st Floor, Ste 150 | 1,532 SF | Negotiable | $46.78 CAD/SF/YR $3.90 CAD/SF/MO $71,667 CAD/YR $5,972 CAD/MO | Office | Full Build-Out | Now |
| 3rd Floor, Ste 301 | 4,039 SF | Negotiable | $46.78 CAD/SF/YR $3.90 CAD/SF/MO $188,945 CAD/YR $15,745 CAD/MO | Office | Full Build-Out | Now |
1st Floor, Ste 100
| Size |
| 9,114 SF |
| Term |
| Negotiable |
| Rental Rate |
| $46.78 CAD/SF/YR $3.90 CAD/SF/MO $426,354 CAD/YR $35,530 CAD/MO |
| Space Use |
| Office |
| Build-Out |
| Full Build-Out |
| Available |
| 2026-08-01 |
1st Floor, Ste 130
| Size |
| 4,350 SF |
| Term |
| Negotiable |
| Rental Rate |
| $46.78 CAD/SF/YR $3.90 CAD/SF/MO $203,494 CAD/YR $16,958 CAD/MO |
| Space Use |
| Office |
| Build-Out |
| Full Build-Out |
| Available |
| Now |
1st Floor, Ste 150
| Size |
| 1,532 SF |
| Term |
| Negotiable |
| Rental Rate |
| $46.78 CAD/SF/YR $3.90 CAD/SF/MO $71,667 CAD/YR $5,972 CAD/MO |
| Space Use |
| Office |
| Build-Out |
| Full Build-Out |
| Available |
| Now |
3rd Floor, Ste 301
| Size |
| 4,039 SF |
| Term |
| Negotiable |
| Rental Rate |
| $46.78 CAD/SF/YR $3.90 CAD/SF/MO $188,945 CAD/YR $15,745 CAD/MO |
| Space Use |
| Office |
| Build-Out |
| Full Build-Out |
| Available |
| Now |
1st Floor, Ste 100
| Size | 9,114 SF |
| Term | Negotiable |
| Rental Rate | $46.78 CAD/SF/YR |
| Space Use | Office |
| Build-Out | Full Build-Out |
| Available | 2026-08-01 |
Reception area, 14 private offices, open office area, multiple conference and workrooms, production room, storage/IT room and break area.
- Listed lease rate plus proportional share of electrical cost
- Fully Built-Out as Standard Office
- 14 Private Offices
- 2 Conference Rooms
- Reception Area
- Kitchen
1st Floor, Ste 130
| Size | 4,350 SF |
| Term | Negotiable |
| Rental Rate | $46.78 CAD/SF/YR |
| Space Use | Office |
| Build-Out | Full Build-Out |
| Available | Now |
- Listed lease rate plus proportional share of electrical cost
- Fully Built-Out as Standard Office
- 2 Private Offices
- 1 Conference Room
- Reception Area
- Kitchen
1st Floor, Ste 150
| Size | 1,532 SF |
| Term | Negotiable |
| Rental Rate | $46.78 CAD/SF/YR |
| Space Use | Office |
| Build-Out | Full Build-Out |
| Available | Now |
Reception area, 2 private offices, open office area, conference room and kitchen.
- Listed lease rate plus proportional share of electrical cost
- Fully Built-Out as Standard Office
- 2 Private Offices
- 1 Conference Room
- Reception Area
- Kitchen
3rd Floor, Ste 301
| Size | 4,039 SF |
| Term | Negotiable |
| Rental Rate | $46.78 CAD/SF/YR |
| Space Use | Office |
| Build-Out | Full Build-Out |
| Available | Now |
Reception area, 7 private offices, open office area, conference room, production room, storage/IT room and open break room.
- Listed lease rate plus proportional share of electrical cost
- Fully Built-Out as Standard Office
- Mostly Open Floor Plan Layout
- 7 Private Offices
- 1 Conference Room
- 8 Workstations
- Space is in Excellent Condition
- Reception Area
Property Overview
- NEW: Outdoor lunch area, complete with lush landscaping and tables, umbrella, patio furniture and barbecue with outdoor cooking space for tenant and guest enjoyment - Centerpoint Plaza is a premiere 97,823 rentable square foot, 3-story; multi-tenant, Class A, steel-frame ENERGY STAR rated office building that reflects quality and class - Exquisite lobby and common area with high-end finishes and building materials imported from around the world - 4.0/1,000 RSF parking (Approx. 23% in secured, covered garage) with full-size parking spaces - Panoramic views of Carlsbad with third floor ocean views - State-of-the-art fitness center featuring a universal gym, free weights, cardio equipment and a flat panel television, as well as shower and locker facilities for tenant use - On-site property management, engineering and day porter - High-speed data access via fiber service by Time Warner - Beautiful common area including drought tolerant landscaping, recycled water irrigation and bio-swale - City of Carlsbad CM zoning - $5.00/SF moving/FF&E allowance* - Located in the prestigious Carlsbad Research Center in the heart of Carlsbad - Excellent access to Faraday Avenue, El Camino Real, College Avenue, and Palomar Airport Road *Based on a 5 year term, however Landlord will prorate one dollar ($1) per usable square foot, per year allowance
- Fitness Center
- Property Manager on Site
- Signage
- Car Charging Station
- Outdoor Seating
Property Facts
Presented by
Centerpoint Plaza | 5901 Priestly Dr
Hmm, there seems to have been an error sending your message. Please try again.
Thanks! Your message was sent.









