Your email has been sent.
Highlights
- Climate Controlled Warehouse
- Direct Access to Beltway 8 and Highway 290
- End-Cap with Frontage on Hempstead Hwy
Features
All Available Space(1)
Display Rental Rate as
- Space
- Size
- Term
- Rental Rate
- Space Use
- Build-Out
- Available
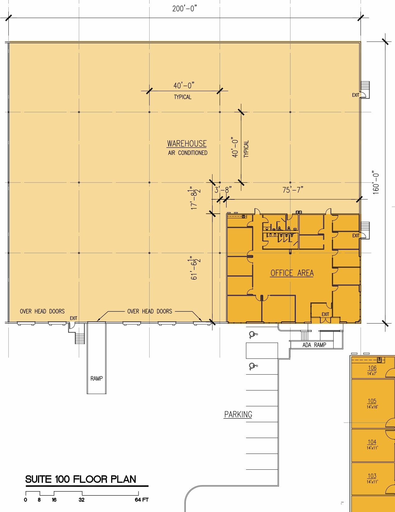
This 32,000 SF end-cap suite delivers a balanced office-to-warehouse layout, modern loading capabilities, and rare climate-controlled industrial space in one of Northwest Houston’s most accessible and high-demand submarkets.
- Includes 4,700 SF of dedicated office space
- 5 Loading Docks
- 1 Drive Bay
| Space | Size | Term | Rental Rate | Space Use | Build-Out | Available |
| 1st Floor | 32,000 SF | Negotiable | Upon Request Upon Request Upon Request Upon Request | Industrial | Full Build-Out | 2026-07-01 |
1st Floor
| Size |
| 32,000 SF |
| Term |
| Negotiable |
| Rental Rate |
| Upon Request Upon Request Upon Request Upon Request |
| Space Use |
| Industrial |
| Build-Out |
| Full Build-Out |
| Available |
| 2026-07-01 |
1st Floor
| Size | 32,000 SF |
| Term | Negotiable |
| Rental Rate | Upon Request |
| Space Use | Industrial |
| Build-Out | Full Build-Out |
| Available | 2026-07-01 |
This 32,000 SF end-cap suite delivers a balanced office-to-warehouse layout, modern loading capabilities, and rare climate-controlled industrial space in one of Northwest Houston’s most accessible and high-demand submarkets.
- Includes 4,700 SF of dedicated office space
- 1 Drive Bay
- 5 Loading Docks
Property Overview
Positioned with frontage along Hempstead Highway, the property provides exceptional distribution efficiency with immediate access to Beltway 8 and Highway 290, making it an ideal option for users seeking a strategic Northwest Houston location.
Distribution Facility Facts
Select Tenants
- Floor
- Tenant Name
- Industry
- 1st
- Dakota Premium Hardwoods
- Retailer
- 1st
- SiYi America
- Manufacturing
Presented by
5910 West by Northwest Blvd
Hmm, there seems to have been an error sending your message. Please try again.
Thanks! Your message was sent.







