Your email has been sent.
60 Westwood Ave 36 - 2,823 SF of Office Space Available in Waterbury, CT 06708



All Available Spaces(13)
Display Rental Rate as
- Space
- Size
- Term
- Rental Rate
- Space Use
- Build-Out
- Available
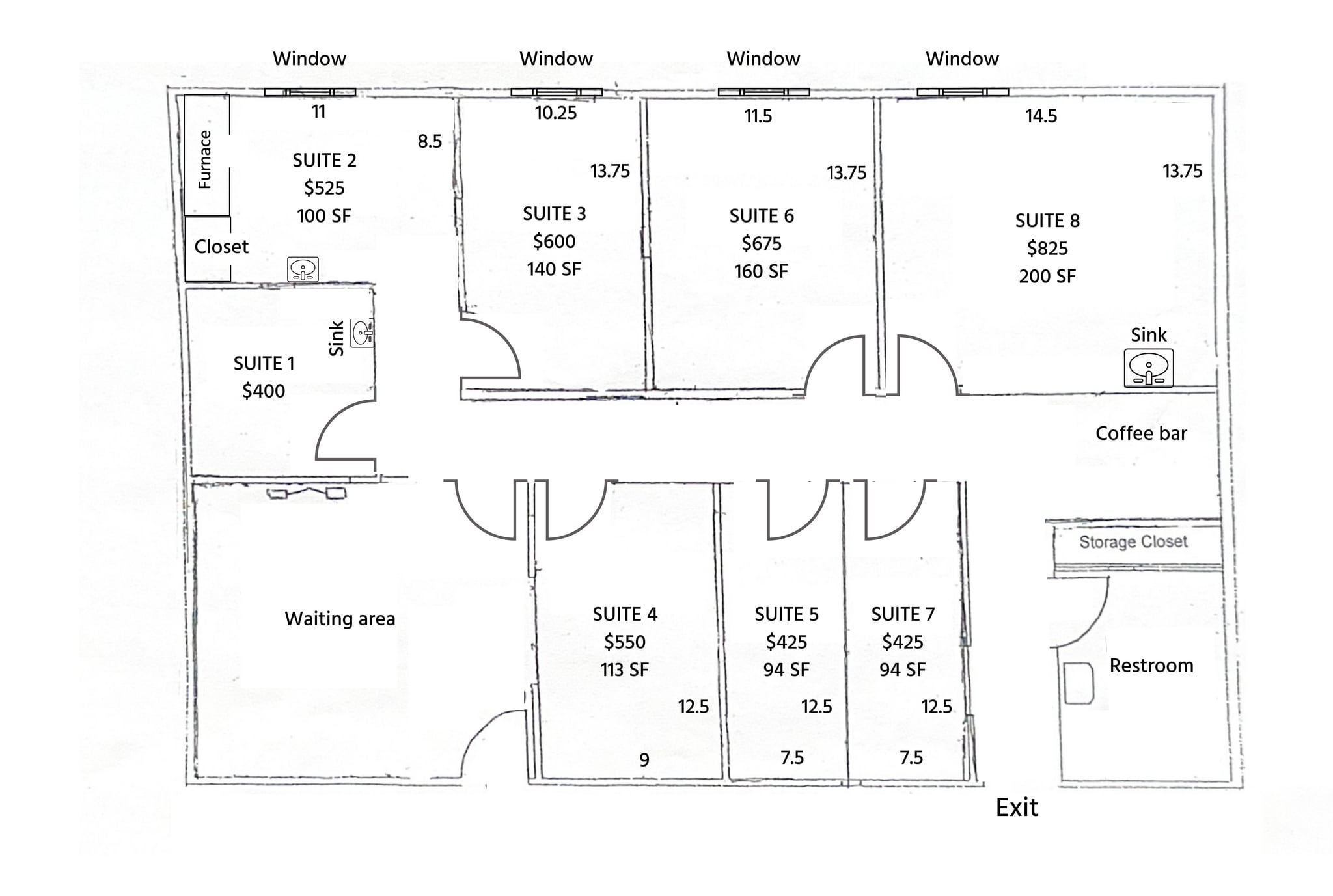
Beautifully Renovated Office Suite Near Waterbury Hospital Move-in ready suite featuring 8 private offices, a furnished guest lounge, kitchenette, and an updated ADA-compliant restroom. Three of the offices include in-suite hand sinks, ideal for medical, wellness, or professional use. The rental rate is all-inclusive, covering utilities, and common-area maintenance. Lease the entire suite or choose from individual private offices depending on your needs. Individual offices start at $425 per month. Available now. Contact us today to schedule a tour!
- Rate includes utilities, building services and property expenses
- 8 Private Offices
- Central Air and Heating
- Security System
- Drop Ceilings
- After Hours HVAC Available
- DDA Compliant
- Offices with hand sinks available
- Ample parking for tenants and guests
- 24/7 access
- Fully Built-Out as Standard Office
- Space is in Excellent Condition
- Wi-Fi Connectivity
- Closed Circuit Television Monitoring (CCTV)
- Natural Light
- Common Parts WC Facilities
- Wheelchair Accessible
- Flat rate rent - all utilities included
- Beautifully decorated common amenities
- Compatible tenant mix
$400/Month – Ideal Office for Beauty & Wellness Professionals Perfect space for an esthetician, lash tech, braider, or any professional seeking a cozy, affordable office with its own sink. Enjoy access to a beautiful, professional common waiting area for your clients and a break room for your convenience. Flat-rate rent with no hidden fees: all utilities, WiFi, and common-area maintenance/cleaning are included. The office and building have been fully renovated with fresh paint, new flooring/carpeting, and LED lighting. Additional features include: • 24/7 access • Ample parking for tenants and guests • ADA-compliant, wheelchair accessible • Digital locks and digital directory • Located in a highly desirable Waterbury area Schedule a tour today, this space won't last!
- Rate includes utilities, building services and property expenses
- Office intensive layout
- Central Air and Heating
- Drop Ceilings
- Common Parts WC Facilities
- Wheelchair Accessible
- Fresh paint and LED lighting
- Compatible tenant mix
- Hand sink in office
- Fully Built-Out as Standard Office
- Space is in Excellent Condition
- Wi-Fi Connectivity
- After Hours HVAC Available
- DDA Compliant
- Renovated: new flooring/carpeting
- 24/7 access, ample parking, keyless entry
- Flexible lease terms
$675 per month. Focus Spaces professional office available for lease. You will have access to a beautiful and professional common waiting area for your clients and a break room for you to have a snack. Perks: Flat rate rent - no hidden fees: all utilities, WiFi, maintenance and cleaning of common areas included. Completely renovated spaces w/ fresh paint, new flooring/carpeting, and LED lighting. 24/7 access. Ample parking for tenants and clients. ADA compliant - wheelchair accessible. Digital locks and intercom system. Digital directory and more. Desirable and well-located area of Waterbury, CT! Contact us today for a tour before they are gone!!!
- Rate includes utilities, building services and property expenses
- Office intensive layout
- Central Air and Heating
- High Ceilings
- Natural Light
- Common Parts WC Facilities
- Hardwood Floors
- Renovated: new flooring/carpeting
- 24/7 access, ample parking, keyless entry
- Flexible lease terms
- Fully Built-Out as Standard Office
- Space is in Excellent Condition
- Wi-Fi Connectivity
- Drop Ceilings
- After Hours HVAC Available
- DDA Compliant
- Wheelchair Accessible
- Fresh paint and LED lighting
- Compatible tenant mix
$550 per month. Focus Spaces professional office available for lease. You will have access to a beautiful and professional common waiting area for your clients and a break room for you to have a snack. Perks: Flat rate rent - no hidden fees: all utilities, WiFi, maintenance and cleaning of common areas included. Completely renovated spaces w/ fresh paint, new flooring/carpeting, and LED lighting. 24/7 access. Ample parking for tenants and clients. ADA compliant - wheelchair accessible. Digital locks, digital directory and more. Desirable and well-located area of Waterbury, CT! Contact us today for a tour before they are gone!!!
- Rate includes utilities, building services and property expenses
- Office intensive layout
- Central Air and Heating
- Fully Carpeted
- After Hours HVAC Available
- DDA Compliant
- Renovated: new flooring/carpeting
- 24/7 access, ample parking, keyless entry
- Flexible lease terms
- Fully Built-Out as Standard Office
- Space is in Excellent Condition
- Wi-Fi Connectivity
- Drop Ceilings
- Common Parts WC Facilities
- Wheelchair Accessible
- Fresh paint and LED lighting
- Compatible tenant mix
$1,200 per month. Focus Spaces professional office available for lease. Office suite with 2 private offices with in-suite hand sinks. You will have access to a beautiful and professional common waiting area for your clients and a break room for you to have a snack. Perks: Flat rate rent - no hidden fees: all utilities, WiFi, maintenance and cleaning of common areas included. Completely renovated spaces w/ fresh paint, new flooring/carpeting, and LED lighting. 24/7 access. Ample parking for tenants and clients. ADA compliant - wheelchair accessible. Digital locks, digital directory and more. Desirable and well-located area of Waterbury, CT! Contact us today for a tour before they are gone!!!
- Rate includes utilities, building services and property expenses
- Space is in Excellent Condition
- Wi-Fi Connectivity
- After Hours HVAC Available
- DDA Compliant
- 24/7 Access
- Compatible tenant mix
- Maintenance on call
- Fully Built-Out as Standard Office
- Central Air and Heating
- Drop Ceilings
- Common Parts WC Facilities
- Wheelchair Accessible
- Ample parking for tenants and guests
- Flat rate rent - no hidden fees
- Beautiful and renovated property
$2,000 per month. Focus Spaces professional office available for lease. Office suite with 4 private offices with in-suite hand sinks. You will have access to a beautiful and professional common waiting area for your clients and a break room for you to have a snack. Perks: Flat rate rent - no hidden fees: all utilities, WiFi, maintenance and cleaning of common areas included. Completely renovated spaces w/ fresh paint, new flooring/carpeting, and LED lighting. 24/7 access. Ample parking for tenants and clients. ADA compliant - wheelchair accessible. Digital locks, digital directory and more. Desirable and well-located area of Waterbury, CT! Contact us today for a tour before they are gone!!!
- Rate includes utilities, building services and property expenses
- Space is in Excellent Condition
- Wi-Fi Connectivity
- After Hours HVAC Available
- DDA Compliant
- 24/7 Access
- Compatible tenant mix
- Maintenance on call
- Fully Built-Out as Standard Office
- Central Air and Heating
- Drop Ceilings
- Common Parts WC Facilities
- Wheelchair Accessible
- Ample parking for tenants and guests
- Flat rate rent - no hidden fees
- Beautiful and renovated property
$150 per month. Very small office, suitable for one person. Focus Spaces professional office available for lease. You will have access to a beautiful and professional common waiting area for your clients and a break room for you to have a snack. Perks: Flat rate rent - no hidden fees: all utilities, WiFi, maintenance and cleaning of common areas included. Completely renovated spaces w/ fresh paint, new flooring/carpeting, and LED lighting. 24/7 access. Ample parking for tenants and clients. ADA compliant - wheelchair accessible. Digital locks, digital directory and more. Desirable and well-located area of Waterbury, CT! Contact us today for a tour before they are gone!!!
- Rate includes utilities, building services and property expenses
- Space is in Excellent Condition
- Wi-Fi Connectivity
- After Hours HVAC Available
- DDA Compliant
- 24/7 Access
- Compatible tenant mix
- Maintenance on call
- Fully Built-Out as Standard Office
- Central Air and Heating
- Drop Ceilings
- Common Parts WC Facilities
- Wheelchair Accessible
- Ample parking for tenants and guests
- Flat rate rent - no hidden fees
- Beautiful and renovated property
$650 per month. Focus Spaces professional office available for lease. Office suite with in-suite hand sink. You will have access to a beautiful and professional common waiting area for your clients and a break room for you to have a snack. Perks: Flat rate rent - no hidden fees: all utilities, WiFi, maintenance and cleaning of common areas included. Completely renovated spaces w/ fresh paint, new flooring/carpeting, and LED lighting. 24/7 access. Ample parking for tenants and clients. ADA compliant - wheelchair accessible. Digital locks, digital directory and more. Desirable and well-located area of Waterbury, CT! Contact us today for a tour before they are gone!!!
- Rate includes utilities, building services and property expenses
- Space is in Excellent Condition
- Wi-Fi Connectivity
- Natural Light
- Common Parts WC Facilities
- Wheelchair Accessible
- Ample parking for tenants and guests
- Flat rate rent - no hidden fees
- Beautiful and renovated property
- Fully Built-Out as Standard Office
- Central Air and Heating
- Drop Ceilings
- After Hours HVAC Available
- DDA Compliant
- 24/7 Access
- Compatible tenant mix
- Maintenance on call
$525 per month. Focus Spaces professional office available for lease. Office suite with in-suite hand sink. You will have access to a beautiful and professional common waiting area for your clients and a break room for you to have a snack. Perks: Flat rate rent - no hidden fees: all utilities, WiFi, maintenance and cleaning of common areas included. Completely renovated spaces w/ fresh paint, new flooring/carpeting, and LED lighting. 24/7 access. Ample parking for tenants and clients. ADA compliant - wheelchair accessible. Digital locks, digital directory and more. Desirable and well-located area of Waterbury, CT! Contact us today for a tour before they are gone!!!
- Rate includes utilities, building services and property expenses
- Space is in Excellent Condition
- Wi-Fi Connectivity
- After Hours HVAC Available
- DDA Compliant
- 24/7 Access
- Compatible tenant mix
- Maintenance on call
- Fully Built-Out as Standard Office
- Central Air and Heating
- Drop Ceilings
- Common Parts WC Facilities
- Wheelchair Accessible
- Ample parking for tenants and guests
- Flat rate rent - no hidden fees
- Beautiful and renovated property
$575 per month. Focus Spaces professional office available for lease. Office suite with in-suite hand sink. You will have access to a beautiful and professional common waiting area for your clients and a break room for you to have a snack. Perks: Flat rate rent - no hidden fees: all utilities, WiFi, maintenance and cleaning of common areas included. Completely renovated spaces w/ fresh paint, new flooring/carpeting, and LED lighting. 24/7 access. Ample parking for tenants and clients. ADA compliant - wheelchair accessible. Digital locks, digital directory and more. Desirable and well-located area of Waterbury, CT! Contact us today for a tour before they are gone!!!
- Rate includes utilities, building services and property expenses
- Space is in Excellent Condition
- Wi-Fi Connectivity
- Natural Light
- Common Parts WC Facilities
- Wheelchair Accessible
- Ample parking for tenants and guests
- Flat rate rent - no hidden fees
- Beautiful and renovated property
- Fully Built-Out as Standard Office
- Central Air and Heating
- Drop Ceilings
- After Hours HVAC Available
- DDA Compliant
- 24/7 Access
- Compatible tenant mix
- Maintenance on call
$650 per month. Focus Spaces professional office available for lease. You will have access to a beautiful and professional common waiting area for your clients and a break room for you to have a snack. Perks: Flat rate rent - no hidden fees: all utilities, WiFi, maintenance and cleaning of common areas included. Completely renovated spaces w/ fresh paint, new flooring/carpeting, and LED lighting. 24/7 access. Ample parking for tenants and clients. ADA compliant - wheelchair accessible. Digital locks, digital directory and more. Desirable and well-located area of Waterbury, CT! Contact us today for a tour before they are gone!!!
- Rate includes utilities, building services and property expenses
- Space is in Excellent Condition
- Wi-Fi Connectivity
- Natural Light
- Common Parts WC Facilities
- Wheelchair Accessible
- Ample parking for tenants and guests
- Flat rate rent - no hidden fees
- Beautiful and renovated property
- Fully Built-Out as Standard Office
- Central Air and Heating
- Drop Ceilings
- After Hours HVAC Available
- DDA Compliant
- 24/7 Access
- Compatible tenant mix
- Maintenance on call
$450 per month. Focus Spaces professional office available for lease. You will have access to a beautiful and professional common waiting area for your clients and a break room for you to have a snack. Perks: Flat rate rent - no hidden fees: all utilities, WiFi, maintenance and cleaning of common areas included. Completely renovated spaces w/ fresh paint, new flooring/carpeting, and LED lighting. 24/7 access. Ample parking for tenants and clients. ADA compliant - wheelchair accessible. Digital locks, digital directory and more. Desirable and well-located area of Waterbury, CT! Contact us today for a tour before they are gone!!!
- Rate includes utilities, building services and property expenses
- Space is in Excellent Condition
- Wi-Fi Connectivity
- Natural Light
- Common Parts WC Facilities
- Wheelchair Accessible
- Ample parking for tenants and guests
- Flat rate rent - no hidden fees
- Beautiful and renovated property
- Fully Built-Out as Standard Office
- Central Air and Heating
- Drop Ceilings
- After Hours HVAC Available
- DDA Compliant
- 24/7 Access
- Compatible tenant mix
- Maintenance on call
$500 per month. Focus Spaces professional office available for lease. You will have access to a beautiful and professional common waiting area for your clients and a break room for you to have a snack. Perks: Flat rate rent - no hidden fees: all utilities, WiFi, maintenance and cleaning of common areas included. Completely renovated spaces w/ fresh paint, new flooring/carpeting, and LED lighting. 24/7 access. Ample parking for tenants and clients. ADA compliant - wheelchair accessible. Digital locks, digital directory and more. Desirable and well-located area of Waterbury, CT! Contact us today for a tour before they are gone!!!
- Rate includes utilities, building services and property expenses
- Space is in Excellent Condition
- Wi-Fi Connectivity
- Natural Light
- Common Parts WC Facilities
- Wheelchair Accessible
- Ample parking for tenants and guests
- Flat rate rent - no hidden fees
- Beautiful and renovated property
- Fully Built-Out as Standard Office
- Central Air and Heating
- Drop Ceilings
- After Hours HVAC Available
- DDA Compliant
- 24/7 Access
- Compatible tenant mix
- Maintenance on call
| Space | Size | Term | Rental Rate | Space Use | Build-Out | Available |
| 1st Floor, Ste 102 | 100-1,330 SF | Negotiable | Upon Request Upon Request Upon Request Upon Request | Office | Full Build-Out | Now |
| 1st Floor, Ste 102A | 100 SF | Negotiable | Upon Request Upon Request Upon Request Upon Request | Office | Full Build-Out | Now |
| 1st Floor, Ste 102D | 160 SF | Negotiable | Upon Request Upon Request Upon Request Upon Request | Office | Full Build-Out | Now |
| 1st Floor, Ste 102H | 113 SF | Negotiable | Upon Request Upon Request Upon Request Upon Request | Office | Full Build-Out | Now |
| 1st Floor, Ste 104 C & D | 216 SF | 1-10 Years | Upon Request Upon Request Upon Request Upon Request | Office | Full Build-Out | Now |
| 1st Floor, Ste 104 E-H | 260 SF | 1-10 Years | Upon Request Upon Request Upon Request Upon Request | Office | Full Build-Out | Now |
| 1st Floor, Ste 104B | 36 SF | 1-10 Years | Upon Request Upon Request Upon Request Upon Request | Office | Full Build-Out | Now |
| 1st Floor, Ste 104I | 135 SF | 1-10 Years | Upon Request Upon Request Upon Request Upon Request | Office | Full Build-Out | Now |
| 1st Floor, Ste 104J | 86 SF | 1-10 Years | Upon Request Upon Request Upon Request Upon Request | Office | Full Build-Out | Now |
| 1st Floor, Ste 104K | 88 SF | 1-10 Years | Upon Request Upon Request Upon Request Upon Request | Office | Full Build-Out | Now |
| 1st Floor, Ste 104L | 107 SF | 1-10 Years | Upon Request Upon Request Upon Request Upon Request | Office | Full Build-Out | Now |
| 1st Floor, Ste 104M | 92 SF | 1-10 Years | Upon Request Upon Request Upon Request Upon Request | Office | Full Build-Out | Now |
| 1st Floor, Ste 104O | 100 SF | 1-10 Years | Upon Request Upon Request Upon Request Upon Request | Office | Full Build-Out | Now |
1st Floor, Ste 102
| Size |
| 100-1,330 SF |
| Term |
| Negotiable |
| Rental Rate |
| Upon Request Upon Request Upon Request Upon Request |
| Space Use |
| Office |
| Build-Out |
| Full Build-Out |
| Available |
| Now |
1st Floor, Ste 102A
| Size |
| 100 SF |
| Term |
| Negotiable |
| Rental Rate |
| Upon Request Upon Request Upon Request Upon Request |
| Space Use |
| Office |
| Build-Out |
| Full Build-Out |
| Available |
| Now |
1st Floor, Ste 102D
| Size |
| 160 SF |
| Term |
| Negotiable |
| Rental Rate |
| Upon Request Upon Request Upon Request Upon Request |
| Space Use |
| Office |
| Build-Out |
| Full Build-Out |
| Available |
| Now |
1st Floor, Ste 102H
| Size |
| 113 SF |
| Term |
| Negotiable |
| Rental Rate |
| Upon Request Upon Request Upon Request Upon Request |
| Space Use |
| Office |
| Build-Out |
| Full Build-Out |
| Available |
| Now |
1st Floor, Ste 104 C & D
| Size |
| 216 SF |
| Term |
| 1-10 Years |
| Rental Rate |
| Upon Request Upon Request Upon Request Upon Request |
| Space Use |
| Office |
| Build-Out |
| Full Build-Out |
| Available |
| Now |
1st Floor, Ste 104 E-H
| Size |
| 260 SF |
| Term |
| 1-10 Years |
| Rental Rate |
| Upon Request Upon Request Upon Request Upon Request |
| Space Use |
| Office |
| Build-Out |
| Full Build-Out |
| Available |
| Now |
1st Floor, Ste 104B
| Size |
| 36 SF |
| Term |
| 1-10 Years |
| Rental Rate |
| Upon Request Upon Request Upon Request Upon Request |
| Space Use |
| Office |
| Build-Out |
| Full Build-Out |
| Available |
| Now |
1st Floor, Ste 104I
| Size |
| 135 SF |
| Term |
| 1-10 Years |
| Rental Rate |
| Upon Request Upon Request Upon Request Upon Request |
| Space Use |
| Office |
| Build-Out |
| Full Build-Out |
| Available |
| Now |
1st Floor, Ste 104J
| Size |
| 86 SF |
| Term |
| 1-10 Years |
| Rental Rate |
| Upon Request Upon Request Upon Request Upon Request |
| Space Use |
| Office |
| Build-Out |
| Full Build-Out |
| Available |
| Now |
1st Floor, Ste 104K
| Size |
| 88 SF |
| Term |
| 1-10 Years |
| Rental Rate |
| Upon Request Upon Request Upon Request Upon Request |
| Space Use |
| Office |
| Build-Out |
| Full Build-Out |
| Available |
| Now |
1st Floor, Ste 104L
| Size |
| 107 SF |
| Term |
| 1-10 Years |
| Rental Rate |
| Upon Request Upon Request Upon Request Upon Request |
| Space Use |
| Office |
| Build-Out |
| Full Build-Out |
| Available |
| Now |
1st Floor, Ste 104M
| Size |
| 92 SF |
| Term |
| 1-10 Years |
| Rental Rate |
| Upon Request Upon Request Upon Request Upon Request |
| Space Use |
| Office |
| Build-Out |
| Full Build-Out |
| Available |
| Now |
1st Floor, Ste 104O
| Size |
| 100 SF |
| Term |
| 1-10 Years |
| Rental Rate |
| Upon Request Upon Request Upon Request Upon Request |
| Space Use |
| Office |
| Build-Out |
| Full Build-Out |
| Available |
| Now |
1st Floor, Ste 102
| Size | 100-1,330 SF |
| Term | Negotiable |
| Rental Rate | Upon Request |
| Space Use | Office |
| Build-Out | Full Build-Out |
| Available | Now |
Beautifully Renovated Office Suite Near Waterbury Hospital Move-in ready suite featuring 8 private offices, a furnished guest lounge, kitchenette, and an updated ADA-compliant restroom. Three of the offices include in-suite hand sinks, ideal for medical, wellness, or professional use. The rental rate is all-inclusive, covering utilities, and common-area maintenance. Lease the entire suite or choose from individual private offices depending on your needs. Individual offices start at $425 per month. Available now. Contact us today to schedule a tour!
- Rate includes utilities, building services and property expenses
- Fully Built-Out as Standard Office
- 8 Private Offices
- Space is in Excellent Condition
- Central Air and Heating
- Wi-Fi Connectivity
- Security System
- Closed Circuit Television Monitoring (CCTV)
- Drop Ceilings
- Natural Light
- After Hours HVAC Available
- Common Parts WC Facilities
- DDA Compliant
- Wheelchair Accessible
- Offices with hand sinks available
- Flat rate rent - all utilities included
- Ample parking for tenants and guests
- Beautifully decorated common amenities
- 24/7 access
- Compatible tenant mix
1st Floor, Ste 102A
| Size | 100 SF |
| Term | Negotiable |
| Rental Rate | Upon Request |
| Space Use | Office |
| Build-Out | Full Build-Out |
| Available | Now |
$400/Month – Ideal Office for Beauty & Wellness Professionals Perfect space for an esthetician, lash tech, braider, or any professional seeking a cozy, affordable office with its own sink. Enjoy access to a beautiful, professional common waiting area for your clients and a break room for your convenience. Flat-rate rent with no hidden fees: all utilities, WiFi, and common-area maintenance/cleaning are included. The office and building have been fully renovated with fresh paint, new flooring/carpeting, and LED lighting. Additional features include: • 24/7 access • Ample parking for tenants and guests • ADA-compliant, wheelchair accessible • Digital locks and digital directory • Located in a highly desirable Waterbury area Schedule a tour today, this space won't last!
- Rate includes utilities, building services and property expenses
- Fully Built-Out as Standard Office
- Office intensive layout
- Space is in Excellent Condition
- Central Air and Heating
- Wi-Fi Connectivity
- Drop Ceilings
- After Hours HVAC Available
- Common Parts WC Facilities
- DDA Compliant
- Wheelchair Accessible
- Renovated: new flooring/carpeting
- Fresh paint and LED lighting
- 24/7 access, ample parking, keyless entry
- Compatible tenant mix
- Flexible lease terms
- Hand sink in office
1st Floor, Ste 102D
| Size | 160 SF |
| Term | Negotiable |
| Rental Rate | Upon Request |
| Space Use | Office |
| Build-Out | Full Build-Out |
| Available | Now |
$675 per month. Focus Spaces professional office available for lease. You will have access to a beautiful and professional common waiting area for your clients and a break room for you to have a snack. Perks: Flat rate rent - no hidden fees: all utilities, WiFi, maintenance and cleaning of common areas included. Completely renovated spaces w/ fresh paint, new flooring/carpeting, and LED lighting. 24/7 access. Ample parking for tenants and clients. ADA compliant - wheelchair accessible. Digital locks and intercom system. Digital directory and more. Desirable and well-located area of Waterbury, CT! Contact us today for a tour before they are gone!!!
- Rate includes utilities, building services and property expenses
- Fully Built-Out as Standard Office
- Office intensive layout
- Space is in Excellent Condition
- Central Air and Heating
- Wi-Fi Connectivity
- High Ceilings
- Drop Ceilings
- Natural Light
- After Hours HVAC Available
- Common Parts WC Facilities
- DDA Compliant
- Hardwood Floors
- Wheelchair Accessible
- Renovated: new flooring/carpeting
- Fresh paint and LED lighting
- 24/7 access, ample parking, keyless entry
- Compatible tenant mix
- Flexible lease terms
1st Floor, Ste 102H
| Size | 113 SF |
| Term | Negotiable |
| Rental Rate | Upon Request |
| Space Use | Office |
| Build-Out | Full Build-Out |
| Available | Now |
$550 per month. Focus Spaces professional office available for lease. You will have access to a beautiful and professional common waiting area for your clients and a break room for you to have a snack. Perks: Flat rate rent - no hidden fees: all utilities, WiFi, maintenance and cleaning of common areas included. Completely renovated spaces w/ fresh paint, new flooring/carpeting, and LED lighting. 24/7 access. Ample parking for tenants and clients. ADA compliant - wheelchair accessible. Digital locks, digital directory and more. Desirable and well-located area of Waterbury, CT! Contact us today for a tour before they are gone!!!
- Rate includes utilities, building services and property expenses
- Fully Built-Out as Standard Office
- Office intensive layout
- Space is in Excellent Condition
- Central Air and Heating
- Wi-Fi Connectivity
- Fully Carpeted
- Drop Ceilings
- After Hours HVAC Available
- Common Parts WC Facilities
- DDA Compliant
- Wheelchair Accessible
- Renovated: new flooring/carpeting
- Fresh paint and LED lighting
- 24/7 access, ample parking, keyless entry
- Compatible tenant mix
- Flexible lease terms
1st Floor, Ste 104 C & D
| Size | 216 SF |
| Term | 1-10 Years |
| Rental Rate | Upon Request |
| Space Use | Office |
| Build-Out | Full Build-Out |
| Available | Now |
$1,200 per month. Focus Spaces professional office available for lease. Office suite with 2 private offices with in-suite hand sinks. You will have access to a beautiful and professional common waiting area for your clients and a break room for you to have a snack. Perks: Flat rate rent - no hidden fees: all utilities, WiFi, maintenance and cleaning of common areas included. Completely renovated spaces w/ fresh paint, new flooring/carpeting, and LED lighting. 24/7 access. Ample parking for tenants and clients. ADA compliant - wheelchair accessible. Digital locks, digital directory and more. Desirable and well-located area of Waterbury, CT! Contact us today for a tour before they are gone!!!
- Rate includes utilities, building services and property expenses
- Fully Built-Out as Standard Office
- Space is in Excellent Condition
- Central Air and Heating
- Wi-Fi Connectivity
- Drop Ceilings
- After Hours HVAC Available
- Common Parts WC Facilities
- DDA Compliant
- Wheelchair Accessible
- 24/7 Access
- Ample parking for tenants and guests
- Compatible tenant mix
- Flat rate rent - no hidden fees
- Maintenance on call
- Beautiful and renovated property
1st Floor, Ste 104 E-H
| Size | 260 SF |
| Term | 1-10 Years |
| Rental Rate | Upon Request |
| Space Use | Office |
| Build-Out | Full Build-Out |
| Available | Now |
$2,000 per month. Focus Spaces professional office available for lease. Office suite with 4 private offices with in-suite hand sinks. You will have access to a beautiful and professional common waiting area for your clients and a break room for you to have a snack. Perks: Flat rate rent - no hidden fees: all utilities, WiFi, maintenance and cleaning of common areas included. Completely renovated spaces w/ fresh paint, new flooring/carpeting, and LED lighting. 24/7 access. Ample parking for tenants and clients. ADA compliant - wheelchair accessible. Digital locks, digital directory and more. Desirable and well-located area of Waterbury, CT! Contact us today for a tour before they are gone!!!
- Rate includes utilities, building services and property expenses
- Fully Built-Out as Standard Office
- Space is in Excellent Condition
- Central Air and Heating
- Wi-Fi Connectivity
- Drop Ceilings
- After Hours HVAC Available
- Common Parts WC Facilities
- DDA Compliant
- Wheelchair Accessible
- 24/7 Access
- Ample parking for tenants and guests
- Compatible tenant mix
- Flat rate rent - no hidden fees
- Maintenance on call
- Beautiful and renovated property
1st Floor, Ste 104B
| Size | 36 SF |
| Term | 1-10 Years |
| Rental Rate | Upon Request |
| Space Use | Office |
| Build-Out | Full Build-Out |
| Available | Now |
$150 per month. Very small office, suitable for one person. Focus Spaces professional office available for lease. You will have access to a beautiful and professional common waiting area for your clients and a break room for you to have a snack. Perks: Flat rate rent - no hidden fees: all utilities, WiFi, maintenance and cleaning of common areas included. Completely renovated spaces w/ fresh paint, new flooring/carpeting, and LED lighting. 24/7 access. Ample parking for tenants and clients. ADA compliant - wheelchair accessible. Digital locks, digital directory and more. Desirable and well-located area of Waterbury, CT! Contact us today for a tour before they are gone!!!
- Rate includes utilities, building services and property expenses
- Fully Built-Out as Standard Office
- Space is in Excellent Condition
- Central Air and Heating
- Wi-Fi Connectivity
- Drop Ceilings
- After Hours HVAC Available
- Common Parts WC Facilities
- DDA Compliant
- Wheelchair Accessible
- 24/7 Access
- Ample parking for tenants and guests
- Compatible tenant mix
- Flat rate rent - no hidden fees
- Maintenance on call
- Beautiful and renovated property
1st Floor, Ste 104I
| Size | 135 SF |
| Term | 1-10 Years |
| Rental Rate | Upon Request |
| Space Use | Office |
| Build-Out | Full Build-Out |
| Available | Now |
$650 per month. Focus Spaces professional office available for lease. Office suite with in-suite hand sink. You will have access to a beautiful and professional common waiting area for your clients and a break room for you to have a snack. Perks: Flat rate rent - no hidden fees: all utilities, WiFi, maintenance and cleaning of common areas included. Completely renovated spaces w/ fresh paint, new flooring/carpeting, and LED lighting. 24/7 access. Ample parking for tenants and clients. ADA compliant - wheelchair accessible. Digital locks, digital directory and more. Desirable and well-located area of Waterbury, CT! Contact us today for a tour before they are gone!!!
- Rate includes utilities, building services and property expenses
- Fully Built-Out as Standard Office
- Space is in Excellent Condition
- Central Air and Heating
- Wi-Fi Connectivity
- Drop Ceilings
- Natural Light
- After Hours HVAC Available
- Common Parts WC Facilities
- DDA Compliant
- Wheelchair Accessible
- 24/7 Access
- Ample parking for tenants and guests
- Compatible tenant mix
- Flat rate rent - no hidden fees
- Maintenance on call
- Beautiful and renovated property
1st Floor, Ste 104J
| Size | 86 SF |
| Term | 1-10 Years |
| Rental Rate | Upon Request |
| Space Use | Office |
| Build-Out | Full Build-Out |
| Available | Now |
$525 per month. Focus Spaces professional office available for lease. Office suite with in-suite hand sink. You will have access to a beautiful and professional common waiting area for your clients and a break room for you to have a snack. Perks: Flat rate rent - no hidden fees: all utilities, WiFi, maintenance and cleaning of common areas included. Completely renovated spaces w/ fresh paint, new flooring/carpeting, and LED lighting. 24/7 access. Ample parking for tenants and clients. ADA compliant - wheelchair accessible. Digital locks, digital directory and more. Desirable and well-located area of Waterbury, CT! Contact us today for a tour before they are gone!!!
- Rate includes utilities, building services and property expenses
- Fully Built-Out as Standard Office
- Space is in Excellent Condition
- Central Air and Heating
- Wi-Fi Connectivity
- Drop Ceilings
- After Hours HVAC Available
- Common Parts WC Facilities
- DDA Compliant
- Wheelchair Accessible
- 24/7 Access
- Ample parking for tenants and guests
- Compatible tenant mix
- Flat rate rent - no hidden fees
- Maintenance on call
- Beautiful and renovated property
1st Floor, Ste 104K
| Size | 88 SF |
| Term | 1-10 Years |
| Rental Rate | Upon Request |
| Space Use | Office |
| Build-Out | Full Build-Out |
| Available | Now |
$575 per month. Focus Spaces professional office available for lease. Office suite with in-suite hand sink. You will have access to a beautiful and professional common waiting area for your clients and a break room for you to have a snack. Perks: Flat rate rent - no hidden fees: all utilities, WiFi, maintenance and cleaning of common areas included. Completely renovated spaces w/ fresh paint, new flooring/carpeting, and LED lighting. 24/7 access. Ample parking for tenants and clients. ADA compliant - wheelchair accessible. Digital locks, digital directory and more. Desirable and well-located area of Waterbury, CT! Contact us today for a tour before they are gone!!!
- Rate includes utilities, building services and property expenses
- Fully Built-Out as Standard Office
- Space is in Excellent Condition
- Central Air and Heating
- Wi-Fi Connectivity
- Drop Ceilings
- Natural Light
- After Hours HVAC Available
- Common Parts WC Facilities
- DDA Compliant
- Wheelchair Accessible
- 24/7 Access
- Ample parking for tenants and guests
- Compatible tenant mix
- Flat rate rent - no hidden fees
- Maintenance on call
- Beautiful and renovated property
1st Floor, Ste 104L
| Size | 107 SF |
| Term | 1-10 Years |
| Rental Rate | Upon Request |
| Space Use | Office |
| Build-Out | Full Build-Out |
| Available | Now |
$650 per month. Focus Spaces professional office available for lease. You will have access to a beautiful and professional common waiting area for your clients and a break room for you to have a snack. Perks: Flat rate rent - no hidden fees: all utilities, WiFi, maintenance and cleaning of common areas included. Completely renovated spaces w/ fresh paint, new flooring/carpeting, and LED lighting. 24/7 access. Ample parking for tenants and clients. ADA compliant - wheelchair accessible. Digital locks, digital directory and more. Desirable and well-located area of Waterbury, CT! Contact us today for a tour before they are gone!!!
- Rate includes utilities, building services and property expenses
- Fully Built-Out as Standard Office
- Space is in Excellent Condition
- Central Air and Heating
- Wi-Fi Connectivity
- Drop Ceilings
- Natural Light
- After Hours HVAC Available
- Common Parts WC Facilities
- DDA Compliant
- Wheelchair Accessible
- 24/7 Access
- Ample parking for tenants and guests
- Compatible tenant mix
- Flat rate rent - no hidden fees
- Maintenance on call
- Beautiful and renovated property
1st Floor, Ste 104M
| Size | 92 SF |
| Term | 1-10 Years |
| Rental Rate | Upon Request |
| Space Use | Office |
| Build-Out | Full Build-Out |
| Available | Now |
$450 per month. Focus Spaces professional office available for lease. You will have access to a beautiful and professional common waiting area for your clients and a break room for you to have a snack. Perks: Flat rate rent - no hidden fees: all utilities, WiFi, maintenance and cleaning of common areas included. Completely renovated spaces w/ fresh paint, new flooring/carpeting, and LED lighting. 24/7 access. Ample parking for tenants and clients. ADA compliant - wheelchair accessible. Digital locks, digital directory and more. Desirable and well-located area of Waterbury, CT! Contact us today for a tour before they are gone!!!
- Rate includes utilities, building services and property expenses
- Fully Built-Out as Standard Office
- Space is in Excellent Condition
- Central Air and Heating
- Wi-Fi Connectivity
- Drop Ceilings
- Natural Light
- After Hours HVAC Available
- Common Parts WC Facilities
- DDA Compliant
- Wheelchair Accessible
- 24/7 Access
- Ample parking for tenants and guests
- Compatible tenant mix
- Flat rate rent - no hidden fees
- Maintenance on call
- Beautiful and renovated property
1st Floor, Ste 104O
| Size | 100 SF |
| Term | 1-10 Years |
| Rental Rate | Upon Request |
| Space Use | Office |
| Build-Out | Full Build-Out |
| Available | Now |
$500 per month. Focus Spaces professional office available for lease. You will have access to a beautiful and professional common waiting area for your clients and a break room for you to have a snack. Perks: Flat rate rent - no hidden fees: all utilities, WiFi, maintenance and cleaning of common areas included. Completely renovated spaces w/ fresh paint, new flooring/carpeting, and LED lighting. 24/7 access. Ample parking for tenants and clients. ADA compliant - wheelchair accessible. Digital locks, digital directory and more. Desirable and well-located area of Waterbury, CT! Contact us today for a tour before they are gone!!!
- Rate includes utilities, building services and property expenses
- Fully Built-Out as Standard Office
- Space is in Excellent Condition
- Central Air and Heating
- Wi-Fi Connectivity
- Drop Ceilings
- Natural Light
- After Hours HVAC Available
- Common Parts WC Facilities
- DDA Compliant
- Wheelchair Accessible
- 24/7 Access
- Ample parking for tenants and guests
- Compatible tenant mix
- Flat rate rent - no hidden fees
- Maintenance on call
- Beautiful and renovated property
Property Overview
Located in a modern, elevator-equipped three-story office building, this versatile condominium unit offers approximately 4,106 SF of turnkey space ideally suited for medical or professional office users. Key features include: Strategic location in the Bunker Hill / West Side area of Waterbury with excellent access and visibility. Dedicated on-site parking with ample capacity (the full building offers roughly 140 parking spaces). Dedicated reception and waiting area, high-end interior finishes and build-out configured for professional or healthcare use. HVAC (central air/heat) and building class B quality in a professionally managed environment. Building size: approximately 29,912 SF on a 2.89-acre lot, built in 1987, zoned CO (Commercial Office). Whether you are expanding a medical practice (dental, specialists, general practice) or seeking an owner-user investment in a core professional office setting, this property offers flexibility, immediate access, and professional presence.
- 24 Hour Access
- Wheelchair Accessible
- Air Conditioning
Property Facts
Select Tenants
- Floor
- Tenant Name
- Industry
- 1st
- Center For Women's Health
- Health Care and Social Assistance
- 1st
- CT Sinus Center
- Health Care and Social Assistance
- 2nd
- Northeast Orthopedic
- Health Care and Social Assistance
- 2nd
- Periodontology
- Health Care and Social Assistance
- 2nd
- Perspectives Center for Care
- Health Care and Social Assistance
- 2nd
- Physicians For Womens Health, Llc
- Health Care and Social Assistance
- 1st
- Psych Support
- Health Care and Social Assistance
- 1st
- Westwood Ear Nose & Throat
- -
- 2nd
- Women Center-Pelvic Surgery
- Health Care and Social Assistance
- 2nd
- Women's Center For Inconti
- Health Care and Social Assistance
Presented by
60 Westwood Ave
Hmm, there seems to have been an error sending your message. Please try again.
Thanks! Your message was sent.




































