Your email has been sent.
Park Highlights
- Duplin County NC Industrial Center: 700,000 SF / 54 Acres.
- Walmart Supercenter 1.5 miles.
- Located in Foreign-Trade Zone #214 in Southeastern North Carolina (SENC).
Park Facts
| Total Space Available | 320,100 SF | Park Type | Industrial Park |
| Total Space Available | 320,100 SF |
| Park Type | Industrial Park |
All Available Spaces(10)
Display Rental Rate as
- Space
- Size
- Term
- Rental Rate
- Space Use
- Condition
- Available
D6-A Warehouse 15 ceiling height 54 Acre Duplin County Industrial Center For Lease Warehouse, Distribution, Manufacturing, Lay Down Yards, Office 3 Miles and 2 Truck Turns from Interstate 40 3 Phase Heavy Power available54 Two-thirds of the U.S. population is within a day’s trucking distance of Duplin County ( https://www.duplinedc.com/ ) Located in Foreign-Trade Zone #214 in Southeastern North Carolina (SENC) Located in HUB Zone 18 to 30 foot ceiling heights 16+ dock high doors Population: 250 Mile Radius: 18,896,451 / 50 Mile Radius: 993,533 CSX Railroad bisects Duplin County ILM International Airport Wilmington NC 39 miles RDU International Raleigh NC 100 miles NC Global Transpark 56 Miles Interstate I-95 Benson NC 58 miles Albert J. Ellis Airport Jacksonville NC 28 miles Camp Lejeune MCAS, Jacksonville NC 45 miles Fort Bragg US Army, Fayetteville NC 67 miles Seymour Johnson AFB, Goldsboro NC 55 miles Port of Wilmington 44 miles Interstate 40 Exit 390 NC Hwy 117 3.5 miles Interstate 40 Exit 385 NC Hwy 41 3 miles Exit Walmart Supercenter 1.5 miles
- Listed rate may not include certain utilities, building services and property expenses
- 2 Drive Ins
54 Acre Duplin County Industrial Center For Lease Warehouse, Distribution, Manufacturing, Lay Down Yards, Office 3 Miles and 2 Truck Turns from Interstate 40 3 Phase Heavy Power available54 Two-thirds of the U.S. population is within a day’s trucking distance of Duplin County ( https://www.duplinedc.com/ ) Located in Foreign-Trade Zone #214 in Southeastern North Carolina (SENC) Located in HUB Zone 18 to 30 foot ceiling heights 16+ dock high doors Population: 250 Mile Radius: 18,896,451 / 50 Mile Radius: 993,533 CSX Railroad bisects Duplin County ILM International Airport Wilmington NC 39 miles RDU International Raleigh NC 100 miles NC Global Transpark 56 Miles Interstate I-95 Benson NC 58 miles Albert J. Ellis Airport Jacksonville NC 28 miles Camp Lejeune MCAS, Jacksonville NC 45 miles Fort Bragg US Army, Fayetteville NC 67 miles Seymour Johnson AFB, Goldsboro NC 55 miles Port of Wilmington 44 miles Interstate 40 Exit 390 NC Hwy 117 3.5 miles Interstate 40 Exit 385 NC Hwy 41 3 miles Exit Walmart Supercenter 1.5 miles
- Listed rate may not include certain utilities, building services and property expenses
54 Acre Duplin County Industrial Center For Lease Warehouse, Distribution, Manufacturing, Lay Down Yards, Office 3 Miles and 2 Truck Turns from Interstate 40 3 Phase Heavy Power available54 Two-thirds of the U.S. population is within a day’s trucking distance of Duplin County ( https://www.duplinedc.com/ ) Located in Foreign-Trade Zone #214 in Southeastern North Carolina (SENC) Located in HUB Zone 18 to 30 foot ceiling heights 16+ dock high doors Population: 250 Mile Radius: 18,896,451 / 50 Mile Radius: 993,533 CSX Railroad bisects Duplin County ILM International Airport Wilmington NC 39 miles RDU International Raleigh NC 100 miles NC Global Transpark 56 Miles Interstate I-95 Benson NC 58 miles Albert J. Ellis Airport Jacksonville NC 28 miles Camp Lejeune MCAS, Jacksonville NC 45 miles Fort Bragg US Army, Fayetteville NC 67 miles Seymour Johnson AFB, Goldsboro NC 55 miles Port of Wilmington 44 miles Interstate 40 Exit 390 NC Hwy 117 3.5 miles Interstate 40 Exit 385 NC Hwy 41 3 miles Exit Walmart Supercenter 1.5 miles
- Listed rate may not include certain utilities, building services and property expenses
D6-D Warehouse: New LED motion sensor lighting, Wet Sprinkled, 2 High Dock Doors 54 Acre Duplin County Industrial Center For Lease Warehouse, Distribution, Manufacturing, Lay Down Yards, Office 3 Miles and 2 Truck Turns from Interstate 40 3 Phase Heavy Power available54 Two-thirds of the U.S. population is within a day’s trucking distance of Duplin County ( https://www.duplinedc.com/ ) Located in Foreign-Trade Zone #214 in Southeastern North Carolina (SENC) Located in HUB Zone 18 to 30 foot ceiling heights 16+ dock high doors Population: 250 Mile Radius: 18,896,451 / 50 Mile Radius: 993,533 CSX Railroad bisects Duplin County ILM International Airport Wilmington NC 39 miles RDU International Raleigh NC 100 miles NC Global Transpark 56 Miles Interstate I-95 Benson NC 58 miles Albert J. Ellis Airport Jacksonville NC 28 miles Camp Lejeune MCAS, Jacksonville NC 45 miles Fort Bragg US Army, Fayetteville NC 67 miles Seymour Johnson AFB, Goldsboro NC 55 miles Port of Wilmington 44 miles Interstate 40 Exit 390 NC Hwy 117 3.5 miles Interstate 40 Exit 385 NC Hwy 41 3 miles Exit Walmart Supercenter 1.5 miles
- Listed rate may not include certain utilities, building services and property expenses
- 2 Loading Docks
- Includes 5,000 SF of dedicated office space
30,000 square feet available, 3 docks. 54 Acre Duplin County Industrial Center For Lease Warehouse, Distribution, Manufacturing, Lay Down Yards, Office 3 Miles and 2 Truck Turns from Interstate 40 3 Phase Heavy Power available54 Two-thirds of the U.S. population is within a day’s trucking distance of Duplin County ( https://www.duplinedc.com/ ) Located in Foreign-Trade Zone #214 in Southeastern North Carolina (SENC) Located in HUB Zone 18 to 30 foot ceiling heights 16+ dock high doors Population: 250 Mile Radius: 18,896,451 / 50 Mile Radius: 993,533 CSX Railroad bisects Duplin County ILM International Airport Wilmington NC 39 miles RDU International Raleigh NC 100 miles NC Global Transpark 56 Miles Interstate I-95 Benson NC 58 miles Albert J. Ellis Airport Jacksonville NC 28 miles Camp Lejeune MCAS, Jacksonville NC 45 miles Fort Bragg US Army, Fayetteville NC 67 miles Seymour Johnson AFB, Goldsboro NC 55 miles Port of Wilmington 44 miles Interstate 40 Exit 390 NC Hwy 117 3.5 miles Interstate 40 Exit 385 NC Hwy 41 3 miles Exit Walmart Supercenter 1.5 miles
- Listed rate may not include certain utilities, building services and property expenses
- 3 Loading Docks
54 Acre Duplin County Industrial Center For Lease Warehouse, Distribution, Manufacturing, Lay Down Yards, Office 3 Miles and 2 Truck Turns from Interstate 40 3 Phase Heavy Power available54 Two-thirds of the U.S. population is within a day’s trucking distance of Duplin County ( https://www.duplinedc.com/ ) Located in Foreign-Trade Zone #214 in Southeastern North Carolina (SENC) Located in HUB Zone 18 to 30 foot ceiling heights 16+ dock high doors Population: 250 Mile Radius: 18,896,451 / 50 Mile Radius: 993,533 CSX Railroad bisects Duplin County ILM International Airport Wilmington NC 39 miles RDU International Raleigh NC 100 miles NC Global Transpark 56 Miles Interstate I-95 Benson NC 58 miles Albert J. Ellis Airport Jacksonville NC 28 miles Camp Lejeune MCAS, Jacksonville NC 45 miles Fort Bragg US Army, Fayetteville NC 67 miles Seymour Johnson AFB, Goldsboro NC 55 miles Port of Wilmington 44 miles Interstate 40 Exit 390 NC Hwy 117 3.5 miles Interstate 40 Exit 385 NC Hwy 41 3 miles Exit Walmart Supercenter 1.5 miles
- Listed rate may not include certain utilities, building services and property expenses
D7-B Warehouse: New LED motion sensor lighting, Wet Sprinkled, 1 High Dock Doors 54 Acre Duplin County Industrial Center For Lease Warehouse, Distribution, Manufacturing, Lay Down Yards, Office 3 Miles and 2 Truck Turns from Interstate 40 3 Phase Heavy Power available54 Two-thirds of the U.S. population is within a day’s trucking distance of Duplin County ( https://www.duplinedc.com/ ) Located in Foreign-Trade Zone #214 in Southeastern North Carolina (SENC) Located in HUB Zone 18 to 30 foot ceiling heights 16+ dock high doors Population: 250 Mile Radius: 18,896,451 / 50 Mile Radius: 993,533 CSX Railroad bisects Duplin County ILM International Airport Wilmington NC 39 miles RDU International Raleigh NC 100 miles NC Global Transpark 56 Miles Interstate I-95 Benson NC 58 miles Albert J. Ellis Airport Jacksonville NC 28 miles Camp Lejeune MCAS, Jacksonville NC 45 miles Fort Bragg US Army, Fayetteville NC 67 miles Seymour Johnson AFB, Goldsboro NC 55 miles Port of Wilmington 44 miles Interstate 40 Exit 390 NC Hwy 117 3.5 miles Interstate 40 Exit 385 NC Hwy 41 3 miles Exit Walmart Supercenter 1.5 miles
- Listed rate may not include certain utilities, building services and property expenses
- 1 Loading Dock
- Includes 3,000 SF of dedicated office space
D7-C Warehouse: New LED motion sensor lighting, Wet Sprinkled, 2 High Dock Doors
- Listed rate may not include certain utilities, building services and property expenses
- 2 Loading Docks
Partially built-out South Offices
- Listed rate may not include certain utilities, building services and property expenses
- Office intensive layout
- Partially Built-Out as Standard Office
- Fits 38 - 120 People
| Space | Size | Term | Rental Rate | Space Use | Condition | Available |
| 1st Floor - D6-A | 14,000 SF | Negotiable | $5.44 CAD/SF/YR $0.45 CAD/SF/MO $76,177 CAD/YR $6,348 CAD/MO | Industrial | Partial Build-Out | Now |
| 1st Floor - D6-B | 5,000 SF | Negotiable | $8.16 CAD/SF/YR $0.68 CAD/SF/MO $40,809 CAD/YR $3,401 CAD/MO | Industrial | Full Build-Out | Now |
| 1st Floor - D6-C | 23,000 SF | Negotiable | $7.48 CAD/SF/YR $0.62 CAD/SF/MO $172,079 CAD/YR $14,340 CAD/MO | Industrial | Full Build-Out | Now |
| 1st Floor - D6-D | 120,000 SF | Negotiable | $6.12 CAD/SF/YR $0.51 CAD/SF/MO $734,567 CAD/YR $61,214 CAD/MO | Industrial | Partial Build-Out | 30 Days |
| 1st Floor - D6-E | 30,000 SF | Negotiable | $6.80 CAD/SF/YR $0.57 CAD/SF/MO $204,046 CAD/YR $17,004 CAD/MO | Industrial | Full Build-Out | 60 Days |
| 1st Floor - D7-A | 72,000 SF | Negotiable | $5.44 CAD/SF/YR $0.45 CAD/SF/MO $391,769 CAD/YR $32,647 CAD/MO | Industrial | Full Build-Out | Now |
| 1st Floor - D7-B | 23,600 SF | Negotiable | $5.44 CAD/SF/YR $0.45 CAD/SF/MO $128,413 CAD/YR $10,701 CAD/MO | Industrial | Full Build-Out | 30 Days |
| 1st Floor - D7-C | 4,500 SF | Negotiable | $4.76 CAD/SF/YR $0.40 CAD/SF/MO $21,425 CAD/YR $1,785 CAD/MO | Industrial | Full Build-Out | 30 Days |
| 1st Floor, Ste South Offices | 18,000 SF | Negotiable | $8.16 CAD/SF/YR $0.68 CAD/SF/MO $146,913 CAD/YR $12,243 CAD/MO | Office | Partial Build-Out | 30 Days |
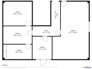
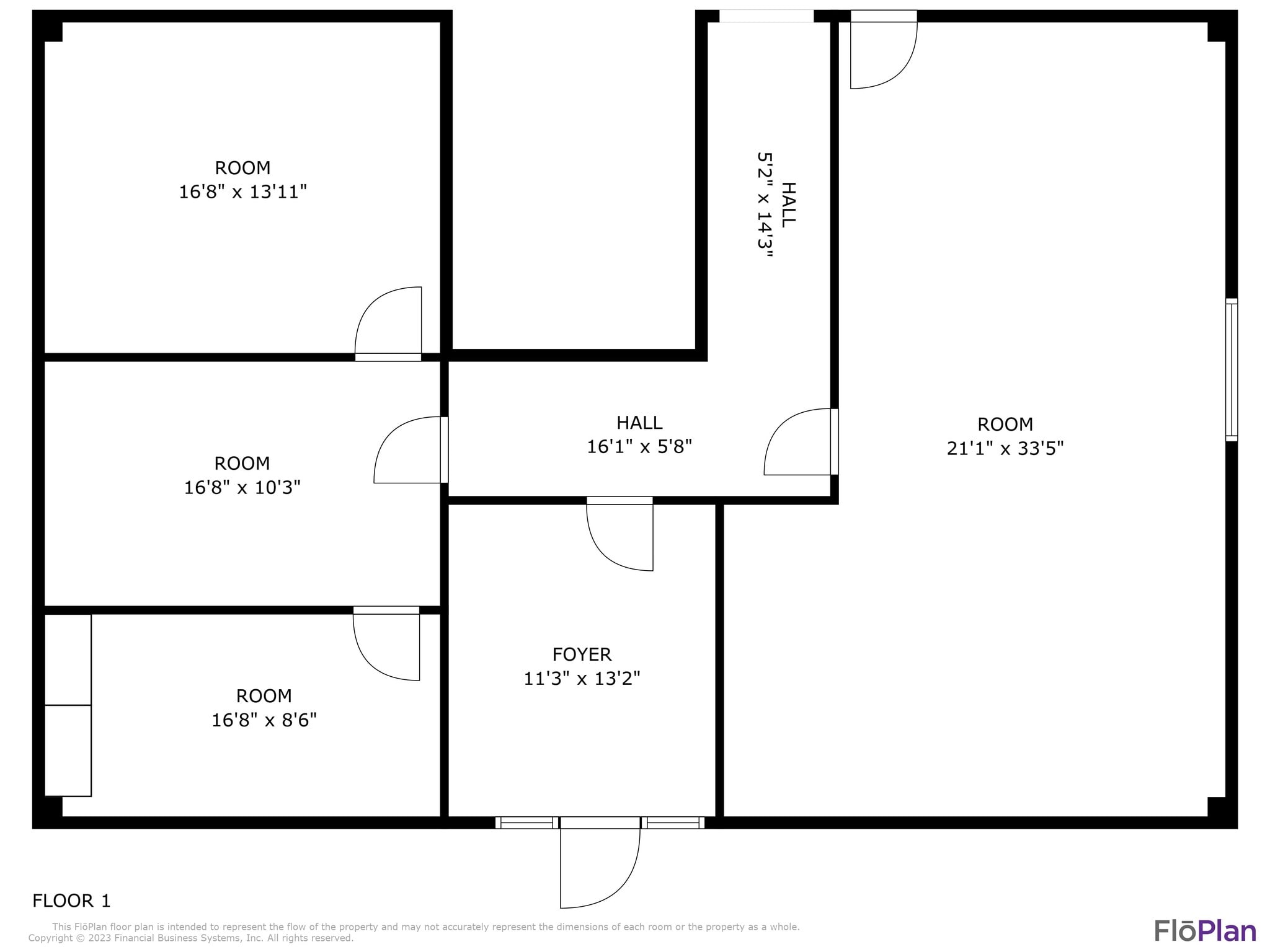
601-605 Old Wilmington Rd - 1st Floor - D6-A
601-605 Old Wilmington Rd - 1st Floor - D6-B
601-605 Old Wilmington Rd - 1st Floor - D6-C
601-605 Old Wilmington Rd - 1st Floor - D6-D
601-605 Old Wilmington Rd - 1st Floor - D6-E
601-605 Old Wilmington Rd - 1st Floor - D7-A
601-605 Old Wilmington Rd - 1st Floor - D7-B
601-605 Old Wilmington Rd - 1st Floor - D7-C
601-605 Old Wilmington Rd - 1st Floor - Ste South Offices
- Space
- Size
- Term
- Rental Rate
- Space Use
- Condition
- Available
North Offices, contiguous to warehouse or can be leased separately. Private offices
- Listed rate may not include certain utilities, building services and property expenses
- Office intensive layout
- North Offices
- Partially Built-Out as Standard Office
- Fits 38 - 120 People
| Space | Size | Term | Rental Rate | Space Use | Condition | Available |
| 1st Floor, Ste North Offices | 10,000 SF | Negotiable | $8.16 CAD/SF/YR $0.68 CAD/SF/MO $81,619 CAD/YR $6,802 CAD/MO | Office | Partial Build-Out | 60 Days |
751-827 Old Wilmington - 1st Floor - Ste North Offices
601-605 Old Wilmington Rd - 1st Floor - D6-A
| Size | 14,000 SF |
| Term | Negotiable |
| Rental Rate | $5.44 CAD/SF/YR |
| Space Use | Industrial |
| Condition | Partial Build-Out |
| Available | Now |
D6-A Warehouse 15 ceiling height 54 Acre Duplin County Industrial Center For Lease Warehouse, Distribution, Manufacturing, Lay Down Yards, Office 3 Miles and 2 Truck Turns from Interstate 40 3 Phase Heavy Power available54 Two-thirds of the U.S. population is within a day’s trucking distance of Duplin County ( https://www.duplinedc.com/ ) Located in Foreign-Trade Zone #214 in Southeastern North Carolina (SENC) Located in HUB Zone 18 to 30 foot ceiling heights 16+ dock high doors Population: 250 Mile Radius: 18,896,451 / 50 Mile Radius: 993,533 CSX Railroad bisects Duplin County ILM International Airport Wilmington NC 39 miles RDU International Raleigh NC 100 miles NC Global Transpark 56 Miles Interstate I-95 Benson NC 58 miles Albert J. Ellis Airport Jacksonville NC 28 miles Camp Lejeune MCAS, Jacksonville NC 45 miles Fort Bragg US Army, Fayetteville NC 67 miles Seymour Johnson AFB, Goldsboro NC 55 miles Port of Wilmington 44 miles Interstate 40 Exit 390 NC Hwy 117 3.5 miles Interstate 40 Exit 385 NC Hwy 41 3 miles Exit Walmart Supercenter 1.5 miles
- Listed rate may not include certain utilities, building services and property expenses
- 2 Drive Ins
601-605 Old Wilmington Rd - 1st Floor - D6-B
| Size | 5,000 SF |
| Term | Negotiable |
| Rental Rate | $8.16 CAD/SF/YR |
| Space Use | Industrial |
| Condition | Full Build-Out |
| Available | Now |
54 Acre Duplin County Industrial Center For Lease Warehouse, Distribution, Manufacturing, Lay Down Yards, Office 3 Miles and 2 Truck Turns from Interstate 40 3 Phase Heavy Power available54 Two-thirds of the U.S. population is within a day’s trucking distance of Duplin County ( https://www.duplinedc.com/ ) Located in Foreign-Trade Zone #214 in Southeastern North Carolina (SENC) Located in HUB Zone 18 to 30 foot ceiling heights 16+ dock high doors Population: 250 Mile Radius: 18,896,451 / 50 Mile Radius: 993,533 CSX Railroad bisects Duplin County ILM International Airport Wilmington NC 39 miles RDU International Raleigh NC 100 miles NC Global Transpark 56 Miles Interstate I-95 Benson NC 58 miles Albert J. Ellis Airport Jacksonville NC 28 miles Camp Lejeune MCAS, Jacksonville NC 45 miles Fort Bragg US Army, Fayetteville NC 67 miles Seymour Johnson AFB, Goldsboro NC 55 miles Port of Wilmington 44 miles Interstate 40 Exit 390 NC Hwy 117 3.5 miles Interstate 40 Exit 385 NC Hwy 41 3 miles Exit Walmart Supercenter 1.5 miles
- Listed rate may not include certain utilities, building services and property expenses
601-605 Old Wilmington Rd - 1st Floor - D6-C
| Size | 23,000 SF |
| Term | Negotiable |
| Rental Rate | $7.48 CAD/SF/YR |
| Space Use | Industrial |
| Condition | Full Build-Out |
| Available | Now |
54 Acre Duplin County Industrial Center For Lease Warehouse, Distribution, Manufacturing, Lay Down Yards, Office 3 Miles and 2 Truck Turns from Interstate 40 3 Phase Heavy Power available54 Two-thirds of the U.S. population is within a day’s trucking distance of Duplin County ( https://www.duplinedc.com/ ) Located in Foreign-Trade Zone #214 in Southeastern North Carolina (SENC) Located in HUB Zone 18 to 30 foot ceiling heights 16+ dock high doors Population: 250 Mile Radius: 18,896,451 / 50 Mile Radius: 993,533 CSX Railroad bisects Duplin County ILM International Airport Wilmington NC 39 miles RDU International Raleigh NC 100 miles NC Global Transpark 56 Miles Interstate I-95 Benson NC 58 miles Albert J. Ellis Airport Jacksonville NC 28 miles Camp Lejeune MCAS, Jacksonville NC 45 miles Fort Bragg US Army, Fayetteville NC 67 miles Seymour Johnson AFB, Goldsboro NC 55 miles Port of Wilmington 44 miles Interstate 40 Exit 390 NC Hwy 117 3.5 miles Interstate 40 Exit 385 NC Hwy 41 3 miles Exit Walmart Supercenter 1.5 miles
- Listed rate may not include certain utilities, building services and property expenses
601-605 Old Wilmington Rd - 1st Floor - D6-D
| Size | 120,000 SF |
| Term | Negotiable |
| Rental Rate | $6.12 CAD/SF/YR |
| Space Use | Industrial |
| Condition | Partial Build-Out |
| Available | 30 Days |
D6-D Warehouse: New LED motion sensor lighting, Wet Sprinkled, 2 High Dock Doors 54 Acre Duplin County Industrial Center For Lease Warehouse, Distribution, Manufacturing, Lay Down Yards, Office 3 Miles and 2 Truck Turns from Interstate 40 3 Phase Heavy Power available54 Two-thirds of the U.S. population is within a day’s trucking distance of Duplin County ( https://www.duplinedc.com/ ) Located in Foreign-Trade Zone #214 in Southeastern North Carolina (SENC) Located in HUB Zone 18 to 30 foot ceiling heights 16+ dock high doors Population: 250 Mile Radius: 18,896,451 / 50 Mile Radius: 993,533 CSX Railroad bisects Duplin County ILM International Airport Wilmington NC 39 miles RDU International Raleigh NC 100 miles NC Global Transpark 56 Miles Interstate I-95 Benson NC 58 miles Albert J. Ellis Airport Jacksonville NC 28 miles Camp Lejeune MCAS, Jacksonville NC 45 miles Fort Bragg US Army, Fayetteville NC 67 miles Seymour Johnson AFB, Goldsboro NC 55 miles Port of Wilmington 44 miles Interstate 40 Exit 390 NC Hwy 117 3.5 miles Interstate 40 Exit 385 NC Hwy 41 3 miles Exit Walmart Supercenter 1.5 miles
- Listed rate may not include certain utilities, building services and property expenses
- Includes 5,000 SF of dedicated office space
- 2 Loading Docks
601-605 Old Wilmington Rd - 1st Floor - D6-E
| Size | 30,000 SF |
| Term | Negotiable |
| Rental Rate | $6.80 CAD/SF/YR |
| Space Use | Industrial |
| Condition | Full Build-Out |
| Available | 60 Days |
30,000 square feet available, 3 docks. 54 Acre Duplin County Industrial Center For Lease Warehouse, Distribution, Manufacturing, Lay Down Yards, Office 3 Miles and 2 Truck Turns from Interstate 40 3 Phase Heavy Power available54 Two-thirds of the U.S. population is within a day’s trucking distance of Duplin County ( https://www.duplinedc.com/ ) Located in Foreign-Trade Zone #214 in Southeastern North Carolina (SENC) Located in HUB Zone 18 to 30 foot ceiling heights 16+ dock high doors Population: 250 Mile Radius: 18,896,451 / 50 Mile Radius: 993,533 CSX Railroad bisects Duplin County ILM International Airport Wilmington NC 39 miles RDU International Raleigh NC 100 miles NC Global Transpark 56 Miles Interstate I-95 Benson NC 58 miles Albert J. Ellis Airport Jacksonville NC 28 miles Camp Lejeune MCAS, Jacksonville NC 45 miles Fort Bragg US Army, Fayetteville NC 67 miles Seymour Johnson AFB, Goldsboro NC 55 miles Port of Wilmington 44 miles Interstate 40 Exit 390 NC Hwy 117 3.5 miles Interstate 40 Exit 385 NC Hwy 41 3 miles Exit Walmart Supercenter 1.5 miles
- Listed rate may not include certain utilities, building services and property expenses
- 3 Loading Docks
601-605 Old Wilmington Rd - 1st Floor - D7-A
| Size | 72,000 SF |
| Term | Negotiable |
| Rental Rate | $5.44 CAD/SF/YR |
| Space Use | Industrial |
| Condition | Full Build-Out |
| Available | Now |
54 Acre Duplin County Industrial Center For Lease Warehouse, Distribution, Manufacturing, Lay Down Yards, Office 3 Miles and 2 Truck Turns from Interstate 40 3 Phase Heavy Power available54 Two-thirds of the U.S. population is within a day’s trucking distance of Duplin County ( https://www.duplinedc.com/ ) Located in Foreign-Trade Zone #214 in Southeastern North Carolina (SENC) Located in HUB Zone 18 to 30 foot ceiling heights 16+ dock high doors Population: 250 Mile Radius: 18,896,451 / 50 Mile Radius: 993,533 CSX Railroad bisects Duplin County ILM International Airport Wilmington NC 39 miles RDU International Raleigh NC 100 miles NC Global Transpark 56 Miles Interstate I-95 Benson NC 58 miles Albert J. Ellis Airport Jacksonville NC 28 miles Camp Lejeune MCAS, Jacksonville NC 45 miles Fort Bragg US Army, Fayetteville NC 67 miles Seymour Johnson AFB, Goldsboro NC 55 miles Port of Wilmington 44 miles Interstate 40 Exit 390 NC Hwy 117 3.5 miles Interstate 40 Exit 385 NC Hwy 41 3 miles Exit Walmart Supercenter 1.5 miles
- Listed rate may not include certain utilities, building services and property expenses
601-605 Old Wilmington Rd - 1st Floor - D7-B
| Size | 23,600 SF |
| Term | Negotiable |
| Rental Rate | $5.44 CAD/SF/YR |
| Space Use | Industrial |
| Condition | Full Build-Out |
| Available | 30 Days |
D7-B Warehouse: New LED motion sensor lighting, Wet Sprinkled, 1 High Dock Doors 54 Acre Duplin County Industrial Center For Lease Warehouse, Distribution, Manufacturing, Lay Down Yards, Office 3 Miles and 2 Truck Turns from Interstate 40 3 Phase Heavy Power available54 Two-thirds of the U.S. population is within a day’s trucking distance of Duplin County ( https://www.duplinedc.com/ ) Located in Foreign-Trade Zone #214 in Southeastern North Carolina (SENC) Located in HUB Zone 18 to 30 foot ceiling heights 16+ dock high doors Population: 250 Mile Radius: 18,896,451 / 50 Mile Radius: 993,533 CSX Railroad bisects Duplin County ILM International Airport Wilmington NC 39 miles RDU International Raleigh NC 100 miles NC Global Transpark 56 Miles Interstate I-95 Benson NC 58 miles Albert J. Ellis Airport Jacksonville NC 28 miles Camp Lejeune MCAS, Jacksonville NC 45 miles Fort Bragg US Army, Fayetteville NC 67 miles Seymour Johnson AFB, Goldsboro NC 55 miles Port of Wilmington 44 miles Interstate 40 Exit 390 NC Hwy 117 3.5 miles Interstate 40 Exit 385 NC Hwy 41 3 miles Exit Walmart Supercenter 1.5 miles
- Listed rate may not include certain utilities, building services and property expenses
- Includes 3,000 SF of dedicated office space
- 1 Loading Dock
601-605 Old Wilmington Rd - 1st Floor - D7-C
| Size | 4,500 SF |
| Term | Negotiable |
| Rental Rate | $4.76 CAD/SF/YR |
| Space Use | Industrial |
| Condition | Full Build-Out |
| Available | 30 Days |
D7-C Warehouse: New LED motion sensor lighting, Wet Sprinkled, 2 High Dock Doors
- Listed rate may not include certain utilities, building services and property expenses
- 2 Loading Docks
601-605 Old Wilmington Rd - 1st Floor - Ste South Offices
| Size | 18,000 SF |
| Term | Negotiable |
| Rental Rate | $8.16 CAD/SF/YR |
| Space Use | Office |
| Condition | Partial Build-Out |
| Available | 30 Days |
Partially built-out South Offices
- Listed rate may not include certain utilities, building services and property expenses
- Partially Built-Out as Standard Office
- Office intensive layout
- Fits 38 - 120 People
751-827 Old Wilmington - 1st Floor - Ste North Offices
| Size | 10,000 SF |
| Term | Negotiable |
| Rental Rate | $8.16 CAD/SF/YR |
| Space Use | Office |
| Condition | Partial Build-Out |
| Available | 60 Days |
North Offices, contiguous to warehouse or can be leased separately. Private offices
- Listed rate may not include certain utilities, building services and property expenses
- Partially Built-Out as Standard Office
- Office intensive layout
- Fits 38 - 120 People
- North Offices
Park Overview
Duplin County NC Industrial Center Warehouses For Lease: 700,000 Total SF / 54 Acre Campus Centrally located to serve all of the Mid Atlantic and Southeastern US Two-thirds of the U.S. population is within a day’s trucking distance of Duplin County Population: 400 Miles=54,000,000+ / 250 Miles: 18,000,000+ / 50 Miles=993,000+ Located in Foreign-Trade Zone #214 in Southeastern North Carolina (SENC) CSX Railroad bisects Duplin County Port of Wilmington 44 miles ILM International Airport Wilmington NC 39 miles RDU International Raleigh NC 100 miles NC Global Transpark 56 Miles Interstate I-95 Benson NC 58 miles Albert J. Ellis Airport Jacksonville NC 28 miles Camp Lejeune MCAS, Jacksonville NC 45 miles Fort Bragg US Army, Fayetteville NC 67 miles Seymour Johnson AFB, Goldsboro NC 55 miles Interstate 40 Exit 390 NC Hwy 117 3.5 miles Interstate 40 Exit 385 NC Hwy 41 3 miles Exit Walmart Supercenter 1.5 miles Municipal water & sewer, dedicated fire water piping throughout, lighted parking Internal road loop with truck courts
Presented by
Duplin Co Industrial Center | Wallace, NC 28466
Hmm, there seems to have been an error sending your message. Please try again.
Thanks! Your message was sent.


















