Log In/Sign Up
Your email has been sent.
601 E Clark St 1,734 SF Office Building Brandon, WI 53919 $394,548 CAD ($227.54 CAD/SF)



Investment Highlights
- Turn-key medical office space
- Parking lot has 11 stalls (2 handicap), newly replaced and expandable
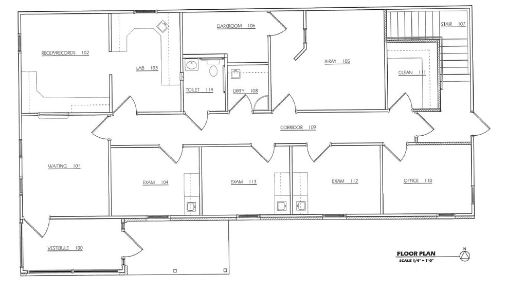
- Three exam rooms, one office, X-ray and darkroom, lab, reception/waiting, and storage
- Potential expansion or conversion to an office or retail use
Executive Summary
Turn-key medical office space with three exam rooms, one office, X-ray and darkroom, lab, reception/waiting, and storage. The building could be converted to standard office use by removing the unnecessary plumbing and cabinetry.
This well-appointed medical clinic, located in the rural south central Wisconsin community of Brandon, offers a modest and functional building spanning 1,734 square feet on the first floor, complemented by an unfinished basement. The property provides convenient parking accommodations with 11 stalls, ensuring seamless access for both patients and staff.
Situated on a spacious 2.0-acre parcel, the building affords ample room for potential expansion or conversion to an office or retail use.
This well-appointed medical clinic, located in the rural south central Wisconsin community of Brandon, offers a modest and functional building spanning 1,734 square feet on the first floor, complemented by an unfinished basement. The property provides convenient parking accommodations with 11 stalls, ensuring seamless access for both patients and staff.
Situated on a spacious 2.0-acre parcel, the building affords ample room for potential expansion or conversion to an office or retail use.
Property Facts
Sale Type
Owner User
Property Type
Office
Property Subtype
Medical
Building Size
1,734 SF
Building Class
C
Year Built
2001
Price
$394,548 CAD
Price Per SF
$227.54 CAD
Building Height
1 Story
Typical Floor Size
1,734 SF
Building FAR
0.02
Lot Size
2.00 AC
Zoning
B-2 - Highway Commercial District
Parking
11 Spaces (6.34 Spaces per 1,000 SF Leased)
1 1
Not walkable
10/100
Exceptionally drivable
100/100
Not bikeable
10/100
Property Taxes
| Parcel Number | V01-15-14-36-03-005-00 | Improvements Assessment | $266,388 CAD |
| Land Assessment | $78,229 CAD | Total Assessment | $344,617 CAD |
Property Taxes
Parcel Number
V01-15-14-36-03-005-00
Land Assessment
$78,229 CAD
Improvements Assessment
$266,388 CAD
Total Assessment
$344,617 CAD
1 of 11
Videos
Matterport 3D Exterior
Matterport 3D Tour
Photos
Street View
Street
Map
1 of 1
Presented by
601 E Clark St
Already a member? Log In
Hmm, there seems to have been an error sending your message. Please try again.
Thanks! Your message was sent.
