Log In/Sign Up
Your email has been sent.
Lynge Bldg 602 E Santa Clara St 6,945 SF Vacant Office Building San Jose, CA 95112 $5,025,312 CAD ($723.59 CAD/SF)



INVESTMENT HIGHLIGHTS
- Owner-User Opportunity
- Fully Fenced Parking Lot
- Prominent Signage
EXECUTIVE SUMMARY
Positioned in the heart of Silicon Valley, 602 E Santa Clara St offers a rare owner-user opportunity to acquire two well-maintained medical/office buildings on a fully secured lot with private parking. The property features a prominent hard-corner location at the intersection of 13th Street and East Santa Clara Street, providing excellent visibility and accessibility.
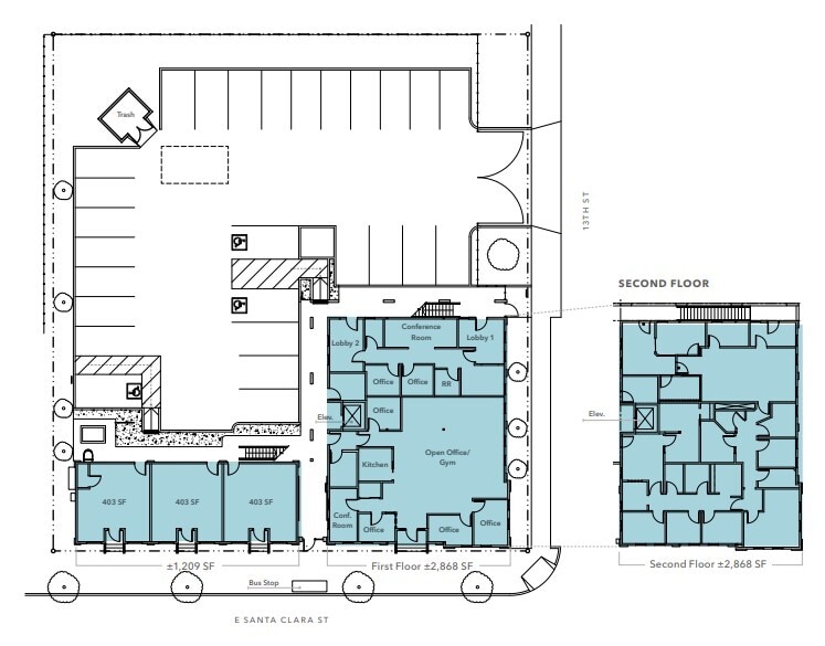
The ±6,945 SF asset includes a two-story, elevator-served multi-tenant building and a single-story office building with street frontage. The buildings are designed for flexibility, allowing for single-tenant occupancy or division into five or more suites. Interior features include extensive office build-outs, multiple entrances, abundant natural light from expansive glass lines, and a built-in gym.
Located just minutes from Downtown San Jose and four miles from Mineta San Jose International Airport, the property benefits from proximity to major tech headquarters, public transit, and highways including US-101 and CA-87. The surrounding area is rich with amenities, including restaurants, hotels, entertainment venues, and parks, making it ideal for professional services, medical practices, or tech-adjacent tenants.
The ±6,945 SF asset includes a two-story, elevator-served multi-tenant building and a single-story office building with street frontage. The buildings are designed for flexibility, allowing for single-tenant occupancy or division into five or more suites. Interior features include extensive office build-outs, multiple entrances, abundant natural light from expansive glass lines, and a built-in gym.
Located just minutes from Downtown San Jose and four miles from Mineta San Jose International Airport, the property benefits from proximity to major tech headquarters, public transit, and highways including US-101 and CA-87. The surrounding area is rich with amenities, including restaurants, hotels, entertainment venues, and parks, making it ideal for professional services, medical practices, or tech-adjacent tenants.
PROPERTY FACTS
Sale Type
Investment
Property Type
Office
Property Subtype
Medical
Building Size
6,945 SF
Building Class
B
Year Built
1990
Price
$5,025,312 CAD
Price Per SF
$723.59 CAD
Percent Leased
Vacant
Tenancy
Multiple
Building Height
2 Stories
Typical Floor Size
2,868 SF
Slab To Slab
9’
Building FAR
0.39
Lot Size
0.41 AC
Zoning
CG - General Commercial
Parking
27 Spaces (3.89 Spaces per 1,000 SF Leased)
AMENITIES
- Signage
1 1
Walk Score®
Walker's Paradise (90)
Bike Score®
Biker's Paradise (92)
PROPERTY TAXES
| Parcel Number | 467-27-094 | Improvements Assessment | $1,624,733 CAD |
| Land Assessment | $2,531,568 CAD | Total Assessment | $4,156,301 CAD |
PROPERTY TAXES
Parcel Number
467-27-094
Land Assessment
$2,531,568 CAD
Improvements Assessment
$1,624,733 CAD
Total Assessment
$4,156,301 CAD
1 of 5
VIDEOS
MATTERPORT 3D EXTERIOR
MATTERPORT 3D TOUR
PHOTOS
STREET VIEW
STREET
MAP
1 of 1
Presented by
Lynge Bldg | 602 E Santa Clara St
Already a member? Log In
Hmm, there seems to have been an error sending your message. Please try again.
Thanks! Your message was sent.
