Log In/Sign Up
Your email has been sent.
Country Club Medical Bldg 606 N Country Club Dr 12,212 SF Office Building Mesa, AZ 85201 $2,492,715 CAD ($204.12 CAD/SF)



Investment Highlights
- Freestanding/Stand-Alone Building
- Excellent Visibility & Frontage on N. Country Club Drive
- Strong Mesa Location with convenient access to Loop 202, Downtown Mesa restaurants, shopping and surrounding amenities
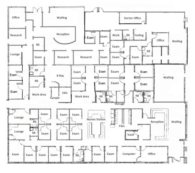
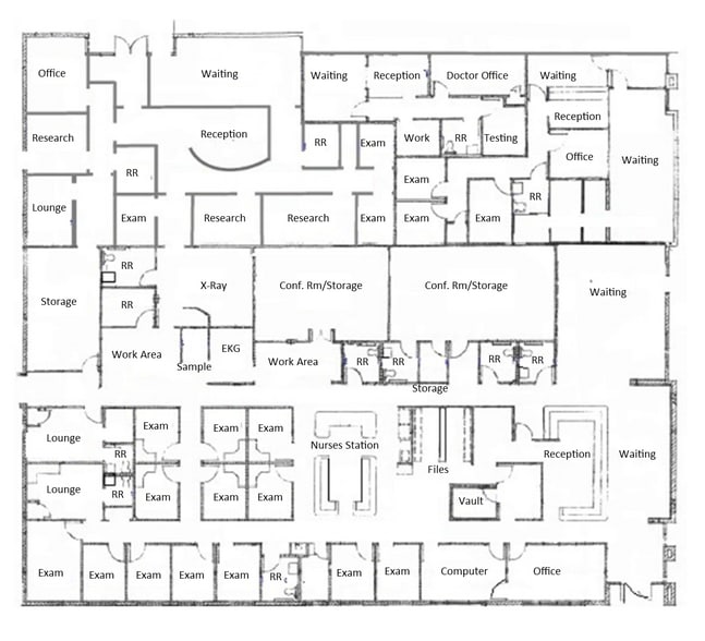
- Former Medical Office - Easily adaptable to general office or specialty use
- Ample On-Site Parking ±6.16/1,000 SF, Covered & Uncovered
- Ideal Uses: Medical/Healthcare, Professional or Corporate Office, Educational or Training Facility, Financial Services, Specialty Commercial
Executive Summary
Located at 606 N Country Club Drive, this ±12,212 SF freestanding commercial building presents an exceptional opportunity for an owner-user seeking a highly visible and
versatile property in the heart of Mesa. Formerly utilized as a medical facility, the building is well-suited for medical, professional office, or specialty commercial use,
offering flexible configuration options to accommodate a wide range of business needs.
versatile property in the heart of Mesa. Formerly utilized as a medical facility, the building is well-suited for medical, professional office, or specialty commercial use,
offering flexible configuration options to accommodate a wide range of business needs.
Property Facts
Sale Type
Owner User
Property Type
Office
Property Subtype
Medical
Building Size
12,212 SF
Building Class
C
Year Built
1983
Price
$2,492,715 CAD
Price Per SF
$204.12 CAD
Tenancy
Multiple
Building Height
1 Story
Typical Floor Size
12,212 SF
Building FAR
0.23
Lot Size
1.22 AC
Zoning
C-2
Parking
76 Spaces (6.16 Spaces per 1,000 SF Leased)
1 1
Fairly walkable
40/100
Exceptionally drivable
90/100
Some public transit
40/100
Fairly bikeable
50/100
Property Taxes
| Parcel Numbers | Improvements Assessment | $0 CAD | |
| Land Assessment | $12,528 CAD | Total Assessment | $235,614 CAD |
Property Taxes
Parcel Numbers
Land Assessment
$12,528 CAD
Improvements Assessment
$0 CAD
Total Assessment
$235,614 CAD
1 of 5
Videos
Matterport 3D Exterior
Matterport 3D Tour
Photos
Street View
Street
Map
1 of 1
Presented by
Country Club Medical Bldg | 606 N Country Club Dr
Already a member? Log In
Hmm, there seems to have been an error sending your message. Please try again.
Thanks! Your message was sent.
