Your email has been sent.
Investment Highlights
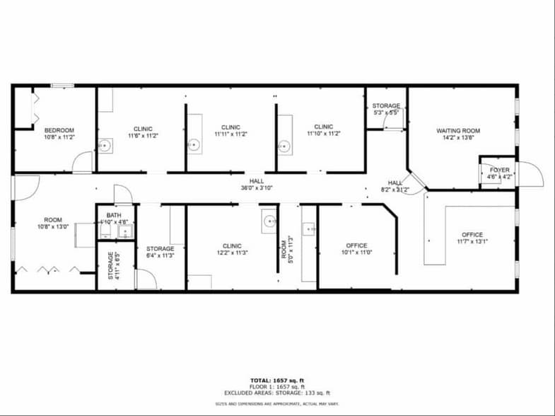
- This well-maintained building boasts four spacious clinic rooms, and a welcoming reception area.
- This establishment offers high visibility and easy access, ensuring a steady flow of clients.
Executive Summary
Online Bidding Ends: Apr 21st 2026 at 10:00 am. Bidding Opens: April 7th 2026 at 12:00 pm. Commercial office building with 1,657 sq.ft. consisting of a waiting room and 5 offices. Previously used as a dental office, the space has been well maintained and is ready for a variety of business opportunities. There is also another building on the property for some added income. Whether you are looking for a place for your business or looking for commercial space to lease out. Contact us today for more information about the auction terms or to schedule a viewing prior to the auction. Listing price is not indicative of reserve.
Property Facts
Amenities
- Wheelchair Accessible
- Air Conditioning
- Smoke Detector
About 607 E LYONS ST , MARISSA, IL 62257
Price listed is starting bid only. This is an internet-only auction — all bidding takes place online. The property is being sold AS-IS, WHERE-IS. Online Bidding Ends: Apr 21st 2026 at 10:00 am. Bidding Opens: April 7th 2026 at 12:00 pm. Commercial office building with 1,657 sq.ft. consisting of a waiting room and 5 offices. Previously used as a dental office, the space has been well maintained and is ready for a variety of business opportunities. There is also another building on the property for some added income. Whether you are looking for a place for your business or looking for commercial space to lease out. Contact us today for more information about the auction terms or to schedule a viewing prior to the auction. Listing price is not indicative of reserve. Age of the Building: 1960 Square Footage: 1,657 (source: County Records) Lot Size: .37 Acre Heating: Electric Cooling: Electric Water Heater: Electric Roof: Shingled Water ~ Marissa Sewer ~ Marissa Electric ~ Ameren Gas ~Ameren School District(s): Marissa CUSD 40 Drive Times: 29 miles from Scott Air Force Base 31 miles from O’Fallon 10 miles from Sparta Room Dimensions: 4 Clinic rooms: 12.2’ x 11.3’ 11.11 x 11.2 11.10 x 11.2 11.6 x 11.2 Waiting Room 14.2’ x 13.6’ 2 Offices 11.7’ x 13.1’ 10.1’ x 11’ Title Company: Town and Country Financing: Cash & Conventional Directions: North side of Route 13 in Marissa Legal Description: Deed to govern. Parcel(s): 21-22.0-404-016, 21-22.0-404-028 Taxes: Parcel 016-$693.40-2023 Parcel 028-$2,943.78-2023 Total is $3,637.18 for 2023
Property Taxes
| Parcel Numbers | Improvements Assessment | $56,380 CAD | |
| Land Assessment | $8,772 CAD | Total Assessment | $65,152 CAD |
Property Taxes
Presented by
607 E Lyons St - For Sale
Hmm, there seems to have been an error sending your message. Please try again.
Thanks! Your message was sent.



