Your email has been sent.
6001-6025 Femrite Drive Madison, WI 53718 4,179 SF of Industrial Space Available

Park Highlights
- Femrite Drive: 3,800 VPD
- Interstate 90: 30,200 VPD
- Interstate 12: 86,700 VPD
Park Facts
| Total Space Available | 4,179 SF | Park Type | Industrial Park |
| Total Space Available | 4,179 SF |
| Park Type | Industrial Park |
All Available Space(1)
Display Rental Rate as
- Space
- Size
- Term
- Rental Rate
- Space Use
- Condition
- Available
- Lease rate does not include utilities, property expenses or building services
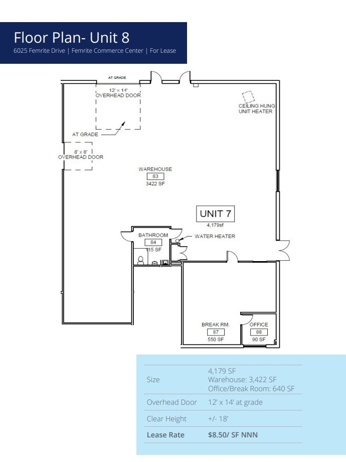
- 1 Drive Bay
- Overhead Door: 12’ x 14’ at grade
- Includes 640 SF of dedicated office space
- Private Restrooms
- Clear Height: +/- 18’
| Space | Size | Term | Rental Rate | Space Use | Condition | Available |
| 1st Floor - Unit 8 | 4,179 SF | Negotiable | $11.67 CAD/SF/YR $0.97 CAD/SF/MO $48,764 CAD/YR $4,064 CAD/MO | Industrial | Full Build-Out | 30 Days |
6025 Femrite Dr - 1st Floor - Unit 8
6025 Femrite Dr - 1st Floor - Unit 8
| Size | 4,179 SF |
| Term | Negotiable |
| Rental Rate | $11.67 CAD/SF/YR |
| Space Use | Industrial |
| Condition | Full Build-Out |
| Available | 30 Days |
- Lease rate does not include utilities, property expenses or building services
- Includes 640 SF of dedicated office space
- 1 Drive Bay
- Private Restrooms
- Overhead Door: 12’ x 14’ at grade
- Clear Height: +/- 18’
Park Overview
For Lease – 6025 Femrite Drive, Madison, WI 53718 Located in the Femrite Commerce Center, this industrial/flex space offers excellent accessibility right off Interstate 90 and close to numerous local and national retailers. The building spans 26,884 SF and was constructed in 2004, featuring IL zoning and 3-phase, 200-amp electrical service. Available units include: Unit 5: 2,206 SF Unit 8: 4,179 SF Lease terms are $8.50/SF NNN, with 2026 estimated expenses at $3.44/SF. This property provides a versatile solution for businesses seeking a prime Madison location with modern infrastructure and convenient highway access.
Presented by
6001-6025 Femrite Drive | Madison, WI 53718
Hmm, there seems to have been an error sending your message. Please try again.
Thanks! Your message was sent.


