Your email has been sent.
616 Tower 616 Tower Ave 1,372 - 2,785 SF of Office Space Available in Superior, WI 54880

Highlights
- Great location, natural sunlight and great people to work with.
All Available Spaces(2)
Display Rental Rate as
- Space
- Size
- Term
- Rental Rate
- Space Use
- Build-Out
- Available
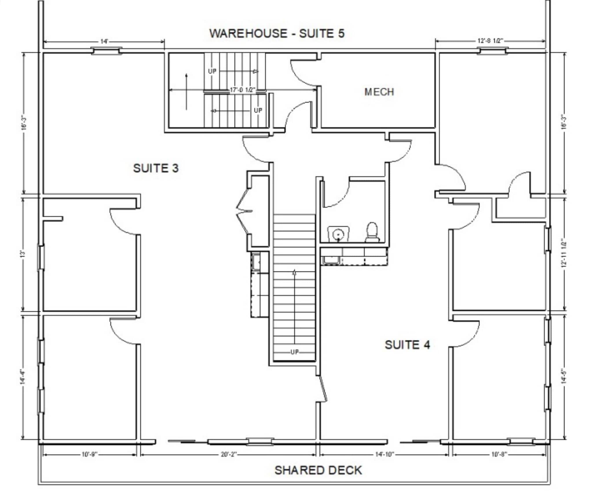
Open Office: 14'x16' Private Office #1: 13'x10'9" Private Office #2: 14's 10'9' Kitchenette/Coffee Bar Shared Conference Room Deck L-Shaped Main Area: 20'x27" Plenty of natural light with sliding glass doors to the deck. This area is most commonly used for collaborative workspace, breakroom, waiting area, and a small showroom.
- Rate includes utilities, building services and property expenses
- 1 Conference Room
- Space is in Excellent Condition
- Balcony
- Natural Light
- 2 Private Offices
- 3 Workstations
- Central Air and Heating
- Corner Space
Open Area: 14'-10"x27'4" Office #1: 14'-5"x10'-8" Office #2:12'-11"x10'-8" Office #3: 16'-3"x12'-8" Total leasable square footage:1372 Kitchenette/Coffee Bar Shared Conference Room Deck Built-in Desks
- Rate includes utilities, building services and property expenses
- 3 Private Offices
- 3 Workstations
- Central Air and Heating
- Balcony
- Fully Built-Out as Standard Office
- 1 Conference Room
- Space is in Excellent Condition
- Wi-Fi Connectivity
- Natural Light
| Space | Size | Term | Rental Rate | Space Use | Build-Out | Available |
| 2nd Floor, Ste North | 1,413 SF | 3-5 Years | $17.82 CAD/SF/YR $1.48 CAD/SF/MO $25,173 CAD/YR $2,098 CAD/MO | Office | Full Build-Out | Now |
| 2nd Floor, Ste South | 1,372 SF | 3-5 Years | $17.82 CAD/SF/YR $1.48 CAD/SF/MO $24,443 CAD/YR $2,037 CAD/MO | Office | Full Build-Out | Now |
2nd Floor, Ste North
| Size |
| 1,413 SF |
| Term |
| 3-5 Years |
| Rental Rate |
| $17.82 CAD/SF/YR $1.48 CAD/SF/MO $25,173 CAD/YR $2,098 CAD/MO |
| Space Use |
| Office |
| Build-Out |
| Full Build-Out |
| Available |
| Now |
2nd Floor, Ste South
| Size |
| 1,372 SF |
| Term |
| 3-5 Years |
| Rental Rate |
| $17.82 CAD/SF/YR $1.48 CAD/SF/MO $24,443 CAD/YR $2,037 CAD/MO |
| Space Use |
| Office |
| Build-Out |
| Full Build-Out |
| Available |
| Now |
2nd Floor, Ste North
| Size | 1,413 SF |
| Term | 3-5 Years |
| Rental Rate | $17.82 CAD/SF/YR |
| Space Use | Office |
| Build-Out | Full Build-Out |
| Available | Now |
Open Office: 14'x16' Private Office #1: 13'x10'9" Private Office #2: 14's 10'9' Kitchenette/Coffee Bar Shared Conference Room Deck L-Shaped Main Area: 20'x27" Plenty of natural light with sliding glass doors to the deck. This area is most commonly used for collaborative workspace, breakroom, waiting area, and a small showroom.
- Rate includes utilities, building services and property expenses
- 2 Private Offices
- 1 Conference Room
- 3 Workstations
- Space is in Excellent Condition
- Central Air and Heating
- Balcony
- Corner Space
- Natural Light
2nd Floor, Ste South
| Size | 1,372 SF |
| Term | 3-5 Years |
| Rental Rate | $17.82 CAD/SF/YR |
| Space Use | Office |
| Build-Out | Full Build-Out |
| Available | Now |
Open Area: 14'-10"x27'4" Office #1: 14'-5"x10'-8" Office #2:12'-11"x10'-8" Office #3: 16'-3"x12'-8" Total leasable square footage:1372 Kitchenette/Coffee Bar Shared Conference Room Deck Built-in Desks
- Rate includes utilities, building services and property expenses
- Fully Built-Out as Standard Office
- 3 Private Offices
- 1 Conference Room
- 3 Workstations
- Space is in Excellent Condition
- Central Air and Heating
- Wi-Fi Connectivity
- Balcony
- Natural Light
Property Overview
Well-appointed office opportunity at 616 Tower Ave, Superior, WI 54880-1053, offering flexibility and shared amenities ideal for small businesses and professionals. The property features a total of six private offices complemented by two common lunch and coffee break areas, creating a collaborative yet efficient work environment. All offices are located on the upper level, with sliding glass doors that open onto a beautiful rough-cut timber deck, providing an inviting outdoor space for breaks or informal meetings. This setup is ideal for individuals seeking to lease a single office while sharing common areas, as well as small businesses looking to establish their team in one suite with the ability to expand into additional space as they grow. Adding to the property’s functionality is approximately 5,000 square feet of secured outdoor space, suitable for vehicle and trailer parking, a valuable feature for service-oriented users or businesses requiring storage and fleet access. With its flexible layout, shared amenities, and secure outdoor parking, this property offers a practical and attractive solution for businesses seeking efficiency, scalability, and a professional setting.
Property Facts
Select Tenants
- Floor
- Tenant Name
- Industry
- 2nd
- Amerapex
- Mining, Quarrying, and Oil and Gas Extraction
- 2nd
- CMC Construction
- Construction
- 1st
- Commercial Flooring Installations Inc.
- Construction
Presented by
Starboard Properties Llc
616 Tower | 616 Tower Ave
Hmm, there seems to have been an error sending your message. Please try again.
Thanks! Your message was sent.






