Your email has been sent.
616A-622 S Main St 3,000 - 6,760 SF of Space Available in Hebron, IN 46341



Features
All Available Spaces(2)
Display Rental Rate as
- Space
- Size
- Term
- Rental Rate
- Space Use
- Build-Out
- Available
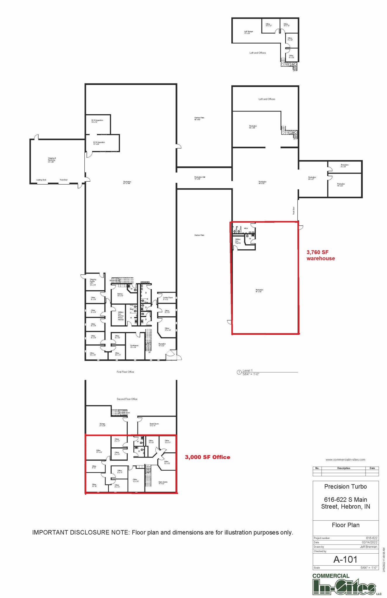
Unique opportunity to lease space in Hebron’s premier industrial building. The building features the Geothermal heating and cooling system throughout the entire building. The floors throughout have radiant heat and cooling. The building is extremely well insulated in the walls and ceiling, lowering the cost to heat and cool. Combined available space is 6,760 SF. A 3,000 SF office space is available on the 2nd floor in the 616 building with interior features of 10 offices, 1 conference room, men’s and women’s bathroom and 3,760 SF warehouse space in the 622 building. The building’s main power is 240-volt 3 phase service but 480-volt 3 phase services available This can be leased with or without the warehouse or office. The front entryway is a two-story front entrance/reception area with available space upstairs.
- Rate includes utilities, building services and property expenses
- Includes 3,000 SF of dedicated office space
Unique opportunity to lease space in Hebron’s premier industrial building. The building features the Geothermal heating and cooling system throughout the entire building. The floors throughout have radiant heat and cooling. The building is extremely well insulated in the walls and ceiling, lowering the cost to heat and cool. Combined available space is 6,760 SF. A 3,000 SF office space is available on the 2nd floor in the 616 building with interior features of 10 offices, 1 conference room, men’s and women’s bathroom and 3,760 SF warehouse space in the 622 building. The building’s main power is 240-volt 3 phase service but 480-volt 3 phase services available This can be leased with or without the warehouse or office. The front entryway is a two-story front entrance/reception area with available space upstairs.
- Rate includes utilities, building services and property expenses
- Fits 8 - 24 People
- 1 Conference Room
- Fully Built-Out as Standard Office
- 10 Private Offices
- Includes 3,000 SF of dedicated office space
| Space | Size | Term | Rental Rate | Space Use | Build-Out | Available |
| 1st Floor - 622 | 3,760 SF | Negotiable | $16.51 CAD/SF/YR $1.38 CAD/SF/MO $62,089 CAD/YR $5,174 CAD/MO | Industrial | Full Build-Out | Now |
| 2nd Floor, Ste 616 | 3,000 SF | Negotiable | $16.51 CAD/SF/YR $1.38 CAD/SF/MO $49,539 CAD/YR $4,128 CAD/MO | Office | Full Build-Out | Now |
1st Floor - 622
| Size |
| 3,760 SF |
| Term |
| Negotiable |
| Rental Rate |
| $16.51 CAD/SF/YR $1.38 CAD/SF/MO $62,089 CAD/YR $5,174 CAD/MO |
| Space Use |
| Industrial |
| Build-Out |
| Full Build-Out |
| Available |
| Now |
2nd Floor, Ste 616
| Size |
| 3,000 SF |
| Term |
| Negotiable |
| Rental Rate |
| $16.51 CAD/SF/YR $1.38 CAD/SF/MO $49,539 CAD/YR $4,128 CAD/MO |
| Space Use |
| Office |
| Build-Out |
| Full Build-Out |
| Available |
| Now |
1st Floor - 622
| Size | 3,760 SF |
| Term | Negotiable |
| Rental Rate | $16.51 CAD/SF/YR |
| Space Use | Industrial |
| Build-Out | Full Build-Out |
| Available | Now |
Unique opportunity to lease space in Hebron’s premier industrial building. The building features the Geothermal heating and cooling system throughout the entire building. The floors throughout have radiant heat and cooling. The building is extremely well insulated in the walls and ceiling, lowering the cost to heat and cool. Combined available space is 6,760 SF. A 3,000 SF office space is available on the 2nd floor in the 616 building with interior features of 10 offices, 1 conference room, men’s and women’s bathroom and 3,760 SF warehouse space in the 622 building. The building’s main power is 240-volt 3 phase service but 480-volt 3 phase services available This can be leased with or without the warehouse or office. The front entryway is a two-story front entrance/reception area with available space upstairs.
- Rate includes utilities, building services and property expenses
- Includes 3,000 SF of dedicated office space
2nd Floor, Ste 616
| Size | 3,000 SF |
| Term | Negotiable |
| Rental Rate | $16.51 CAD/SF/YR |
| Space Use | Office |
| Build-Out | Full Build-Out |
| Available | Now |
Unique opportunity to lease space in Hebron’s premier industrial building. The building features the Geothermal heating and cooling system throughout the entire building. The floors throughout have radiant heat and cooling. The building is extremely well insulated in the walls and ceiling, lowering the cost to heat and cool. Combined available space is 6,760 SF. A 3,000 SF office space is available on the 2nd floor in the 616 building with interior features of 10 offices, 1 conference room, men’s and women’s bathroom and 3,760 SF warehouse space in the 622 building. The building’s main power is 240-volt 3 phase service but 480-volt 3 phase services available This can be leased with or without the warehouse or office. The front entryway is a two-story front entrance/reception area with available space upstairs.
- Rate includes utilities, building services and property expenses
- Fully Built-Out as Standard Office
- Fits 8 - 24 People
- 10 Private Offices
- 1 Conference Room
- Includes 3,000 SF of dedicated office space
Property Overview
The buildings are located on the west side of Main Street (S.R. 2) between W. 900 South and W. Sigler Street (S.R. 6). 1 1/2 miles north of downtown Hebron, 6 miles to I-65 and 15 miles to Valparaiso. Near Dairy Queen, Family Express, Wana Pizza, Salon 618 North, Osby Water Systems, Subway, Rush Physical Therapy, PAVS Restaurant, Hebron Lanes, Ace Hardware, Dollar Tree, and Dollar General. 2020 INDOT traffic counts for Main Street are 6,128 cars/day
Warehouse Facility Facts
Presented by
616A-622 S Main St
Hmm, there seems to have been an error sending your message. Please try again.
Thanks! Your message was sent.



