Your email has been sent.
618 E Ramseur St - Custom Stone Building 3,910 SF Office/Retail Condo Unit Offered at $3,287,304 CAD in Durham, NC 27701



Investment Highlights
- Just minutes to Duke University, Research Triangle Park, the new Apple RTP Campus and RDU Airport.
- Nestled amongst numerous restaurants/breweries and an easy walk to the Durham Bulls ballpark.
Executive Summary
Maverick Partners is pleased to present this unique opportunity to acquire a 100% leased single-tenant NNN investment property in one of the region's hottest sub-markets. Seller has executed a 10-year absolute net lease with no owner responsibilities. Originally constructed in the 1930's, this historic structure was completely gut renovated in 2020. The opportunity represents a 39% condo interest in the aggregate property and includes common access to ample on-site parking.
1 Unit Available
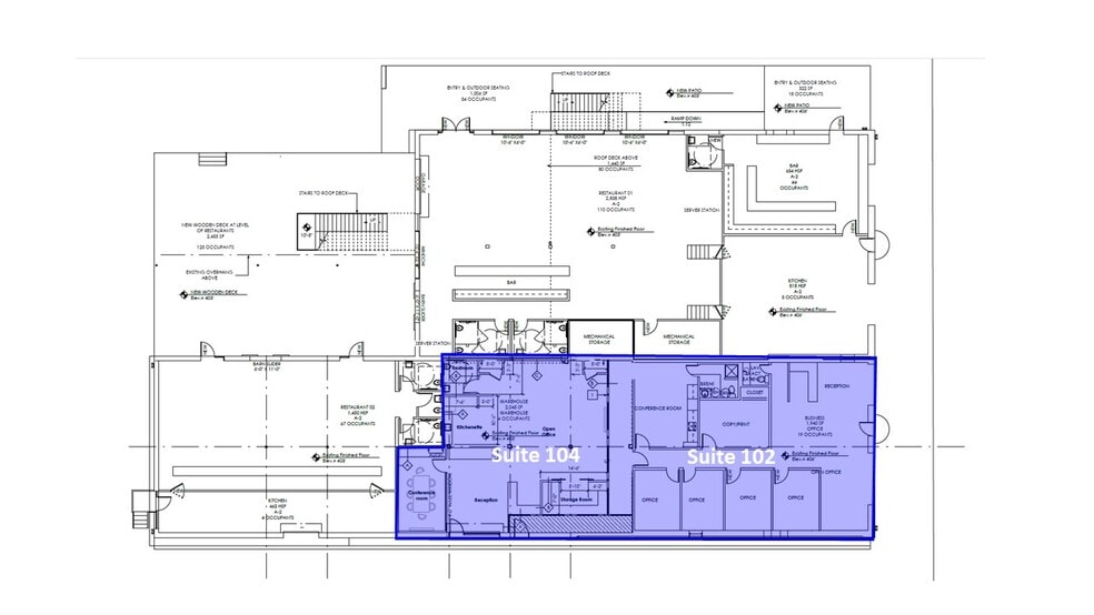
Unit 102 & 104
| Unit Size | 3,910 SF | Sale Type | Investment |
| Price | $3,287,304 CAD | Sale Status | Under Contract |
| Price Per SF | $840.74 CAD | Cap Rate | 5.95% |
| Condo Use | Office/Retail | NOI | $195,478.16 CAD |
| Unit Size | 3,910 SF |
| Price | $3,287,304 CAD |
| Price Per SF | $840.74 CAD |
| Condo Use | Office/Retail |
| Sale Type | Investment |
| Sale Status | Under Contract |
| Cap Rate | 5.95% |
| NOI | $195,478.16 CAD |
Description
Premium Downtown Durham location. Just minutes to Duke University, Research Triangle Park, the new Apple RTP
Campus and RDU Airport. Nestled amongst numerous restaurants/breweries and an easy walk to the
Durham Bulls ballpark. Ample on-site surface parking.
Sale Notes
Absolute NNN investment opportunity - office condo. 10 year NNN lease w/two 5-year options. 2.5% annual escalations.
Entry Detail
Entry
Entry
Interior
Entry
Interior
Floor Plan
Office
Office
Office
Large Kitchen
Property Facts Under Contract
| Total Building Size | 10,606 SF | Year Built | 1925 |
| Property Type | Office (Condo) | Lot Size | 0.92 AC |
| Building Class | B | Parking Ratio | 3.77/1,000 SF |
| Floors | 1 | Opportunity Zone |
Yes
|
| Typical Floor Size | 10,606 SF | ||
| Zoning | I2 | ||
| Total Building Size | 10,606 SF |
| Property Type | Office (Condo) |
| Building Class | B |
| Floors | 1 |
| Typical Floor Size | 10,606 SF |
| Year Built | 1925 |
| Lot Size | 0.92 AC |
| Parking Ratio | 3.77/1,000 SF |
| Opportunity Zone |
Yes |
| Zoning | I2 |
Presented by
618 E Ramseur St - Custom Stone Building
Hmm, there seems to have been an error sending your message. Please try again.
Thanks! Your message was sent.


