Log In/Sign Up
Your email has been sent.
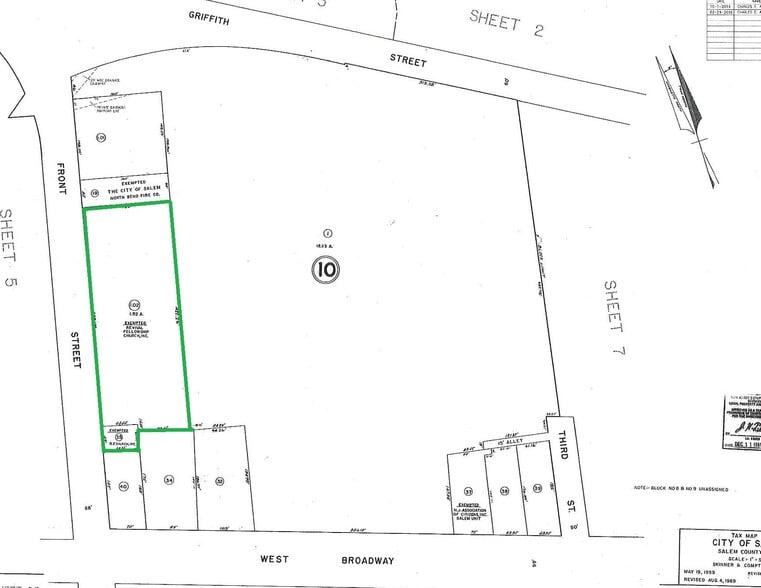
62 Front St - Revival Fellowship Church 1,800 SF Specialty Building Offered at $226,002 CAD in Salem, NJ 08079



Executive Summary
Attention Investors! Check out this 3100 +/- sf stand along building with open layout, 2 restrooms and offices sitting on 1.62 +/- acres. The property is located in the M-1 (Light Manufacturing) zoning district with gas heat, public water and sewer. Some permitted uses include retail store, restaurant, cafe, professional office, private school, personal service shops, manufacturing of clothing, beverages, medical/dental products and more.... Invest in your future today.
Property Facts
| Price | $226,002 CAD | Lot Size | 1.62 AC |
| Price Per SF | $125.56 CAD | Building Size | 1,800 SF |
| Sale Type | Investment or Owner User | No. Stories | 1 |
| Sale Condition | Deferred Maintenance | Year Built | 1960 |
| Property Type | Specialty | Tenancy | Single |
| Property Subtype | Schools | Parking Ratio | 5.56/1,000 SF |
| Building Class | C | ||
| Zoning | M-1 - Light Manufacturing | ||
| Price | $226,002 CAD |
| Price Per SF | $125.56 CAD |
| Sale Type | Investment or Owner User |
| Sale Condition | Deferred Maintenance |
| Property Type | Specialty |
| Property Subtype | Schools |
| Building Class | C |
| Lot Size | 1.62 AC |
| Building Size | 1,800 SF |
| No. Stories | 1 |
| Year Built | 1960 |
| Tenancy | Single |
| Parking Ratio | 5.56/1,000 SF |
| Zoning | M-1 - Light Manufacturing |
1 1
Somewhat walkable
20/100
Exceptionally drivable
100/100
Limited public transit
30/100
Somewhat bikeable
20/100
Property Taxes
| Parcel Number | 13-00010-0000-00035 | Improvements Assessment | $75,433 CAD |
| Land Assessment | $6,920 CAD | Total Assessment | $82,354 CAD |
Property Taxes
Parcel Number
13-00010-0000-00035
Land Assessment
$6,920 CAD
Improvements Assessment
$75,433 CAD
Total Assessment
$82,354 CAD
1 of 6
Videos
Matterport 3D Exterior
Matterport 3D Tour
Photos
Street View
Street
Map
1 of 1
Presented by
62 Front St - Revival Fellowship Church
Already a member? Log In
Hmm, there seems to have been an error sending your message. Please try again.
Thanks! Your message was sent.
