Your email has been sent.
Sublease Highlights
- Commercial kitchen configuration with existing hood, stove, and prep areas
- Drive-in and roll-up loading access enhancing operational efficiency
- Multiple walk-in freezers and refrigeration units included
- Highly connected location near major ports, bridges, and Newark Airport
Features
All Available Spaces(2)
Display Rental Rate as
- Space
- Size
- Term
- Rental Rate
- Space Use
- Build-Out
- Available
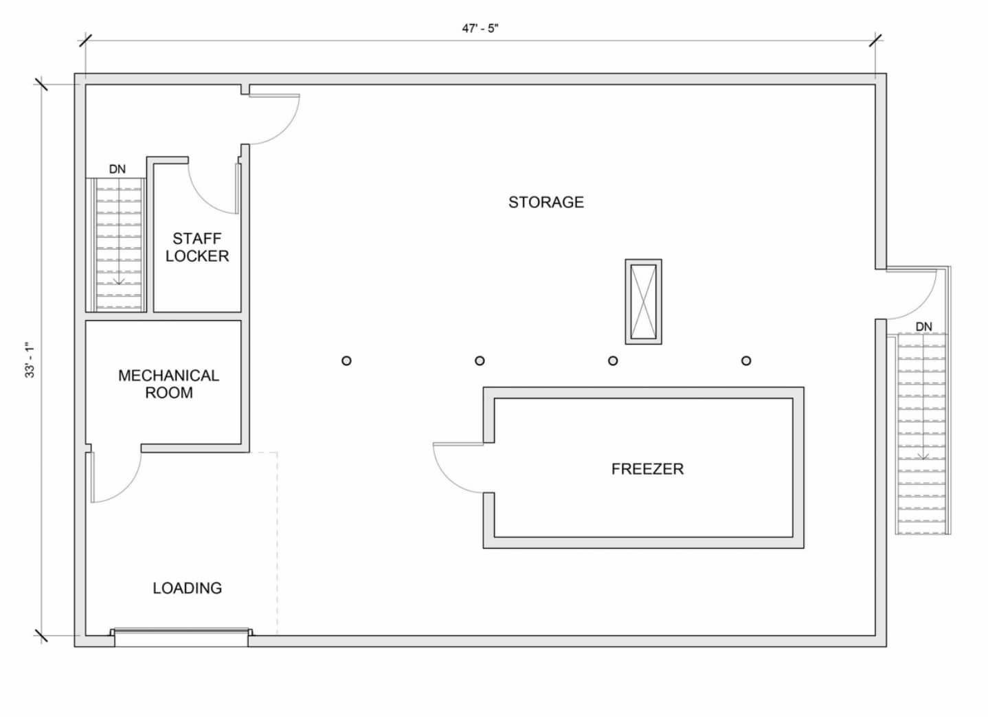
This versatile food production facility offers a unique combination of commercial kitchen infrastructure, cold storage capacity, and retail exposure in one of Central New Jersey’s most strategically connected submarkets. The two story layout provides a functional operational flow for food processing, packaging, distribution, or specialty retail concepts requiring substantial freezer and refrigeration capability.
- Sublease space available from current tenant
- Located near NJ Turnpike
- Ideal for food production and distribution
- Food production space with cold storage
- Includes walk-in freezers and refrigerators
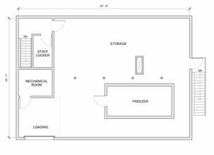
The upper level provides additional freezer space, storage, and an employee locker room, with a secondary roll-up door accessible by forklift, enabling seamless movement of product between floors.
- Sublease space available from current tenant
- Commercial kitchen configuration
- Forklift-accessible second floor roll-up door
- Freezer Space
- Multiple walk-in freezers
| Space | Size | Term | Rental Rate | Space Use | Build-Out | Available |
| 1st Floor | 1,196 SF | Negotiable | Upon Request Upon Request Upon Request Upon Request | Industrial | Partial Build-Out | Now |
| 2nd Floor | 1,569 SF | Negotiable | Upon Request Upon Request Upon Request Upon Request | Industrial | Partial Build-Out | Now |
1st Floor
| Size |
| 1,196 SF |
| Term |
| Negotiable |
| Rental Rate |
| Upon Request Upon Request Upon Request Upon Request |
| Space Use |
| Industrial |
| Build-Out |
| Partial Build-Out |
| Available |
| Now |
2nd Floor
| Size |
| 1,569 SF |
| Term |
| Negotiable |
| Rental Rate |
| Upon Request Upon Request Upon Request Upon Request |
| Space Use |
| Industrial |
| Build-Out |
| Partial Build-Out |
| Available |
| Now |
1st Floor
| Size | 1,196 SF |
| Term | Negotiable |
| Rental Rate | Upon Request |
| Space Use | Industrial |
| Build-Out | Partial Build-Out |
| Available | Now |
This versatile food production facility offers a unique combination of commercial kitchen infrastructure, cold storage capacity, and retail exposure in one of Central New Jersey’s most strategically connected submarkets. The two story layout provides a functional operational flow for food processing, packaging, distribution, or specialty retail concepts requiring substantial freezer and refrigeration capability.
- Sublease space available from current tenant
- Food production space with cold storage
- Located near NJ Turnpike
- Includes walk-in freezers and refrigerators
- Ideal for food production and distribution
2nd Floor
| Size | 1,569 SF |
| Term | Negotiable |
| Rental Rate | Upon Request |
| Space Use | Industrial |
| Build-Out | Partial Build-Out |
| Available | Now |
The upper level provides additional freezer space, storage, and an employee locker room, with a secondary roll-up door accessible by forklift, enabling seamless movement of product between floors.
- Sublease space available from current tenant
- Freezer Space
- Commercial kitchen configuration
- Multiple walk-in freezers
- Forklift-accessible second floor roll-up door
Property Overview
Free standing cold storage, commissary and food production space in the heart of Rahway. Featuring 3 freezers, vented kitchen and multiple prep areas with a ground floor and second story drive-in, great space for food production and distribution. Front foyer offers an area for retail and current tenant has been serving the community with walk-in traffic since they opened. Close to downtown and the train station. Features both on street parking, a driveway, and additional parking across the street. Unique opportunity for any active ghost kitchen, food production, and cold storage user looking for in place cold storage and the perfect location nearby everything. Positioned in Rahway, the property benefits from exceptional connectivity to major transportation arteries. It sits within a short distance of the NJ Turnpike, Goethals Bridge, I-78, and the Holland Tunnel, providing direct access to Manhattan, the regional port network, and Newark Liberty International Airport, only 13 miles away. These logistics advantages make the location particularly appealing for food manufacturers, distributors, meal-prep operations, and specialty grocers serving the dense consumer base of Northern and Central New Jersey.
Property Facts
Select Tenants
- Tenant Name
- Industry
- Piece Of Cake
- Wholesaler
Presented by
62 W Inman Ave
Hmm, there seems to have been an error sending your message. Please try again.
Thanks! Your message was sent.









