Log In/Sign Up
Your email has been sent.
All Available Space(1)
Display Rental Rate as
- Space
- Size
- Term
- Rental Rate
- Space Use
- Build-Out
- Available
The property is conveniently located at the intersection of Baker Road and Hwy 62, approximately 15 miles from MSP Airport and less than 15 miles from Downtown Minneapolis.
- Listed rate may not include certain utilities, building services and property expenses
- Mostly Open Floor Plan Layout
- Furniture can stay or go
- Drivable retail and nearby amenities
- Fully Built-Out as Standard Office
- Fits 12 - 36 People
- Strong ownership
- Conference room and private offices
| Space | Size | Term | Rental Rate | Space Use | Build-Out | Available |
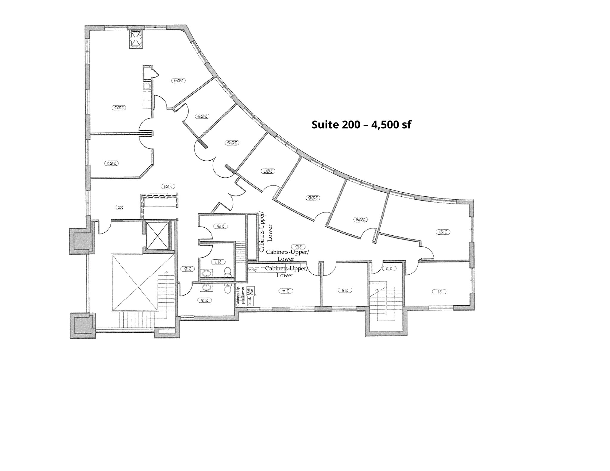
| 2nd Floor, Ste 200 | 4,500 SF | Negotiable | $34.14 CAD/SF/YR $2.85 CAD/SF/MO $153,637 CAD/YR $12,803 CAD/MO | Office | Full Build-Out | 30 Days |
2nd Floor, Ste 200
| Size |
| 4,500 SF |
| Term |
| Negotiable |
| Rental Rate |
| $34.14 CAD/SF/YR $2.85 CAD/SF/MO $153,637 CAD/YR $12,803 CAD/MO |
| Space Use |
| Office |
| Build-Out |
| Full Build-Out |
| Available |
| 30 Days |
1 of 1
Videos
Matterport 3D Exterior
Matterport 3D Tour
Photos
Street View
Street
Map
2nd Floor, Ste 200
| Size | 4,500 SF |
| Term | Negotiable |
| Rental Rate | $34.14 CAD/SF/YR |
| Space Use | Office |
| Build-Out | Full Build-Out |
| Available | 30 Days |
The property is conveniently located at the intersection of Baker Road and Hwy 62, approximately 15 miles from MSP Airport and less than 15 miles from Downtown Minneapolis.
- Listed rate may not include certain utilities, building services and property expenses
- Fully Built-Out as Standard Office
- Mostly Open Floor Plan Layout
- Fits 12 - 36 People
- Furniture can stay or go
- Strong ownership
- Drivable retail and nearby amenities
- Conference room and private offices
Property Overview
Freestanding office property on Baker Rd & County Road 62.
- Conferencing Facility
Property Facts
Building Type
Office
Year Built
1996
Building Height
2 Stories
Building Size
8,780 SF
Building Class
B
Typical Floor Size
4,500 SF
Parking
43 Surface Parking Spaces
1 1
Fairly walkable
40/100
Exceptionally drivable
100/100
Fairly bikeable
40/100
1 of 5
Videos
Matterport 3D Exterior
Matterport 3D Tour
Photos
Street View
Street
Map
1 of 1
Presented by
6200 Baker Rd
Already a member? Log In
Hmm, there seems to have been an error sending your message. Please try again.
Thanks! Your message was sent.





