Log In/Sign Up
Your email has been sent.
6202 402nd St 14,475 SF Industrial Building North Branch, MN 55056 $2,039,250 CAD ($140.88 CAD/SF)



Investment Highlights
- Building was Constructed in 2022
- Potential Short Term Lease Back
- Property is will be Available January 1, 2027
- Large Warehouse with Multiple Drive in and Doc doors
- Great Access to the City of North Branch and Interstate 35
Executive Summary
Modern Industrial Opportunity in North Branch, MN
Premium Office/Warehouse Facility | 14,475 SF on 2.45 Acres
Step into a rare, near-new industrial facility that blends high-end office space with a highly functional warehouse—all strategically positioned in one of North Branch’s established industrial corridors. Built in 2022, this 14,475 SF metal building delivers the modern efficiencies today’s users demand, along with the room to grow, scale, and thrive.
A Space Built for Performance
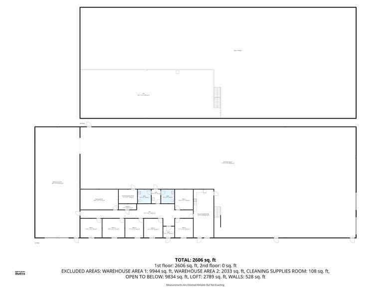
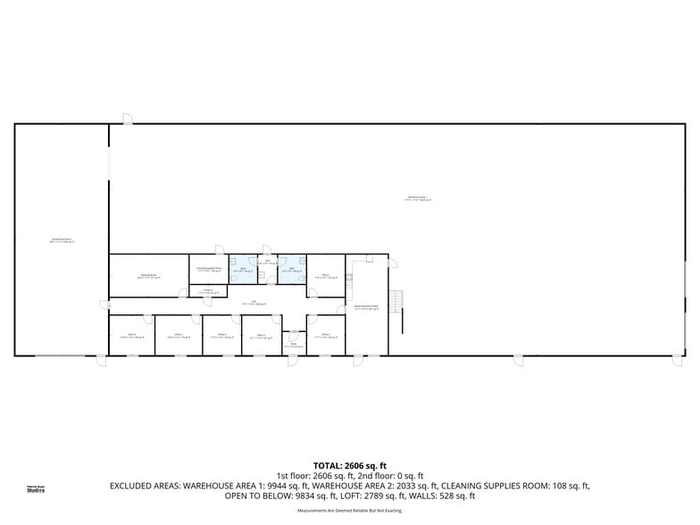
This property is designed to support seamless business operations. With 9 private offices, your team will enjoy a comfortable, professional environment with room for collaboration and focus. Beyond the office, the expansive warehouse features a drain system, ideal for operations requiring washdown areas, equipment cleaning, or enhanced facility maintenance.
Storage & Flexibility, Elevated
Take advantage of the large mezzanine level, offering substantial onsite storage that keeps your floor space open and productive. Whether you’re storing inventory, staging materials, or creating flex work areas, this added vertical capacity is a major asset rarely found in newer builds.
A Site That Works as Hard as You Do
Situated on 2.45 acres, the property provides plenty of exterior space—accommodating parking, vehicle/equipment staging, or future expansion. The grounds are professionally landscaped and supported by a full sprinkler irrigation system for long-term ease and low maintenance.
Why This Property Stands Out
Built in 2022 — modern, efficient, and move-in ready
Beautiful office build-out with 9 offices
Warehouse drain system for enhanced operational flexibility
Expansive mezzanine for additional storage
2.45-acre lot in a strong industrial area
Durable metal construction designed for longevity
Ideal for industrial, logistics, service, or hybrid office/warehouse users
Premium Office/Warehouse Facility | 14,475 SF on 2.45 Acres
Step into a rare, near-new industrial facility that blends high-end office space with a highly functional warehouse—all strategically positioned in one of North Branch’s established industrial corridors. Built in 2022, this 14,475 SF metal building delivers the modern efficiencies today’s users demand, along with the room to grow, scale, and thrive.
A Space Built for Performance
This property is designed to support seamless business operations. With 9 private offices, your team will enjoy a comfortable, professional environment with room for collaboration and focus. Beyond the office, the expansive warehouse features a drain system, ideal for operations requiring washdown areas, equipment cleaning, or enhanced facility maintenance.
Storage & Flexibility, Elevated
Take advantage of the large mezzanine level, offering substantial onsite storage that keeps your floor space open and productive. Whether you’re storing inventory, staging materials, or creating flex work areas, this added vertical capacity is a major asset rarely found in newer builds.
A Site That Works as Hard as You Do
Situated on 2.45 acres, the property provides plenty of exterior space—accommodating parking, vehicle/equipment staging, or future expansion. The grounds are professionally landscaped and supported by a full sprinkler irrigation system for long-term ease and low maintenance.
Why This Property Stands Out
Built in 2022 — modern, efficient, and move-in ready
Beautiful office build-out with 9 offices
Warehouse drain system for enhanced operational flexibility
Expansive mezzanine for additional storage
2.45-acre lot in a strong industrial area
Durable metal construction designed for longevity
Ideal for industrial, logistics, service, or hybrid office/warehouse users
Taxes & Operating Expenses (Actual - 2024) |
Annual (CAD) | Annual Per SF (CAD) |
|---|---|---|
| Taxes |
$51,030
|
$3.53
|
| Operating Expenses |
-
|
-
|
| Total Expenses |
$51,030
|
$3.53
|
Taxes & Operating Expenses (Actual - 2024)
| Taxes (CAD) | |
|---|---|
| Annual | $51,030 |
| Annual Per SF | $3.53 |
| Operating Expenses (CAD) | |
|---|---|
| Annual | - |
| Annual Per SF | - |
| Total Expenses (CAD) | |
|---|---|
| Annual | $51,030 |
| Annual Per SF | $3.53 |
Property Facts
Amenities
- Controlled Access
- Floor Drains
- Mezzanine
- Security System
- Storage Space
- Air Conditioning
- Fiber Optic Internet
- Smoke Detector
- Breakroom
Utilities
- Lighting
- Gas - Natural
- Water - City
- Sewer - City
- Heating
1 1
Somewhat walkable
20/100
Exceptionally drivable
100/100
Moderately bikeable
60/100
Property Taxes
| Parcel Number | 11-01072-27 | Total Assessment | $1,734,557 CAD |
| Land Assessment | $0 CAD | Annual Taxes | $51,030 CAD ($3.53 CAD/SF) |
| Improvements Assessment | $0 CAD | Tax Year | 2024 Payable 2025 |
Property Taxes
Parcel Number
11-01072-27
Land Assessment
$0 CAD
Improvements Assessment
$0 CAD
Total Assessment
$1,734,557 CAD
Annual Taxes
$51,030 CAD ($3.53 CAD/SF)
Tax Year
2024 Payable 2025
1 of 31
Videos
Matterport 3D Exterior
Matterport 3D Tour
Photos
Street View
Street
Map
1 of 1
Presented by
6202 402nd St
Already a member? Log In
Hmm, there seems to have been an error sending your message. Please try again.
Thanks! Your message was sent.
