Log In/Sign Up
Your email has been sent.
Building 3 624 B Ave E 107,500 SF of Industrial Space Available in Seymour, IN 47274



Features
Drive In Bays
3
Exterior Dock Doors
6
Standard Parking Spaces
40
All Available Space(1)
Display Rental Rate as
- Space
- Size
- Term
- Rental Rate
- Space Use
- Build-Out
- Available
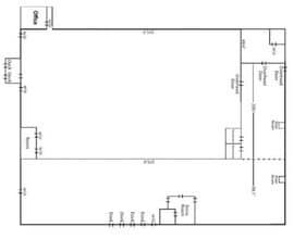
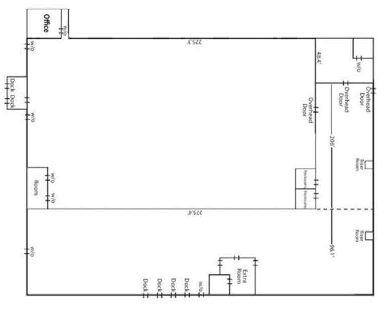
107,500 square feet available 11/1/25. Space is in multiple sections, including some partitioned office space.
- 3 Drive Ins
- Partitioned Offices
- Emergency Lighting
- 6 Loading Docks
- Private Restrooms
| Space | Size | Term | Rental Rate | Space Use | Build-Out | Available |
| 1st Floor | 107,500 SF | Negotiable | Upon Request Upon Request Upon Request Upon Request | Industrial | - | Now |
1st Floor
| Size |
| 107,500 SF |
| Term |
| Negotiable |
| Rental Rate |
| Upon Request Upon Request Upon Request Upon Request |
| Space Use |
| Industrial |
| Build-Out |
| - |
| Available |
| Now |
1 of 1
Videos
Matterport 3D Exterior
Matterport 3D Tour
Photos
Street View
Street
Map
1st Floor
| Size | 107,500 SF |
| Term | Negotiable |
| Rental Rate | Upon Request |
| Space Use | Industrial |
| Build-Out | - |
| Available | Now |
107,500 square feet available 11/1/25. Space is in multiple sections, including some partitioned office space.
- 3 Drive Ins
- 6 Loading Docks
- Partitioned Offices
- Private Restrooms
- Emergency Lighting
Property Overview
107,500 square feet of warehouse space, located in Freeman Field in Seymour, IN. Located only 4 miles from Interstate I-65.
Warehouse Facility Facts
Building Size
107,500 SF
Lot Size
8.25 AC
Year Built
1954
Construction
Reinforced Concrete
Sprinkler System
Wet
Zoning
I-2 - Industrial
1 1
Somewhat walkable
30/100
Very drivable
80/100
Somewhat bikeable
30/100
1 of 5
Videos
Matterport 3D Exterior
Matterport 3D Tour
Photos
Street View
Street
Map
1 of 1
Presented by
Building 3 | 624 B Ave E
Already a member? Log In
Hmm, there seems to have been an error sending your message. Please try again.
Thanks! Your message was sent.


