Your email has been sent.
10/17 Logistics Center 625 S 27th Ave 12,400 - 218,858 SF of 4-Star Industrial Space Available in Phoenix, AZ 85009



Highlights
- 22’ Clear Height
Features
All Available Spaces(3)
Display Rental Rate as
- Space
- Size
- Term
- Rental Rate
- Space Use
- Build-Out
- Available
Fully Fenced & Secure with on-site Security » Drive-in Ramps Available » New Ownership to make Major Improvements
- Lease rate does not include utilities, property expenses or building services
- Space is in Excellent Condition
- 4 Loading Docks
- Power up to 3,000 AMPs
- LED lighting
- Fire sprinklers
- Includes 800 SF of dedicated office space
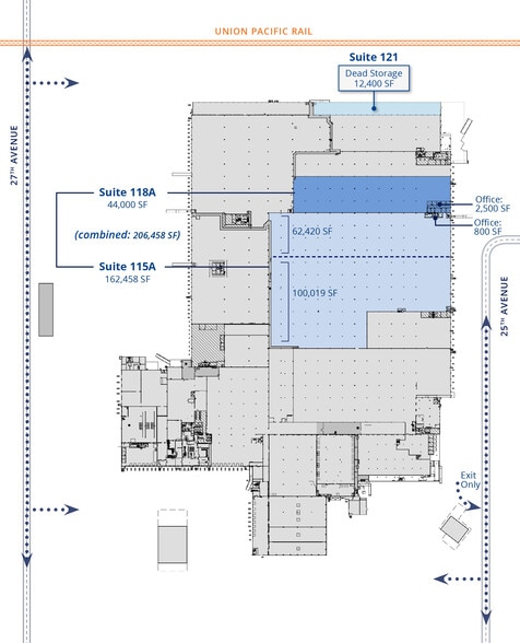
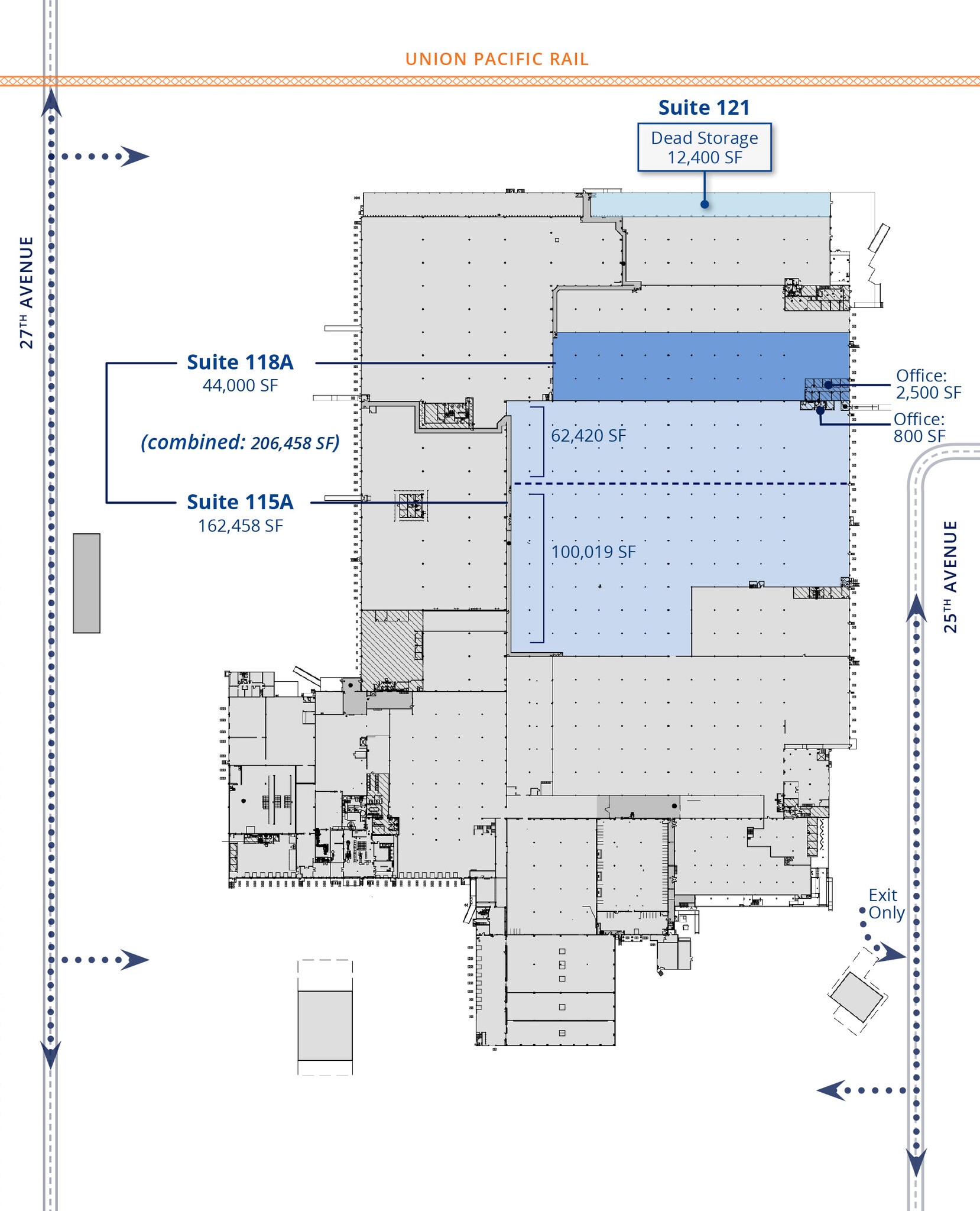
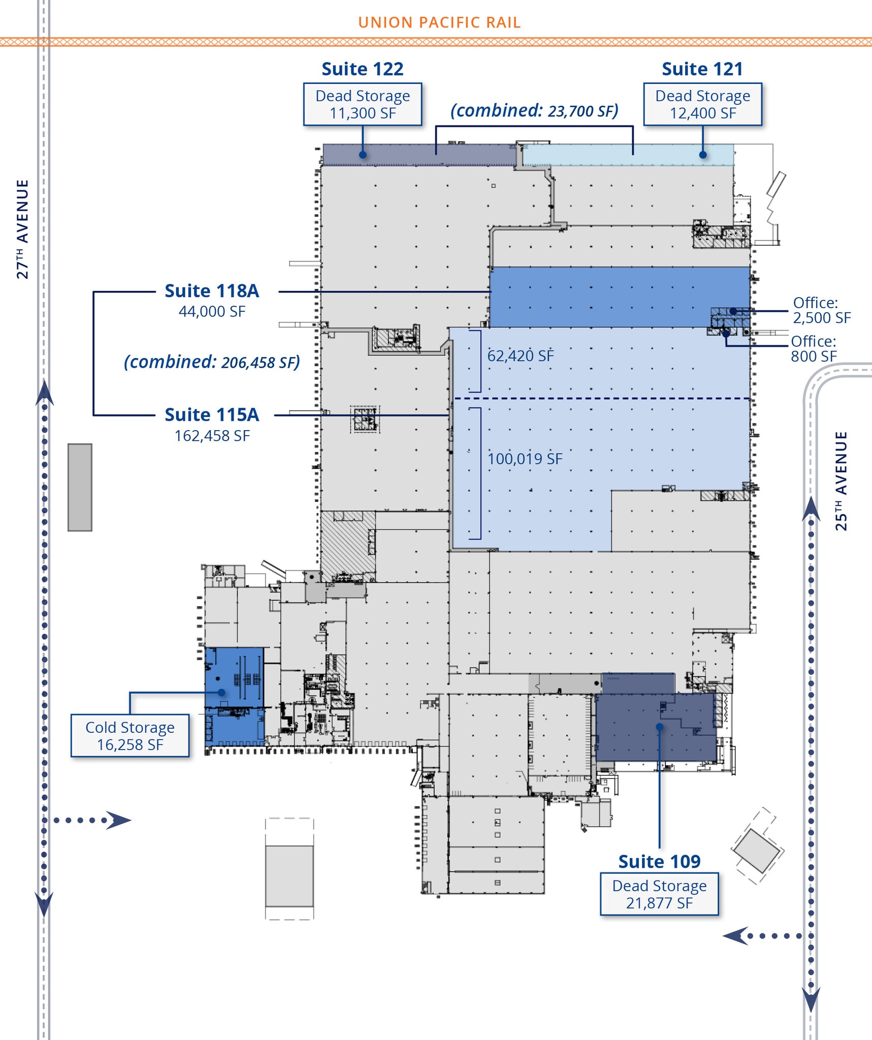
- Can be combined with additional space(s) for up to 206,458 SF of adjacent space
- Central Air Conditioning
- 22' clear height
- Natural gas on-site
- Drive-in ramps available
Fully Fenced & Secure with on-site Security » Drive-in Ramps Available » New Ownership to make Major Improvements
- Lease rate does not include utilities, property expenses or building services
- Space is in Excellent Condition
- 13 Loading Docks
- Power up to 3,000 AMPs
- LED lighting
- Fire sprinklers
- Includes 2,500 SF of dedicated office space
- Can be combined with additional space(s) for up to 206,458 SF of adjacent space
- Central Air Conditioning
- 22' clear height
- Natural gas on-site
- Drive-in ramps available
- Lease rate does not include utilities, property expenses or building services
- 1 Drive Bay
| Space | Size | Term | Rental Rate | Space Use | Build-Out | Available |
| 1st Floor - 115A | 62,420-162,458 SF | Negotiable | $12.11 CAD/SF/YR $1.01 CAD/SF/MO $1,968,090 CAD/YR $164,007 CAD/MO | Industrial | Full Build-Out | Now |
| 1st Floor - 118A | 44,000 SF | Negotiable | $13.10 CAD/SF/YR $1.09 CAD/SF/MO $576,255 CAD/YR $48,021 CAD/MO | Industrial | Full Build-Out | Now |
| 1st Floor - 121 | 12,400 SF | Negotiable | $11.46 CAD/SF/YR $0.95 CAD/SF/MO $142,099 CAD/YR $11,842 CAD/MO | Industrial | - | Now |
1st Floor - 115A
| Size |
| 62,420-162,458 SF |
| Term |
| Negotiable |
| Rental Rate |
| $12.11 CAD/SF/YR $1.01 CAD/SF/MO $1,968,090 CAD/YR $164,007 CAD/MO |
| Space Use |
| Industrial |
| Build-Out |
| Full Build-Out |
| Available |
| Now |
1st Floor - 118A
| Size |
| 44,000 SF |
| Term |
| Negotiable |
| Rental Rate |
| $13.10 CAD/SF/YR $1.09 CAD/SF/MO $576,255 CAD/YR $48,021 CAD/MO |
| Space Use |
| Industrial |
| Build-Out |
| Full Build-Out |
| Available |
| Now |
1st Floor - 121
| Size |
| 12,400 SF |
| Term |
| Negotiable |
| Rental Rate |
| $11.46 CAD/SF/YR $0.95 CAD/SF/MO $142,099 CAD/YR $11,842 CAD/MO |
| Space Use |
| Industrial |
| Build-Out |
| - |
| Available |
| Now |
1st Floor - 115A
| Size | 62,420-162,458 SF |
| Term | Negotiable |
| Rental Rate | $12.11 CAD/SF/YR |
| Space Use | Industrial |
| Build-Out | Full Build-Out |
| Available | Now |
Fully Fenced & Secure with on-site Security » Drive-in Ramps Available » New Ownership to make Major Improvements
- Lease rate does not include utilities, property expenses or building services
- Includes 800 SF of dedicated office space
- Space is in Excellent Condition
- Can be combined with additional space(s) for up to 206,458 SF of adjacent space
- 4 Loading Docks
- Central Air Conditioning
- Power up to 3,000 AMPs
- 22' clear height
- LED lighting
- Natural gas on-site
- Fire sprinklers
- Drive-in ramps available
1st Floor - 118A
| Size | 44,000 SF |
| Term | Negotiable |
| Rental Rate | $13.10 CAD/SF/YR |
| Space Use | Industrial |
| Build-Out | Full Build-Out |
| Available | Now |
Fully Fenced & Secure with on-site Security » Drive-in Ramps Available » New Ownership to make Major Improvements
- Lease rate does not include utilities, property expenses or building services
- Includes 2,500 SF of dedicated office space
- Space is in Excellent Condition
- Can be combined with additional space(s) for up to 206,458 SF of adjacent space
- 13 Loading Docks
- Central Air Conditioning
- Power up to 3,000 AMPs
- 22' clear height
- LED lighting
- Natural gas on-site
- Fire sprinklers
- Drive-in ramps available
1st Floor - 121
| Size | 12,400 SF |
| Term | Negotiable |
| Rental Rate | $11.46 CAD/SF/YR |
| Space Use | Industrial |
| Build-Out | - |
| Available | Now |
- Lease rate does not include utilities, property expenses or building services
- 1 Drive Bay
Property Overview
Building Size: ±850,000 SF » Available Sizes: 44,000 SF (Suite 118A) — Move-in ready 162,458 SF (Suite 115A)*
Warehouse Facility Facts
Select Tenants
- Floor
- Tenant Name
- Industry
- 1st
- Absolut Restoration
- Services
- 1st
- Assurance Moving & Storage
- Transportation and Warehousing
- 1st
- J. B. Hunt
- Transportation and Warehousing
- 1st
- Pacific Refrigerated Services Inc
- Transportation and Warehousing
- 1st
- Salad And Go
- Accommodation and Food Services
- 1st
- Southerland Inc
- Retailer
Presented by
10/17 Logistics Center | 625 S 27th Ave
Hmm, there seems to have been an error sending your message. Please try again.
Thanks! Your message was sent.






