Log In/Sign Up
Your email has been sent.
Investment Highlights
- Fully paved and secured 1.25-acre site in Seaco Business Park.
- Immediate access to Highway 225 and Beltway 8 for regional connectivity.
- Outdoor storage and ample employee parking for operational flexibility.
- 8,100-sf building with 16-foot clear height and grade-level loading.
- 400 amps, 3-phase power supporting heavy industrial operations.
Executive Summary
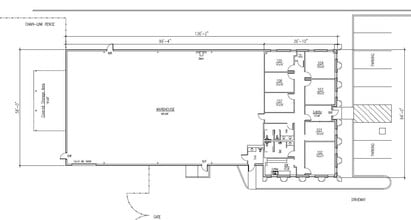
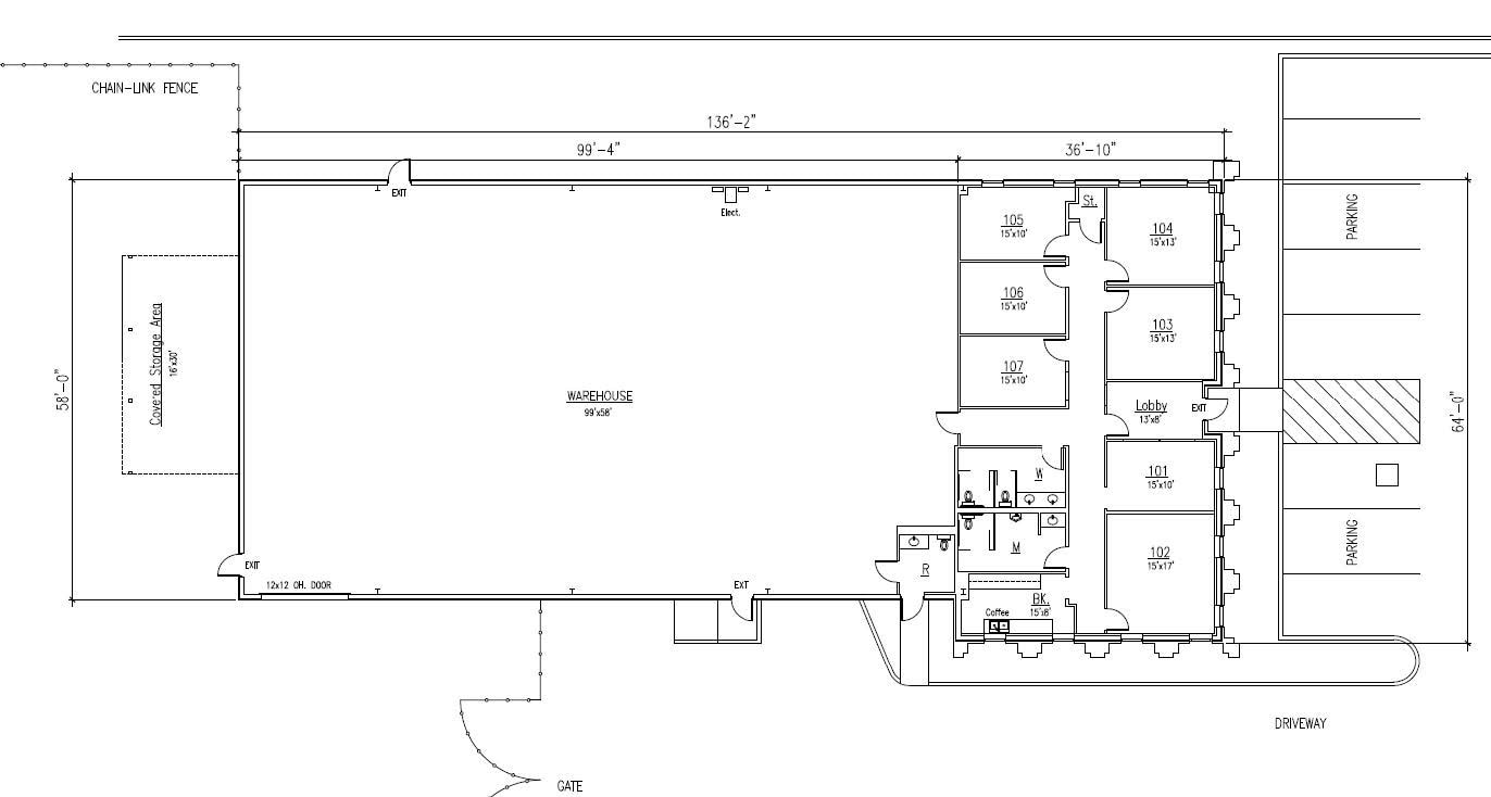
Positioned in the heart of Deer Park’s thriving industrial corridor, 629 Howard Drive offers a rare opportunity to own a fully stabilized property with exceptional connectivity to Houston’s major transportation arteries. This 8,100-square-foot facility sits on 1.25 acres within the established Seaco Business Park, providing a secure, fully paved site ideal for logistics, manufacturing, or service operations. The building features a 5,760-square-foot warehouse with 16-foot clear height and grade-level loading, complemented by 2,340 square feet of office space designed for operational efficiency.
Strategically located just off Highway 225 and Beltway 8, the property ensures seamless access to the Port of Houston, petrochemical complexes, and regional distribution hubs. With 400 amps of 3-phase power, ample employee parking, and outdoor storage capabilities, this asset is tailored for businesses seeking scalability and reliability. Deer Park’s pro-business environment and proximity to Houston’s industrial base further enhance long-term value, making this an attractive acquisition for owner-users or investors targeting strong rental demand in the Gulf Coast market.
Strategically located just off Highway 225 and Beltway 8, the property ensures seamless access to the Port of Houston, petrochemical complexes, and regional distribution hubs. With 400 amps of 3-phase power, ample employee parking, and outdoor storage capabilities, this asset is tailored for businesses seeking scalability and reliability. Deer Park’s pro-business environment and proximity to Houston’s industrial base further enhance long-term value, making this an attractive acquisition for owner-users or investors targeting strong rental demand in the Gulf Coast market.
Property Facts
| Sale Type | Investment or Owner User | No. Stories | 1 |
| Property Type | Industrial | Year Built | 1999 |
| Property Subtype | Manufacturing | Tenancy | Single |
| Building Class | B | Parking Ratio | 3.7/1,000 SF |
| Lot Size | 1.00 AC | Clear Ceiling Height | 16’ |
| Rentable Building Area | 8,100 SF | No. Drive In / Grade-Level Doors | 3 |
| Sale Type | Investment or Owner User |
| Property Type | Industrial |
| Property Subtype | Manufacturing |
| Building Class | B |
| Lot Size | 1.00 AC |
| Rentable Building Area | 8,100 SF |
| No. Stories | 1 |
| Year Built | 1999 |
| Tenancy | Single |
| Parking Ratio | 3.7/1,000 SF |
| Clear Ceiling Height | 16’ |
| No. Drive In / Grade-Level Doors | 3 |
Amenities
- Fenced Lot
- Storage Space
Space Availability
- Space
- Size
- Space Use
- Build-Out
- Available
| Space | Size | Space Use | Build-Out | Available |
| 1st Floor | 8,100 SF | Industrial | Full Build-Out | 30 Days |
1st Floor
| Size |
| 8,100 SF |
| Space Use |
| Industrial |
| Build-Out |
| Full Build-Out |
| Available |
| 30 Days |
1 of 1
Videos
Matterport 3D Exterior
Matterport 3D Tour
Photos
Street View
Street
Map
1st Floor
| Size | 8,100 SF |
| Space Use | Industrial |
| Build-Out | Full Build-Out |
| Available | 30 Days |
Somewhat walkable
30/100
Exceptionally drivable
100/100
Fairly bikeable
40/100
Property Taxes
| Parcel Number | 1053050000017 | Improvements Assessment | $1,859,494 CAD |
| Land Assessment | $829,418 CAD | Total Assessment | $2,688,913 CAD |
Property Taxes
Parcel Number
1053050000017
Land Assessment
$829,418 CAD
Improvements Assessment
$1,859,494 CAD
Total Assessment
$2,688,913 CAD
1 of 15
Videos
Matterport 3D Exterior
Matterport 3D Tour
Photos
Street View
Street
Map
Presented by
Bldg B | 629 Howard Dr
Already a member? Log In
Hmm, there seems to have been an error sending your message. Please try again.
Thanks! Your message was sent.






