Your email has been sent.
6300 Wilshire 6300 Wilshire Blvd 1,246 - 78,251 SF of 4-Star Office Space Available in Los Angeles, CA 90048



Highlights
- Brand new ground floor renovation including a new café, fitness gym, tenant lounge and conference room center.
- Luxurious interior finishes, efficient and flexible floor plates, extraordinary views in all directions.
- The Metro purple line subway extension is scheduled to be complete in 2023 and will run along Wilshire Blvd with multiple stops in the Miracle Mile.
- Newly renovated and spacious lobby designed by Wolcott Architects and outdoor seating area.
- Valet parking, on-site property management office and 24 hour security.
All Available Spaces(11)
Display Rental Rate as
- Space
- Size
- Term
- Rental Rate
- Space Use
- Build-Out
- Available
Brand-new creative spec suite encompassing the full east side of the building. 4 offices, large conference room, open kitchenette, copy area & bullpen.
- Rate includes utilities, building services and property expenses
- 4 Private Offices
- Space is in Excellent Condition
- Mostly Open Floor Plan Layout
- 1 Conference Room
- Central Air Conditioning
Brand-new creative spec suite with executive office/huddle room, 1 office, open kitchenette & bullpen.
- Rate includes utilities, building services and property expenses
- 1 Private Office
- Mostly Open Floor Plan Layout
- Space is in Excellent Condition
Brand-new creative spec suite with executive office/huddle room, 1 office, open kitchenette & bullpen.
- Rate includes utilities, building services and property expenses
- 1 Private Office
- Central Air Conditioning
- Mostly Open Floor Plan Layout
- Space is in Excellent Condition
Second generation spec suite with three perimeter offices, interior conference room, open kitchenette. *Suites 810/820/830 are able to be combined for a total of 5,843 RSF.
- Rate includes utilities, building services and property expenses
- 3 Private Offices
- Space is in Excellent Condition
- Mostly Open Floor Plan Layout
- 1 Conference Room
- Central Air Conditioning
Second generation spec suite with 3 offices, conference room, enclosed kitchenette & bullpen area. *Suites 810/820/830 are able to be combined for a total of 5,843 RSF.
- Rate includes utilities, building services and property expenses
- 3 Private Offices
- Space is in Excellent Condition
- Mostly Open Floor Plan Layout
- 1 Conference Room
- Central Air Conditioning
Brand-new creative spec suite with 6 perimeter offices, a large conference room, IT/storage, open kitchenette and copy area.
- Rate includes utilities, building services and property expenses
- 6 Private Offices
- Space is in Excellent Condition
- Mostly Open Floor Plan Layout
- 1 Conference Room
- Central Air Conditioning
Full floor; Build-to-Suit opportunity
- Rate includes utilities, building services and property expenses
- Central Air Conditioning
- Mostly Open Floor Plan Layout
Creative spec suite with 3 offices, conference room and open kitchenette.
- Rate includes utilities, building services and property expenses
- 3 Private Offices
- Central Air Conditioning
- Mostly Open Floor Plan Layout
- 1 Conference Room
- Rate includes utilities, building services and property expenses
- Mostly Open Floor Plan Layout
- Partially Built-Out as Standard Office
- Central Air Conditioning
Custom creative double-door entry corner space with multiple offices and breakout rooms, large conference room, kitchen/entertaining area, bullpen & “great room” with stadium seating.
- Rate includes utilities, building services and property expenses
- Mostly Open Floor Plan Layout
- Central Air Conditioning
- Fully Built-Out as Standard Office
- Space is in Excellent Condition
Top full floor with building top signage opportunity. 15’ slab-to-slab and currently in whiteboxed shell condition.
- Rate includes utilities, building services and property expenses
- Space is in Excellent Condition
- Mostly Open Floor Plan Layout
- Central Air Conditioning
| Space | Size | Term | Rental Rate | Space Use | Build-Out | Available |
| 7th Floor, Ste 704 | 4,363 SF | Negotiable | $65.06 CAD/SF/YR $5.42 CAD/SF/MO $283,837 CAD/YR $23,653 CAD/MO | Office | Spec Suite | Now |
| 7th Floor, Ste 705 | 1,246 SF | 3-5 Years | $65.06 CAD/SF/YR $5.42 CAD/SF/MO $81,059 CAD/YR $6,755 CAD/MO | Office | Spec Suite | Now |
| 7th Floor, Ste 707 | 1,247 SF | Negotiable | $65.06 CAD/SF/YR $5.42 CAD/SF/MO $81,124 CAD/YR $6,760 CAD/MO | Office | Spec Suite | Now |
| 8th Floor, Ste 810 | 2,039 SF | Negotiable | $65.06 CAD/SF/YR $5.42 CAD/SF/MO $132,648 CAD/YR $11,054 CAD/MO | Office | Spec Suite | Now |
| 8th Floor, Ste 820 | 1,687 SF | Negotiable | $65.06 CAD/SF/YR $5.42 CAD/SF/MO $109,749 CAD/YR $9,146 CAD/MO | Office | Spec Suite | Now |
| 9th Floor, Ste 950 | 4,254 SF | 3-5 Years | $65.06 CAD/SF/YR $5.42 CAD/SF/MO $276,746 CAD/YR $23,062 CAD/MO | Office | Spec Suite | Now |
| 11th Floor, Ste 1100 | 23,279 SF | 3-5 Years | $65.06 CAD/SF/YR $5.42 CAD/SF/MO $1,514,428 CAD/YR $126,202 CAD/MO | Office | Spec Suite | Now |
| 15th Floor, Ste 1507 | 2,783 SF | 3-5 Years | $65.06 CAD/SF/YR $5.42 CAD/SF/MO $181,050 CAD/YR $15,087 CAD/MO | Office | Spec Suite | Now |
| 17th Floor, Ste 1720 | 3,140 SF | Negotiable | $70.00 CAD/SF/YR $5.83 CAD/SF/MO $219,789 CAD/YR $18,316 CAD/MO | Office | Partial Build-Out | Now |
| 21st Floor, Ste 2150 | 10,496 SF | Negotiable | $70.00 CAD/SF/YR $5.83 CAD/SF/MO $734,683 CAD/YR $61,224 CAD/MO | Office | Full Build-Out | Now |
| 22nd Floor, Ste 2200 | 23,717 SF | 3-5 Years | $70.00 CAD/SF/YR $5.83 CAD/SF/MO $1,660,107 CAD/YR $138,342 CAD/MO | Office | Shell Space | Now |
7th Floor, Ste 704
| Size |
| 4,363 SF |
| Term |
| Negotiable |
| Rental Rate |
| $65.06 CAD/SF/YR $5.42 CAD/SF/MO $283,837 CAD/YR $23,653 CAD/MO |
| Space Use |
| Office |
| Build-Out |
| Spec Suite |
| Available |
| Now |
7th Floor, Ste 705
| Size |
| 1,246 SF |
| Term |
| 3-5 Years |
| Rental Rate |
| $65.06 CAD/SF/YR $5.42 CAD/SF/MO $81,059 CAD/YR $6,755 CAD/MO |
| Space Use |
| Office |
| Build-Out |
| Spec Suite |
| Available |
| Now |
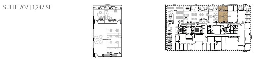
7th Floor, Ste 707
| Size |
| 1,247 SF |
| Term |
| Negotiable |
| Rental Rate |
| $65.06 CAD/SF/YR $5.42 CAD/SF/MO $81,124 CAD/YR $6,760 CAD/MO |
| Space Use |
| Office |
| Build-Out |
| Spec Suite |
| Available |
| Now |
8th Floor, Ste 810
| Size |
| 2,039 SF |
| Term |
| Negotiable |
| Rental Rate |
| $65.06 CAD/SF/YR $5.42 CAD/SF/MO $132,648 CAD/YR $11,054 CAD/MO |
| Space Use |
| Office |
| Build-Out |
| Spec Suite |
| Available |
| Now |
8th Floor, Ste 820
| Size |
| 1,687 SF |
| Term |
| Negotiable |
| Rental Rate |
| $65.06 CAD/SF/YR $5.42 CAD/SF/MO $109,749 CAD/YR $9,146 CAD/MO |
| Space Use |
| Office |
| Build-Out |
| Spec Suite |
| Available |
| Now |
9th Floor, Ste 950
| Size |
| 4,254 SF |
| Term |
| 3-5 Years |
| Rental Rate |
| $65.06 CAD/SF/YR $5.42 CAD/SF/MO $276,746 CAD/YR $23,062 CAD/MO |
| Space Use |
| Office |
| Build-Out |
| Spec Suite |
| Available |
| Now |
11th Floor, Ste 1100
| Size |
| 23,279 SF |
| Term |
| 3-5 Years |
| Rental Rate |
| $65.06 CAD/SF/YR $5.42 CAD/SF/MO $1,514,428 CAD/YR $126,202 CAD/MO |
| Space Use |
| Office |
| Build-Out |
| Spec Suite |
| Available |
| Now |
15th Floor, Ste 1507
| Size |
| 2,783 SF |
| Term |
| 3-5 Years |
| Rental Rate |
| $65.06 CAD/SF/YR $5.42 CAD/SF/MO $181,050 CAD/YR $15,087 CAD/MO |
| Space Use |
| Office |
| Build-Out |
| Spec Suite |
| Available |
| Now |
17th Floor, Ste 1720
| Size |
| 3,140 SF |
| Term |
| Negotiable |
| Rental Rate |
| $70.00 CAD/SF/YR $5.83 CAD/SF/MO $219,789 CAD/YR $18,316 CAD/MO |
| Space Use |
| Office |
| Build-Out |
| Partial Build-Out |
| Available |
| Now |
21st Floor, Ste 2150
| Size |
| 10,496 SF |
| Term |
| Negotiable |
| Rental Rate |
| $70.00 CAD/SF/YR $5.83 CAD/SF/MO $734,683 CAD/YR $61,224 CAD/MO |
| Space Use |
| Office |
| Build-Out |
| Full Build-Out |
| Available |
| Now |
22nd Floor, Ste 2200
| Size |
| 23,717 SF |
| Term |
| 3-5 Years |
| Rental Rate |
| $70.00 CAD/SF/YR $5.83 CAD/SF/MO $1,660,107 CAD/YR $138,342 CAD/MO |
| Space Use |
| Office |
| Build-Out |
| Shell Space |
| Available |
| Now |
7th Floor, Ste 704
| Size | 4,363 SF |
| Term | Negotiable |
| Rental Rate | $65.06 CAD/SF/YR |
| Space Use | Office |
| Build-Out | Spec Suite |
| Available | Now |
Brand-new creative spec suite encompassing the full east side of the building. 4 offices, large conference room, open kitchenette, copy area & bullpen.
- Rate includes utilities, building services and property expenses
- Mostly Open Floor Plan Layout
- 4 Private Offices
- 1 Conference Room
- Space is in Excellent Condition
- Central Air Conditioning
7th Floor, Ste 705
| Size | 1,246 SF |
| Term | 3-5 Years |
| Rental Rate | $65.06 CAD/SF/YR |
| Space Use | Office |
| Build-Out | Spec Suite |
| Available | Now |
Brand-new creative spec suite with executive office/huddle room, 1 office, open kitchenette & bullpen.
- Rate includes utilities, building services and property expenses
- Mostly Open Floor Plan Layout
- 1 Private Office
- Space is in Excellent Condition
7th Floor, Ste 707
| Size | 1,247 SF |
| Term | Negotiable |
| Rental Rate | $65.06 CAD/SF/YR |
| Space Use | Office |
| Build-Out | Spec Suite |
| Available | Now |
Brand-new creative spec suite with executive office/huddle room, 1 office, open kitchenette & bullpen.
- Rate includes utilities, building services and property expenses
- Mostly Open Floor Plan Layout
- 1 Private Office
- Space is in Excellent Condition
- Central Air Conditioning
8th Floor, Ste 810
| Size | 2,039 SF |
| Term | Negotiable |
| Rental Rate | $65.06 CAD/SF/YR |
| Space Use | Office |
| Build-Out | Spec Suite |
| Available | Now |
Second generation spec suite with three perimeter offices, interior conference room, open kitchenette. *Suites 810/820/830 are able to be combined for a total of 5,843 RSF.
- Rate includes utilities, building services and property expenses
- Mostly Open Floor Plan Layout
- 3 Private Offices
- 1 Conference Room
- Space is in Excellent Condition
- Central Air Conditioning
8th Floor, Ste 820
| Size | 1,687 SF |
| Term | Negotiable |
| Rental Rate | $65.06 CAD/SF/YR |
| Space Use | Office |
| Build-Out | Spec Suite |
| Available | Now |
Second generation spec suite with 3 offices, conference room, enclosed kitchenette & bullpen area. *Suites 810/820/830 are able to be combined for a total of 5,843 RSF.
- Rate includes utilities, building services and property expenses
- Mostly Open Floor Plan Layout
- 3 Private Offices
- 1 Conference Room
- Space is in Excellent Condition
- Central Air Conditioning
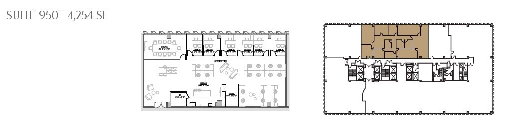
9th Floor, Ste 950
| Size | 4,254 SF |
| Term | 3-5 Years |
| Rental Rate | $65.06 CAD/SF/YR |
| Space Use | Office |
| Build-Out | Spec Suite |
| Available | Now |
Brand-new creative spec suite with 6 perimeter offices, a large conference room, IT/storage, open kitchenette and copy area.
- Rate includes utilities, building services and property expenses
- Mostly Open Floor Plan Layout
- 6 Private Offices
- 1 Conference Room
- Space is in Excellent Condition
- Central Air Conditioning
11th Floor, Ste 1100
| Size | 23,279 SF |
| Term | 3-5 Years |
| Rental Rate | $65.06 CAD/SF/YR |
| Space Use | Office |
| Build-Out | Spec Suite |
| Available | Now |
Full floor; Build-to-Suit opportunity
- Rate includes utilities, building services and property expenses
- Mostly Open Floor Plan Layout
- Central Air Conditioning
15th Floor, Ste 1507
| Size | 2,783 SF |
| Term | 3-5 Years |
| Rental Rate | $65.06 CAD/SF/YR |
| Space Use | Office |
| Build-Out | Spec Suite |
| Available | Now |
Creative spec suite with 3 offices, conference room and open kitchenette.
- Rate includes utilities, building services and property expenses
- Mostly Open Floor Plan Layout
- 3 Private Offices
- 1 Conference Room
- Central Air Conditioning
17th Floor, Ste 1720
| Size | 3,140 SF |
| Term | Negotiable |
| Rental Rate | $70.00 CAD/SF/YR |
| Space Use | Office |
| Build-Out | Partial Build-Out |
| Available | Now |
- Rate includes utilities, building services and property expenses
- Partially Built-Out as Standard Office
- Mostly Open Floor Plan Layout
- Central Air Conditioning
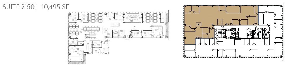
21st Floor, Ste 2150
| Size | 10,496 SF |
| Term | Negotiable |
| Rental Rate | $70.00 CAD/SF/YR |
| Space Use | Office |
| Build-Out | Full Build-Out |
| Available | Now |
Custom creative double-door entry corner space with multiple offices and breakout rooms, large conference room, kitchen/entertaining area, bullpen & “great room” with stadium seating.
- Rate includes utilities, building services and property expenses
- Fully Built-Out as Standard Office
- Mostly Open Floor Plan Layout
- Space is in Excellent Condition
- Central Air Conditioning
22nd Floor, Ste 2200
| Size | 23,717 SF |
| Term | 3-5 Years |
| Rental Rate | $70.00 CAD/SF/YR |
| Space Use | Office |
| Build-Out | Shell Space |
| Available | Now |
Top full floor with building top signage opportunity. 15’ slab-to-slab and currently in whiteboxed shell condition.
- Rate includes utilities, building services and property expenses
- Mostly Open Floor Plan Layout
- Space is in Excellent Condition
- Central Air Conditioning
Property Overview
Located in the fashionable Miracle Mile just east of Beverly Hills, 6300 Wilshire Boulevard offers tenants a unique, high-visibility location in a 22-story, Energy Star rated, Class A office building. This well-maintained project offers luxurious interior finishes, a brand new lobby and ground floor amenities, excellent floor plates with outstanding views and superior access to shopping, housing and four major freeways. 6300 Wilshire is located on the southwest corner of Wilshire and Crescent Heights.
- Banking
- Controlled Access
- Convenience Store
- Fitness Center
- Food Service
- Property Manager on Site
- Energy Star Labeled
- Car Charging Station
- Outdoor Seating
- On-Site Security Staff
Property Facts
Select Tenants
- Floor
- Tenant Name
- Industry
- 1st
- Chase
- Finance and Insurance
- 10th
- Essence
- Professional, Scientific, and Technical Services
- 17th
- Fagen Friedman & Fulfrost LLP
- Professional, Scientific, and Technical Services
- 16th
- Getty Images, Inc
- Professional, Scientific, and Technical Services
- 21st
- IW Group
- Professional, Scientific, and Technical Services
- 7th
- JSF Financial
- Finance and Insurance
- Multiple
- New York Life Insurance Company
- -
- Multiple
- Nous Model Management
- Arts, Entertainment, and Recreation
- 20th
- Schwartz, Steinsapir, Dohrmann & Sommers
- Professional, Scientific, and Technical Services
- 18th
- The ARBA Group
- Real Estate
Sustainability
Sustainability
LEED Certification Developed by the U.S. Green Building Council (USGBC), the Leadership in Energy and Environmental Design (LEED) is a green building certification program focused on the design, construction, operation, and maintenance of green buildings, homes, and neighborhoods, which aims to help building owners and operators be environmentally responsible and use resources efficiently. LEED certification is a globally recognized symbol of sustainability achievement and leadership. To achieve LEED certification, a project earns points by adhering to prerequisites and credits that address carbon, energy, water, waste, transportation, materials, health and indoor environmental quality. Projects go through a verification and review process and are awarded points that correspond to a level of LEED certification: Platinum (80+ points) Gold (60-79 points) Silver (50-59 points) Certified (40-49 points)
ENERGY STAR® Energy Star is a program run by the U.S. Environmental Protection Agency (EPA) and U.S. Department of Energy (DOE) that promotes energy efficiency and provides simple, credible, and unbiased information that consumers and businesses rely on to make well-informed decisions. Thousands of industrial, commercial, utility, state, and local organizations partner with the EPA to deliver cost-saving energy efficiency solutions that protect the climate while improving air quality and protecting public health. The Energy Star score compares a building’s energy performance to similar buildings nationwide and accounts for differences in operating conditions, regional weather data, and other important considerations. Certification is given on an annual basis, so a building must maintain its high performance to be certified year to year. To be eligible for Energy Star certification, a building must earn a score of 75 or higher on EPA’s 1 – 100 scale, indicating that it performs better than at least 75 percent of similar buildings nationwide. This 1 – 100 Energy Star score is based on the actual, measured energy use of a building and is calculated within EPA’s Energy Star Portfolio Manager tool.
Presented by
6300 Wilshire | 6300 Wilshire Blvd
Hmm, there seems to have been an error sending your message. Please try again.
Thanks! Your message was sent.






















