Your email has been sent.
NEW LISTING TAMPA CI - ZONED WAREHOUSE 6301 Causeway Blvd 6,345 SF of Industrial Space Available in Tampa, FL 33619



HIGHLIGHTS
- $6,750/month – incredibly low rate per square foot, well below market NO HIDDEN FEES
- Power: 3-phase electrical service for heavy industrial equipment
- 2- DRIVE IN OVERHEAD DOORS
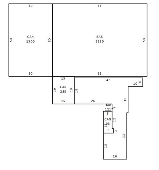
- 6,345 SF which includes 1217 sf of office
- Zoning: Commercial Intensive (CI)
- Heavy industrial corridor with immediate access to Causeway Blvd, U.S. 41, I-4, and the Selmon Expressway Proximity to Major Transport Hubs
SPACE AVAILABILITY (1)
Display Rental Rate as
- SPACE
- SIZE
- TERM
- RENTAL RATE
- RENT TYPE
| Space | Size | Term | Rental Rate | Rent Type | ||
| 1st Floor | 6,345 SF | Negotiable | $17.61 CAD/SF/YR $1.47 CAD/SF/MO $111,729 CAD/YR $9,311 CAD/MO | Modified Gross |
1st Floor
- Listed rate may not include certain utilities, building services and property expenses
- 2 Drive Ins
- Space is in Excellent Condition
Rent Types
The rent amount and type that the tenant (lessee) will be responsible to pay to the landlord (lessor) throughout the lease term is negotiated prior to both parties signing a lease agreement. The rent type will vary depending upon the services provided. For example, triple net rents are typically lower than full service rents due to additional expenses the tenant is required to pay in addition to the base rent. Contact the listing broker for a full understanding of any associated costs or additional expenses for each rent type.
1. Full Service: A rental rate that includes normal building standard services as provided by the landlord within a base year rental.
2. Double Net (NN): Tenant pays for only two of the building expenses; the landlord and tenant determine the specific expenses prior to signing the lease agreement.
3. Triple Net (NNN): A lease in which the tenant is responsible for all expenses associated with their proportional share of occupancy of the building.
4. Modified Gross: Modified Gross is a general type of lease rate where typically the tenant will be responsible for their proportional share of one or more of the expenses. The landlord will pay the remaining expenses. See the below list of common Modified Gross rental rate structures: 4. Plus All Utilities: A type of Modified Gross Lease where the tenant is responsible for their proportional share of utilities in addition to the rent. 4. Plus Cleaning: A type of Modified Gross Lease where the tenant is responsible for their proportional share of cleaning in addition to the rent. 4. Plus Electric: A type of Modified Gross Lease where the tenant is responsible for their proportional share of the electrical cost in addition to the rent. 4. Plus Electric & Cleaning: A type of Modified Gross Lease where the tenant is responsible for their proportional share of the electrical and cleaning cost in addition to the rent. 4. Plus Utilities and Char: A type of Modified Gross Lease where the tenant is responsible for their proportional share of the utilities and cleaning cost in addition to the rent. 4. Industrial Gross: A type of Modified Gross lease where the tenant pays one or more of the expenses in addition to the rent. The landlord and tenant determine these prior to signing the lease agreement.
5. Tenant Electric: The landlord pays for all services and the tenant is responsible for their usage of lights and electrical outlets in the space they occupy.
6. Negotiable or Upon Request: Used when the leasing contact does not provide the rent or service type.
7. TBD: To be determined; used for buildings for which no rent or service type is known, commonly utilized when the buildings are not yet built.
SELECT TENANTS AT NEW LISTING TAMPA CI - ZONED WAREHOUSE
- TENANT
- DESCRIPTION
- US LOCATIONS
- REACH
- Tech1 Engine Installers Inc
- Services
- 1
- -
| TENANT | DESCRIPTION | US LOCATIONS | REACH |
| Tech1 Engine Installers Inc | Services | 1 | - |
PROPERTY FACTS
| Total Space Available | 6,345 SF | Gross Leasable Area | 6,345 SF |
| Property Type | Retail | Year Built/Renovated | 1986/2024 |
| Property Subtype | Auto Repair | Parking Ratio | 1.58/1,000 SF |
| Total Space Available | 6,345 SF |
| Property Type | Retail |
| Property Subtype | Auto Repair |
| Gross Leasable Area | 6,345 SF |
| Year Built/Renovated | 1986/2024 |
| Parking Ratio | 1.58/1,000 SF |
ABOUT THE PROPERTY
CI-zoned industrial property offers a total of 6,345 SF, featuring 1,217 SF of fully renovated office space, 4750 SF of enclosed warehouse and newly constructed industrial overhead structure with direct site access. The property is equipped with 3-phase power and supports a wide range of commercial and industrial uses, including distribution, fabrication, logistics, and automotive. Located in a strategic industrial corridor with excellent transportation access, this space is ideal for businesses seeking functional, flexible space in one of Tampa’s most active commercial zones. 6301 Causeway Blvd is strategically located in the heart of East Tampa, just minutes from major transportation arteries including I-75, I-4, and the Selmon Expressway, providing direct access to Downtown Tampa (less than 15 minutes), the Port of Tampa, Ybor City, Brandon, and Tampa International Airport. Situated along a heavily traveled commercial corridor with over 30,000 vehicles per day, the property benefits from strong visibility and accessibility. Nearby points of interest include the Florida State Fairgrounds, the MidFlorida Credit Union Amphitheatre, and the bustling Port Tampa Bay industrial zone. Surrounded by a mix of industrial users, contractors, logistics companies, and auto-related businesses, this location is ideal for service-based tenants seeking exposure, convenience, and proximity to the greater Tampa Bay workforce and customer base. This site is ideally suited for a wide range of commercial and industrial businesses, including automotive repair shops, car dealerships, used car sales, vehicle rental agencies, auto detailing, tire and alignment centers, RV and trailer service businesses, and fleet maintenance operations. It’s also an excellent fit for contractors and service providers such as HVAC companies, plumbers, electricians, roofers, general contractors, landscapers, painters, fencing companies, septic installers, solar panel installers, and pool service businesses. The property accommodates heavy equipment repair and storage, equipment rental companies, tree service operations, dumpster and waste removal businesses, and concrete or asphalt contractors. Additionally, the site is well-suited for metal fabrication, welding shops, cabinet makers, sign companies, logistics and distribution businesses, stone and granite fabricators, event rental storage, and other trade-related enterprises. With ample outdoor space and a new canopy structure, it’s also perfect for mobile service fleets, utility contractors, pest control companies, boat detailing, and other operations that benefit from weather-protected exterior workspaces
- Signage
- Air Conditioning
Presented by
NEW LISTING TAMPA CI - ZONED WAREHOUSE | 6301 Causeway Blvd
Hmm, there seems to have been an error sending your message. Please try again.
Thanks! Your message was sent.
