Your email has been sent.
The Plaza on Galveston Island 6303-6327 Stewart Rd 960 - 7,012 SF of Retail Space Available in Galveston, TX 77551



Highlights
- Power center anchored by Ross, 5Below, and Dollar Tree at 61st and Stewart.
- We are in the process of cleaning up the center and adding more landscaping.
- Located on a "swing road". This is even the way Google Maps or Apple Maps direct you. So, you would get a ton of visibility here.
- Just signed Lease with Chipotle next to Whataburger.
- Signage opportunity available off 61st and Stewart.
Space Availability (1)
Display Rental Rate as
- Space
- Size
- Term
- Rental Rate
- Rent Type
| Space | Size | Term | Rental Rate | Rent Type | ||
| 1st Floor | 960-7,012 SF | Negotiable | Upon Request Upon Request Upon Request Upon Request | Negotiable |
6303-6327 Stewart Rd - 1st Floor
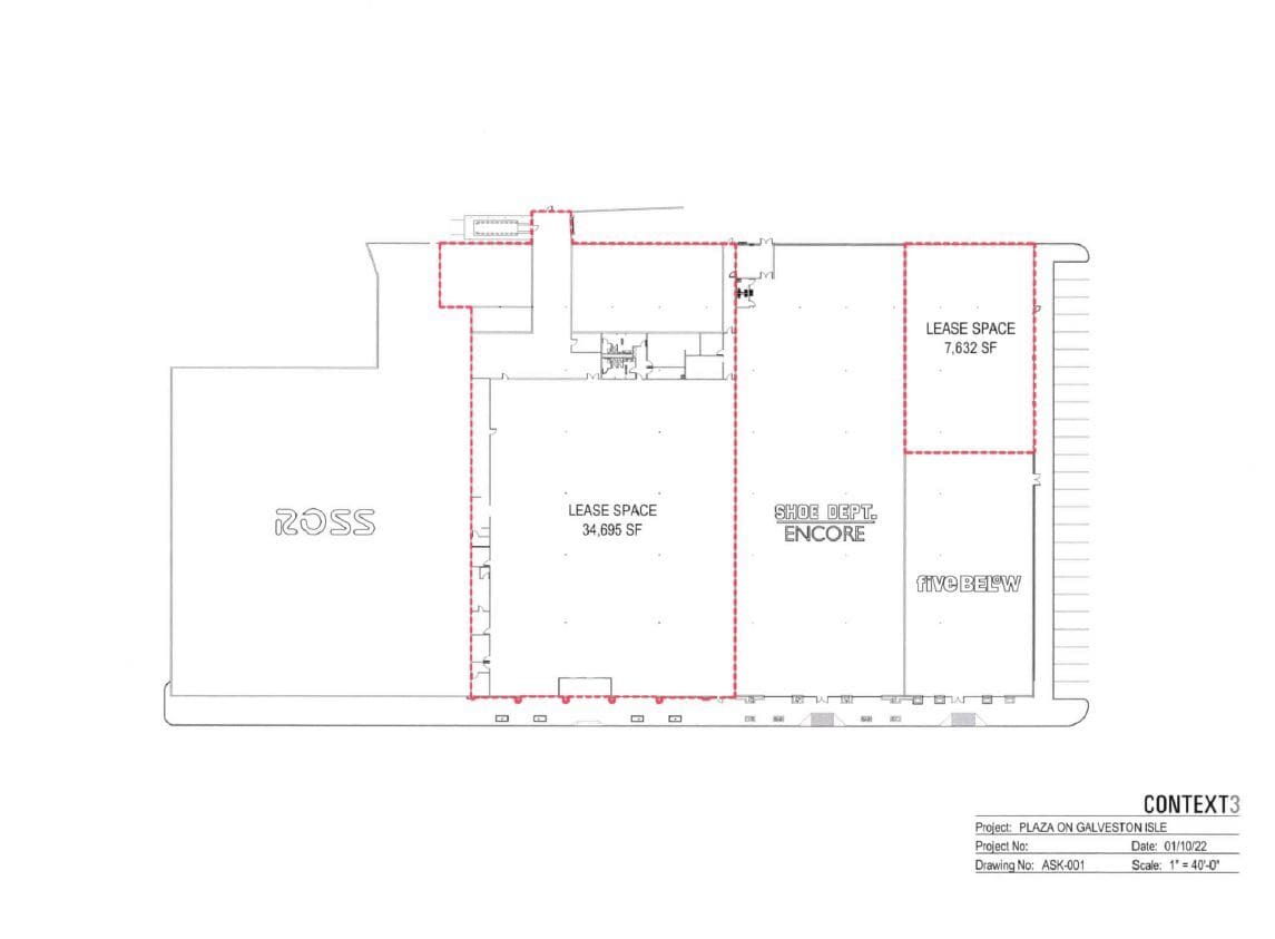
Space is behind the 5Below endcap and fronts 65th Street. Great for lawn/garden, automotive, showroom, crafts, or can be converted for office or storage use. High ceilings, clear span to demising walls, trampoline park anyone? With myriad possibilities this is a blank slate for the creative entrepreneur. Contact Ronnie today to discuss or schedule a tour.
- Highly Desirable End Cap Space
- Unique space. High Ceilings, possibilities galore
Rent Types
The rent amount and type that the tenant (lessee) will be responsible to pay to the landlord (lessor) throughout the lease term is negotiated prior to both parties signing a lease agreement. The rent type will vary depending upon the services provided. For example, triple net rents are typically lower than full service rents due to additional expenses the tenant is required to pay in addition to the base rent. Contact the listing broker for a full understanding of any associated costs or additional expenses for each rent type.
1. Full Service: A rental rate that includes normal building standard services as provided by the landlord within a base year rental.
2. Double Net (NN): Tenant pays for only two of the building expenses; the landlord and tenant determine the specific expenses prior to signing the lease agreement.
3. Triple Net (NNN): A lease in which the tenant is responsible for all expenses associated with their proportional share of occupancy of the building.
4. Modified Gross: Modified Gross is a general type of lease rate where typically the tenant will be responsible for their proportional share of one or more of the expenses. The landlord will pay the remaining expenses. See the below list of common Modified Gross rental rate structures: 4. Plus All Utilities: A type of Modified Gross Lease where the tenant is responsible for their proportional share of utilities in addition to the rent. 4. Plus Cleaning: A type of Modified Gross Lease where the tenant is responsible for their proportional share of cleaning in addition to the rent. 4. Plus Electric: A type of Modified Gross Lease where the tenant is responsible for their proportional share of the electrical cost in addition to the rent. 4. Plus Electric & Cleaning: A type of Modified Gross Lease where the tenant is responsible for their proportional share of the electrical and cleaning cost in addition to the rent. 4. Plus Utilities and Char: A type of Modified Gross Lease where the tenant is responsible for their proportional share of the utilities and cleaning cost in addition to the rent. 4. Industrial Gross: A type of Modified Gross lease where the tenant pays one or more of the expenses in addition to the rent. The landlord and tenant determine these prior to signing the lease agreement.
5. Tenant Electric: The landlord pays for all services and the tenant is responsible for their usage of lights and electrical outlets in the space they occupy.
6. Negotiable or Upon Request: Used when the leasing contact does not provide the rent or service type.
7. TBD: To be determined; used for buildings for which no rent or service type is known, commonly utilized when the buildings are not yet built.
Property Facts
| Total Space Available | 7,012 SF | Frontage | Stewart Rd Rd |
| Min. Divisible | 960 SF | Gross Leasable Area | 155,863 SF |
| Center Type | Community Center | Total Land Area | 15.53 AC |
| Parking | 470 Spaces | Year Built | 1970 |
| Center Properties | 6 |
| Total Space Available | 7,012 SF |
| Min. Divisible | 960 SF |
| Center Type | Community Center |
| Parking | 470 Spaces |
| Center Properties | 6 |
| Frontage | Stewart Rd Rd |
| Gross Leasable Area | 155,863 SF |
| Total Land Area | 15.53 AC |
| Year Built | 1970 |
About the Property
»The Plaza at Galveston Island is a 152,000sf essential neighborhood community shopping destination, made up of 95% National Tenants. »It is located the hard corner of 61st and Stewart Rd, the center of Galveston Islands retail node, with multiple curb cuts and 2 stop lights for easy access into the project. »The Plaza on Galveston Island sits on 15 acres and has over 470 parking space exclusive to the Tenants and their customers.
- Dedicated Turn Lane
- Pylon Sign
- Signalized Intersection
Nearby Major Retailers
Presented by
The Plaza on Galveston Island | 6303-6327 Stewart Rd
Hmm, there seems to have been an error sending your message. Please try again.
Thanks! Your message was sent.


