Log In/Sign Up
Your email has been sent.
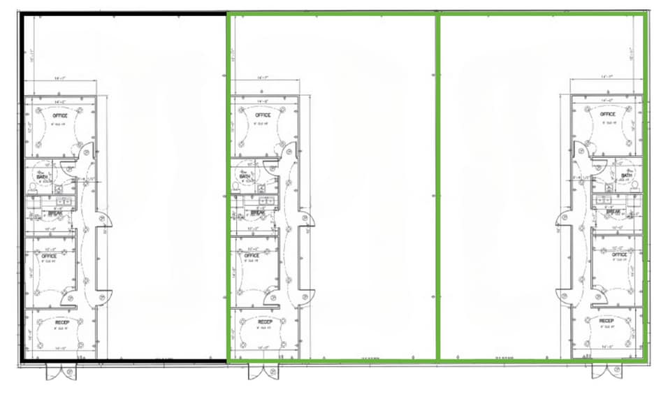
Highlights
- Office Area: 814 SF
- Grade-level loading with ample parking
- Nicely finished out office space that it is move in ready
- Eave Height: 20'
- Suites come with one 12' x 14' overhead doo
Features
Drive In Bays
3
All Available Space(1)
Display Rental Rate as
- Space
- Size
- Term
- Rental Rate
- Space Use
- Build-Out
- Available
- Lease rate does not include utilities, property expenses or building services
- 1 Drive Bay
- Includes 814 SF of dedicated office space
| Space | Size | Term | Rental Rate | Space Use | Build-Out | Available |
| 1st Floor - 102 | 2,916 SF | Negotiable | Upon Request Upon Request Upon Request Upon Request | Industrial | Full Build-Out | Now |
1st Floor - 102
| Size |
| 2,916 SF |
| Term |
| Negotiable |
| Rental Rate |
| Upon Request Upon Request Upon Request Upon Request |
| Space Use |
| Industrial |
| Build-Out |
| Full Build-Out |
| Available |
| Now |
1st Floor - 102
| Size | 2,916 SF |
| Term | Negotiable |
| Rental Rate | Upon Request |
| Space Use | Industrial |
| Build-Out | Full Build-Out |
| Available | Now |
- Lease rate does not include utilities, property expenses or building services
- Includes 814 SF of dedicated office space
- 1 Drive Bay
Property Overview
-Located outside the city limits -Excellent access and visibility from Highway 6
Warehouse Facility Facts
Building Size
8,748 SF
Lot Size
20.92 AC
Year Built
2025
Construction
Metal
1 1
Exceptionally drivable
100/100
Not bikeable
10/100
1 of 3
Videos
Matterport 3D Exterior
Matterport 3D Tour
Photos
Street View
Street
Map
1 of 1
Presented by
637 Wildcat Court
Already a member? Log In
Hmm, there seems to have been an error sending your message. Please try again.
Thanks! Your message was sent.


