Your email has been sent.
Park Facts
Features and Amenities
- 24 Hour Access
- Pylon Sign
- Signage
- Tenant Controlled HVAC
- Storage Space
Display Rental Rate as
- Space
- Size
- Term
- Rental Rate
- Space Use
- Build-Out
- Available
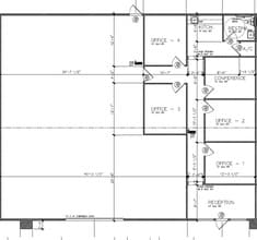
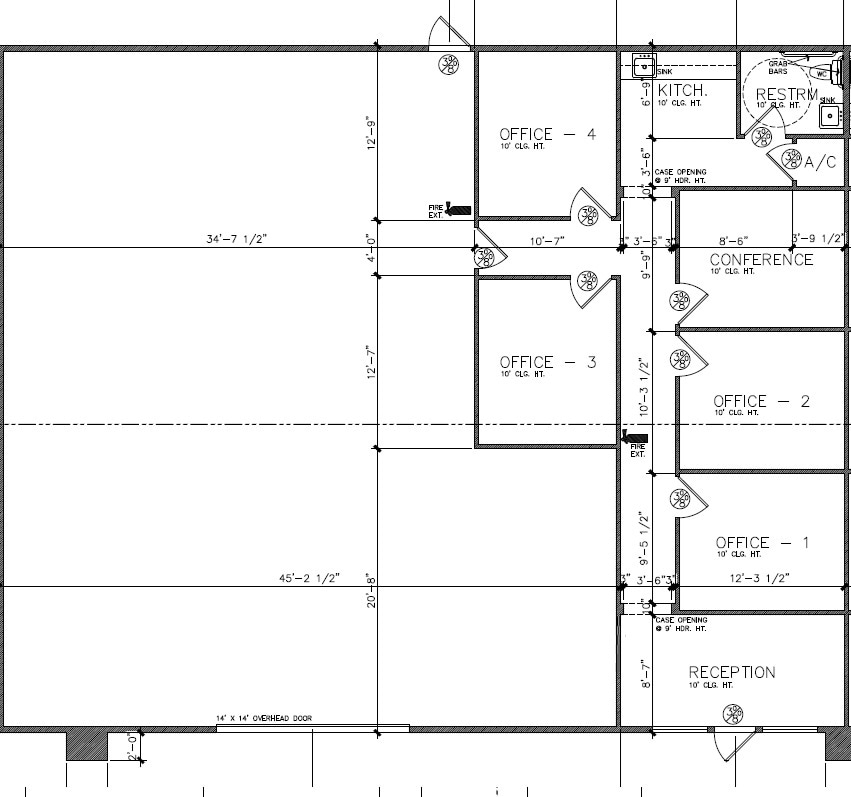
Approx. 2,000 SF of office includes: lobby, four offices, conference room with glass doors, work room with cabinets,restroom, and break room with fridge and microwave. Climate-controlled warehouse with overhead door, sink, and restroom.
- Lease rate does not include utilities, property expenses or building services
- Space is in Excellent Condition
- Central Air Conditioning
- Includes 2,000 SF of dedicated office space
- 1 Drive Bay
- High Ceilings
| Space | Size | Term | Rental Rate | Space Use | Build-Out | Available |
| 1st Floor | 4,800 SF | Negotiable | $19.97 CAD/SF/YR $1.66 CAD/SF/MO $95,874 CAD/YR $7,990 CAD/MO | Flex | Full Build-Out | Now |
6427 Highway 105 - 1st Floor
- Space
- Size
- Term
- Rental Rate
- Space Use
- Build-Out
- Available
Approx. 1,165 SF of office includes: Lobby, three offices, break room with fridge and microwave, restroom, storage/server closet, insulated warehouse with one overhead door.
- Lease rate does not include utilities, property expenses or building services
- Space is in Excellent Condition
- Includes 1,165 SF of dedicated office space
- 1 Drive Bay
| Space | Size | Term | Rental Rate | Space Use | Build-Out | Available |
| 1st Floor - B | 3,100 SF | Negotiable | $19.29 CAD/SF/YR $1.61 CAD/SF/MO $59,784 CAD/YR $4,982 CAD/MO | Flex | Full Build-Out | Now |
6455 Highway 105 - 1st Floor - B
- Space
- Size
- Term
- Rental Rate
- Space Use
- Build-Out
- Available
Approx. 700 SF of office includes: Lobby, two offices, break room with fridge and microwave, restroom, storage/server closet, insulated warehouse with one overhead door.
- Lease rate does not include utilities, property expenses or building services
- Space is in Excellent Condition
- Central Air Conditioning
- Private Restrooms
- High Ceilings
- Includes 700 SF of dedicated office space
- 1 Drive Bay
- Partitioned Offices
- Secure Storage
| Space | Size | Term | Rental Rate | Space Use | Build-Out | Available |
| 1st Floor - B | 2,300 SF | Negotiable | $16.53 CAD/SF/YR $1.38 CAD/SF/MO $38,019 CAD/YR $3,168 CAD/MO | Flex | Full Build-Out | Now |
6447 Highway 105 - 1st Floor - B
- Space
- Size
- Term
- Rental Rate
- Space Use
- Build-Out
- Available
- Lease rate does not include utilities, property expenses or building services
| Space | Size | Term | Rental Rate | Space Use | Build-Out | Available |
| 1st Floor - B | 2,305 SF | Negotiable | $16.53 CAD/SF/YR $1.38 CAD/SF/MO $38,102 CAD/YR $3,175 CAD/MO | Flex | - | Now |
6507 Highway 105 - 1st Floor - B
- Space
- Size
- Term
- Rental Rate
- Space Use
- Build-Out
- Available
Approx. 2,000 SF of office includes: lobby, four offices, conference room with glass doors, work room with cabinets,restroom, and break room with fridge and microwave. Climate-controlled warehouse with overhead door, sink, and restroom.
- Lease rate does not include utilities, property expenses or building services
- Space is in Excellent Condition
- Central Air Conditioning
- Includes 2,000 SF of dedicated office space
- 1 Drive Bay
- High Ceilings
| Space | Size | Term | Rental Rate | Space Use | Build-Out | Available |
| 1st Floor | 4,800 SF | Negotiable | $19.97 CAD/SF/YR $1.66 CAD/SF/MO $95,874 CAD/YR $7,990 CAD/MO | Flex | Full Build-Out | Now |
6427 Highway 105 - 1st Floor
- Space
- Size
- Term
- Rental Rate
- Space Use
- Build-Out
- Available
Approx. 1,165 SF of office includes: Lobby, three offices, break room with fridge and microwave, restroom, storage/server closet, insulated warehouse with one overhead door.
- Lease rate does not include utilities, property expenses or building services
- Space is in Excellent Condition
- Includes 1,165 SF of dedicated office space
- 1 Drive Bay
| Space | Size | Term | Rental Rate | Space Use | Build-Out | Available |
| 1st Floor - B | 3,100 SF | Negotiable | $19.29 CAD/SF/YR $1.61 CAD/SF/MO $59,784 CAD/YR $4,982 CAD/MO | Flex | Full Build-Out | Now |
6455 Highway 105 - 1st Floor - B
- Space
- Size
- Term
- Rental Rate
- Space Use
- Build-Out
- Available
Approx. 700 SF of office includes: Lobby, two offices, break room with fridge and microwave, restroom, storage/server closet, insulated warehouse with one overhead door.
- Lease rate does not include utilities, property expenses or building services
- Space is in Excellent Condition
- Central Air Conditioning
- Private Restrooms
- High Ceilings
- Includes 700 SF of dedicated office space
- 1 Drive Bay
- Partitioned Offices
- Secure Storage
| Space | Size | Term | Rental Rate | Space Use | Build-Out | Available |
| 1st Floor - B | 2,300 SF | Negotiable | $16.53 CAD/SF/YR $1.38 CAD/SF/MO $38,019 CAD/YR $3,168 CAD/MO | Flex | Full Build-Out | Now |
6447 Highway 105 - 1st Floor - B
- Space
- Size
- Term
- Rental Rate
- Space Use
- Build-Out
- Available
- Lease rate does not include utilities, property expenses or building services
| Space | Size | Term | Rental Rate | Space Use | Build-Out | Available |
| 1st Floor - B | 2,305 SF | Negotiable | $16.53 CAD/SF/YR $1.38 CAD/SF/MO $38,102 CAD/YR $3,175 CAD/MO | Flex | - | Now |
6507 Highway 105 - 1st Floor - B
- Space
- Size
- Term
- Rental Rate
- Space Use
- Build-Out
- Available
Shell Condition - Retail, Office, and Medical uses welcome. Tenant Improvement Allowance.
- Lease rate does not include utilities, property expenses or building services
| Space | Size | Term | Rental Rate | Space Use | Build-Out | Available |
| 1st Floor, Ste D | 1,375 SF | Negotiable | $33.06 CAD/SF/YR $2.76 CAD/SF/MO $45,458 CAD/YR $3,788 CAD/MO | Office/Retail | Shell Space | Now |
6451 Highway 105 - 1st Floor - Ste D
- Space
- Size
- Term
- Rental Rate
- Space Use
- Build-Out
- Available
Former wash and fold. Retail - 2nd Generation
- Lease rate does not include utilities, property expenses or building services
- Corner Space
| Space | Size | Term | Rental Rate | Space Use | Build-Out | Available |
| 1st Floor, Ste D | 1,375 SF | Negotiable | $38.57 CAD/SF/YR $3.21 CAD/SF/MO $53,034 CAD/YR $4,419 CAD/MO | Retail | - | Now |
6511 Highway 105 - 1st Floor - Ste D
6427 Highway 105 - 1st Floor
| Size | 4,800 SF |
| Term | Negotiable |
| Rental Rate | $19.97 CAD/SF/YR |
| Space Use | Flex |
| Build-Out | Full Build-Out |
| Available | Now |
Approx. 2,000 SF of office includes: lobby, four offices, conference room with glass doors, work room with cabinets,restroom, and break room with fridge and microwave. Climate-controlled warehouse with overhead door, sink, and restroom.
- Lease rate does not include utilities, property expenses or building services
- Includes 2,000 SF of dedicated office space
- Space is in Excellent Condition
- 1 Drive Bay
- Central Air Conditioning
- High Ceilings
6455 Highway 105 - 1st Floor - B
| Size | 3,100 SF |
| Term | Negotiable |
| Rental Rate | $19.29 CAD/SF/YR |
| Space Use | Flex |
| Build-Out | Full Build-Out |
| Available | Now |
Approx. 1,165 SF of office includes: Lobby, three offices, break room with fridge and microwave, restroom, storage/server closet, insulated warehouse with one overhead door.
- Lease rate does not include utilities, property expenses or building services
- Includes 1,165 SF of dedicated office space
- Space is in Excellent Condition
- 1 Drive Bay
6447 Highway 105 - 1st Floor - B
| Size | 2,300 SF |
| Term | Negotiable |
| Rental Rate | $16.53 CAD/SF/YR |
| Space Use | Flex |
| Build-Out | Full Build-Out |
| Available | Now |
Approx. 700 SF of office includes: Lobby, two offices, break room with fridge and microwave, restroom, storage/server closet, insulated warehouse with one overhead door.
- Lease rate does not include utilities, property expenses or building services
- Includes 700 SF of dedicated office space
- Space is in Excellent Condition
- 1 Drive Bay
- Central Air Conditioning
- Partitioned Offices
- Private Restrooms
- Secure Storage
- High Ceilings
6507 Highway 105 - 1st Floor - B
| Size | 2,305 SF |
| Term | Negotiable |
| Rental Rate | $16.53 CAD/SF/YR |
| Space Use | Flex |
| Build-Out | - |
| Available | Now |
- Lease rate does not include utilities, property expenses or building services
6451 Highway 105 - 1st Floor - Ste D
| Size | 1,375 SF |
| Term | Negotiable |
| Rental Rate | $33.06 CAD/SF/YR |
| Space Use | Office/Retail |
| Build-Out | Shell Space |
| Available | Now |
Shell Condition - Retail, Office, and Medical uses welcome. Tenant Improvement Allowance.
- Lease rate does not include utilities, property expenses or building services
6511 Highway 105 - 1st Floor - Ste D
| Size | 1,375 SF |
| Term | Negotiable |
| Rental Rate | $38.57 CAD/SF/YR |
| Space Use | Retail |
| Build-Out | - |
| Available | Now |
Former wash and fold. Retail - 2nd Generation
- Lease rate does not include utilities, property expenses or building services
- Corner Space
Park Overview
- Retail, Office, and Office-Warehouse spaces available for lease. - Available spaces from 1,375 SF to 6,600 SF - Retail/Office spaces with approximately 750’ of frontage along Highway 105 West (over 39,000 vehicle per day - TxDOT 2020), three curb-cuts, and building signage available. - Office-Warehouse suites feature fully built-out office area with high ceilings and beautiful finishes. - Single-tenant with fenced outdoor storage and multi-tenant layouts available. - All office-warehouse spaces feature multiple private offices and/or conference room, break areas with fridge and microwave included, private restrooms, and grade-level overhead doors. - Located off Highway 105 West, less than 5 miles from Interstate 45, in Conroe, TX; one of the fastest growing cities in the US.
Presented by
Lockaway 105 Business Park | Conroe, TX 77304
Hmm, there seems to have been an error sending your message. Please try again.
Thanks! Your message was sent.




















