Your email has been sent.
Medical Office Redevelopment Opportunity 6480 Milgen Rd 6,208 SF Retail Building Midland, GA 31820 $1,882,575 CAD ($303.25 CAD/SF)



Investment Highlights
- Optimized site plan and strong Milgen Road visibility
- Ideal for primary care, specialty, urgent care, imaging, or outpatient use backed by well-capitalized ownership
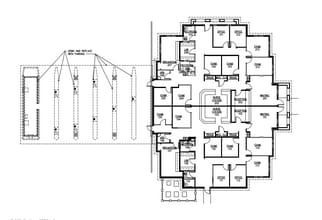
- Designed for efficient patient flow (exam rooms, nurse stations, labs, etc.)
Executive Summary
Located in Midland, GA, one of the fastest-growing and most desirable areas within the Columbus, GA market, the property benefits from strong residential growth, expanding rooftops, and increasing demand for healthcare services in the immediate trade area. Nearby healthcare anchors include St. Francis-Emory Healthcare affiliated providers, Piedmont Columbus Regional (Midtown & Northside), and Hughston Clinic. The site is also in close proximity to new and expanding retail developments, including the Midland Crossing area anchored by Publix, along with continued growth in surrounding neighborhoods and supporting services. This corridor continues to see strong investment driven by population growth, higher household incomes, and increased demand for convenient, community-based medical care.
Member(s) of the property ownership are licensed real estate professionals in the State of Georgia, and hold an ownership interest in the property being advertised.
Property Facts
Amenities
- Bus Line
- Signage
- Drive Thru
Space Availability
- Space
- Size
- Space Use
- Position
- Available
Option 1 - Single Tenant: Full building occupancy. Custom layout including exam rooms, procedure rooms, offices, and support space. Ideal for larger practices or flagship locations. Option 2 - Multi-Tenant: Two medical suites. Shared main entrance and common foyer. Separate, secure tenant spaces. Efficient for smaller practices or complementary providers.
| Space | Size | Space Use | Position | Available |
| 1st Floor | 3,104-6,208 SF | Office | - | Now |
1st Floor
| Size |
| 3,104-6,208 SF |
| Space Use |
| Office |
| Position |
| - |
| Available |
| Now |
1st Floor
| Size | 3,104-6,208 SF |
| Space Use | Office |
| Position | - |
| Available | Now |
Option 1 - Single Tenant: Full building occupancy. Custom layout including exam rooms, procedure rooms, offices, and support space. Ideal for larger practices or flagship locations. Option 2 - Multi-Tenant: Two medical suites. Shared main entrance and common foyer. Separate, secure tenant spaces. Efficient for smaller practices or complementary providers.
Nearby Major Retailers
Property Taxes
| Parcel Number | 110-005-003C | Improvements Assessment | $229,365 CAD |
| Land Assessment | $279,146 CAD | Total Assessment | $508,511 CAD |
Property Taxes
Presented by
Medical Office Redevelopment Opportunity | 6480 Milgen Rd
Hmm, there seems to have been an error sending your message. Please try again.
Thanks! Your message was sent.



