Your email has been sent.
PARK HIGHLIGHTS
- Highly visible, attractive office building with common conference room and gym.
- Walk to multiple food franchises.
- Excellent parking.
- Near the Warminster train station.
PARK FACTS
ALL AVAILABLE SPACES(5)
Display Rental Rate as
- SPACE
- SIZE
- TERM
- RENTAL RATE
- SPACE USE
- CONDITION
- AVAILABLE
This +/-1,615 rsf office suite is located immediately as you walk into the common corridor on the first floor of Building B. It is currently configured for as accounting office with a waiting area, 4 or 5 private offices with two of the offices large enough for multiple work stations, a conference room or work area. This space could be combined with B-103 (as is being done with the current tenant), located directly across the hall from this suite for a total of +/-2,910 rsf. Floor plans for both suites are available as attachments herein. Note: In the adjacent Building A, this office complex offers a +/-300 sf conference room along with a gym complete with men and women showers.
- Listed lease rate plus proportional share of utilities
- Fits 5 - 13 People
- 1 Conference Room
- Space is in Excellent Condition
- Fully Built-Out as Professional Services Office
- 4 Private Offices
- Finished Ceilings: 8’
- Corner office with excellent natural lighting.
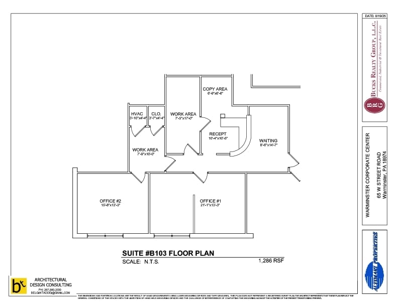
This +/-1,295 rsf office suite is located immediately as you walk into the common corridor on the first floor of Building B. It is currently configured for as accounting office with a beautiful reception desk/work area, 1 private office and a larger office set up for two desks. This space could be combined with B-103 (as is being done with the current tenant), located directly across the hall from this suite for a total of +/-1,910 rsf. Floor plans for both suites are available as attachments herein. Note: In the adjacent Building A, this office complex offers a +/-300 sf conference room along with a gym complete with men and women showers.
- Listed lease rate plus proportional share of utilities
- Fits 4 - 11 People
- 2 Workstations
- Space is in Excellent Condition
- On site common area conference room and gym.
- Partially Built-Out as Professional Services Office
- 1 Private Office
- Finished Ceilings: 8’
- Corner office with great natural lighting.
- Excellent Parking
| Space | Size | Term | Rental Rate | Space Use | Condition | Available |
| 1st Floor, Ste B-102 | 1,615 SF | Negotiable | $23.03 CAD/SF/YR $1.92 CAD/SF/MO $37,198 CAD/YR $3,100 CAD/MO | Office | Full Build-Out | Now |
| 1st Floor, Ste B-103 | 1,286 SF | Negotiable | $23.03 CAD/SF/YR $1.92 CAD/SF/MO $29,620 CAD/YR $2,468 CAD/MO | Office | Partial Build-Out | Now |
65 W Street Rd - 1st Floor - Ste B-102
65 W Street Rd - 1st Floor - Ste B-103
- SPACE
- SIZE
- TERM
- RENTAL RATE
- SPACE USE
- CONDITION
- AVAILABLE
Corner suite which is currently configured with a reception area and two large offices, floor plan included herein. Perfect for those who require larger offices or one large office and conference room. The space is conveniently located one door away from a large common conference room and gym with showers. High speed internet available. Utilities included.
- Rate includes utilities, building services and property expenses
- Mostly Open Floor Plan Layout
- 2 Private Offices
- Space is in Excellent Condition
- Partially Built-Out as Standard Office
- Fits 3 - 8 People
- Finished Ceilings: 8’
| Space | Size | Term | Rental Rate | Space Use | Condition | Available |
| 2nd Floor, Ste A-203 | 971 SF | Negotiable | $25.82 CAD/SF/YR $2.15 CAD/SF/MO $25,076 CAD/YR $2,090 CAD/MO | Office | Partial Build-Out | 30 Days |
65 W Street Rd - 2nd Floor - Ste A-203
- SPACE
- SIZE
- TERM
- RENTAL RATE
- SPACE USE
- CONDITION
- AVAILABLE
- Listed lease rate plus proportional share of utilities
- Can be combined with additional space(s) for up to 11,787 SF of adjacent space
- Fits 10 - 31 People
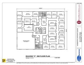
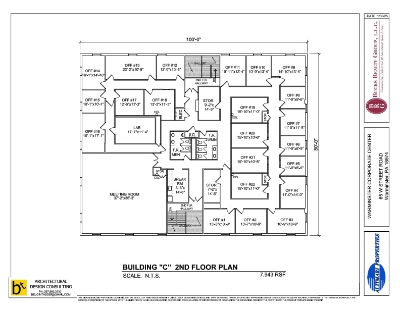
This +/-7,943 rsf office suite represents the entire second floor of Building C and consists of 22 private offices (most with windows), a +/-1,300 sf meeting/conference room, secure room (SCIF), a kitchen as well as men and women multi stall bath facilities. A floor plan is included herein. The floor offers great flexibility in configuration to meet your specific space needs. Ownership will consider subdividing the space down to, as small as +/-1,300 rsf. Parking surrounding this building is abundant, Great natural lighting along the perimeter of the building. Hi Speed internet is available.
- Listed lease rate plus proportional share of utilities
- Fits 4 - 64 People
- 1 Conference Room
- Space is in Excellent Condition
- Private Restrooms
- Heavily built out for users in need of offices
- Shared common conference room and gym
- Fully Built-Out as Standard Office
- 22 Private Offices
- Finished Ceilings: 8’
- Can be combined with additional space(s) for up to 11,787 SF of adjacent space
- After Hours HVAC Available
- Readily convertible to meet specific needs.
| Space | Size | Term | Rental Rate | Space Use | Condition | Available |
| 2nd Floor, Ste C-200 | 3,844 SF | Negotiable | $16.68 CAD/SF/YR $1.39 CAD/SF/MO $64,123 CAD/YR $5,344 CAD/MO | Office | - | 30 Days |
| 2nd Floor, Ste C-201 | 1,300-7,943 SF | Negotiable | $18.08 CAD/SF/YR $1.51 CAD/SF/MO $143,587 CAD/YR $11,966 CAD/MO | Office | Full Build-Out | 30 Days |
65 W Street Rd - 2nd Floor - Ste C-200
65 W Street Rd - 2nd Floor - Ste C-201
65 W Street Rd - 1st Floor - Ste B-102
| Size | 1,615 SF |
| Term | Negotiable |
| Rental Rate | $23.03 CAD/SF/YR |
| Space Use | Office |
| Condition | Full Build-Out |
| Available | Now |
This +/-1,615 rsf office suite is located immediately as you walk into the common corridor on the first floor of Building B. It is currently configured for as accounting office with a waiting area, 4 or 5 private offices with two of the offices large enough for multiple work stations, a conference room or work area. This space could be combined with B-103 (as is being done with the current tenant), located directly across the hall from this suite for a total of +/-2,910 rsf. Floor plans for both suites are available as attachments herein. Note: In the adjacent Building A, this office complex offers a +/-300 sf conference room along with a gym complete with men and women showers.
- Listed lease rate plus proportional share of utilities
- Fully Built-Out as Professional Services Office
- Fits 5 - 13 People
- 4 Private Offices
- 1 Conference Room
- Finished Ceilings: 8’
- Space is in Excellent Condition
- Corner office with excellent natural lighting.
65 W Street Rd - 1st Floor - Ste B-103
| Size | 1,286 SF |
| Term | Negotiable |
| Rental Rate | $23.03 CAD/SF/YR |
| Space Use | Office |
| Condition | Partial Build-Out |
| Available | Now |
This +/-1,295 rsf office suite is located immediately as you walk into the common corridor on the first floor of Building B. It is currently configured for as accounting office with a beautiful reception desk/work area, 1 private office and a larger office set up for two desks. This space could be combined with B-103 (as is being done with the current tenant), located directly across the hall from this suite for a total of +/-1,910 rsf. Floor plans for both suites are available as attachments herein. Note: In the adjacent Building A, this office complex offers a +/-300 sf conference room along with a gym complete with men and women showers.
- Listed lease rate plus proportional share of utilities
- Partially Built-Out as Professional Services Office
- Fits 4 - 11 People
- 1 Private Office
- 2 Workstations
- Finished Ceilings: 8’
- Space is in Excellent Condition
- Corner office with great natural lighting.
- On site common area conference room and gym.
- Excellent Parking
65 W Street Rd - 2nd Floor - Ste A-203
| Size | 971 SF |
| Term | Negotiable |
| Rental Rate | $25.82 CAD/SF/YR |
| Space Use | Office |
| Condition | Partial Build-Out |
| Available | 30 Days |
Corner suite which is currently configured with a reception area and two large offices, floor plan included herein. Perfect for those who require larger offices or one large office and conference room. The space is conveniently located one door away from a large common conference room and gym with showers. High speed internet available. Utilities included.
- Rate includes utilities, building services and property expenses
- Partially Built-Out as Standard Office
- Mostly Open Floor Plan Layout
- Fits 3 - 8 People
- 2 Private Offices
- Finished Ceilings: 8’
- Space is in Excellent Condition
65 W Street Rd - 2nd Floor - Ste C-200
| Size | 3,844 SF |
| Term | Negotiable |
| Rental Rate | $16.68 CAD/SF/YR |
| Space Use | Office |
| Condition | - |
| Available | 30 Days |
- Listed lease rate plus proportional share of utilities
- Fits 10 - 31 People
- Can be combined with additional space(s) for up to 11,787 SF of adjacent space
65 W Street Rd - 2nd Floor - Ste C-201
| Size | 1,300-7,943 SF |
| Term | Negotiable |
| Rental Rate | $18.08 CAD/SF/YR |
| Space Use | Office |
| Condition | Full Build-Out |
| Available | 30 Days |
This +/-7,943 rsf office suite represents the entire second floor of Building C and consists of 22 private offices (most with windows), a +/-1,300 sf meeting/conference room, secure room (SCIF), a kitchen as well as men and women multi stall bath facilities. A floor plan is included herein. The floor offers great flexibility in configuration to meet your specific space needs. Ownership will consider subdividing the space down to, as small as +/-1,300 rsf. Parking surrounding this building is abundant, Great natural lighting along the perimeter of the building. Hi Speed internet is available.
- Listed lease rate plus proportional share of utilities
- Fully Built-Out as Standard Office
- Fits 4 - 64 People
- 22 Private Offices
- 1 Conference Room
- Finished Ceilings: 8’
- Space is in Excellent Condition
- Can be combined with additional space(s) for up to 11,787 SF of adjacent space
- Private Restrooms
- After Hours HVAC Available
- Heavily built out for users in need of offices
- Readily convertible to meet specific needs.
- Shared common conference room and gym
SELECT TENANTS AT THIS PROPERTY
- FLOOR
- TENANT NAME
- INDUSTRY
- 2nd
- Warminster Corp Center
- Real Estate
PARK OVERVIEW
Highly visible property located adjacent to Chick-fil-a, Chipotle and Mission BBQ, near the intersection of Street and Jacksonville Roads. Conveniently located near a wide variety of restaurants, retail shopping, banking, day care services and public transportation (less than .5 miles from the Warminster train station. Excellent parking.
- 24 Hour Access
- Conferencing Facility
Presented by
Warminster Corporate Center | Warminster, PA 18974
Hmm, there seems to have been an error sending your message. Please try again.
Thanks! Your message was sent.












