Log In/Sign Up
Your email has been sent.
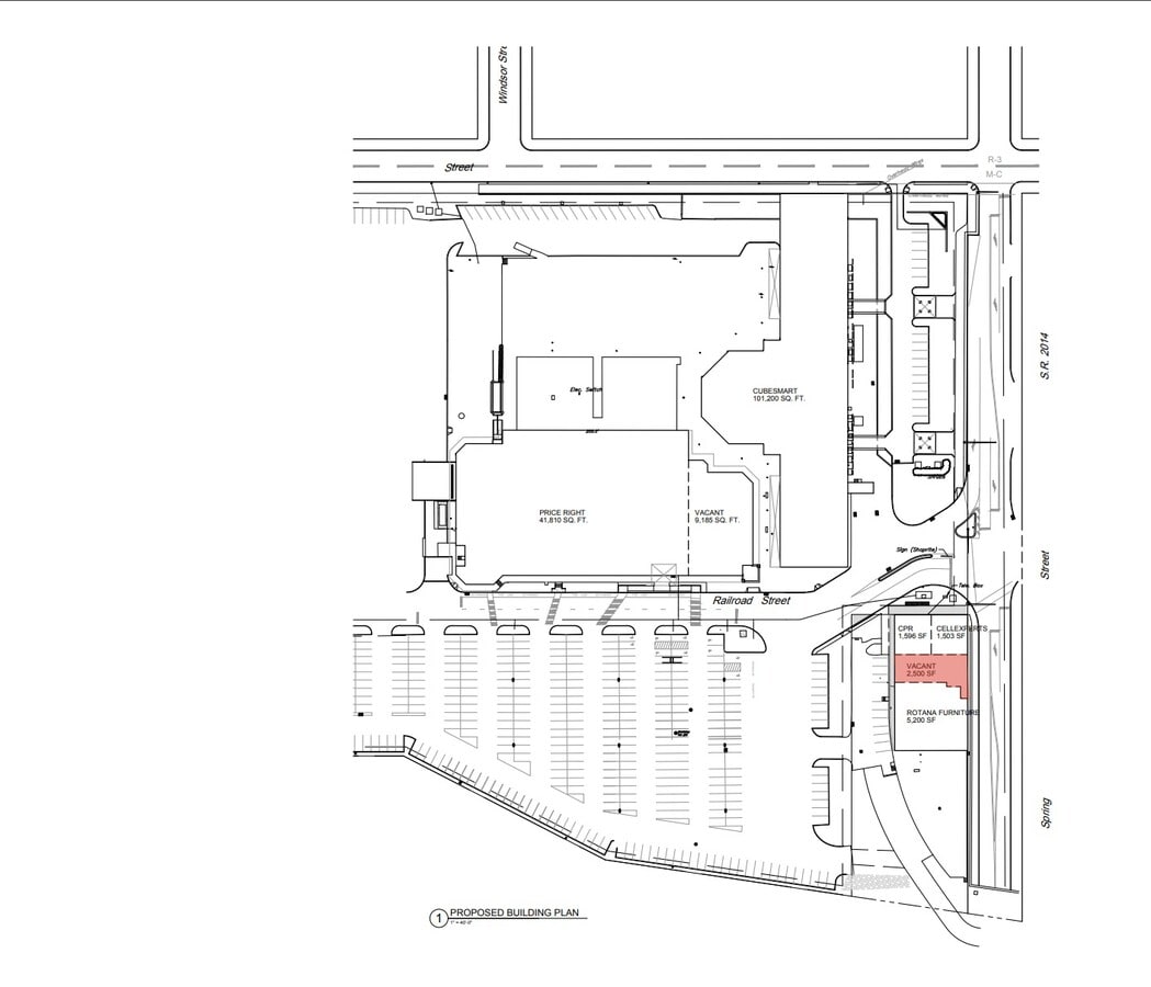
650 Spring St
Reading, PA 19601
Reading station · Retail Property For Lease
·
2,500 SF


Property Facts
| Total Space Available | 2,500 SF | Total Land Area | 0.92 AC |
| Property Type | Retail | Year Built | 2024 |
| Gross Leasable Area | 11,193 SF |
| Total Space Available | 2,500 SF |
| Property Type | Retail |
| Gross Leasable Area | 11,193 SF |
| Total Land Area | 0.92 AC |
| Year Built | 2024 |
1 of 6
Videos
Matterport 3D Exterior
Matterport 3D Tour
Photos
Street View
Street
Map
