Log In/Sign Up
Your email has been sent.
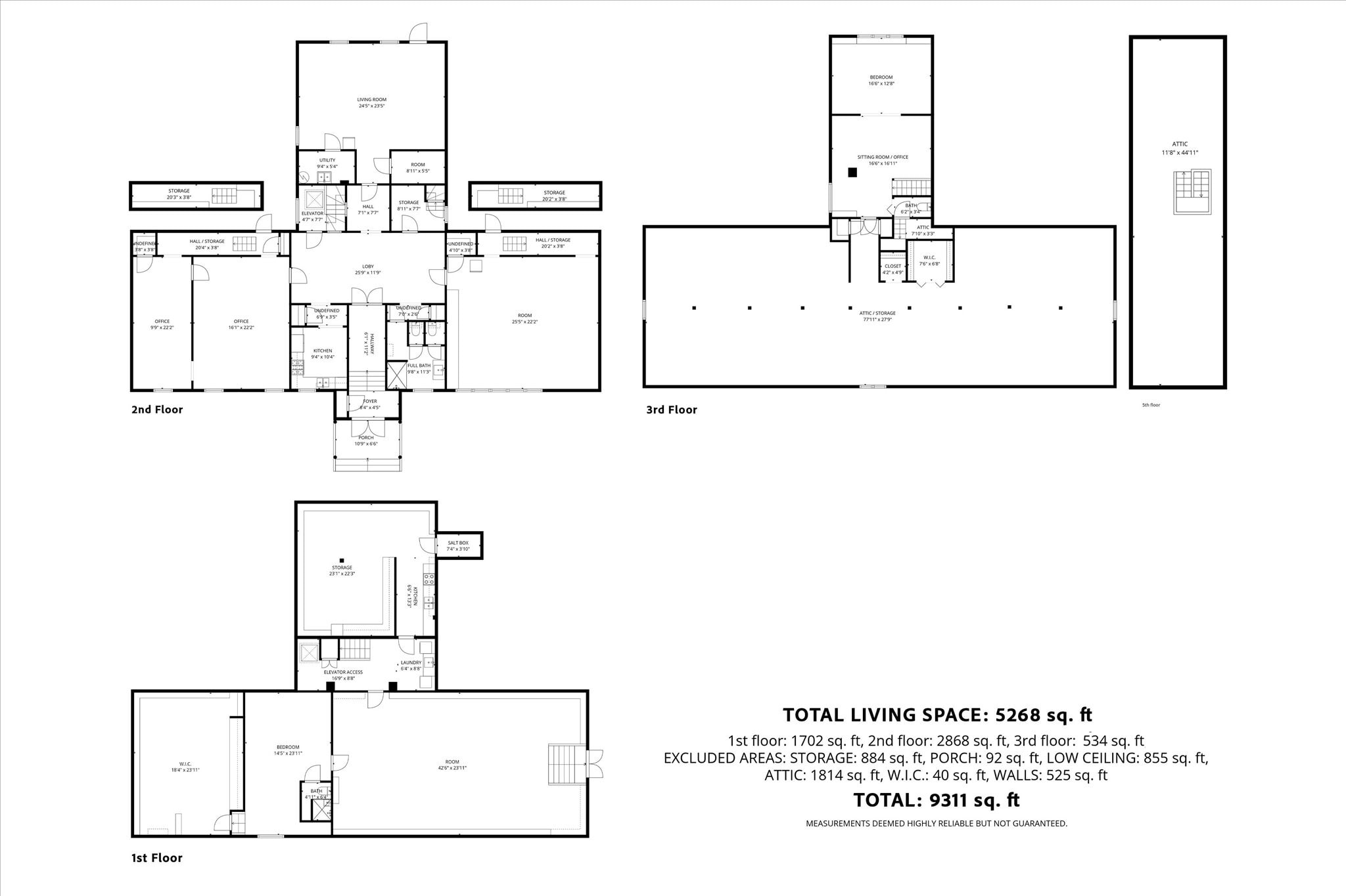
66 Duttonsville School dr - The Duttonsville School 9,314 SF Specialty Building Offered at $968,108 CAD in Cavendish, VT 05142


Investment Highlights
- Historic Charm with unique space for business offices, storage, manufacturing, private entrance, room for trucks to turn around
Executive Summary
This property is currently housing a distribution business. That business will be leaving and the entire building will be available.
Property Facts
| Price | $968,108 CAD | Building Size | 9,314 SF |
| Price Per SF | $103.94 CAD | No. Stories | 3 |
| Sale Type | Investment or Owner User | Year Built | 1862 |
| Property Type | |||
| Zoning | None - No Zoning in Cavendish, VT | ||
| Price | $968,108 CAD |
| Price Per SF | $103.94 CAD |
| Sale Type | Investment or Owner User |
| Property Type | |
| Building Size | 9,314 SF |
| No. Stories | 3 |
| Year Built | 1862 |
| Zoning | None - No Zoning in Cavendish, VT |
1 1
Not walkable
10/100
Exceptionally drivable
90/100
Somewhat bikeable
20/100
Property Taxes
| Parcel Number | 132-041-10199 | Improvements Assessment | $175,617 CAD |
| Land Assessment | $73,681 CAD | Total Assessment | $249,298 CAD |
Property Taxes
Parcel Number
132-041-10199
Land Assessment
$73,681 CAD
Improvements Assessment
$175,617 CAD
Total Assessment
$249,298 CAD
1 of 3
Videos
Matterport 3D Exterior
Matterport 3D Tour
Photos
Street View
Street
Map
1 of 1
Presented by
66 Duttonsville School dr - The Duttonsville School
Already a member? Log In
Hmm, there seems to have been an error sending your message. Please try again.
Thanks! Your message was sent.
