Log In/Sign Up
Your email has been sent.
66 Hunter St - City Mutual Building 688 - 839 SF Office Condo Units Offered at $1,175,669 - $1,377,353 CAD Per Unit in Sydney, NSW 2000



Investment Highlights
- Prestigious office suite in Sydney’s most iconic Art Deco building
- Directly opposite the new Sydney Metro Hunter Street Station for future connectivity
- Prime CBD location near Wynyard, Martin Place, and Circular Quay.
Executive Summary
The City Mutual Building is celebrated as an Art Deco masterpiece and is widely regarded as Sydney’s most prestigious commercial strata building. It features a commanding street presence on the corner of Hunter and Bligh Streets, with a grand main lobby showcasing stately finishes and timeless design. Amenities include on-floor bathrooms, shower facilities, and four high-speed lifts, along with direct access to Rockpool Bar & Grill, one of Sydney’s most exclusive dining venues.
2 Units Available
- Unit
- Unit Size
- Condo Use
- Price
- NOI
| Sale Type | Investment |
| Sale Type | Investment |
Description
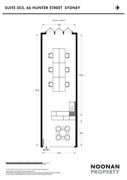
Suite 503 offers 64 sqm of commercial office accommodation in a highly central Sydney CBD location. The suite is well presented and suitable for both owner-occupiers and investors seeking a compact and functional office space.
The internal layout includes an open-plan work area, a separate meeting room, integrated storage, and an internal kitchen fitted with a fridge and dishwasher. The existing fit-out and furniture provide an opportunity for immediate occupation. The suite benefits from high ceilings and good natural light, with outlooks over Bligh Street and surrounding streetscape.
The internal layout includes an open-plan work area, a separate meeting room, integrated storage, and an internal kitchen fitted with a fridge and dishwasher. The existing fit-out and furniture provide an opportunity for immediate occupation. The suite benefits from high ceilings and good natural light, with outlooks over Bligh Street and surrounding streetscape.
Sale Notes
Suite 503 in the City Mutual Building offers a rare opportunity to own a premium commercial strata office in one of Sydney’s most iconic and tightly held Art Deco landmarks. Priced at $1,195,000, this 64 m² suite is positioned in the heart of Sydney’s financial core, steps from Wynyard, Martin Place, and Circular Quay, and directly opposite the upcoming Sydney Metro Hunter Street Station.
The suite is superbly appointed with a high-quality fitout and furniture available, providing an immediate move-in solution for discerning owner-occupiers or investors. The internal layout includes a separate meeting room, open-plan workspace, integrated storage, and an internal kitchen complete with fridge and dishwasher. High ceilings, elegant finishes, and excellent natural light enhance the space, while expansive views overlook Bligh Street, Richard Johnson Square, and the Lowy Institute Building, creating an inspiring business environment.
Ownership costs are clearly defined, with council rates, water rates, and strata fees applicable. These outgoings reflect the premium nature of the asset and the exceptional amenities offered.
This blue-ribbon CBD address enjoys immediate access to Sydney’s key transport and business networks and is set to benefit further from major infrastructure investment, including the Sydney Metro Hunter Street Station and Martin Place Metro interchange. This is a rare opportunity to secure a prestigious commercial suite in an iconic building with enduring value.
The suite is superbly appointed with a high-quality fitout and furniture available, providing an immediate move-in solution for discerning owner-occupiers or investors. The internal layout includes a separate meeting room, open-plan workspace, integrated storage, and an internal kitchen complete with fridge and dishwasher. High ceilings, elegant finishes, and excellent natural light enhance the space, while expansive views overlook Bligh Street, Richard Johnson Square, and the Lowy Institute Building, creating an inspiring business environment.
Ownership costs are clearly defined, with council rates, water rates, and strata fees applicable. These outgoings reflect the premium nature of the asset and the exceptional amenities offered.
This blue-ribbon CBD address enjoys immediate access to Sydney’s key transport and business networks and is set to benefit further from major infrastructure investment, including the Sydney Metro Hunter Street Station and Martin Place Metro interchange. This is a rare opportunity to secure a prestigious commercial suite in an iconic building with enduring value.
| Sale Type | Investment |
| Sale Type | Investment |
Description
Suite 902 presents an opportunity to secure a 78 sqm commercial strata office located within Sydney’s financial core. The suite is positioned close to Wynyard, Martin Place, and Circular Quay, with direct proximity to the Martin Place Metro Station and the Hunter Street Metro Station.
The office features a large window frontage providing good natural light and outlooks across Hunter Street, Castlereagh Street, and the surrounding CBD area. Internally, the suite offers high ceilings and an efficient layout comprising an open-plan work area suitable for multiple workstations, a reception area, two offices or meeting rooms, and a separate utilities and storage space with integrated cabinetry. Additional features include ducted air conditioning, LED lighting, and established phone and data connectivity.
The office features a large window frontage providing good natural light and outlooks across Hunter Street, Castlereagh Street, and the surrounding CBD area. Internally, the suite offers high ceilings and an efficient layout comprising an open-plan work area suitable for multiple workstations, a reception area, two offices or meeting rooms, and a separate utilities and storage space with integrated cabinetry. Additional features include ducted air conditioning, LED lighting, and established phone and data connectivity.
Sale Notes
Suite 902 in the City Mutual Building offers an exceptional opportunity to secure a premium commercial strata office in one of Sydney’s most iconic Art Deco landmarks. Priced at $1,400,000, this 78 m² suite is positioned in the heart of Sydney’s financial core, steps from Wynyard, Martin Place, and Circular Quay, and directly opposite the new Martin Place Metro Station and Hunter Street Metro Station.
The suite features a large window frontage that floods the space with natural light and provides expansive views over Hunter Street, Castlereagh Street, and the surrounding CBD precinct. Internally, the property has been thoughtfully designed to deliver a high-quality workspace with high ceilings and efficient layouts. The floor plan includes a spacious open-plan collaboration area suitable for multiple workstations, a welcoming reception, two executive offices or meeting rooms, and a separate utilities and storage area with integrated cabinetry. Additional features include ducted air conditioning, LED lighting, and established phone and data connectivity.
Ownership costs are clearly defined, with council rates of $380.00 per quarter, water rates of $17.00 per quarter, and strata fees of $3,735.00 per quarter. These outgoings reflect the premium nature of this asset and the exceptional amenities provided within the building.
This blue-chip CBD address enjoys immediate access to Sydney’s key transport and business networks and is set to benefit further from major infrastructure investment, including the Martin Place Metro interchange and Hunter Street Metro Station. This is a rare opportunity to secure one of Sydney’s finest commercial strata offices in an iconic building with enduring value.
The suite features a large window frontage that floods the space with natural light and provides expansive views over Hunter Street, Castlereagh Street, and the surrounding CBD precinct. Internally, the property has been thoughtfully designed to deliver a high-quality workspace with high ceilings and efficient layouts. The floor plan includes a spacious open-plan collaboration area suitable for multiple workstations, a welcoming reception, two executive offices or meeting rooms, and a separate utilities and storage area with integrated cabinetry. Additional features include ducted air conditioning, LED lighting, and established phone and data connectivity.
Ownership costs are clearly defined, with council rates of $380.00 per quarter, water rates of $17.00 per quarter, and strata fees of $3,735.00 per quarter. These outgoings reflect the premium nature of this asset and the exceptional amenities provided within the building.
This blue-chip CBD address enjoys immediate access to Sydney’s key transport and business networks and is set to benefit further from major infrastructure investment, including the Martin Place Metro interchange and Hunter Street Metro Station. This is a rare opportunity to secure one of Sydney’s finest commercial strata offices in an iconic building with enduring value.
| Unit | Unit Size | Condo Use | Price | NOI |
| Unit 503 | 688 SF | Office | $1,175,669 CAD ($1,708.82 CAD/SF) | - |
| Unit 902 | 839 SF | Office | $1,377,353 CAD ($1,641.66 CAD/SF) | - |
Unit 503
| Unit Size |
| 688 SF |
| Condo Use |
| Office |
| Price |
| $1,175,669 CAD ($1,708.82 CAD/SF) |
| NOI |
| - |
Unit 902
| Unit Size |
| 839 SF |
| Condo Use |
| Office |
| Price |
| $1,377,353 CAD ($1,641.66 CAD/SF) |
| NOI |
| - |
1 of 6
Videos
Matterport 3D Exterior
Matterport 3D Tour
Photos
Street View
Street
Map
Unit 503
| Unit Size | 688 SF |
| Condo Use | Office |
| Price | $1,175,669 CAD ($1,708.82 CAD/SF) |
| NOI | - |
| Sale Type | Investment |
| Description | |
| Suite 503 offers 64 sqm of commercial office accommodation in a highly central Sydney CBD location. The suite is well presented and suitable for both owner-occupiers and investors seeking a compact and functional office space. <br> <br> The internal layout includes an open-plan work area, a separate meeting room, integrated storage, and an internal kitchen fitted with a fridge and dishwasher. The existing fit-out and furniture provide an opportunity for immediate occupation. The suite benefits from high ceilings and good natural light, with outlooks over Bligh Street and surrounding streetscape.</li></ul> | |
| Sale Notes | |
| Suite 503 in the City Mutual Building offers a rare opportunity to own a premium commercial strata office in one of Sydney’s most iconic and tightly held Art Deco landmarks. Priced at $1,195,000, this 64 m² suite is positioned in the heart of Sydney’s financial core, steps from Wynyard, Martin Place, and Circular Quay, and directly opposite the upcoming Sydney Metro Hunter Street Station.<br> <br> The suite is superbly appointed with a high-quality fitout and furniture available, providing an immediate move-in solution for discerning owner-occupiers or investors. The internal layout includes a separate meeting room, open-plan workspace, integrated storage, and an internal kitchen complete with fridge and dishwasher. High ceilings, elegant finishes, and excellent natural light enhance the space, while expansive views overlook Bligh Street, Richard Johnson Square, and the Lowy Institute Building, creating an inspiring business environment.<br> <br> Ownership costs are clearly defined, with council rates, water rates, and strata fees applicable. These outgoings reflect the premium nature of the asset and the exceptional amenities offered.<br> <br> This blue-ribbon CBD address enjoys immediate access to Sydney’s key transport and business networks and is set to benefit further from major infrastructure investment, including the Sydney Metro Hunter Street Station and Martin Place Metro interchange. This is a rare opportunity to secure a prestigious commercial suite in an iconic building with enduring value.</li></ul> |
1 of 8
Videos
Matterport 3D Exterior
Matterport 3D Tour
Photos
Street View
Street
Map
Unit 902
| Unit Size | 839 SF |
| Condo Use | Office |
| Price | $1,377,353 CAD ($1,641.66 CAD/SF) |
| NOI | - |
| Sale Type | Investment |
| Description | |
| Suite 902 presents an opportunity to secure a 78 sqm commercial strata office located within Sydney’s financial core. The suite is positioned close to Wynyard, Martin Place, and Circular Quay, with direct proximity to the Martin Place Metro Station and the Hunter Street Metro Station.<br> <br> The office features a large window frontage providing good natural light and outlooks across Hunter Street, Castlereagh Street, and the surrounding CBD area. Internally, the suite offers high ceilings and an efficient layout comprising an open-plan work area suitable for multiple workstations, a reception area, two offices or meeting rooms, and a separate utilities and storage space with integrated cabinetry. Additional features include ducted air conditioning, LED lighting, and established phone and data connectivity.</li></ul> | |
| Sale Notes | |
| Suite 902 in the City Mutual Building offers an exceptional opportunity to secure a premium commercial strata office in one of Sydney’s most iconic Art Deco landmarks. Priced at $1,400,000, this 78 m² suite is positioned in the heart of Sydney’s financial core, steps from Wynyard, Martin Place, and Circular Quay, and directly opposite the new Martin Place Metro Station and Hunter Street Metro Station.<br> <br> The suite features a large window frontage that floods the space with natural light and provides expansive views over Hunter Street, Castlereagh Street, and the surrounding CBD precinct. Internally, the property has been thoughtfully designed to deliver a high-quality workspace with high ceilings and efficient layouts. The floor plan includes a spacious open-plan collaboration area suitable for multiple workstations, a welcoming reception, two executive offices or meeting rooms, and a separate utilities and storage area with integrated cabinetry. Additional features include ducted air conditioning, LED lighting, and established phone and data connectivity.<br> <br> Ownership costs are clearly defined, with council rates of $380.00 per quarter, water rates of $17.00 per quarter, and strata fees of $3,735.00 per quarter. These outgoings reflect the premium nature of this asset and the exceptional amenities provided within the building.<br> <br> This blue-chip CBD address enjoys immediate access to Sydney’s key transport and business networks and is set to benefit further from major infrastructure investment, including the Martin Place Metro interchange and Hunter Street Metro Station. This is a rare opportunity to secure one of Sydney’s finest commercial strata offices in an iconic building with enduring value.</li></ul> |
Property Facts
The following property facts and amenities apply to the entire building. Details for individual condo units may vary and are listed in the unit information above.
| Total Building Size | 125,217 SF | Typical Floor Size | 10,430 SF |
| Property Type | Office | Year Built | 1936 |
| Building Class | B | Lot Size | 0.24 AC |
| Floors | 12 |
| Total Building Size | 125,217 SF |
| Property Type | Office |
| Building Class | B |
| Floors | 12 |
| Typical Floor Size | 10,430 SF |
| Year Built | 1936 |
| Lot Size | 0.24 AC |
Amenities
- 24 Hour Access
- Bus Line
- Security System
- Wheelchair Accessible
- Kitchen
- Accent Lighting
- Reception
- Storage Space
- Fully Carpeted
- Direct Elevator Exposure
- Natural Light
- Open-Plan
- Partitioned Offices
- Recessed Lighting
- Secure Storage
- Wi-Fi
- Air Conditioning
- Smoke Detector
1 1
1 of 4
Videos
Matterport 3D Exterior
Matterport 3D Tour
Photos
Street View
Street
Map
1 of 1
Presented by
66 Hunter St - City Mutual Building
Already a member? Log In
Hmm, there seems to have been an error sending your message. Please try again.
Thanks! Your message was sent.




