Log In/Sign Up
Your email has been sent.
Investment Highlights
- Land Sale for Proposed Multifamily/Assisted/Independent Living
- Shovel-ready 1.79 acres
- Liquor and Entertainment License
- Proposed 4-story, 75 multifamily apartment units
- Special Zoning Approval and Special Master Plan Approval received
Executive Summary
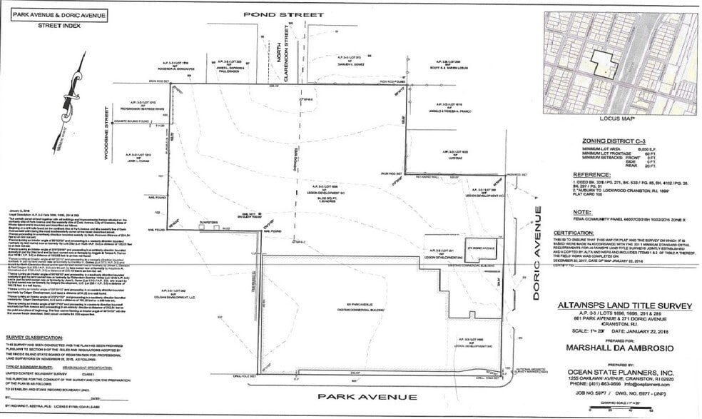
22,454 sf building (gross sf) on 77,972 sf parcel
6,138 sf building (gross sf) on 6,448 SF parcel
271 Doric Ave 2,632 sf building (gross sf) on 3,300 sf parcel for redevelopment
0 Doric Ave 2,532 SF Parcel land
6,138 sf building (gross sf) on 6,448 SF parcel
271 Doric Ave 2,632 sf building (gross sf) on 3,300 sf parcel for redevelopment
0 Doric Ave 2,532 SF Parcel land
Property Facts
Sale Type
Investment
Sale Condition
Redevelopment Project
Property Type
Retail
Property Subtype
Freestanding
Building Size
25,000 SF
Building Class
C
Year Built/Renovated
1946/2014
Percent Leased
100%
Tenancy
Multiple
Building Height
1 Story
Building FAR
0.28
Lot Size
2.07 AC
Zoning
C-3 - Commercial development
Parking
100 Spaces (4 Spaces per 1,000 SF Leased)
Frontage
Amenities
- Bus Line
- Property Manager on Site
- Signage
Moderately walkable
60/100
Exceptionally drivable
100/100
Limited public transit
30/100
Fairly bikeable
40/100
Nearby Major Retailers
Property Taxes
| Parcel Number | CRAN-000003-000003-001696 | Improvements Assessment | $949,933 CAD |
| Land Assessment | $656,531 CAD | Total Assessment | $1,606,464 CAD |
Property Taxes
Parcel Number
CRAN-000003-000003-001696
Land Assessment
$656,531 CAD
Improvements Assessment
$949,933 CAD
Total Assessment
$1,606,464 CAD
1 of 6
Videos
Matterport 3D Exterior
Matterport 3D Tour
Photos
Street View
Street
Map
Presented by
661 Park Ave
Already a member? Log In
Hmm, there seems to have been an error sending your message. Please try again.
Thanks! Your message was sent.



