Your email has been sent.
Woodbourne North Office Center 668 Woodbourne Rd 950 - 2,800 SF of Office Space Available in Langhorne, PA 19047



Highlights
- Excellent condition w/recent upgrades
- Quality demographic profile
- Proximate to populated residential neighborhoods
- Various floor plans available
- Minutes to Newtown, Yardley and Langhorne
- Convenient access to major connecting routes
All Available Spaces(2)
Display Rental Rate as
- Space
- Size
- Term
- Rental Rate
- Space Use
- Condition
- Available
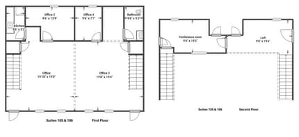
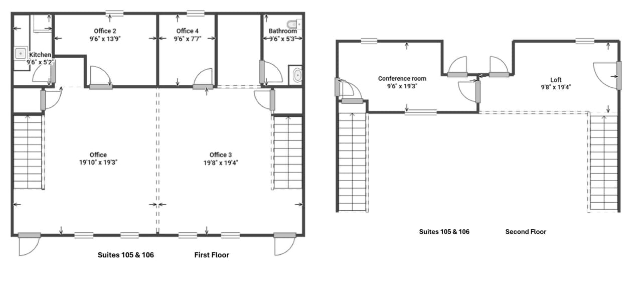
SVN is pleased to present an exceptional office space within the Woodbourne North Office Center, centrally located in Langhorne, Bucks County, Pennsylvania. Two turnkey professional office suites (950 SF and 1,850 SF) have recently undergone thoughtful upgrades, providing a high-quality, move-in-ready environment designed for convenience and functionality. Both suites feature efficient floor plans that can accommodate a wide range of professional uses. Visible and convenient location with ample parking.
- Listed rate may not include certain utilities, building services and property expenses
- Fits 3 - 8 People
- Fully Built-Out as Standard Office
SVN is pleased to present an exceptional office space within the Woodbourne North Office Center, centrally located in Langhorne, Bucks County, Pennsylvania. Two turnkey professional office suites (950 SF and 1,850 SF) have recently undergone thoughtful upgrades, providing a high-quality, move-in-ready environment designed for convenience and functionality. Both suites feature efficient floor plans that can accommodate a wide range of professional uses. Visible and convenient location with ample parking.
- Listed rate may not include certain utilities, building services and property expenses
- Fits 5 - 15 People
- Fully Built-Out as Standard Office
| Space | Size | Term | Rental Rate | Space Use | Condition | Available |
| 1st Floor, Ste 104 | 950 SF | Negotiable | $28.77 CAD/SF/YR $2.40 CAD/SF/MO $27,335 CAD/YR $2,278 CAD/MO | Office | Full Build-Out | Now |
| 1st Floor, Ste 105/106 | 1,850 SF | Negotiable | $28.66 CAD/SF/YR $2.39 CAD/SF/MO $53,027 CAD/YR $4,419 CAD/MO | Office | Full Build-Out | Now |
1st Floor, Ste 104
| Size |
| 950 SF |
| Term |
| Negotiable |
| Rental Rate |
| $28.77 CAD/SF/YR $2.40 CAD/SF/MO $27,335 CAD/YR $2,278 CAD/MO |
| Space Use |
| Office |
| Condition |
| Full Build-Out |
| Available |
| Now |
1st Floor, Ste 105/106
| Size |
| 1,850 SF |
| Term |
| Negotiable |
| Rental Rate |
| $28.66 CAD/SF/YR $2.39 CAD/SF/MO $53,027 CAD/YR $4,419 CAD/MO |
| Space Use |
| Office |
| Condition |
| Full Build-Out |
| Available |
| Now |
1st Floor, Ste 104
| Size | 950 SF |
| Term | Negotiable |
| Rental Rate | $28.77 CAD/SF/YR |
| Space Use | Office |
| Condition | Full Build-Out |
| Available | Now |
SVN is pleased to present an exceptional office space within the Woodbourne North Office Center, centrally located in Langhorne, Bucks County, Pennsylvania. Two turnkey professional office suites (950 SF and 1,850 SF) have recently undergone thoughtful upgrades, providing a high-quality, move-in-ready environment designed for convenience and functionality. Both suites feature efficient floor plans that can accommodate a wide range of professional uses. Visible and convenient location with ample parking.
- Listed rate may not include certain utilities, building services and property expenses
- Fully Built-Out as Standard Office
- Fits 3 - 8 People
1st Floor, Ste 105/106
| Size | 1,850 SF |
| Term | Negotiable |
| Rental Rate | $28.66 CAD/SF/YR |
| Space Use | Office |
| Condition | Full Build-Out |
| Available | Now |
SVN is pleased to present an exceptional office space within the Woodbourne North Office Center, centrally located in Langhorne, Bucks County, Pennsylvania. Two turnkey professional office suites (950 SF and 1,850 SF) have recently undergone thoughtful upgrades, providing a high-quality, move-in-ready environment designed for convenience and functionality. Both suites feature efficient floor plans that can accommodate a wide range of professional uses. Visible and convenient location with ample parking.
- Listed rate may not include certain utilities, building services and property expenses
- Fully Built-Out as Standard Office
- Fits 5 - 15 People
Property Overview
SVN is pleased to present an exceptional office space within the Woodbourne North Office Center, centrally located in Langhorne, Bucks County, Pennsylvania. Two turnkey professional office suites (950 SF and 1,850 SF) have recently undergone thoughtful upgrades, providing a high-quality, move-in-ready environment designed for convenience and functionality. Both suites feature efficient floor plans that can accommodate a wide range of professional uses. Visible and convenient location with ample parking. The Woodbourne North Office Center is strategically situated in the bustling commercial hub of Langhorne, offering a prime location for prospective office tenants. The property benefits from its convenient access to major thoroughfares, providing easy connectivity to Philadelphia and New Jersey's dynamic markets. Situated within the Oxford Valley corridor in close proximity to Oxford Valley Mall and Sesame Place, the property is located within close proximity to several major medical systems (Aria-Jefferson Health, Bucks County - 2.4 miles and St. Mary's Medical Center, Newtown - 4.2 miles), as well as many other amenities. Easy access to US-1, I-95, PA & NJ Turnpikes.
Property Facts
Select Tenants
- Floor
- Tenant Name
- Industry
- 1st
- Always Best Care
- Health Care and Social Assistance
- 1st
- Aterrasys, LLC
- Professional, Scientific, and Technical Services
- Unknown
- B
- Retailer
- Unknown
- C
- Retailer
- Unknown
- E
- Retailer
- Unknown
- F
- Retailer
- 2nd
- Gentile Concrete Inc
- Construction
- Unknown
- H
- Retailer
- Unknown
- I
- Retailer
- 1st
- Woodbourne Development
- Real Estate
Presented by
Woodbourne North Office Center | 668 Woodbourne Rd
Hmm, there seems to have been an error sending your message. Please try again.
Thanks! Your message was sent.





