Log In/Sign Up
Your email has been sent.
6680 Chippewa St
Saint Louis, MO 63109
Office Property For Sale


Executive Summary
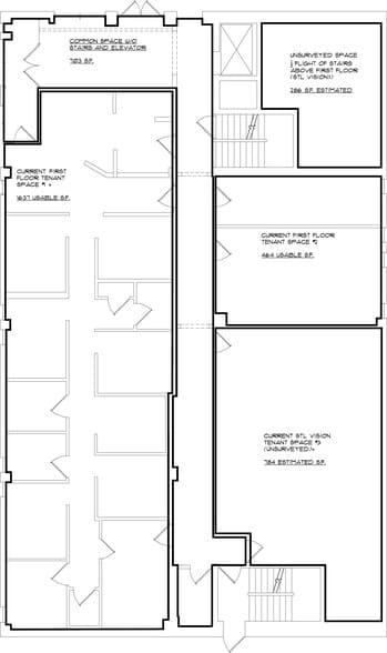
This well-located 11,731 SF office building sits along one of South St. Louis’s most established commercial corridors, offering strong visibility and convenient access to I-44. The property presents an excellent owner-user opportunity, with the entire first floor delivered vacant at closing for immediate occupancy, while a portion of the building remains occupied by an established medical user providing in-place income.
The functional office layout is suitable for medical or professional use and is supported by abundant on-site parking. Located in a proven South St. Louis submarket with strong residential density and nearby retail amenities, the property benefits from consistent traffic flow and long-term market stability.
The functional office layout is suitable for medical or professional use and is supported by abundant on-site parking. Located in a proven South St. Louis submarket with strong residential density and nearby retail amenities, the property benefits from consistent traffic flow and long-term market stability.
Property Facts
Sale Type
Investment or Owner User
Property Type
Office
Property Subtype
Medical
Building Size
10,000 SF
Building Class
C
Year Built
1952
Price
$2,748,113 CAD
Price Per SF
$274.81 CAD
Cap Rate
7.17%
NOI
$197,067 CAD
Percent Leased
27%
Tenancy
Multiple
Building Height
2 Stories
Typical Floor Size
5,000 SF
Building FAR
0.48
Lot Size
0.48 AC
Zoning
F
Property Taxes
| Parcel Number | 6195-00-0040-0 | Improvements Assessment | $292,147 CAD |
| Land Assessment | $93,227 CAD | Total Assessment | $385,374 CAD |
Property Taxes
Parcel Number
6195-00-0040-0
Land Assessment
$93,227 CAD
Improvements Assessment
$292,147 CAD
Total Assessment
$385,374 CAD
1 of 4
Videos
Matterport 3D Exterior
Matterport 3D Tour
Photos
Street View
Street
Map
