Your email has been sent.
Park Highlights
- Scenic Ocean and Mountain Views
- Convenient Access
- Prime Hawaii Kai Location
- 24/7 Security
Park Facts
| Total Space Available | 11,983 SF | Park Type | Office Park |
| Min. Divisible | 1,652 SF |
| Total Space Available | 11,983 SF |
| Min. Divisible | 1,652 SF |
| Park Type | Office Park |
Display Rental Rate as
- Space
- Size
- Term
- Rental Rate
- Space Use
- Build-Out
- Available
This 2,988-square-foot former bank branch is located on the ground floor in Executive Plaza, Suite 110, at Hawaii Kai Towne Center. It features prominent street frontage and direct access from the courtyard, providing excellent visibility and exposure. The space is complemented by ample parking options, making it convenient for clients and employees alike. Ideal for retail, office, or service uses seeking a highly accessible location.
- Lease rate does not include utilities, property expenses or building services
- Fits 8 - 24 People
- Partially Built-Out as a Bank
- Space is in Excellent Condition
This 2,019 square foot retail space at Hawaii Kai Towne Center features a mostly open layout, ideal for versatile configurations. It offers excellent parking options for customers and prominent signage opportunities to attract attention. Perfect for retail businesses seeking high visibility and convenient access.
- Lease rate does not include utilities, property expenses or building services
- Mostly Open Floor Plan Layout
- Space is in Excellent Condition
- Partially Built-Out as Standard Retail Space
- Fits 6 - 17 People
| Space | Size | Term | Rental Rate | Space Use | Build-Out | Available |
| Ground, Ste 110 | 2,988 SF | Negotiable | $74.00 CAD/SF/YR $6.17 CAD/SF/MO $221,118 CAD/YR $18,427 CAD/MO | Office/Retail | Partial Build-Out | 2026-05-01 |
| Ground, Ste Corporate Plaza 104 | 2,019 SF | Negotiable | $74.00 CAD/SF/YR $6.17 CAD/SF/MO $149,410 CAD/YR $12,451 CAD/MO | Office/Retail | Partial Build-Out | Now |
6700 Kalanianaole Hwy - Ground - Ste 110
6700 Kalanianaole Hwy - Ground - Ste Corporate Plaza 104
- Space
- Size
- Term
- Rental Rate
- Space Use
- Build-Out
- Available
This 2,988-square-foot former bank branch is located on the ground floor in Executive Plaza, Suite 110, at Hawaii Kai Towne Center. It features prominent street frontage and direct access from the courtyard, providing excellent visibility and exposure. The space is complemented by ample parking options, making it convenient for clients and employees alike. Ideal for retail, office, or service uses seeking a highly accessible location.
- Lease rate does not include utilities, property expenses or building services
- Fits 8 - 24 People
- Partially Built-Out as a Bank
- Space is in Excellent Condition
This 2,019 square foot retail space at Hawaii Kai Towne Center features a mostly open layout, ideal for versatile configurations. It offers excellent parking options for customers and prominent signage opportunities to attract attention. Perfect for retail businesses seeking high visibility and convenient access.
- Lease rate does not include utilities, property expenses or building services
- Mostly Open Floor Plan Layout
- Space is in Excellent Condition
- Partially Built-Out as Standard Retail Space
- Fits 6 - 17 People
The project hosts a diverse mix of tenants, including financial institutions such as Central Pacific Bank and Edward Jones, along with medical and wellness providers like Wellness Partners Hawaii and OsteoStrong. This blend of office and retail within the Hawaii Kai Towne Center fosters a dynamic business environment. The presence of well-known tenants and the proximity to popular attractions further ensure a consistent flow of visitors, making Executive Plaza a strategic location for any business.
- Lease rate does not include utilities, property expenses or building services
- Office intensive layout
- Prime Location
- Ample parking
- Fully Built-Out as Standard Office
- Fits 5 - 40 People
- Scenic Views
This ADA-accessible 2nd-floor office at Hawaii Kai Towne Center offers great natural light, creating a bright and welcoming environment. It features multiple private offices and a spacious open area suitable for workstations, making it ideal for collaborative and individual work.
- Lease rate does not include utilities, property expenses or building services
- Fits 6 - 17 People
- Space is in Excellent Condition
- Partially Built-Out as Standard Office
- 3 Private Offices
| Space | Size | Term | Rental Rate | Space Use | Build-Out | Available |
| Ground, Ste 110 | 2,988 SF | Negotiable | $74.00 CAD/SF/YR $6.17 CAD/SF/MO $221,118 CAD/YR $18,427 CAD/MO | Office/Retail | Partial Build-Out | 2026-05-01 |
| Ground, Ste Corporate Plaza 104 | 2,019 SF | Negotiable | $74.00 CAD/SF/YR $6.17 CAD/SF/MO $149,410 CAD/YR $12,451 CAD/MO | Office/Retail | Partial Build-Out | Now |
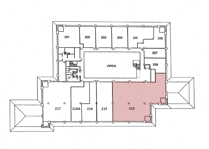
| 2nd Floor, Ste 210 | 1,652-4,962 SF | Negotiable | $61.67 CAD/SF/YR $5.14 CAD/SF/MO $305,999 CAD/YR $25,500 CAD/MO | Office | Full Build-Out | Now |
| 2nd Floor, Ste Corporate Plaza 224 | 2,014 SF | Negotiable | $61.67 CAD/SF/YR $5.14 CAD/SF/MO $124,200 CAD/YR $10,350 CAD/MO | Office | Partial Build-Out | Now |
6700 Kalanianaole Hwy - Ground - Ste 110
6700 Kalanianaole Hwy - Ground - Ste Corporate Plaza 104
6700 Kalanianaole Hwy - 2nd Floor - Ste 210
6700 Kalanianaole Hwy - 2nd Floor - Ste Corporate Plaza 224
6700 Kalanianaole Hwy - Ground - Ste 110
| Size | 2,988 SF |
| Term | Negotiable |
| Rental Rate | $74.00 CAD/SF/YR |
| Space Use | Office/Retail |
| Build-Out | Partial Build-Out |
| Available | 2026-05-01 |
This 2,988-square-foot former bank branch is located on the ground floor in Executive Plaza, Suite 110, at Hawaii Kai Towne Center. It features prominent street frontage and direct access from the courtyard, providing excellent visibility and exposure. The space is complemented by ample parking options, making it convenient for clients and employees alike. Ideal for retail, office, or service uses seeking a highly accessible location.
- Lease rate does not include utilities, property expenses or building services
- Partially Built-Out as a Bank
- Fits 8 - 24 People
- Space is in Excellent Condition
6700 Kalanianaole Hwy - Ground - Ste Corporate Plaza 104
| Size | 2,019 SF |
| Term | Negotiable |
| Rental Rate | $74.00 CAD/SF/YR |
| Space Use | Office/Retail |
| Build-Out | Partial Build-Out |
| Available | Now |
This 2,019 square foot retail space at Hawaii Kai Towne Center features a mostly open layout, ideal for versatile configurations. It offers excellent parking options for customers and prominent signage opportunities to attract attention. Perfect for retail businesses seeking high visibility and convenient access.
- Lease rate does not include utilities, property expenses or building services
- Partially Built-Out as Standard Retail Space
- Mostly Open Floor Plan Layout
- Fits 6 - 17 People
- Space is in Excellent Condition
6700 Kalanianaole Hwy - 2nd Floor - Ste 210
| Size | 1,652-4,962 SF |
| Term | Negotiable |
| Rental Rate | $61.67 CAD/SF/YR |
| Space Use | Office |
| Build-Out | Full Build-Out |
| Available | Now |
The project hosts a diverse mix of tenants, including financial institutions such as Central Pacific Bank and Edward Jones, along with medical and wellness providers like Wellness Partners Hawaii and OsteoStrong. This blend of office and retail within the Hawaii Kai Towne Center fosters a dynamic business environment. The presence of well-known tenants and the proximity to popular attractions further ensure a consistent flow of visitors, making Executive Plaza a strategic location for any business.
- Lease rate does not include utilities, property expenses or building services
- Fully Built-Out as Standard Office
- Office intensive layout
- Fits 5 - 40 People
- Prime Location
- Scenic Views
- Ample parking
6700 Kalanianaole Hwy - 2nd Floor - Ste Corporate Plaza 224
| Size | 2,014 SF |
| Term | Negotiable |
| Rental Rate | $61.67 CAD/SF/YR |
| Space Use | Office |
| Build-Out | Partial Build-Out |
| Available | Now |
This ADA-accessible 2nd-floor office at Hawaii Kai Towne Center offers great natural light, creating a bright and welcoming environment. It features multiple private offices and a spacious open area suitable for workstations, making it ideal for collaborative and individual work.
- Lease rate does not include utilities, property expenses or building services
- Partially Built-Out as Standard Office
- Fits 6 - 17 People
- 3 Private Offices
- Space is in Excellent Condition
Select Tenants at This Property
- Floor
- Tenant Name
- Industry
- 2nd
- Diehl & Weger Attorneys at Law ALC
- Professional, Scientific, and Technical Services
- Unknown
- Edward Jones
- Finance and Insurance
- 2nd
- Hawaii American Water
- Utilities
- 2nd
- Hawaii Dermatology & Plastic Surgery Center
- -
- GRND
- Hawaii Kai Chiropractic Center
- Health Care and Social Assistance
- GRND
- Hawaii Kai Salon & Day Spa
- Services
- 2nd
- Hawaii Mortgage Experts
- Finance and Insurance
- 2nd
- Hawaii Pacific Dental Group
- Health Care and Social Assistance
- GRND
- Kaiser Permanente
- Health Care and Social Assistance
- GRND
- OsteoStrong Hawaii Kai
- -
Park Overview
Executive Plaza, located at 6700 Kalanianaole Hwy within the Hawaii Kai Towne Center, offers a premier business address in one of Honolulu’s most upscale neighborhoods. The building features flexible office spaces with open layouts, including Suite 210, making it ideal for a wide range of professional tenants. With sweeping ocean and mountain views, Executive Plaza provides an attractive setting for businesses. Tenants and their clients also benefit from ample customer parking, 24/7 security, and the steady foot traffic generated by the surrounding retail and dining establishments.
Presented by
Hawaii Kai Towne Center Executive Plaza | Honolulu, HI 96825
Hmm, there seems to have been an error sending your message. Please try again.
Thanks! Your message was sent.






