Your email has been sent.
6717 N Holly St
Kansas City, MO 64118
Land For Sale
·
20.63 AC


Investment Highlights
- Corner location at Holly St and 68th St offering strong neighborhood connectivity
- Two contiguous tracts enabling flexible, multi-phase subdivision planning
- Easy access to Highway 169 connecting residents to employment and services across the region
- R-7.5 zoning already in place providing a streamlined development path
- Rapidly growing North Kansas City submarket with strong demand for new single-family homes
- Well-supported demographic base with high average household incomes in nearby radii
Executive Summary
Property Facts
| Sale Type | Investment | Property Subtype | Residential |
| No. Lots | 1 | Proposed Use | |
| Property Type | Land | Total Lot Size | 20.63 AC |
| Zoning | R-7.5 - Single Family Residential District | ||
| Sale Type | Investment |
| No. Lots | 1 |
| Property Type | Land |
| Property Subtype | Residential |
| Proposed Use | |
| Total Lot Size | 20.63 AC |
| Zoning | R-7.5 - Single Family Residential District |
1 Lot Available
Lot
| Lot Size | 20.63 AC |
| Lot Size | 20.63 AC |
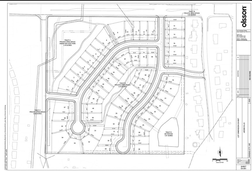
Prime 20.575 acre residential development site at Holly St and 68th St with R-7.5 zoning and two contiguous tracts positioned for a multi-phase single-family community in a high-growth North Kansas City corridor.
Description
Situated at the highly accessible intersection of Holly Street and 68th Street, this 20.575 acre residential land offering delivers an exceptional development opportunity in the rapidly expanding Kansas City North market. With zoning already in place for R-7.5, the entitlement process is significantly simplified, allowing a buyer to move more efficiently toward platting and neighborhood design. The property is composed of two contiguous tracts, 13.799 acres and 6.776 acres, creating a versatile development footprint capable of supporting a thoughtfully phased single-family community. The surrounding area has experienced sustained demand for new construction, driven by strong household incomes, stable population growth, and access to major employment centers. Demographics within a 5.5-mile radius include nearly 80,000 households with an average household income exceeding $99,000, reflecting a well-positioned buyer pool for mid-to-upper-tier residential product. The site benefits from its strategic corner location, offering future residents smooth connectivity to Highway 169 and the broader regional network. This positioning supports both commuter convenience and accessibility to retail, services, and recreation throughout the Northland. The property’s scale and layout align well with current development patterns in the submarket, where multi-phase subdivision projects continue to perform and absorb effectively. Conceptual planning provided within the brochure is for visualization purposes only; buyers should complete all engineering, surveying, and KCMO approval processes to finalize lot counts and designs. This land represents a compelling opportunity for developers seeking a prime location with both immediate feasibility and long-term neighborhood potential in a thriving residential environment.
Property Taxes
| Parcel Number | 13-520-00-09-001.00 | Improvements Assessment | $0 CAD |
| Land Assessment | $0 CAD | Total Assessment | $884 CAD |
