Your email has been sent.
Highlights
- Building features a Kohler 450 KW back-up diesel generator with 800 gallon diesel fuel tank.
- 26’ clear
- 122’6” deep. Truck court can be fenced, gated and secured.
- High bay LED lights
- Sixteen (16) dock-high (48”) doors will be created as well as one (1) drive-in door.
- 4,000 amps, 277/480 volt primary electric service.
Features
All Available Space(1)
Display Rental Rate as
- Space
- Size
- Term
- Rental Rate
- Space Use
- Build-Out
- Available
Free-standing warehouse/distribution center with a clear ceiling height of 24’, superior column spacing of 50’W x 60’D, 16 dock doors creating a floor area to dock ratio of 7,500 square feet per dock; one (1) drive-in door and 112 parking spaces creating a parking ratio of .93 spaces per 1,000 square feet. The 122’6” deep truck court may be fenced, gated and secured.
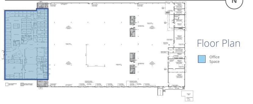
- Includes 17,500 SF of dedicated office space
- 1 Drive Bay
- Very accessible location.
- Space is in Excellent Condition
- 16 Loading Docks
| Space | Size | Term | Rental Rate | Space Use | Build-Out | Available |
| 1st Floor | 120,000 SF | Negotiable | Upon Request Upon Request Upon Request Upon Request | Flex | Full Build-Out | Now |
1st Floor
| Size |
| 120,000 SF |
| Term |
| Negotiable |
| Rental Rate |
| Upon Request Upon Request Upon Request Upon Request |
| Space Use |
| Flex |
| Build-Out |
| Full Build-Out |
| Available |
| Now |
1st Floor
| Size | 120,000 SF |
| Term | Negotiable |
| Rental Rate | Upon Request |
| Space Use | Flex |
| Build-Out | Full Build-Out |
| Available | Now |
Free-standing warehouse/distribution center with a clear ceiling height of 24’, superior column spacing of 50’W x 60’D, 16 dock doors creating a floor area to dock ratio of 7,500 square feet per dock; one (1) drive-in door and 112 parking spaces creating a parking ratio of .93 spaces per 1,000 square feet. The 122’6” deep truck court may be fenced, gated and secured.
- Includes 17,500 SF of dedicated office space
- Space is in Excellent Condition
- 1 Drive Bay
- 16 Loading Docks
- Very accessible location.
Property Overview
The Baymeadow Industrial Park is a 220 acre multi-use business park featuring a zoning classification of W-1 (Industrial Park District) in Anne Arundel County, Maryland. Property enjoys great ingress/ egress located one exit South of the Baltimore Beltway (I-695). Plus, a very rare amenity for an industrial building, the property enjoys a waterfront location on Furnace Creek, a tributary of the Patapsco River which creates the Harbor for Baltimore, MD.
Distribution Facility Facts
Presented by
6752 Baymeadow Dr
Hmm, there seems to have been an error sending your message. Please try again.
Thanks! Your message was sent.






