Your email has been sent.
Park Highlights
- Multiple configurations of flex, warehouse, and office suites are available, ranging in size to meet tenant needs.
- Flexible leases allow tenants to expand into a larger space if the need for an increased presence ever arises, without breaking their lease.
- Situated in a prominent retail corridor in proximity to multiple retailers, providing consistent foot traffic and increased exposure.
- Seattle Exchange @ Southcenter is an easily accessible location that features quick access to multiple major thoroughfares.
Park Facts
Features and Amenities
- 24 Hour Access
- Bus Line
- Commuter Rail
- Mezzanine
- Property Manager on Site
- Signage
- Tenant Controlled HVAC
- Storage Space
- Monument Signage
All Available Spaces(38)
Display Rental Rate as
- Space
- Size
- Term
- Rental Rate
- Space Use
- Build-Out
- Available
- Includes 954 SF of dedicated office space
- Includes 1,034 SF of dedicated office space
- Includes 782 SF of dedicated office space
| Space | Size | Term | Rental Rate | Space Use | Build-Out | Available |
| 1st Floor - 1042 | 2,407 SF | Negotiable | Upon Request Upon Request Upon Request Upon Request | Flex | - | Now |
| 1st Floor - 1044 | 2,105 SF | Negotiable | Upon Request Upon Request Upon Request Upon Request | Flex | - | Now |
| 1st Floor - 1052 | 2,325 SF | Negotiable | Upon Request Upon Request Upon Request Upon Request | Flex | - | Now |
1038 Industry Dr - 1st Floor - 1042
1038 Industry Dr - 1st Floor - 1044
1038 Industry Dr - 1st Floor - 1052
- Space
- Size
- Term
- Rental Rate
- Space Use
- Build-Out
- Available
- Includes 766 SF of dedicated office space
- Zoned TUC for broad commercial use
| Space | Size | Term | Rental Rate | Space Use | Build-Out | Available |
| 1st Floor - 1083 | 4,842 SF | Negotiable | Upon Request Upon Request Upon Request Upon Request | Industrial | Full Build-Out | Now |
1001 Industry Dr - 1st Floor - 1083
- Space
- Size
- Term
- Rental Rate
- Space Use
- Build-Out
- Available
- Includes 356 SF of dedicated office space
- Includes 247 SF of dedicated office space
| Space | Size | Term | Rental Rate | Space Use | Build-Out | Available |
| 1st Floor - 1106 | 1,203 SF | Negotiable | Upon Request Upon Request Upon Request Upon Request | Flex | - | 30 Days |
| 1st Floor - 1126 | 600 SF | Negotiable | Upon Request Upon Request Upon Request Upon Request | Flex | - | 30 Days |
1100 Industry Dr - 1st Floor - 1106
1100 Industry Dr - 1st Floor - 1126
- Space
- Size
- Term
- Rental Rate
- Space Use
- Build-Out
- Available
- Includes 505 SF of dedicated office space
| Space | Size | Term | Rental Rate | Space Use | Build-Out | Available |
| 1st Floor - 1132 | 1,800 SF | Negotiable | Upon Request Upon Request Upon Request Upon Request | Industrial | - | Now |
1128 Industry Dr - 1st Floor - 1132
- Space
- Size
- Term
- Rental Rate
- Space Use
- Build-Out
- Available
- Includes 893 SF of dedicated office space
- On-site management for quick response
| Space | Size | Term | Rental Rate | Space Use | Build-Out | Available |
| 1st Floor - 1138 | 1,800 SF | Negotiable | Upon Request Upon Request Upon Request Upon Request | Flex | Full Build-Out | Now |
1138 Industry Dr - 1st Floor - 1138
- Space
- Size
- Term
- Rental Rate
- Space Use
- Build-Out
- Available
- Includes 1,323 SF of dedicated office space
| Space | Size | Term | Rental Rate | Space Use | Build-Out | Available |
| 1st Floor - 1162 | 3,003 SF | Negotiable | Upon Request Upon Request Upon Request Upon Request | Industrial | - | 30 Days |
1158 Industry Dr - 1st Floor - 1162
- Space
- Size
- Term
- Rental Rate
- Space Use
- Build-Out
- Available
| Space | Size | Term | Rental Rate | Space Use | Build-Out | Available |
| 1st Floor - 613 | 2,514 SF | Negotiable | Upon Request Upon Request Upon Request Upon Request | Flex | - | 30 Days |
641 Industry Dr - 1st Floor - 613
- Space
- Size
- Term
- Rental Rate
- Space Use
- Build-Out
- Available
- Includes 708 SF of dedicated office space
- Includes 708 SF of dedicated office space
- Includes 492 SF of dedicated office space
| Space | Size | Term | Rental Rate | Space Use | Build-Out | Available |
| 1st Floor - 669 | 1,417 SF | Negotiable | Upon Request Upon Request Upon Request Upon Request | Flex | - | 30 Days |
| 1st Floor - 671 | 1,410 SF | Negotiable | Upon Request Upon Request Upon Request Upon Request | Flex | - | 30 Days |
| 1st Floor - 673 | 1,202 SF | Negotiable | Upon Request Upon Request Upon Request Upon Request | Flex | - | 30 Days |
| 1st Floor - 677C | 935 SF | Negotiable | Upon Request Upon Request Upon Request Upon Request | Flex | - | 30 Days |
659 Strander Blvd - 1st Floor - 669
659 Strander Blvd - 1st Floor - 671
659 Strander Blvd - 1st Floor - 673
659 Strander Blvd - 1st Floor - 677C
- Space
- Size
- Term
- Rental Rate
- Space Use
- Build-Out
- Available
- Includes 574 SF of dedicated office space
- On-site management for quick response
- Includes 560 SF of dedicated office space
- On-site management for quick response
| Space | Size | Term | Rental Rate | Space Use | Build-Out | Available |
| 1st Floor - 705 | 2,534 SF | Negotiable | Upon Request Upon Request Upon Request Upon Request | Flex | Full Build-Out | 30 Days |
| 1st Floor - 709 | 2,526 SF | Negotiable | Upon Request Upon Request Upon Request Upon Request | Flex | Full Build-Out | 30 Days |
701 Industry Dr - 1st Floor - 705
701 Industry Dr - 1st Floor - 709
- Space
- Size
- Term
- Rental Rate
- Space Use
- Build-Out
- Available
- Includes 741 SF of dedicated office space
- On-site management for quick response
- Includes 342 SF of dedicated office space
- On-site management for quick response
| Space | Size | Term | Rental Rate | Space Use | Build-Out | Available |
| 1st Floor - 742 | 3,456 SF | Negotiable | Upon Request Upon Request Upon Request Upon Request | Flex | Full Build-Out | 30 Days |
| 1st Floor - 770 | 1,606 SF | Negotiable | Upon Request Upon Request Upon Request Upon Request | Flex | Full Build-Out | 30 Days |
742 Industry Dr - 1st Floor - 742
742 Industry Dr - 1st Floor - 770
- Space
- Size
- Term
- Rental Rate
- Space Use
- Build-Out
- Available
- Includes 744 SF of dedicated office space
| Space | Size | Term | Rental Rate | Space Use | Build-Out | Available |
| 1st Floor - 811 | 1,701 SF | Negotiable | Upon Request Upon Request Upon Request Upon Request | Flex | - | Now |
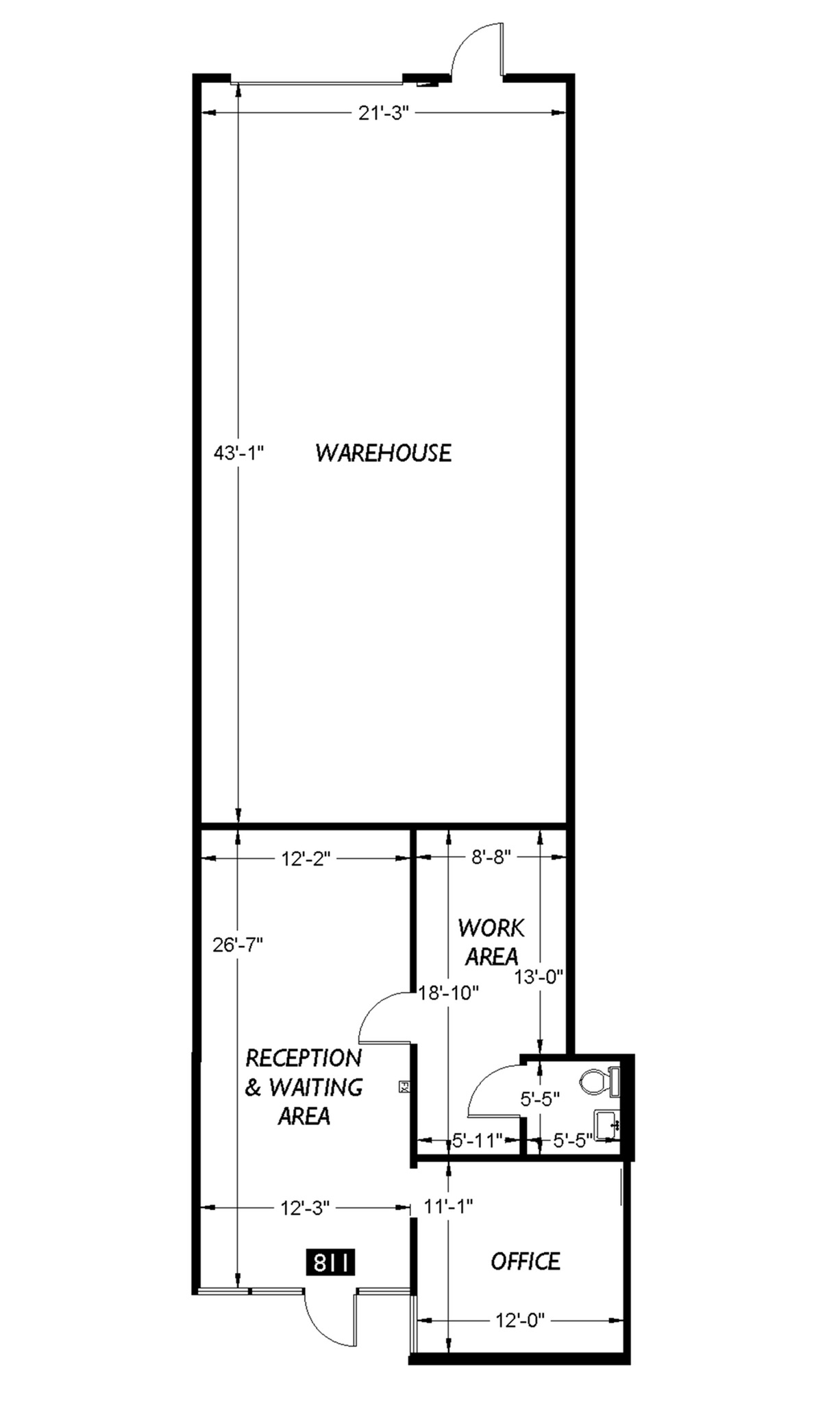
805 Industry Dr - 1st Floor - 811
- Space
- Size
- Term
- Rental Rate
- Space Use
- Build-Out
- Available
- Includes 1,133 SF of dedicated office space
- On-site management for quick response
- Includes 1,378 SF of dedicated office space
- On-site management for quick response
| Space | Size | Term | Rental Rate | Space Use | Build-Out | Available |
| 1st Floor - 830 | 1,636 SF | Negotiable | Upon Request Upon Request Upon Request Upon Request | Flex | Full Build-Out | 60 Days |
| 1st Floor - 832 | 1,877 SF | Negotiable | Upon Request Upon Request Upon Request Upon Request | Flex | Full Build-Out | 60 Days |
830 Industry Dr - 1st Floor - 830
830 Industry Dr - 1st Floor - 832
- Space
- Size
- Term
- Rental Rate
- Space Use
- Build-Out
- Available
- Includes 1,391 SF of dedicated office space
- Fits 5 - 14 People
| Space | Size | Term | Rental Rate | Space Use | Build-Out | Available |
| 1st Floor - 839, 847 | 3,216 SF | Negotiable | Upon Request Upon Request Upon Request Upon Request | Flex | - | 30 Days |
| 2nd Floor, Ste 845M | 1,747 SF | Negotiable | Upon Request Upon Request Upon Request Upon Request | Office | - | Now |
825 Industry Dr - 1st Floor - 839, 847
825 Industry Dr - 2nd Floor - Ste 845M
- Space
- Size
- Term
- Rental Rate
- Space Use
- Build-Out
- Available
- Includes 488 SF of dedicated office space
| Space | Size | Term | Rental Rate | Space Use | Build-Out | Available |
| 1st Floor - 881 | 1,875 SF | Negotiable | Upon Request Upon Request Upon Request Upon Request | Flex | - | 30 Days |
881 Industry Dr - 1st Floor - 881
- Space
- Size
- Term
- Rental Rate
- Space Use
- Build-Out
- Available
- Includes 1,122 SF of dedicated office space
| Space | Size | Term | Rental Rate | Space Use | Build-Out | Available |
| 1st Floor - 910 | 2,700 SF | Negotiable | Upon Request Upon Request Upon Request Upon Request | Flex | - | 90 Days |
902 Industry Dr - 1st Floor - 910
- Space
- Size
- Term
- Rental Rate
- Space Use
- Build-Out
- Available
- Includes 645 SF of dedicated office space
| Space | Size | Term | Rental Rate | Space Use | Build-Out | Available |
| 1st Floor - 943 | 1,892 SF | Negotiable | Upon Request Upon Request Upon Request Upon Request | Flex | - | Now |
935 Industry Dr - 1st Floor - 943
- Space
- Size
- Term
- Rental Rate
- Space Use
- Build-Out
- Available
- Includes 539 SF of dedicated office space
| Space | Size | Term | Rental Rate | Space Use | Build-Out | Available |
| 1st Floor - 952 | 2,119 SF | Negotiable | Upon Request Upon Request Upon Request Upon Request | Flex | - | 30 Days |
950 Industry Dr - 1st Floor - 952
- Space
- Size
- Term
- Rental Rate
- Space Use
- Build-Out
- Available
- Includes 1,064 SF of dedicated office space
- Includes 1,534 SF of dedicated office space
- Fully Built-Out as Standard Office
- Fits 1 - 4 People
- Mostly Open Floor Plan Layout
- On-site management for quick response
- Fully Built-Out as Standard Office
- Fits 4 - 12 People
- Mostly Open Floor Plan Layout
- On-site management for quick response
- Fully Built-Out as Standard Office
- Fits 3 - 8 People
- Mostly Open Floor Plan Layout
- On-site management for quick response
| Space | Size | Term | Rental Rate | Space Use | Build-Out | Available |
| 1st Floor - 990 | 1,614 SF | Negotiable | Upon Request Upon Request Upon Request Upon Request | Flex | - | 30 Days |
| 1st Floor - 992-994 | 3,239 SF | Negotiable | Upon Request Upon Request Upon Request Upon Request | Flex | - | 30 Days |
| Mezzanine, Ste 978-215 | 390 SF | Negotiable | Upon Request Upon Request Upon Request Upon Request | Office | Full Build-Out | Now |
| Mezzanine, Ste 978-230 | 1,497 SF | Negotiable | Upon Request Upon Request Upon Request Upon Request | Office | Full Build-Out | Now |
| Mezzanine, Ste 978-250 | 882 SF | Negotiable | Upon Request Upon Request Upon Request Upon Request | Office | Full Build-Out | Now |
970 Industry Dr - 1st Floor - 990
970 Industry Dr - 1st Floor - 992-994
970 Industry Dr - Mezzanine - Ste 978-215
970 Industry Dr - Mezzanine - Ste 978-230
970 Industry Dr - Mezzanine - Ste 978-250
- Space
- Size
- Term
- Rental Rate
- Space Use
- Build-Out
- Available
- Fully Built-Out as Standard Office
- Fits 2 - 7 People
- Mostly Open Floor Plan Layout
- On-site management for quick response
- Fully Built-Out as Standard Office
- Fits 2 - 5 People
- Mostly Open Floor Plan Layout
- On-site management for quick response
| Space | Size | Term | Rental Rate | Space Use | Build-Out | Available |
| 2nd Floor, Ste 625A | 782 SF | Negotiable | Upon Request Upon Request Upon Request Upon Request | Office | Full Build-Out | Now |
| 2nd Floor, Ste 625C | 586 SF | Negotiable | Upon Request Upon Request Upon Request Upon Request | Office | Full Build-Out | Now |
601 Strander Blvd - 2nd Floor - Ste 625A
601 Strander Blvd - 2nd Floor - Ste 625C
- Space
- Size
- Term
- Rental Rate
- Space Use
- Build-Out
- Available
- Fits 3 - 7 People
| Space | Size | Term | Rental Rate | Space Use | Build-Out | Available |
| 2nd Floor, Ste 699D | 854 SF | Negotiable | Upon Request Upon Request Upon Request Upon Request | Office | - | 30 Days |
679-699 Strander Blvd - 2nd Floor - Ste 699D
- Space
- Size
- Term
- Rental Rate
- Space Use
- Build-Out
- Available
- Fits 1 - 3 People
| Space | Size | Term | Rental Rate | Space Use | Build-Out | Available |
| Mezzanine, Ste 230 | 251 SF | Negotiable | Upon Request Upon Request Upon Request Upon Request | Office | - | 30 Days |
596 Industry Dr - Mezzanine - Ste 230
- Space
- Size
- Term
- Rental Rate
- Space Use
- Build-Out
- Available
- Fully Built-Out as Standard Office
- Fits 2 - 6 People
- Mostly Open Floor Plan Layout
- On-site management for quick response
- Fully Built-Out as Standard Office
- Fits 3 - 8 People
- Mostly Open Floor Plan Layout
- On-site management for quick response
| Space | Size | Term | Rental Rate | Space Use | Build-Out | Available |
| Mezzanine, Ste 932-220 | 730 SF | Negotiable | Upon Request Upon Request Upon Request Upon Request | Office | Full Build-Out | 30 Days |
| Mezzanine, Ste 932-230 | 883 SF | Negotiable | Upon Request Upon Request Upon Request Upon Request | Office | Full Build-Out | 30 Days |
930 Industry Dr - Mezzanine - Ste 932-220
930 Industry Dr - Mezzanine - Ste 932-230
1038 Industry Dr - 1st Floor - 1042
| Size | 2,407 SF |
| Term | Negotiable |
| Rental Rate | Upon Request |
| Space Use | Flex |
| Build-Out | - |
| Available | Now |
- Includes 954 SF of dedicated office space
1038 Industry Dr - 1st Floor - 1044
| Size | 2,105 SF |
| Term | Negotiable |
| Rental Rate | Upon Request |
| Space Use | Flex |
| Build-Out | - |
| Available | Now |
- Includes 1,034 SF of dedicated office space
1038 Industry Dr - 1st Floor - 1052
| Size | 2,325 SF |
| Term | Negotiable |
| Rental Rate | Upon Request |
| Space Use | Flex |
| Build-Out | - |
| Available | Now |
- Includes 782 SF of dedicated office space
1001 Industry Dr - 1st Floor - 1083
| Size | 4,842 SF |
| Term | Negotiable |
| Rental Rate | Upon Request |
| Space Use | Industrial |
| Build-Out | Full Build-Out |
| Available | Now |
- Includes 766 SF of dedicated office space
- Zoned TUC for broad commercial use
1100 Industry Dr - 1st Floor - 1106
| Size | 1,203 SF |
| Term | Negotiable |
| Rental Rate | Upon Request |
| Space Use | Flex |
| Build-Out | - |
| Available | 30 Days |
- Includes 356 SF of dedicated office space
1100 Industry Dr - 1st Floor - 1126
| Size | 600 SF |
| Term | Negotiable |
| Rental Rate | Upon Request |
| Space Use | Flex |
| Build-Out | - |
| Available | 30 Days |
- Includes 247 SF of dedicated office space
1128 Industry Dr - 1st Floor - 1132
| Size | 1,800 SF |
| Term | Negotiable |
| Rental Rate | Upon Request |
| Space Use | Industrial |
| Build-Out | - |
| Available | Now |
- Includes 505 SF of dedicated office space
1138 Industry Dr - 1st Floor - 1138
| Size | 1,800 SF |
| Term | Negotiable |
| Rental Rate | Upon Request |
| Space Use | Flex |
| Build-Out | Full Build-Out |
| Available | Now |
- Includes 893 SF of dedicated office space
- On-site management for quick response
1158 Industry Dr - 1st Floor - 1162
| Size | 3,003 SF |
| Term | Negotiable |
| Rental Rate | Upon Request |
| Space Use | Industrial |
| Build-Out | - |
| Available | 30 Days |
- Includes 1,323 SF of dedicated office space
641 Industry Dr - 1st Floor - 613
| Size | 2,514 SF |
| Term | Negotiable |
| Rental Rate | Upon Request |
| Space Use | Flex |
| Build-Out | - |
| Available | 30 Days |
659 Strander Blvd - 1st Floor - 669
| Size | 1,417 SF |
| Term | Negotiable |
| Rental Rate | Upon Request |
| Space Use | Flex |
| Build-Out | - |
| Available | 30 Days |
- Includes 708 SF of dedicated office space
659 Strander Blvd - 1st Floor - 671
| Size | 1,410 SF |
| Term | Negotiable |
| Rental Rate | Upon Request |
| Space Use | Flex |
| Build-Out | - |
| Available | 30 Days |
- Includes 708 SF of dedicated office space
659 Strander Blvd - 1st Floor - 673
| Size | 1,202 SF |
| Term | Negotiable |
| Rental Rate | Upon Request |
| Space Use | Flex |
| Build-Out | - |
| Available | 30 Days |
- Includes 492 SF of dedicated office space
659 Strander Blvd - 1st Floor - 677C
| Size | 935 SF |
| Term | Negotiable |
| Rental Rate | Upon Request |
| Space Use | Flex |
| Build-Out | - |
| Available | 30 Days |
701 Industry Dr - 1st Floor - 705
| Size | 2,534 SF |
| Term | Negotiable |
| Rental Rate | Upon Request |
| Space Use | Flex |
| Build-Out | Full Build-Out |
| Available | 30 Days |
- Includes 574 SF of dedicated office space
- On-site management for quick response
701 Industry Dr - 1st Floor - 709
| Size | 2,526 SF |
| Term | Negotiable |
| Rental Rate | Upon Request |
| Space Use | Flex |
| Build-Out | Full Build-Out |
| Available | 30 Days |
- Includes 560 SF of dedicated office space
- On-site management for quick response
742 Industry Dr - 1st Floor - 742
| Size | 3,456 SF |
| Term | Negotiable |
| Rental Rate | Upon Request |
| Space Use | Flex |
| Build-Out | Full Build-Out |
| Available | 30 Days |
- Includes 741 SF of dedicated office space
- On-site management for quick response
742 Industry Dr - 1st Floor - 770
| Size | 1,606 SF |
| Term | Negotiable |
| Rental Rate | Upon Request |
| Space Use | Flex |
| Build-Out | Full Build-Out |
| Available | 30 Days |
- Includes 342 SF of dedicated office space
- On-site management for quick response
805 Industry Dr - 1st Floor - 811
| Size | 1,701 SF |
| Term | Negotiable |
| Rental Rate | Upon Request |
| Space Use | Flex |
| Build-Out | - |
| Available | Now |
- Includes 744 SF of dedicated office space
830 Industry Dr - 1st Floor - 830
| Size | 1,636 SF |
| Term | Negotiable |
| Rental Rate | Upon Request |
| Space Use | Flex |
| Build-Out | Full Build-Out |
| Available | 60 Days |
- Includes 1,133 SF of dedicated office space
- On-site management for quick response
830 Industry Dr - 1st Floor - 832
| Size | 1,877 SF |
| Term | Negotiable |
| Rental Rate | Upon Request |
| Space Use | Flex |
| Build-Out | Full Build-Out |
| Available | 60 Days |
- Includes 1,378 SF of dedicated office space
- On-site management for quick response
825 Industry Dr - 1st Floor - 839, 847
| Size | 3,216 SF |
| Term | Negotiable |
| Rental Rate | Upon Request |
| Space Use | Flex |
| Build-Out | - |
| Available | 30 Days |
- Includes 1,391 SF of dedicated office space
825 Industry Dr - 2nd Floor - Ste 845M
| Size | 1,747 SF |
| Term | Negotiable |
| Rental Rate | Upon Request |
| Space Use | Office |
| Build-Out | - |
| Available | Now |
- Fits 5 - 14 People
881 Industry Dr - 1st Floor - 881
| Size | 1,875 SF |
| Term | Negotiable |
| Rental Rate | Upon Request |
| Space Use | Flex |
| Build-Out | - |
| Available | 30 Days |
- Includes 488 SF of dedicated office space
902 Industry Dr - 1st Floor - 910
| Size | 2,700 SF |
| Term | Negotiable |
| Rental Rate | Upon Request |
| Space Use | Flex |
| Build-Out | - |
| Available | 90 Days |
- Includes 1,122 SF of dedicated office space
935 Industry Dr - 1st Floor - 943
| Size | 1,892 SF |
| Term | Negotiable |
| Rental Rate | Upon Request |
| Space Use | Flex |
| Build-Out | - |
| Available | Now |
- Includes 645 SF of dedicated office space
950 Industry Dr - 1st Floor - 952
| Size | 2,119 SF |
| Term | Negotiable |
| Rental Rate | Upon Request |
| Space Use | Flex |
| Build-Out | - |
| Available | 30 Days |
- Includes 539 SF of dedicated office space
970 Industry Dr - 1st Floor - 990
| Size | 1,614 SF |
| Term | Negotiable |
| Rental Rate | Upon Request |
| Space Use | Flex |
| Build-Out | - |
| Available | 30 Days |
- Includes 1,064 SF of dedicated office space
970 Industry Dr - 1st Floor - 992-994
| Size | 3,239 SF |
| Term | Negotiable |
| Rental Rate | Upon Request |
| Space Use | Flex |
| Build-Out | - |
| Available | 30 Days |
- Includes 1,534 SF of dedicated office space
970 Industry Dr - Mezzanine - Ste 978-215
| Size | 390 SF |
| Term | Negotiable |
| Rental Rate | Upon Request |
| Space Use | Office |
| Build-Out | Full Build-Out |
| Available | Now |
- Fully Built-Out as Standard Office
- Mostly Open Floor Plan Layout
- Fits 1 - 4 People
- On-site management for quick response
970 Industry Dr - Mezzanine - Ste 978-230
| Size | 1,497 SF |
| Term | Negotiable |
| Rental Rate | Upon Request |
| Space Use | Office |
| Build-Out | Full Build-Out |
| Available | Now |
- Fully Built-Out as Standard Office
- Mostly Open Floor Plan Layout
- Fits 4 - 12 People
- On-site management for quick response
970 Industry Dr - Mezzanine - Ste 978-250
| Size | 882 SF |
| Term | Negotiable |
| Rental Rate | Upon Request |
| Space Use | Office |
| Build-Out | Full Build-Out |
| Available | Now |
- Fully Built-Out as Standard Office
- Mostly Open Floor Plan Layout
- Fits 3 - 8 People
- On-site management for quick response
601 Strander Blvd - 2nd Floor - Ste 625A
| Size | 782 SF |
| Term | Negotiable |
| Rental Rate | Upon Request |
| Space Use | Office |
| Build-Out | Full Build-Out |
| Available | Now |
- Fully Built-Out as Standard Office
- Mostly Open Floor Plan Layout
- Fits 2 - 7 People
- On-site management for quick response
601 Strander Blvd - 2nd Floor - Ste 625C
| Size | 586 SF |
| Term | Negotiable |
| Rental Rate | Upon Request |
| Space Use | Office |
| Build-Out | Full Build-Out |
| Available | Now |
- Fully Built-Out as Standard Office
- Mostly Open Floor Plan Layout
- Fits 2 - 5 People
- On-site management for quick response
679-699 Strander Blvd - 2nd Floor - Ste 699D
| Size | 854 SF |
| Term | Negotiable |
| Rental Rate | Upon Request |
| Space Use | Office |
| Build-Out | - |
| Available | 30 Days |
- Fits 3 - 7 People
596 Industry Dr - Mezzanine - Ste 230
| Size | 251 SF |
| Term | Negotiable |
| Rental Rate | Upon Request |
| Space Use | Office |
| Build-Out | - |
| Available | 30 Days |
- Fits 1 - 3 People
930 Industry Dr - Mezzanine - Ste 932-220
| Size | 730 SF |
| Term | Negotiable |
| Rental Rate | Upon Request |
| Space Use | Office |
| Build-Out | Full Build-Out |
| Available | 30 Days |
- Fully Built-Out as Standard Office
- Mostly Open Floor Plan Layout
- Fits 2 - 6 People
- On-site management for quick response
930 Industry Dr - Mezzanine - Ste 932-230
| Size | 883 SF |
| Term | Negotiable |
| Rental Rate | Upon Request |
| Space Use | Office |
| Build-Out | Full Build-Out |
| Available | 30 Days |
- Fully Built-Out as Standard Office
- Mostly Open Floor Plan Layout
- Fits 3 - 8 People
- On-site management for quick response
Matterport 3D Tours
Park Overview
Discover exceptional leasing opportunities at Seattle Exchange, a centrally located business park in Tukwila, Washington, offering flex, warehouse, and pure office suites ranging from 200 to 10,000 square feet. Conveniently situated at 601–699 Strander Boulevard and 400–1164 Industry Drive, this 660,000-square-foot property is just steps from Westfield Southcenter Mall and minutes from Sea-Tac Airport, providing quick access to major freeways, including Interstates 5 and 405 and Highways 167, 509, and 99. Seattle Exchange has recently undergone extensive renovations under new ownership, featuring a modern paint scheme, updated landscaping, and new signage throughout. Tenants enjoy on-site management for fast response, flexible configurations, and turnkey suites ready for immediate occupancy. The park offers rare dock-high spaces under 10,000 square feet, 10-foot by 10-foot roll-up doors, and zoning under TUC (City of Tukwila), making it ideal for businesses seeking a professional image and operational efficiency. Located in a thriving commercial hub, Seattle Exchange serves an area of over 834,000 residents within a 10-mile radius, with proximity to major employers and amenities such as Costco, The Home Depot, REI, Courtyard by Marriott, and Dick’s Sporting Goods. The property is conveniently located just 4 miles from Sea-Tac Airport, 13 miles from Downtown Seattle, 15 miles from Bellevue, and 22 miles from the Port of Tacoma, ensuring unmatched regional connectivity. Limited-time leasing promotion offering $1.00/per square foot per month for the first full year of the lease term on eligible spaces.
Demographics
Regional Accessibility
Nearby Amenities
Restaurants |
|||
|---|---|---|---|
| Jony's Breakfast & Lunch Restaurant | American | $ | 7 min walk |
| Teriyaki Wok | Japanese | $ | 7 min walk |
| Jack In The Box | - | - | 8 min walk |
| Los Bigotes de Villa | Mexican | $ | 7 min walk |
| Yamada Teriyaki | Japanese | $$ | 10 min walk |
| Patty’s Eggnest Restaurant | American | $$ | 13 min walk |
| Mizu Japanese Steakhouse | Steakhouse | $$$ | 13 min walk |
| Starbucks | Cafe | $ | 14 min walk |
Retail |
||
|---|---|---|
| 7-eleven | Convenience Market | 7 min walk |
| CHEF'STORE | Wholesale Club | 9 min walk |
| Wells Fargo Bank | Bank | 9 min walk |
| Total Wine & More | Liquor | 10 min walk |
| FedEx Office | Business/Copy/Postal Services | 10 min walk |
| LA Fitness | Fitness | 13 min walk |
| KeyBank | Bank | 12 min walk |
| The UPS Store | Business/Copy/Postal Services | 13 min walk |
| Chase Bank | Bank | 14 min walk |
| Bank of America | Bank | 15 min walk |
Hotels |
|
|---|---|
| element |
177 rooms
3 min drive
|
| Courtyard |
214 rooms
3 min drive
|
| Embassy Suites by Hilton |
242 rooms
3 min drive
|
| Ramada |
146 rooms
3 min drive
|
| DoubleTree by Hilton |
219 rooms
4 min drive
|
| Ramada |
125 rooms
12 min drive
|
| Four Points by Sheraton |
225 rooms
13 min drive
|
| LivAway Suites |
126 rooms
13 min drive
|
| OYO |
116 rooms
13 min drive
|
| Hyatt Regency |
347 rooms
12 min drive
|
Leasing Team
Sean Durkin - SIOR, MSRE, CCIM, Principal
Sean’s education, background in brokerage, ownership, and construction offers a diverse skill set, strong work ethic, and creative thinking. This combination has served his clients well, offering diverse solutions to their challenges. His cut-and-dry method of analysis and loyalty make him a great asset to clients in their execution of both short and long-term real estate and business goals. As an owner and broker, he understands the importance of managing client/tenant expectations and maximizing property value. He provides asset management advisory services to his clients, going above and beyond a transactional broker working to meet client goals. Sean is deeply involved in the local commercial real estate community, participating in and chairing several NAIOP committees, with one event he co-runs raising over $100K annually for Big Brothers Big Sisters.
In his free time, Sean enjoys hiking, backcountry skiing year-round (he recently hit 101 consecutive months of skiing), fishing, boating, and construction projects.
John Brussa, Principal
Today, John actively represents more than 1.5 million square feet of industrial and flex space throughout King and Pierce Counties, working with a broad range of clients including investors, owners, users, and sellers of industrial property. Whether advising single-property occupiers or multi-national institutional owners, John delivers best-in-class service grounded in deep market knowledge and practical execution.
Over the course of his career, John has driven approximately $300 million in transaction value and successfully completed more than 500 deals. His experience representing all sides of transactions has given him a strong understanding of the common pain points faced by both users and owners, as well as the ability to navigate them efficiently to achieve successful outcomes. John is known for his strong work ethic, clear and timely communication, and an unwavering commitment to integrity and his clients’ best interests.
Born in Dallas and raised in the Pacific Northwest, John enjoys spending his free time in the mountains hiking and skiing whenever possible, as well as volunteering with Seattle Humane.
About the Owner
Other Properties in the INVESTCORP Portfolio
Presented by
Seattle Exchange @ Southcenter | Tukwila, WA 98188
Hmm, there seems to have been an error sending your message. Please try again.
Thanks! Your message was sent.














































































