Your email has been sent.
Park Highlights
- Flexible space of all sizes: move-in ready suites, full floors and buildings accommodate growing companies with office, R&D and lab space.
- A full suite of amenities: get more from your workplace with 10+ outdoor workspaces, fitness, new on-site dining (The Eatery), meeting & event space.
- Your own private campus is within reach: grow your business with two contiguous buildings, modern design and highly-visible signage.
- Convenient location: near Hwy 237 and I-880, resort-style living at North Park, and dining, retail and entertainment at McCarthy Ranch Marketplace.
- Newly refreshed campus: modern design, bold entries and highly-visible signage within a turn-key workplace.
Park Facts
All Available Spaces(17)
Display Rental Rate as
- Space
- Size
- Term
- Rental Rate
- Space Use
- Build-Out
- Available
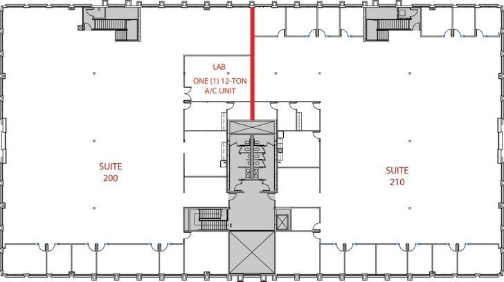
Office space available for-lease. Full building identity. BUILDING SPECIFICATIONS • ±62,874 SF • 2,000 Amps @ 480/277 Volts • 180 tons of house air • 45 tons of supplemental air
- Lease rate does not include utilities, property expenses or building services
- Mostly Open Floor Plan Layout
- Space is in Excellent Condition
- Fully Built-Out as Research and Development Space
- Fits 79 - 252 People
- Can be combined with additional space(s) for up to 62,874 SF of adjacent space
Office space available for-lease. Full building identity BUILDING SPECIFICATIONS • ±62,874 SF • 2,000 Amps @ 480/277 Volts • 180 tons of house air • 45 tons of supplemental air
- Lease rate does not include utilities, property expenses or building services
- Office intensive layout
- Space is in Excellent Condition
- Fully Built-Out as Research and Development Space
- Fits 79 - 252 People
- Can be combined with additional space(s) for up to 62,874 SF of adjacent space
| Space | Size | Term | Rental Rate | Space Use | Build-Out | Available |
| 1st Floor | 31,437 SF | Negotiable | $33.56 CAD/SF/YR $2.80 CAD/SF/MO $1,055,035 CAD/YR $87,920 CAD/MO | Office | Full Build-Out | Now |
| 2nd Floor | 31,437 SF | Negotiable | $33.56 CAD/SF/YR $2.80 CAD/SF/MO $1,055,035 CAD/YR $87,920 CAD/MO | Office | Full Build-Out | Now |
840 N McCarthy Blvd - 1st Floor
840 N McCarthy Blvd - 2nd Floor
- Space
- Size
- Term
- Rental Rate
- Space Use
- Build-Out
- Available
Office space available for-lease. This is an opportunity to lease the full building.
- Lease rate does not include utilities, property expenses or building services
- Mostly Open Floor Plan Layout
- 12 Private Offices
- Can be combined with additional space(s) for up to 62,874 SF of adjacent space
- Kitchen
- Private Restrooms
- Shower Facilities
- Building Power: 2,000 Amps @ 480/277/120 Volts
- Fully Built-Out as Research and Development Space
- Fits 79 - 252 People
- 6 Conference Rooms
- Reception Area
- Laboratory
- Secure Storage
- Open-Plan
- Building HVAC (House Air) - Two 90-Ton Units
Office space available for-lease. This is an opportunity to lease the full building.
- Lease rate does not include utilities, property expenses or building services
- Mostly Open Floor Plan Layout
- 25 Private Offices
- Space is in Excellent Condition
- Private Restrooms
- Building Power: 2,000 Amps @ 480/277/120 Volts
- Fully Built-Out as Standard Office
- Fits 79 - 252 People
- 5 Conference Rooms
- Can be combined with additional space(s) for up to 62,874 SF of adjacent space
- Secure Storage
- Building HVAC (House Air) - Two 90-Ton Units
| Space | Size | Term | Rental Rate | Space Use | Build-Out | Available |
| 1st Floor, Ste 100 | 31,437 SF | Negotiable | $33.56 CAD/SF/YR $2.80 CAD/SF/MO $1,055,035 CAD/YR $87,920 CAD/MO | Office | Full Build-Out | Now |
| 2nd Floor, Ste 200 | 31,437 SF | Negotiable | $33.56 CAD/SF/YR $2.80 CAD/SF/MO $1,055,035 CAD/YR $87,920 CAD/MO | Office | Full Build-Out | Now |
640 N McCarthy Blvd - 1st Floor - Ste 100
640 N McCarthy Blvd - 2nd Floor - Ste 200
- Space
- Size
- Term
- Rental Rate
- Space Use
- Build-Out
- Available
Office space available for-lease. The space includes a lobby, six conference rooms, fifteen private offices, two shipping/receiving areas, one electrical room, two IT rooms, two storage rooms, a new break area leading to an adjacent patio, restroom cores with showers, and an open workspace.
- Lease rate does not include utilities, property expenses or building services
- Mostly Open Floor Plan Layout
- 15 Private Offices
- Space is in Excellent Condition
- Building Power: 2,000 Amps @ 480/277/120 Volts
- Fully Built-Out as Standard Office
- Fits 67 - 214 People
- 6 Conference Rooms
- Can be combined with additional space(s) for up to 53,284 SF of adjacent space
- • Building HVAC (House Air) - Two 90-Ton Units
Office space available for-lease. Suite Description : $1/SF Broker Bonus for 3+ year lease deals for NEW customers. Valid for 490 N McCarthy, Suite 200 only. Exclusions apply. Expires 6/30/2026.
- Lease rate does not include utilities, property expenses or building services
- Mostly Open Floor Plan Layout
- 13 Private Offices
- Space is in Excellent Condition
- Fully Built-Out as Standard Office
- Fits 67 - 214 People
- 7 Conference Rooms
- Can be combined with additional space(s) for up to 53,284 SF of adjacent space
| Space | Size | Term | Rental Rate | Space Use | Build-Out | Available |
| 1st Floor, Ste 100 | 26,642 SF | Negotiable | $33.56 CAD/SF/YR $2.80 CAD/SF/MO $894,114 CAD/YR $74,509 CAD/MO | Office | Full Build-Out | Now |
| 2nd Floor, Ste 200 | 26,642 SF | Negotiable | $33.56 CAD/SF/YR $2.80 CAD/SF/MO $894,114 CAD/YR $74,509 CAD/MO | Office | Full Build-Out | Now |
660 N McCarthy Blvd - 1st Floor - Ste 100
660 N McCarthy Blvd - 2nd Floor - Ste 200
- Space
- Size
- Term
- Rental Rate
- Space Use
- Build-Out
- Available
Office space available for-lease. The space includes eight private offices, a conference room, a reception area, a break area, a copy room, a storage room, a shipping/receiving area, a server room, an electrical room, and an open workspace.
- Lease rate does not include utilities, property expenses or building services
- Open Floor Plan Layout
- 8 Private Offices
- Space is in Excellent Condition
- Fully Built-Out as Standard Office
- Fits 28 - 88 People
- 1 Conference Room
Office space available for-lease. Suite Description : $1/SF Broker Bonus for 3+ year lease deals for NEW customers. Valid for 890 N McCarthy, Suite 200 only. Exclusions apply. Expires 6/30/2026.
- Lease rate does not include utilities, property expenses or building services
- Open Floor Plan Layout
- 2 Conference Rooms
- Fully Built-Out as Standard Office
- Fits 24 - 76 People
- Space is in Excellent Condition
Office space available for-lease.
- Lease rate does not include utilities, property expenses or building services
- Fits 31 - 99 People
| Space | Size | Term | Rental Rate | Space Use | Build-Out | Available |
| 1st Floor, Ste 100 | 10,924 SF | Negotiable | $33.56 CAD/SF/YR $2.80 CAD/SF/MO $366,613 CAD/YR $30,551 CAD/MO | Office | Full Build-Out | Now |
| 2nd Floor, Ste 200 | 9,471 SF | Negotiable | $28.65 CAD/SF/YR $2.39 CAD/SF/MO $271,335 CAD/YR $22,611 CAD/MO | Office | Full Build-Out | Now |
| 2nd Floor, Ste 220 | 12,375 SF | Negotiable | $28.65 CAD/SF/YR $2.39 CAD/SF/MO $354,532 CAD/YR $29,544 CAD/MO | Office | - | 2026-10-01 |
890 N McCarthy Blvd - 1st Floor - Ste 100
890 N McCarthy Blvd - 2nd Floor - Ste 200
890 N McCarthy Blvd - 2nd Floor - Ste 220
- Space
- Size
- Term
- Rental Rate
- Space Use
- Build-Out
- Available
Office space available for-lease.
- Lease rate does not include utilities, property expenses or building services
- Mostly Open Floor Plan Layout
- Space is in Excellent Condition
- Fully Built-Out as Standard Office
- Fits 34 - 214 People
- Can be combined with additional space(s) for up to 39,904 SF of adjacent space
Office space available for-lease. Suite Description : $1/SF Broker Bonus for 3+ year lease deals for NEW customers. Valid for 870 N McCarthy, Suite 200 only. Exclusions apply. Expires 6/30/2026.
- Lease rate does not include utilities, property expenses or building services
- Open Floor Plan Layout
- 4 Private Offices
- Space is in Excellent Condition
- Fully Built-Out as Standard Office
- Fits 34 - 107 People
- 2 Conference Rooms
- Can be combined with additional space(s) for up to 39,904 SF of adjacent space
| Space | Size | Term | Rental Rate | Space Use | Build-Out | Available |
| 1st Floor, Ste 100 | 13,321-26,642 SF | Negotiable | $33.56 CAD/SF/YR $2.80 CAD/SF/MO $894,114 CAD/YR $74,509 CAD/MO | Office | Full Build-Out | Now |
| 2nd Floor, Ste 200 | 13,262 SF | Negotiable | $28.65 CAD/SF/YR $2.39 CAD/SF/MO $379,944 CAD/YR $31,662 CAD/MO | Office | Full Build-Out | Now |
870 N McCarthy Blvd - 1st Floor - Ste 100
870 N McCarthy Blvd - 2nd Floor - Ste 200
- Space
- Size
- Term
- Rental Rate
- Space Use
- Build-Out
- Available
Office space available for-lease.
- Lease rate does not include utilities, property expenses or building services
- Mostly Open Floor Plan Layout
- Space is in Excellent Condition
- Partially Built-Out as Standard Office
- Fits 29 - 93 People
| Space | Size | Term | Rental Rate | Space Use | Build-Out | Available |
| 1st Floor, Ste 150 | 11,548 SF | Negotiable | $33.56 CAD/SF/YR $2.80 CAD/SF/MO $387,554 CAD/YR $32,296 CAD/MO | Office | Partial Build-Out | Now |
860 N McCarthy Blvd - 1st Floor - Ste 150
- Space
- Size
- Term
- Rental Rate
- Space Use
- Build-Out
- Available
Office space available for-lease. Suite Description : $1/SF Broker Bonus for 3+ year lease deals for NEW customers. Valid for 670 N McCarthy, Suite 200 only. Exclusions apply. Expires 6/30/2026.
- Lease rate does not include utilities, property expenses or building services
- Mostly Open Floor Plan Layout
- 8 Private Offices
- Space is in Excellent Condition
- Fully Built-Out as Standard Office
- Fits 31 - 98 People
- 3 Conference Rooms
| Space | Size | Term | Rental Rate | Space Use | Build-Out | Available |
| 2nd Floor, Ste 200 | 12,164 SF | Negotiable | $28.65 CAD/SF/YR $2.39 CAD/SF/MO $348,487 CAD/YR $29,041 CAD/MO | Office | Full Build-Out | Now |
670 N McCarthy Blvd - 2nd Floor - Ste 200
- Space
- Size
- Term
- Rental Rate
- Space Use
- Build-Out
- Available
Office space available for-lease.
- Lease rate does not include utilities, property expenses or building services
- Mostly Open Floor Plan Layout
- 10 Private Offices
- 10 Workstations
- Private Restrooms
- Fully Built-Out as Standard Office
- Fits 30 - 96 People
- 10 Conference Rooms
- Finished Ceilings: 10’
- Flexible Use
| Space | Size | Term | Rental Rate | Space Use | Build-Out | Available |
| 2nd Floor, Ste 200 | 11,993 SF | Negotiable | $28.65 CAD/SF/YR $2.39 CAD/SF/MO $343,588 CAD/YR $28,632 CAD/MO | Office | Full Build-Out | Now |
490 N McCarthy Blvd - 2nd Floor - Ste 200
- Space
- Size
- Term
- Rental Rate
- Space Use
- Build-Out
- Available
Office space available for-lease.
- Rate includes utilities, building services and property expenses
- Fits 26 - 81 People
Office space available for-lease. Market Ready.
- Rate includes utilities, building services and property expenses
- Fits 8 - 23 People
| Space | Size | Term | Rental Rate | Space Use | Build-Out | Available |
| 2nd Floor, Ste 200 | 10,058 SF | Negotiable | $54.84 CAD/SF/YR $4.57 CAD/SF/MO $551,605 CAD/YR $45,967 CAD/MO | Office | - | 2026-07-01 |
| 2nd Floor, Ste 230 | 2,807 SF | Negotiable | $54.84 CAD/SF/YR $4.57 CAD/SF/MO $153,943 CAD/YR $12,829 CAD/MO | Office | - | Now |
820 N McCarthy Blvd - 2nd Floor - Ste 200
820 N McCarthy Blvd - 2nd Floor - Ste 230
- Space
- Size
- Term
- Rental Rate
- Space Use
- Build-Out
- Available
Office space available for-lease. Brand new market ready condition. Efficient floor plans with expansive glassine, private break areas or kitchenettes. Newly renovated common area, restrooms, and corridors.
- Rate includes utilities, building services and property expenses
- Mostly Open Floor Plan Layout
- Space is in Excellent Condition
- Fully Built-Out as Standard Office
- Fits 10 - 30 People
| Space | Size | Term | Rental Rate | Space Use | Build-Out | Available |
| 2nd Floor, Ste 210 | 3,675 SF | Negotiable | $54.84 CAD/SF/YR $4.57 CAD/SF/MO $201,546 CAD/YR $16,796 CAD/MO | Office | Full Build-Out | Now |
680 N McCarthy Blvd - 2nd Floor - Ste 210
840 N McCarthy Blvd - 1st Floor
| Size | 31,437 SF |
| Term | Negotiable |
| Rental Rate | $33.56 CAD/SF/YR |
| Space Use | Office |
| Build-Out | Full Build-Out |
| Available | Now |
Office space available for-lease. Full building identity. BUILDING SPECIFICATIONS • ±62,874 SF • 2,000 Amps @ 480/277 Volts • 180 tons of house air • 45 tons of supplemental air
- Lease rate does not include utilities, property expenses or building services
- Fully Built-Out as Research and Development Space
- Mostly Open Floor Plan Layout
- Fits 79 - 252 People
- Space is in Excellent Condition
- Can be combined with additional space(s) for up to 62,874 SF of adjacent space
840 N McCarthy Blvd - 2nd Floor
| Size | 31,437 SF |
| Term | Negotiable |
| Rental Rate | $33.56 CAD/SF/YR |
| Space Use | Office |
| Build-Out | Full Build-Out |
| Available | Now |
Office space available for-lease. Full building identity BUILDING SPECIFICATIONS • ±62,874 SF • 2,000 Amps @ 480/277 Volts • 180 tons of house air • 45 tons of supplemental air
- Lease rate does not include utilities, property expenses or building services
- Fully Built-Out as Research and Development Space
- Office intensive layout
- Fits 79 - 252 People
- Space is in Excellent Condition
- Can be combined with additional space(s) for up to 62,874 SF of adjacent space
640 N McCarthy Blvd - 1st Floor - Ste 100
| Size | 31,437 SF |
| Term | Negotiable |
| Rental Rate | $33.56 CAD/SF/YR |
| Space Use | Office |
| Build-Out | Full Build-Out |
| Available | Now |
Office space available for-lease. This is an opportunity to lease the full building.
- Lease rate does not include utilities, property expenses or building services
- Fully Built-Out as Research and Development Space
- Mostly Open Floor Plan Layout
- Fits 79 - 252 People
- 12 Private Offices
- 6 Conference Rooms
- Can be combined with additional space(s) for up to 62,874 SF of adjacent space
- Reception Area
- Kitchen
- Laboratory
- Private Restrooms
- Secure Storage
- Shower Facilities
- Open-Plan
- Building Power: 2,000 Amps @ 480/277/120 Volts
- Building HVAC (House Air) - Two 90-Ton Units
640 N McCarthy Blvd - 2nd Floor - Ste 200
| Size | 31,437 SF |
| Term | Negotiable |
| Rental Rate | $33.56 CAD/SF/YR |
| Space Use | Office |
| Build-Out | Full Build-Out |
| Available | Now |
Office space available for-lease. This is an opportunity to lease the full building.
- Lease rate does not include utilities, property expenses or building services
- Fully Built-Out as Standard Office
- Mostly Open Floor Plan Layout
- Fits 79 - 252 People
- 25 Private Offices
- 5 Conference Rooms
- Space is in Excellent Condition
- Can be combined with additional space(s) for up to 62,874 SF of adjacent space
- Private Restrooms
- Secure Storage
- Building Power: 2,000 Amps @ 480/277/120 Volts
- Building HVAC (House Air) - Two 90-Ton Units
660 N McCarthy Blvd - 1st Floor - Ste 100
| Size | 26,642 SF |
| Term | Negotiable |
| Rental Rate | $33.56 CAD/SF/YR |
| Space Use | Office |
| Build-Out | Full Build-Out |
| Available | Now |
Office space available for-lease. The space includes a lobby, six conference rooms, fifteen private offices, two shipping/receiving areas, one electrical room, two IT rooms, two storage rooms, a new break area leading to an adjacent patio, restroom cores with showers, and an open workspace.
- Lease rate does not include utilities, property expenses or building services
- Fully Built-Out as Standard Office
- Mostly Open Floor Plan Layout
- Fits 67 - 214 People
- 15 Private Offices
- 6 Conference Rooms
- Space is in Excellent Condition
- Can be combined with additional space(s) for up to 53,284 SF of adjacent space
- Building Power: 2,000 Amps @ 480/277/120 Volts
- • Building HVAC (House Air) - Two 90-Ton Units
660 N McCarthy Blvd - 2nd Floor - Ste 200
| Size | 26,642 SF |
| Term | Negotiable |
| Rental Rate | $33.56 CAD/SF/YR |
| Space Use | Office |
| Build-Out | Full Build-Out |
| Available | Now |
Office space available for-lease. Suite Description : $1/SF Broker Bonus for 3+ year lease deals for NEW customers. Valid for 490 N McCarthy, Suite 200 only. Exclusions apply. Expires 6/30/2026.
- Lease rate does not include utilities, property expenses or building services
- Fully Built-Out as Standard Office
- Mostly Open Floor Plan Layout
- Fits 67 - 214 People
- 13 Private Offices
- 7 Conference Rooms
- Space is in Excellent Condition
- Can be combined with additional space(s) for up to 53,284 SF of adjacent space
890 N McCarthy Blvd - 1st Floor - Ste 100
| Size | 10,924 SF |
| Term | Negotiable |
| Rental Rate | $33.56 CAD/SF/YR |
| Space Use | Office |
| Build-Out | Full Build-Out |
| Available | Now |
Office space available for-lease. The space includes eight private offices, a conference room, a reception area, a break area, a copy room, a storage room, a shipping/receiving area, a server room, an electrical room, and an open workspace.
- Lease rate does not include utilities, property expenses or building services
- Fully Built-Out as Standard Office
- Open Floor Plan Layout
- Fits 28 - 88 People
- 8 Private Offices
- 1 Conference Room
- Space is in Excellent Condition
890 N McCarthy Blvd - 2nd Floor - Ste 200
| Size | 9,471 SF |
| Term | Negotiable |
| Rental Rate | $28.65 CAD/SF/YR |
| Space Use | Office |
| Build-Out | Full Build-Out |
| Available | Now |
Office space available for-lease. Suite Description : $1/SF Broker Bonus for 3+ year lease deals for NEW customers. Valid for 890 N McCarthy, Suite 200 only. Exclusions apply. Expires 6/30/2026.
- Lease rate does not include utilities, property expenses or building services
- Fully Built-Out as Standard Office
- Open Floor Plan Layout
- Fits 24 - 76 People
- 2 Conference Rooms
- Space is in Excellent Condition
890 N McCarthy Blvd - 2nd Floor - Ste 220
| Size | 12,375 SF |
| Term | Negotiable |
| Rental Rate | $28.65 CAD/SF/YR |
| Space Use | Office |
| Build-Out | - |
| Available | 2026-10-01 |
Office space available for-lease.
- Lease rate does not include utilities, property expenses or building services
- Fits 31 - 99 People
870 N McCarthy Blvd - 1st Floor - Ste 100
| Size | 13,321-26,642 SF |
| Term | Negotiable |
| Rental Rate | $33.56 CAD/SF/YR |
| Space Use | Office |
| Build-Out | Full Build-Out |
| Available | Now |
Office space available for-lease.
- Lease rate does not include utilities, property expenses or building services
- Fully Built-Out as Standard Office
- Mostly Open Floor Plan Layout
- Fits 34 - 214 People
- Space is in Excellent Condition
- Can be combined with additional space(s) for up to 39,904 SF of adjacent space
870 N McCarthy Blvd - 2nd Floor - Ste 200
| Size | 13,262 SF |
| Term | Negotiable |
| Rental Rate | $28.65 CAD/SF/YR |
| Space Use | Office |
| Build-Out | Full Build-Out |
| Available | Now |
Office space available for-lease. Suite Description : $1/SF Broker Bonus for 3+ year lease deals for NEW customers. Valid for 870 N McCarthy, Suite 200 only. Exclusions apply. Expires 6/30/2026.
- Lease rate does not include utilities, property expenses or building services
- Fully Built-Out as Standard Office
- Open Floor Plan Layout
- Fits 34 - 107 People
- 4 Private Offices
- 2 Conference Rooms
- Space is in Excellent Condition
- Can be combined with additional space(s) for up to 39,904 SF of adjacent space
860 N McCarthy Blvd - 1st Floor - Ste 150
| Size | 11,548 SF |
| Term | Negotiable |
| Rental Rate | $33.56 CAD/SF/YR |
| Space Use | Office |
| Build-Out | Partial Build-Out |
| Available | Now |
Office space available for-lease.
- Lease rate does not include utilities, property expenses or building services
- Partially Built-Out as Standard Office
- Mostly Open Floor Plan Layout
- Fits 29 - 93 People
- Space is in Excellent Condition
670 N McCarthy Blvd - 2nd Floor - Ste 200
| Size | 12,164 SF |
| Term | Negotiable |
| Rental Rate | $28.65 CAD/SF/YR |
| Space Use | Office |
| Build-Out | Full Build-Out |
| Available | Now |
Office space available for-lease. Suite Description : $1/SF Broker Bonus for 3+ year lease deals for NEW customers. Valid for 670 N McCarthy, Suite 200 only. Exclusions apply. Expires 6/30/2026.
- Lease rate does not include utilities, property expenses or building services
- Fully Built-Out as Standard Office
- Mostly Open Floor Plan Layout
- Fits 31 - 98 People
- 8 Private Offices
- 3 Conference Rooms
- Space is in Excellent Condition
490 N McCarthy Blvd - 2nd Floor - Ste 200
| Size | 11,993 SF |
| Term | Negotiable |
| Rental Rate | $28.65 CAD/SF/YR |
| Space Use | Office |
| Build-Out | Full Build-Out |
| Available | Now |
Office space available for-lease.
- Lease rate does not include utilities, property expenses or building services
- Fully Built-Out as Standard Office
- Mostly Open Floor Plan Layout
- Fits 30 - 96 People
- 10 Private Offices
- 10 Conference Rooms
- 10 Workstations
- Finished Ceilings: 10’
- Private Restrooms
- Flexible Use
820 N McCarthy Blvd - 2nd Floor - Ste 200
| Size | 10,058 SF |
| Term | Negotiable |
| Rental Rate | $54.84 CAD/SF/YR |
| Space Use | Office |
| Build-Out | - |
| Available | 2026-07-01 |
Office space available for-lease.
- Rate includes utilities, building services and property expenses
- Fits 26 - 81 People
820 N McCarthy Blvd - 2nd Floor - Ste 230
| Size | 2,807 SF |
| Term | Negotiable |
| Rental Rate | $54.84 CAD/SF/YR |
| Space Use | Office |
| Build-Out | - |
| Available | Now |
Office space available for-lease. Market Ready.
- Rate includes utilities, building services and property expenses
- Fits 8 - 23 People
680 N McCarthy Blvd - 2nd Floor - Ste 210
| Size | 3,675 SF |
| Term | Negotiable |
| Rental Rate | $54.84 CAD/SF/YR |
| Space Use | Office |
| Build-Out | Full Build-Out |
| Available | Now |
Office space available for-lease. Brand new market ready condition. Efficient floor plans with expansive glassine, private break areas or kitchenettes. Newly renovated common area, restrooms, and corridors.
- Rate includes utilities, building services and property expenses
- Fully Built-Out as Standard Office
- Mostly Open Floor Plan Layout
- Fits 10 - 30 People
- Space is in Excellent Condition
Select Tenants at This Property
- ADP
- Fournisseur mondial de solutions HCM basées sur l'infonuagique basé à Roseland, New Jersey.
- AT&T
- Fournisseur mondial de services de télécommunications dont le siège social est situé à Dallas, au Texas, depuis 1885.
- Combinations LabRAFV.4
- Entreprise de communication locale
- Elo Touch Solutions
- Fabricant international de matériel informatique établi en 1971 et basé à Knoxville, TN.
- Envision Peripherals, Inc.
- Services de détail et de soutien d'écrans de bureau locaux situés à Milpitas, en Californie, fondé en 1998.
- Hewlett Packard Enterprises
- Entreprise internationale de technologie de l'information dont le siège social est situé à Spring, au Texas, depuis 1939.
- Infineon Technologies
- Semiconductor Solutions, dont le siège social est situé en Allemagne, a été fondée en 1999.
- Kohl's
- Le magasin national de détail, qui fournit des vêtements pour hommes et femmes, a été fondé en 1962.
- STATS ChipPAC
- Le principal fournisseur mondial d'emballages et d'essais d'intégration de systèmes de semi-conducteurs basé en Chine.
- Varian Medical Systems, Inc.
- Entreprise de fabrication de produits anticancéreux et d'autres instruments médicaux fondée en 1948.
Park Overview
McCarthy Center is Silicon Valley’s best value–a newly refreshed campus with modern design, engaging amenities and flexible solutions for companies of all sizes. From move-in ready suites with flexible lease terms to full floors and buildings, a range of options in the 1.1 million SF, 19-building campus accommodate growing companies with office, R&D and lab space. Attract and retain top talent with a full suite of amenities and modern design, including bold entries and highly-visible signage. Take your workday outdoors for fresh air and inspiration in the 10+ outdoor workspaces ideal for connection and collaboration. Host company events, networking and happy hours in the event-ready conferencing space. Energize your day with craft coffee and fresh, made-to-order dishes from The Eatery. Position your business for success and put more of what matters within reach thanks to a convenient Silicon Valley location near Hwy 237 and I-880, resort-style living at North Park, and dining, retail and entertainment at McCarthy Ranch Marketplace.
- Conferencing Facility
- Courtyard
- Signage
- Storage Space
- Car Charging Station
Nearby Amenities
Restaurants |
|||
|---|---|---|---|
| Sandwich Spot | Sandwiches | $ | 15 min walk |
| Starbucks | Cafe | $ | 15 min walk |
| Banana Leaf | Asian | $$ | 15 min walk |
| Togo's | - | - | 15 min walk |
| Red Kwali | Malaysian | $ | 14 min walk |
| Dishdash Grill | Grill | $$ | 14 min walk |
| Green Cafe Vegan Cuisine | - | - | 15 min walk |
| Taco Bell | Fast Food | - | 16 min walk |
| Sushi King | Sushi | $$ | 18 min walk |
| In-N-Out Burger | - | - | 19 min walk |
Retail |
||
|---|---|---|
| Apple | Consumer Electronics | 5 min walk |
| Walmart | Dept Store | 10 min walk |
| Michaels | Art/Crafts | 14 min walk |
| Ross Dress for Less | Other Retail | 14 min walk |
| Dollar Tree | Dollar/Variety/Thrift | 14 min walk |
| PetSmart, Inc. | Pet Shop/Supplies | 14 min walk |
| Mattress Firm | Furniture/Mattress | 14 min walk |
| AT&T Wireless | Wireless Communications | 14 min walk |
| Best Buy | Consumer Electronics | 16 min walk |
| Planet Fitness | Fitness | 18 min walk |
Hotels |
|
|---|---|
| Hilton Garden Inn |
161 rooms
4 min drive
|
| Sonesta Hotel |
304 rooms
5 min drive
|
| Hampton by Hilton |
93 rooms
6 min drive
|
| Best Western Plus |
79 rooms
7 min drive
|
| Americas Best Value Inn |
87 rooms
7 min drive
|
| Sheraton Hotel |
229 rooms
8 min drive
|
| Hyatt House |
180 rooms
9 min drive
|
| TownePlace Suites |
142 rooms
9 min drive
|
Leasing Team
Leasing Team
Christian Marent, Executive Vice President
Christian has specialized in the sale and leasing Office/R&D institutionally-owned properties in Sunnyvale/ Santa Clara, San Jose, Milpitas and Fremont since 1986, when he joined Bishop Hawk, Inc. (which was subsequently acquired by Grubb & Ellis in 1998).
Major projects he has represented as exclusive agent include the Siemens Rolm Campus, ±497,638 SF, in Santa Clara; Stevenson Pointe Tech Park, ±351,000 SF in Fremont; McCandless Technology Park, ±345,000 SF, in Milpitas; and Dixon Landing Park, ±400,000 SF, in Milpitas, McCarthy Center, 1,100,000 SF, in Milpitas.
Mark Schmidt, Senior Managing Director
In addition to managing the CBRE Silicon Valley Office, Mark assists institutional clients in acquiring or disposing assets for their Silicon Valley portfolios. He also oversees an agency leasing portfolio of 6 million square feet throughout the Silicon Valley. Mark has also assisted several Fortune 500 companies acquire or dispose of property throughout the Silicon Valley.
Ben Knight, Executive Vice President
Over his career, he has been responsible for completing in excess of 12M SF of transactions and recognized by the ASVB for Silicon Valley’s “Deal of the Year,” nominated for Silicon Valley Broker of the Year (Industrial), and has consistently ranked in ASVB’s Top-25 CRE Agents in Silicon Valley (#21 in 2022, #22 in 2021, #7 in 2020). Ben has been honored as “40 under 40” by the Silicon Valley Business Journal.
Clients have included The Irvine Company, Blackstone / EQ Office, Deutsche Asset Management, DRA Advisors, DivcoWest, Prologis, Bixby Land Co., TPG Capital, Kennedy Wilson, Overton-Moore Properties, Hewlett-Packard, Philips Electronics, Delta Products, SteelWave, Westcore Properties, Four Corners Properties, Westbrook Partners, Texas Instruments, and TMG Partners.
A native of Palo Alto, Ben earned undergraduate and graduate degrees in Washington, D.C., where he subsequently worked in the management consulting industry. At the Corporate Executive Board (Now Gartner), he was part of a team that launched a B2B business services practice providing strategy, research, and advisory services to C-level executives of public and private companies.
In his free time, Ben enjoys mountain biking, golf, snowboarding, reading, and travel.
About the Owner
Other Properties in the THE IRVINE COMPANY Portfolio
Presented by
Company Not Provided
McCarthy Center | Milpitas, CA 95035
Hmm, there seems to have been an error sending your message. Please try again.
Thanks! Your message was sent.




































