Log In/Sign Up
Your email has been sent.
FEATURES
Clear Height
26’
Drive In Bays
4
Exterior Dock Doors
17
Standard Parking Spaces
72
ALL AVAILABLE SPACE(1)
Display Rental Rate as
- SPACE
- SIZE
- TERM
- RENTAL RATE
- SPACE USE
- CONDITION
- AVAILABLE
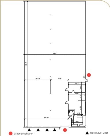
- Includes 1,400 SF of dedicated office space
- 4 Loading Docks
- Yard
- 2 Drive Ins
- Reception Area
| Space | Size | Term | Rental Rate | Space Use | Condition | Available |
| 1st Floor | 15,808 SF | Negotiable | Upon Request Upon Request Upon Request Upon Request | Industrial | Full Build-Out | Now |
1st Floor
| Size |
| 15,808 SF |
| Term |
| Negotiable |
| Rental Rate |
| Upon Request Upon Request Upon Request Upon Request |
| Space Use |
| Industrial |
| Condition |
| Full Build-Out |
| Available |
| Now |
1 of 1
VIDEOS
MATTERPORT 3D EXTERIOR
MATTERPORT 3D TOUR
PHOTOS
STREET VIEW
STREET
MAP
1st Floor
| Size | 15,808 SF |
| Term | Negotiable |
| Rental Rate | Upon Request |
| Space Use | Industrial |
| Condition | Full Build-Out |
| Available | Now |
- Includes 1,400 SF of dedicated office space
- 2 Drive Ins
- 4 Loading Docks
- Reception Area
- Yard
WAREHOUSE FACILITY FACTS
Building Size
72,000 SF
Lot Size
4.00 AC
Year Built
1989
Sprinkler System
Wet
Power Supply
Amps: 1,200 Volts: 277-480 Phase: 3 Wire: 3
SELECT TENANTS
- FLOOR
- TENANT NAME
- INDUSTRY
- 1st
- Fastbreak Consolidators Inc.
- Transportation and Warehousing
1 1
1 of 10
VIDEOS
MATTERPORT 3D EXTERIOR
MATTERPORT 3D TOUR
PHOTOS
STREET VIEW
STREET
MAP
1 of 1
Presented by
Bldg A | 6800-6860 Goodyear Rd
Already a member? Log In
Hmm, there seems to have been an error sending your message. Please try again.
Thanks! Your message was sent.





