Your email has been sent.
6844 Satchelford Rd 4,529 SF of Industrial Space Available in Columbia, SC 29206



Highlights
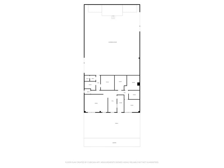
- Layout: Office: ±1,603 SF Warehouse: ±3,088 SF
- Two (2) Bay Doors; Bay Door Height: ±10ft x 10ft
- Conveniently located off Two Notch Road in Industrial Cul-de-sac
- Ceiling Height: ±13.5ft
- Two (2) Bathrooms
Features
All Available Space(1)
Display Rental Rate as
- Space
- Size
- Term
- Rental Rate
- Space Use
- Build-Out
- Available
This ±4,691 SF flex property offers a well-balanced combination of office and warehouse space, ideally suited for a variety of industrial and distribution users. The layout features ±1,603 SF of office space and ±3,088 SF of warehouse space with ±13.5-foot clear ceiling heights, two (2) grade-level bay doors (±10' x 10'), and two (2) restrooms. Situated in a private industrial cul-de-sac conveniently off Two Notch Road, the property provides excellent regional access with proximity to I-20 (±2 miles) and I-77 (±4 miles), offering seamless connectivity throughout the greater Columbia market. • Layout: o Office: ±1,603 SF o Warehouse: ±3,088 SF • Ceiling Height: ±13.5ft • Two (2) Bay Doors • Bay Door Height: ±10ft x 10ft • Two (2) Bathrooms • Conveniently located off Two Notch Road in Industrial Cul-de-sac • ±2 miles to I-20 • ±4 miles to I-77
- Lease rate does not include utilities, property expenses or building services
- Includes 1,603 SF of dedicated office space
| Space | Size | Term | Rental Rate | Space Use | Build-Out | Available |
| 1st Floor | 4,529 SF | Negotiable | $14.41 CAD/SF/YR $1.20 CAD/SF/MO $65,268 CAD/YR $5,439 CAD/MO | Industrial | - | Now |
1st Floor
| Size |
| 4,529 SF |
| Term |
| Negotiable |
| Rental Rate |
| $14.41 CAD/SF/YR $1.20 CAD/SF/MO $65,268 CAD/YR $5,439 CAD/MO |
| Space Use |
| Industrial |
| Build-Out |
| - |
| Available |
| Now |
1st Floor
| Size | 4,529 SF |
| Term | Negotiable |
| Rental Rate | $14.41 CAD/SF/YR |
| Space Use | Industrial |
| Build-Out | - |
| Available | Now |
This ±4,691 SF flex property offers a well-balanced combination of office and warehouse space, ideally suited for a variety of industrial and distribution users. The layout features ±1,603 SF of office space and ±3,088 SF of warehouse space with ±13.5-foot clear ceiling heights, two (2) grade-level bay doors (±10' x 10'), and two (2) restrooms. Situated in a private industrial cul-de-sac conveniently off Two Notch Road, the property provides excellent regional access with proximity to I-20 (±2 miles) and I-77 (±4 miles), offering seamless connectivity throughout the greater Columbia market. • Layout: o Office: ±1,603 SF o Warehouse: ±3,088 SF • Ceiling Height: ±13.5ft • Two (2) Bay Doors • Bay Door Height: ±10ft x 10ft • Two (2) Bathrooms • Conveniently located off Two Notch Road in Industrial Cul-de-sac • ±2 miles to I-20 • ±4 miles to I-77
- Lease rate does not include utilities, property expenses or building services
- Includes 1,603 SF of dedicated office space
Property Overview
This ±4,691 SF flex property offers a well-balanced combination of office and warehouse space, ideally suited for a variety of industrial and distribution users. The layout features ±1,603 SF of office space and ±3,088 SF of warehouse space with ±13.5-foot clear ceiling heights, two (2) grade-level bay doors (±10' x 10'), and two (2) restrooms. Situated in a private industrial cul-de-sac conveniently off Two Notch Road, the property provides excellent regional access with proximity to I-20 (±2 miles) and I-77 (±4 miles), offering seamless connectivity throughout the greater Columbia market. • Layout: o Office: ±1,603 SF o Warehouse: ±3,088 SF • Ceiling Height: ±13.5ft • Two (2) Bay Doors • Bay Door Height: ±10ft x 10ft • Two (2) Bathrooms • Conveniently located off Two Notch Road in Industrial Cul-de-sac • ±2 miles to I-20 • ±4 miles to I-77
Warehouse Facility Facts
Presented by
6844 Satchelford Rd
Hmm, there seems to have been an error sending your message. Please try again.
Thanks! Your message was sent.



