Log In/Sign Up
Your email has been sent.
FEATURES
Clear Height
18’
Drive In Bays
9
Standard Parking Spaces
60
ALL AVAILABLE SPACE(1)
Display Rental Rate as
- SPACE
- SIZE
- TERM
- RENTAL RATE
- SPACE USE
- CONDITION
- AVAILABLE
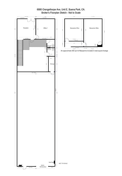
mezzanine office included in total squarefootage.
- Listed rate may not include certain utilities, building services and property expenses
- Space is in Excellent Condition
- Includes 1,200 SF of dedicated office space
- Central Air Conditioning
| Space | Size | Term | Rental Rate | Space Use | Condition | Available |
| 1st Floor - E | 3,000 SF | 3-5 Years | $25.13 CAD/SF/YR $2.09 CAD/SF/MO $75,380 CAD/YR $6,282 CAD/MO | Industrial | Full Build-Out | Now |
1st Floor - E
| Size |
| 3,000 SF |
| Term |
| 3-5 Years |
| Rental Rate |
| $25.13 CAD/SF/YR $2.09 CAD/SF/MO $75,380 CAD/YR $6,282 CAD/MO |
| Space Use |
| Industrial |
| Condition |
| Full Build-Out |
| Available |
| Now |
1st Floor - E
| Size | 3,000 SF |
| Term | 3-5 Years |
| Rental Rate | $25.13 CAD/SF/YR |
| Space Use | Industrial |
| Condition | Full Build-Out |
| Available | Now |
mezzanine office included in total squarefootage.
- Listed rate may not include certain utilities, building services and property expenses
- Includes 1,200 SF of dedicated office space
- Space is in Excellent Condition
- Central Air Conditioning
WAREHOUSE FACILITY FACTS
Building Size
25,165 SF
Lot Size
6.50 AC
Year Built
1970
Zoning
ML - Light Industrial Zoning
SELECT TENANTS
- FLOOR
- TENANT NAME
- INDUSTRY
- 1st
- California Tool & Equipment
- Wholesaler
- 1st
- Full Service Auto Repairs
- Transportation and Warehousing
- 1st
- Pro Image Signs
- Professional, Scientific, and Technical Services
- 1st
- Steven's Carpet and Flooring
- Retailer
1 1
1 of 5
VIDEOS
MATTERPORT 3D EXTERIOR
MATTERPORT 3D TOUR
PHOTOS
STREET VIEW
STREET
MAP
1 of 1
Presented by
6880 Orangethorpe Ave
Already a member? Log In
Hmm, there seems to have been an error sending your message. Please try again.
Thanks! Your message was sent.



