Log In/Sign Up
Your email has been sent.
Executive Summary
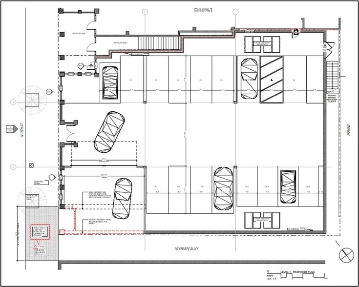
Currently in shell condition, the building offers a blank canvas for investors and developers seeking to create a transformative project in one of Richmond’s most dynamic neighborhoods. With three entrances along North 18th Street, the property provides strong frontage and design flexibility, while its B-5 zoning supports development up to five stories in height with multifamily permitted by right — a rare combination that positions the asset for a wide range of high-impact uses. Further enhancing its appeal, a Special Use Permit approved in 2025 allows for the construction of a 17-space parking garage within the building, accessed from the alley off 18th Street — a unique and highly valuable entitlement in an urban setting where parking is at a premium. This approval can be integrated into a larger multi-story residential or mixed use development or executed as a standalone, income-producing parking facility. Alternatively, the property is well-suited for retail or other commercial redevelopment, capitalizing on the neighborhood’s continued growth and energy. Don’t miss this rare chance to acquire a large historic asset on North 18th Street and bring a visionary project to life in the heart of Shockoe Bottom.
Property Facts
Sale Type
Investment or Owner User
Sale Conditions
Property Type
Retail
Property Subtype
Storefront
Building Size
6,403 SF
Building Class
C
Year Built
1974
Price
$1,092,115 CAD
Price Per SF
$170.56 CAD
Percent Leased
Vacant
Tenancy
Multiple
Building Height
1 Story
Building FAR
0.86
Lot Size
0.17 AC
Opportunity Zone
Yes
Zoning
B-5
Frontage
Amenities
- Bus Line
- Signage
Moderately walkable
70/100
Exceptionally drivable
100/100
Good public transit
60/100
Fairly bikeable
40/100
Nearby Major Retailers
Property Taxes
| Parcel Number | E000-0132-030 | Improvements Assessment | $259,399 CAD |
| Land Assessment | $553,109 CAD | Total Assessment | $812,508 CAD |
Property Taxes
Parcel Number
E000-0132-030
Land Assessment
$553,109 CAD
Improvements Assessment
$259,399 CAD
Total Assessment
$812,508 CAD
1 of 7
Videos
Matterport 3D Exterior
Matterport 3D Tour
Photos
Street View
Street
Map
Presented by
7-9 N 18th St
Already a member? Log In
Hmm, there seems to have been an error sending your message. Please try again.
Thanks! Your message was sent.



