Your email has been sent.
Highlights
- Summerlin Adjacent, Minutes from the College of Southern Nevada
- Rare former Craft Winery space now available
- Close proximity to Summerlin Parkway, U.S. 95/I-11 freeway
- Located in an established business and residential corridor Surrounded by National Retailers
- Vibrant Neighborhood Shopping Center
- Building and Pylon signage available.
Space Availability (1)
Display Rental Rate as
- Space
- Size
- Term
- Rental Rate
- Rent Type
| Space | Size | Term | Rental Rate | Rent Type | ||
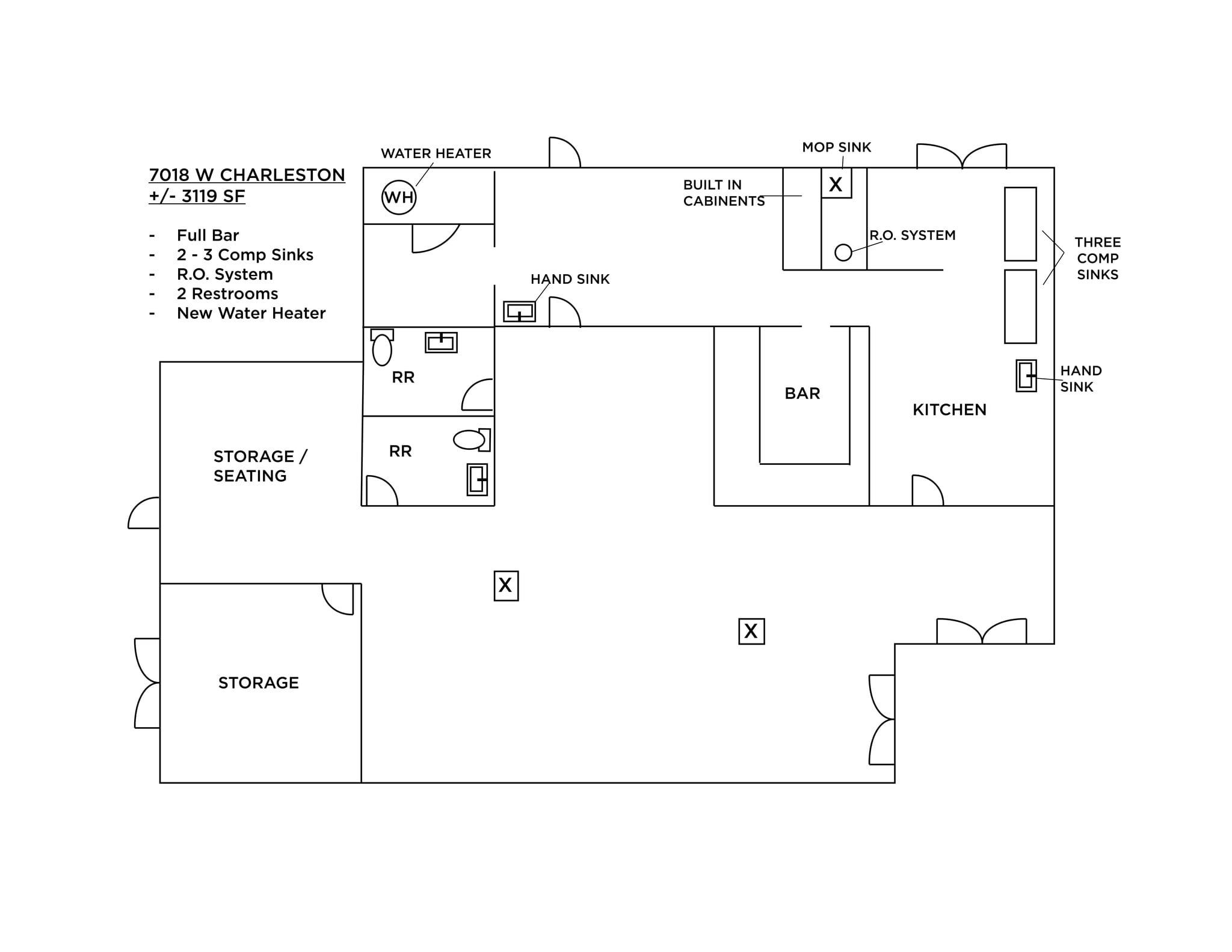
| 1st Floor, Ste 7018 | 3,119 SF | Negotiable | $24.67 CAD/SF/YR $2.06 CAD/SF/MO $76,938 CAD/YR $6,411 CAD/MO | Triple Net (NNN) |
7000-7034 W Charleston Blvd - 1st Floor - Ste 7018
Former Craft Winery and Wine bar with 2 restrooms (Call Broker for details)
- Lease rate does not include utilities, property expenses or building services
- Fully Built-Out as Standard Retail Space
- Space is in Excellent Condition
- Former Craft Winery Space
Rent Types
The rent amount and type that the tenant (lessee) will be responsible to pay to the landlord (lessor) throughout the lease term is negotiated prior to both parties signing a lease agreement. The rent type will vary depending upon the services provided. For example, triple net rents are typically lower than full service rents due to additional expenses the tenant is required to pay in addition to the base rent. Contact the listing broker for a full understanding of any associated costs or additional expenses for each rent type.
1. Full Service: A rental rate that includes normal building standard services as provided by the landlord within a base year rental.
2. Double Net (NN): Tenant pays for only two of the building expenses; the landlord and tenant determine the specific expenses prior to signing the lease agreement.
3. Triple Net (NNN): A lease in which the tenant is responsible for all expenses associated with their proportional share of occupancy of the building.
4. Modified Gross: Modified Gross is a general type of lease rate where typically the tenant will be responsible for their proportional share of one or more of the expenses. The landlord will pay the remaining expenses. See the below list of common Modified Gross rental rate structures: 4. Plus All Utilities: A type of Modified Gross Lease where the tenant is responsible for their proportional share of utilities in addition to the rent. 4. Plus Cleaning: A type of Modified Gross Lease where the tenant is responsible for their proportional share of cleaning in addition to the rent. 4. Plus Electric: A type of Modified Gross Lease where the tenant is responsible for their proportional share of the electrical cost in addition to the rent. 4. Plus Electric & Cleaning: A type of Modified Gross Lease where the tenant is responsible for their proportional share of the electrical and cleaning cost in addition to the rent. 4. Plus Utilities and Char: A type of Modified Gross Lease where the tenant is responsible for their proportional share of the utilities and cleaning cost in addition to the rent. 4. Industrial Gross: A type of Modified Gross lease where the tenant pays one or more of the expenses in addition to the rent. The landlord and tenant determine these prior to signing the lease agreement.
5. Tenant Electric: The landlord pays for all services and the tenant is responsible for their usage of lights and electrical outlets in the space they occupy.
6. Negotiable or Upon Request: Used when the leasing contact does not provide the rent or service type.
7. TBD: To be determined; used for buildings for which no rent or service type is known, commonly utilized when the buildings are not yet built.
Select Tenants at Fiesta Square
- Tenant
- Description
- US Locations
- Reach
- Dapper Dogs
- Retailer
- -
- -
- Frijoles
- Retailer
- -
- -
- Kelly's Bar
- Retailer
- -
- -
- Salon West
- Retailer
- -
- -
- Yaw Farm, Coffee Roasters
- Retailer
- -
- -
| Tenant | Description | US Locations | Reach |
| Dapper Dogs | Retailer | - | - |
| Frijoles | Retailer | - | - |
| Kelly's Bar | Retailer | - | - |
| Salon West | Retailer | - | - |
| Yaw Farm, Coffee Roasters | Retailer | - | - |
Property Facts
| Total Space Available | 3,119 SF | Frontage | |
| Center Type | Strip Center | Gross Leasable Area | 21,170 SF |
| Parking | 82 Spaces | Total Land Area | 1.96 AC |
| Stores | 1 | Year Built | 1978 |
| Center Properties | 2 |
| Total Space Available | 3,119 SF |
| Center Type | Strip Center |
| Parking | 82 Spaces |
| Stores | 1 |
| Center Properties | 2 |
| Frontage | |
| Gross Leasable Area | 21,170 SF |
| Total Land Area | 1.96 AC |
| Year Built | 1978 |
About the Property
Fiesta Square is a ±18,650 SF neighborhood retail shopping center on W. Charleston Boulevard, located just west of Rainbow Boulevard, situated adjacent to Summerlin. The subject property provides excellent visibility from W. Charleston Boulevard, on a signalized intersection (Antelope Way) with convenient ingress/egress, on the RTC bus route, and is easily accessible from the U.S. 95. This center has been recently repainted and refreshed, with a refurbished pylon sign, and ample LED lighting and parking
- Bus Line
- Pylon Sign
- Signage
- Signalized Intersection
Nearby Major Retailers
Presented by
Fiesta Square | 7000-7034 W Charleston Blvd
Hmm, there seems to have been an error sending your message. Please try again.
Thanks! Your message was sent.





