Log In/Sign Up
Your email has been sent.
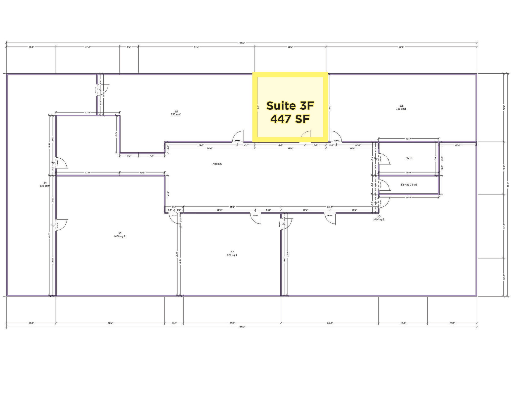
7000 & 7006 W North Ave 7000 W North Ave 15,662 SF 100% Leased Office Building Chicago, IL 60707 $1,877,283 CAD ($119.86 CAD/SF)



Investment Highlights
- ±17,850 SF Office building with 17 executive units and Garage Lot
- 100% occupancy allows for Carry Costs when going through approvals | Open Lobby
- Additional lot included with Garage
- Renovated in 2022 | New HVAC units | Roof Overlay
- Versatile parking options: covered, surface, and street
Executive Summary
SVN Chicago Commercial is pleased to present 7000 and 7006 W North Avenue, a three-story office property with an adjoining lot and garage, in Chicago, Illinois. Just across the street from Oak Park, this impressive 15,662 SF office building offers 17 office units, plus a masonry garage delivering immediate returns to investors. Renovated in 2023, the property showcases owner-funded enhancements including new HVAC units, a new roof overlay (2022), skim coat garage floor (2025), and updated signage. Covered, surface, and street parking is available on site, as well as an adjacent lot for potential expansion. Strategically situated just half a block from the intersection of North and Harlem Ave near the new Rush Outpatient Center.
Data Room Click Here to Access
- Offering Memorandum
Property Facts
Sale Type
Investment
Property Type
Office
Property Subtype
Medical
Building Size
15,662 SF
Building Class
B
Year Built
1980
Price
$1,877,283 CAD
Price Per SF
$119.86 CAD
Percent Leased
100%
Tenancy
Multiple
Building Height
3 Stories
Typical Floor Size
5,221 SF
Slab To Slab
10’
Building FAR
1.28
Lot Size
0.28 AC
Zoning
Commercial
Parking
12 Spaces (0.77 Spaces per 1,000 SF Leased)
Amenities
- Atrium
- Bus Line
- Controlled Access
- Security System
- Skylights
Moderately walkable
60/100
Exceptionally drivable
90/100
Good public transit
60/100
Moderately bikeable
60/100
Property Taxes
| Parcel Numbers | Improvements Assessment | $201,947 CAD | |
| Land Assessment | $95,930 CAD | Total Assessment | $297,877 CAD |
Property Taxes
Parcel Numbers
Land Assessment
$95,930 CAD
Improvements Assessment
$201,947 CAD
Total Assessment
$297,877 CAD
1 of 16
Videos
Matterport 3D Exterior
Matterport 3D Tour
Photos
Street View
Street
Map
Presented by
7000 & 7006 W North Ave | 7000 W North Ave
Already a member? Log In
Hmm, there seems to have been an error sending your message. Please try again.
Thanks! Your message was sent.

