Log In/Sign Up
Your email has been sent.
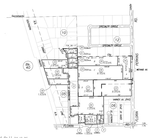
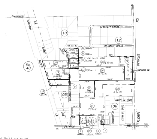
7001 McComber St 2.68 Acres of Industrial Land Offered at $1,918,756 CAD in Sacramento, CA 95828



Executive Summary
Probate sale with full court approval. House on 1.64 acres. APN 064-0050-002-0000 and adjoining lot .64 acre APN#064-0040-033-0000. Currently used as storage. All cars to be removed. Zone SPA of M-1 & M-2 with possible use permit. House is a 2 bedroom; 2 bath: functional at 1698 sq. Ft. Lite industrial street in center of Sacramento. Cross street: Florin Rd, full public utilities at house, property is on a septic tank.
Property Facts
| Price | $1,918,756 CAD | Property Subtype | Industrial |
| Sale Type | Investment | Proposed Use | |
| No. Lots | 1 | Total Lot Size | 2.68 AC |
| Property Type | Land | Opportunity Zone |
Yes
|
| Zoning | SPA - Special Planning Area | ||
| Price | $1,918,756 CAD |
| Sale Type | Investment |
| No. Lots | 1 |
| Property Type | Land |
| Property Subtype | Industrial |
| Proposed Use | |
| Total Lot Size | 2.68 AC |
| Opportunity Zone |
Yes |
| Zoning | SPA - Special Planning Area |
1 Lot Available
Lot
| Price | $1,918,756 CAD | Lot Size | 2.68 AC |
| Price Per AC | $715,953.74 CAD |
| Price | $1,918,756 CAD |
| Price Per AC | $715,953.74 CAD |
| Lot Size | 2.68 AC |
Somewhat walkable
30/100
Exceptionally drivable
90/100
Fairly bikeable
40/100
Property Taxes
| Parcel Numbers | Improvements Assessment | $90,086 CAD | |
| Land Assessment | $1,261,210 CAD | Total Assessment | $1,351,297 CAD |
Property Taxes
Parcel Numbers
Land Assessment
$1,261,210 CAD
Improvements Assessment
$90,086 CAD
Total Assessment
$1,351,297 CAD
1 of 4
Videos
Matterport 3D Exterior
Matterport 3D Tour
Photos
Street View
Street
Map
Presented by
American Home Real Estate
7001 McComber St
Already a member? Log In
Hmm, there seems to have been an error sending your message. Please try again.
Thanks! Your message was sent.

