Log In/Sign Up
Your email has been sent.
7030 Bretshire Dr 4,004 SF Office Building Houston, TX 77016 $615,463 CAD ($153.71 CAD/SF)



Investment Highlights
- High traffic count
- Favorable Houston Healthcare Dynamics
- Turnkey Opportunity
Executive Summary
Prime Medical Office Space Available – Turnkey Opportunity in a Recently Renovated Building
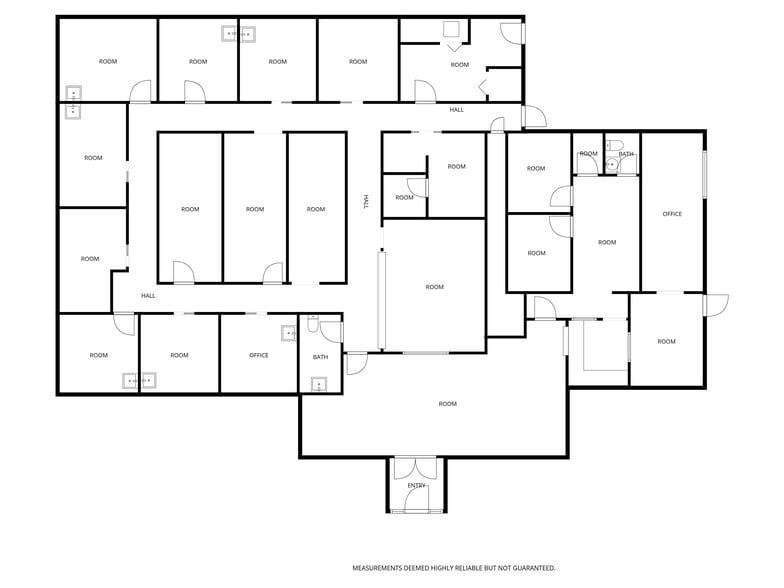
Discover this well-appointed 4,004 square foot medical office building, perfectly suited for a physician practice, clinic, urgent care, specialty group, or related healthcare provider. Extensively renovated in 2018, the space features modern finishes, high ceilings for an open and welcoming feel, and a thoughtful layout designed for efficient patient flow and operational needs. The remodel was done with permits, and the building has an active certificate of occupancy.
Key features include:
9 spacious exam rooms – ideal for comprehensive patient care
2 private offices – perfect for physicians, administrators, or consultation use
Generous receptionist area and inviting lobby for patient check-in and waiting
Kitchen/break area for staff convenience
Dedicated storage area for supplies, records, and equipment
Restrooms to accommodate patients, staff, and accessibility requirements
Some medical equipment remains on-site, offering immediate value and reducing setup costs for the next occupant. The building provides a professional, move-in-ready environment with ample natural light and a layout that supports high-volume patient throughput or specialized services.
This is an excellent opportunity for a growing practice or new venture seeking a cost-effective, high-quality medical space. Contact the listing agent today to schedule a private showing and explore how this property can meet your healthcare facility needs!
Discover this well-appointed 4,004 square foot medical office building, perfectly suited for a physician practice, clinic, urgent care, specialty group, or related healthcare provider. Extensively renovated in 2018, the space features modern finishes, high ceilings for an open and welcoming feel, and a thoughtful layout designed for efficient patient flow and operational needs. The remodel was done with permits, and the building has an active certificate of occupancy.
Key features include:
9 spacious exam rooms – ideal for comprehensive patient care
2 private offices – perfect for physicians, administrators, or consultation use
Generous receptionist area and inviting lobby for patient check-in and waiting
Kitchen/break area for staff convenience
Dedicated storage area for supplies, records, and equipment
Restrooms to accommodate patients, staff, and accessibility requirements
Some medical equipment remains on-site, offering immediate value and reducing setup costs for the next occupant. The building provides a professional, move-in-ready environment with ample natural light and a layout that supports high-volume patient throughput or specialized services.
This is an excellent opportunity for a growing practice or new venture seeking a cost-effective, high-quality medical space. Contact the listing agent today to schedule a private showing and explore how this property can meet your healthcare facility needs!
Property Facts
Sale Type
Investment or Owner User
Property Type
Office
Property Subtype
Medical
Building Size
4,004 SF
Building Class
C
Year Built/Renovated
1966/2018
Price
$615,463 CAD
Price Per SF
$153.71 CAD
Tenancy
Single
Building Height
1 Story
Typical Floor Size
4,004 SF
Building FAR
0.15
Lot Size
0.60 AC
Zoning
Commercial
Parking
34 Spaces (8.49 Spaces per 1,000 SF Leased)
Amenities
- Air Conditioning
1 1
Fairly walkable
50/100
Exceptionally drivable
90/100
Limited public transit
30/100
Moderately bikeable
60/100
Property Taxes
| Parcel Number | 0440020000192 | Improvements Assessment | $466,208 CAD |
| Land Assessment | $213,761 CAD | Total Assessment | $679,969 CAD |
Property Taxes
Parcel Number
0440020000192
Land Assessment
$213,761 CAD
Improvements Assessment
$466,208 CAD
Total Assessment
$679,969 CAD
1 of 58
Videos
Matterport 3D Exterior
Matterport 3D Tour
Photos
Street View
Street
Map
1 of 1
Presented by
7030 Bretshire Dr
Already a member? Log In
Hmm, there seems to have been an error sending your message. Please try again.
Thanks! Your message was sent.
