Log In/Sign Up
Your email has been sent.
Investment Highlights
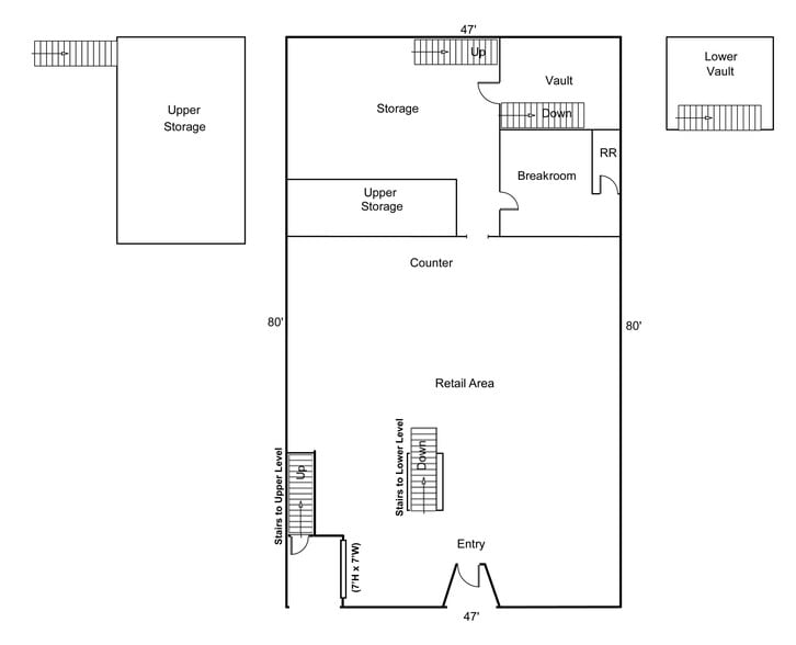
- Main Level: 3,724 SF Retail & Storage
- Lower Level: 3,520 SF Unfinished Basement Storage
- PRICE REDUCED TO $275,000! (Originally $299,000)
- Upper Level: 2,444 SF Apartment
- 7'x7' Service Door on Mail Level
Executive Summary
PRICE REDUCED TO $275,000! (Originally $299,000). Discover a rare investment opportunity in Historic Downtown Brainerd. Step into the rich history and vibrant potential of this iconic commercial building, ideally located in the heart of Downtown Brainerd. Dating back to the early 1900s, this storied property was home to Murphy’s Dry Goods for over half a century, followed by the well-known Iron Hills Pawn Shop—a beloved local staple. Now, the stage is set for a new chapter. With its prime location and timeless charm, this is the perfect opportunity for a visionary entrepreneur to reimagine the main level retail space and bring fresh energy to the community. Upstairs, a spacious unfinished apartment offers the flexibility to live on-site or generate passive income through rental. Whether you’re an investor, business owner, or history enthusiast, this building offers a unique blend of legacy and opportunity. Don’t miss your chance to own a piece of Brainerd’s past—while shaping its future.
Property Facts
Sale Type
Investment or Owner User
Property Type
Retail
Property Subtype
Building Size
6,168 SF
Building Class
B
Year Built
1909
Price
$375,166 CAD
Price Per SF
$60.82 CAD
Tenancy
Single
Building Height
2 Stories
Building FAR
1.57
Lot Size
0.09 AC
Opportunity Zone
Yes
Zoning
MS - Main Street
Frontage
80’ on Front Street
Fairly walkable
50/100
Moderately drivable
70/100
Fairly bikeable
40/100
Nearby Major Retailers
Property Taxes
| Parcel Number | 09196041016Z889 | Improvements Assessment | $149,321 CAD |
| Land Assessment | $50,003 CAD | Total Assessment | $199,324 CAD |
Property Taxes
Parcel Number
09196041016Z889
Land Assessment
$50,003 CAD
Improvements Assessment
$149,321 CAD
Total Assessment
$199,324 CAD
1 of 35
Videos
Matterport 3D Exterior
Matterport 3D Tour
Photos
Street View
Street
Map
Presented by
Pawn Shop | 704 Front St
Already a member? Log In
Hmm, there seems to have been an error sending your message. Please try again.
Thanks! Your message was sent.



